 
                Ferienhaus 29308 in Nykjærsvej 8, Sletterhage
Wirklich schönes Ferienhaus in der Nähe des Leuchtturms von Sletterhage und mit der schönsten Aussicht auf die Bucht von Aarhus. Das Haus liegt wunderschön auf einem großen und ungestörten Naturgrundstück mit Sträuchern und Bäumen und ist umgeben von schönen offenen und überdachten Holzterrassen mit Gartenmöbeln, Sonnenliegen, Sonnenschirm und Grill. Auf dem Grundstück gibt es auch Spielgeräte für die Kleinen.
Durch die Dachschrägen wirkt das Haus überall hell und einladend. Große Wohnküche mit Zugang zur überdachten Terrasse und in offener Verbindung mit gemütlichem Wohnzimmer in leicht versetzter Ebene. Hier ist eine Essecke für 7 Personen, Fernseher mit dänischen (inkl. TV2) und deutschen Sendern und Radio. Gut ausgestattete Küche mit Herd mit Cerankochfeld und Backofen, Kühlschrank mit Gefrierfach und Geschirrspüler. Sehr schönes Badezimmer mit Dusche, Schrankeinrichtung, Fußbodenheizung, Waschmaschine und Ausgang zur Terrasse. Das Haus bietet Platz für 7 Personen in 2 Zimmern mit 2 Einzelbetten und 1 Zimmer mit einem Doppelbett in Verbindung mit einem zusätzlichen Etagenbett. Internetzugang.
Hier sind Sie mitten in der einzigartigen Natur von Mols und in der Nähe einer Fülle von Aktivitätsmöglichkeiten - darunter Reiten auf Islandpferden, Fahrradverleih, Kajak oder Schlauchboot mit Motor. Helgenæs bietet auch Badestrände und wirklich gute Angelmöglichkeiten an.
Hausbilder
Ausstattung
Allgemeines
- Anzahl Haustiere maximal: 1
- Anzahl Personen: 7
- Baujahr: 1968
- Grundstücksfläche: 1.592 m²
- Haustiere erlaubt
- Nichtraucher
- Renovierung: 2015 Sanierungsjahr
- Wohnfläche: 96 m²
Entfernungen
- Abstand Einkauf: 5.300 m
- Abstand Golfplatz: 25 km
- Abstand Restaurant: 7.300 m
- Abstand Schwimmhalle: 26 km
- Abstand Strand: 250 m
Schlafbereich
- Anzahl Doppelbetten: 1
- Anzahl Einzelbetten: 4
- Anzahl Etagenbetten : 1
- Anzahl Schlafzimmer: 3
Küche
- Dunstabzug
- Geschirrspüler
- Kochplatten: 1
- Kühlschrank Kühlschank mit Gefrierfach
- Tiefkühler: 100 l
Bad
- Anzahl Duschen: 1
- Anzahl Badezimmer: 1
- Handdusche
- Waschmaschine
Multimedia
- Deutsches Fernsehen
- Internet
- Radio
Aussenbereich
- Gartenmöbel
- Grundstück Naturgrundstück
- Liegestuhl
- Sonnenschirm
Sonstiges
- Bügeleisen
- Fußbodenheizung im Badezimmer
Neben- und Verbrauchskosten
Die aktuellen Verbrauchskosten finden Sie im nächsten Schritt im Buchungsformular.
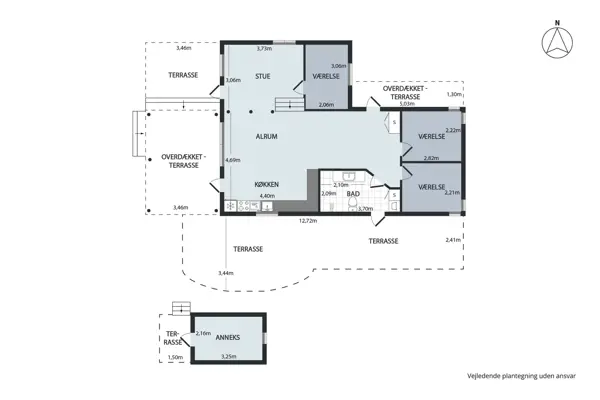
Raumaufteilung
 
                    Lageplan
Ferienhaus 29308
Nykjærsvej 8
8420 Knebel
Belegungskalender
- Reisedauer auswählen
- Anzahl Reisende auswählen
- Anreisetag im Belegungskalender anklicken
- Sie bekommen Verfügbarkeit und Preis angezeigt
| 2025 | 1 | 2 | 3 | 4 | 5 | 6 | 7 | 8 | 9 | 10 | 11 | 12 | 13 | 14 | 15 | 16 | 17 | 18 | 19 | 20 | 21 | 22 | 23 | 24 | 25 | 26 | 27 | 28 | 29 | 30 | 31 | 
| Oktober | M | D | F | S | S | M | D | M | D | F | S | S | M | D | M | D | F | S | S | M | D | M | D | F | S | S | M | D | M | D | F | 
| November | S | S | M | D | M | D | F | S | S | M | D | M | D | F | S | S | M | D | M | D | F | S | S | M | D | M | D | F | S | S | |
| Dezember | M | D | M | D | F | S | S | M | D | M | D | F | S | S | M | D | M | D | F | S | S | M | D | M | D | F | S | S | M | D | M | 
| 2026 | 1 | 2 | 3 | 4 | 5 | 6 | 7 | 8 | 9 | 10 | 11 | 12 | 13 | 14 | 15 | 16 | 17 | 18 | 19 | 20 | 21 | 22 | 23 | 24 | 25 | 26 | 27 | 28 | 29 | 30 | 31 | 
| Januar | D | F | S | S | M | D | M | D | F | S | S | M | D | M | D | F | S | S | M | D | M | D | F | S | S | M | D | M | D | F | S | 
| Februar | S | M | D | M | D | F | S | S | M | D | M | D | F | S | S | M | D | M | D | F | S | S | M | D | M | D | F | S | |||
| März | S | M | D | M | D | F | S | S | M | D | M | D | F | S | S | M | D | M | D | F | S | S | M | D | M | D | F | S | S | M | D | 
| April | M | D | F | S | S | M | D | M | D | F | S | S | M | D | M | D | F | S | S | M | D | M | D | F | S | S | M | D | M | D | |
| Mai | F | S | S | M | D | M | D | F | S | S | M | D | M | D | F | S | S | M | D | M | D | F | S | S | M | D | M | D | F | S | S | 
| Juni | M | D | M | D | F | S | S | M | D | M | D | F | S | S | M | D | M | D | F | S | S | M | D | M | D | F | S | S | M | D | |
| Juli | M | D | F | S | S | M | D | M | D | F | S | S | M | D | M | D | F | S | S | M | D | M | D | F | S | S | M | D | M | D | F | 
| August | S | S | M | D | M | D | F | S | S | M | D | M | D | F | S | S | M | D | M | D | F | S | S | M | D | M | D | F | S | S | M | 
| September | D | M | D | F | S | S | M | D | M | D | F | S | S | M | D | M | D | F | S | S | M | D | M | D | F | S | S | M | D | M | |
| Oktober | D | F | S | S | M | D | M | D | F | S | S | M | D | M | D | F | S | S | M | D | M | D | F | S | S | M | D | M | D | F | S | 
| November | S | M | D | M | D | F | S | S | M | D | M | D | F | S | S | M | D | M | D | F | S | S | M | D | M | D | F | S | S | M | |
| Dezember | D | M | D | F | S | S | M | D | M | D | F | S | S | M | D | M | D | F | S | S | M | D | M | D | F | S | S | M | D | M | D | 
| 2027 | 1 | 2 | 3 | 4 | 5 | 6 | 7 | 8 | 9 | 10 | 11 | 12 | 13 | 14 | 15 | 16 | 17 | 18 | 19 | 20 | 21 | 22 | 23 | 24 | 25 | 26 | 27 | 28 | 29 | 30 | 31 | 
| Januar | F | S | S | M | D | M | D | F | S | S | M | D | M | D | F | S | S | M | D | M | D | F | S | S | M | D | M | D | F | S | S | 
| Februar | M | D | M | D | F | S | S | M | D | M | D | F | S | S | M | D | M | D | F | S | S | M | D | M | D | F | S | S | |||
| März | M | D | M | D | F | S | S | M | D | M | D | F | S | S | M | D | M | D | F | S | S | M | D | M | D | F | S | S | M | D | M | 
| April | D | F | S | S | M | D | M | D | F | S | S | M | D | M | D | F | S | S | M | D | M | D | F | S | S | M | D | M | D | F | |
| Mai | S | S | M | D | M | D | F | S | S | M | D | M | D | F | S | S | M | D | M | D | F | S | S | M | D | M | D | F | S | S | M | 
| Juni | D | M | D | F | S | S | M | D | M | D | F | S | S | M | D | M | D | F | S | S | M | D | M | D | F | S | S | M | D | M | |
| Juli | D | F | S | S | M | D | M | D | F | S | S | M | D | M | D | F | S | S | M | D | M | D | F | S | S | M | D | M | D | F | S | 
| August | S | M | D | M | D | F | S | S | M | D | M | D | F | S | S | M | D | M | D | F | S | S | M | D | M | D | F | S | S | M | D | 
| September | M | D | F | S | S | M | D | M | D | F | S | S | M | D | M | D | F | S | S | M | D | M | D | F | S | S | M | D | M | D | |
| Oktober | F | S | S | M | D | M | D | F | S | S | M | D | M | D | F | S | S | M | D | M | D | F | S | S | M | D | M | D | F | S | S | 
| November | M | D | M | D | F | S | S | M | D | M | D | F | S | S | M | D | M | D | F | S | S | M | D | M | D | F | S | S | M | D | |
| Dezember | M | D | F | S | S | M | D | M | D | F | S | S | M | D | M | D | F | S | S | M | D | M | D | F | S | S | M | D | M | D | F | 
| 2028 | 1 | 2 | 3 | 4 | 5 | 6 | 7 | 8 | 9 | 10 | 11 | 12 | 13 | 14 | 15 | 16 | 17 | 18 | 19 | 20 | 21 | 22 | 23 | 24 | 25 | 26 | 27 | 28 | 29 | 30 | 31 | 
| Januar | S | S | M | D | M | D | F | S | S | M | D | M | D | F | S | S | M | D | M | D | F | S | S | M | D | M | D | F | S | S | M | 
| Februar | D | M | D | F | S | S | M | D | M | D | F | S | S | M | D | M | D | F | S | S | M | D | M | D | F | S | S | M | D | ||
| März | M | D | F | S | S | M | D | M | D | F | S | S | M | D | M | D | F | S | S | M | D | M | D | F | S | S | M | D | M | D | F | 
| April | S | S | M | D | M | D | F | S | S | M | D | M | D | F | S | S | M | D | M | D | F | S | S | M | D | M | D | F | S | S | |
| Mai | M | D | M | D | F | S | S | M | D | M | D | F | S | S | M | D | M | D | F | S | S | M | D | M | D | F | S | S | M | D | M | 
| Juni | D | F | S | S | M | D | M | D | F | S | S | M | D | M | D | F | S | S | M | D | M | D | F | S | S | M | D | M | D | F | |
| Juli | S | S | M | D | M | D | F | S | S | M | D | M | D | F | S | S | M | D | M | D | F | S | S | M | D | M | D | F | S | S | M | 
| August | D | M | D | F | S | S | M | D | M | D | F | S | S | M | D | M | D | F | S | S | M | D | M | D | F | S | S | M | D | M | D | 
| September | F | S | S | M | D | M | D | F | S | S | M | D | M | D | F | S | S | M | D | M | D | F | S | S | M | D | M | D | F | S | |
| Oktober | S | M | D | M | D | F | S | S | M | D | M | D | F | S | S | M | D | M | D | F | S | S | M | D | M | D | F | S | S | M | D | 
FAQ
Wie hoch sind die Nebenkosten?
Die Kosten für Strom, Wasser, (bei einigen Häusern Gas) werden nach tagesaktuellen Preisen abgerechnet und hängen von vielen verschiedenen Faktoren ab, wie zum Beispiel Anzahl Personen, Größe des Hauses oder Ausstattung. In der Regel lässt sich sagen, dass ein Standardhaus ohne Pool, Whirlpool und Sauna im Sommer ca. 5 kWh pro Person pro Tag verbraucht. Im Winter gerne bei 10 kWh und darüber. Bei Poolhäusern mit Whirlpool und Sauna liegt der Wert im Sommer bei ca. 20 kWh und im Winter ca. bei 40 kWh. Auch hier variieren die Preise stark von Größe des Pools, Ausstattung, Größe des Hauses, Modell des Whirlpools und individuellem Verbrauch im Haus. Der Wasserverbrauch variiert ebenfalls stark und kann bei ca. 0,1-0,2 m³ pro Person pro Tag in einem Standardhaus liegen und bei Poolhäusern bei ca. 0,4-0,5 m³. Wenn eine Kaution bei der Buchung angegeben ist, ist diese angepasst an den ungefähren Durchschnittsverbrauch an Nebenkosten im Haus. 
Alle Angaben ohne Gewähr und dienen lediglich als Richtwert und nicht als tatsächliche Prognose.
Kann ich das Ferienhaus unverbindlich reservieren?
Bei Ebeltoft Feriehusudlejning können keine unverbindlichen Reservierungen vorgenommen werden.
Wie bekomme ich den Schlüssel für das Ferienhaus?
An einigen Ferienhäusern sind Schlüsselboxen angebracht, an denen der Schlüssel für das Ferienhaus entnommen werden kann. Bei den meisten Ferienhäusern findet die Schlüsselübergabe im Büro in Ebeltoft statt. Sie können den genauen Ort der Schlüsselübergabe Ihrem Mietvertrag entnehmen.
Ab wann ist das Haus bezugsbereit?
In den Monaten von Juni bis August ist das Haus ab 16 Uhr bezugsbereit. In allen anderen Monaten kann das Ferienhaus ab 15 Uhr bezogen werden.
Wie läuft die Bezahlung ab?
Die Zahlung erfolgt in zwei Raten. Die erste Rate beträgt 25 % des Mietpreises und wird 10 Tage nach Vertragsabschluss fällig. Die zweite Rate beträgt 75 % des Mietpreises und ist 60 Tage vor Anreise zu zahlen. Bei Buchungen mit weniger als 60 Tagen bis zur Anreise werden 10 Tage nach Vertragsschluss 100 % des Mietpreises fällig.
Wie sind die Umbuchungs- / Stornierungsbedingungen?
Umbuchungen oder Änderungen des Mietvertrages bei Ebeltoft Feriehusudlejning sind bis zu 60 Tage vor Anreise gegen eine Gebühr von 50 € möglich. Bei einer Stornierung bis 60 Tage vor Anreise beträgt die Stornierungsgebühr 20 % des Mietpreises, 59 bis 10 Tage vor Anreise 80 % und von 9 Tagen vor Anreise bis zum Anreisetag 100 % des Mietpreises.
Wann erhalte ich meine Nebenkostenabrechnung?
Nach Abreise und Kontrolle des Ferienhauses durch Ebeltoft Feriehusudlejning wird die Nebenkostenabrechnung erstellt und sie erhalten innerhalb von drei Wochen die Abrechnung.
Jugendgruppen unter 25 Jahren?
Eine Jugendgruppe gilt bei Ebeltoft Feriehusudlejning ab 5 Personen unter 25 Jahren. Für eine Buchung wird die Zustimmung der Hauseigentümer benötigt, und es ist erforderlich, ein Urlaubs-Vollschutz-Paket zu buchen. Des Weiteren kann eine höhere Kaution verlangt werden.
 
                             
                             
                             
                             
                             
                             
                             
                             
                             
                             
                             
                             
                             
                             
                             
                             
                             
                                     
                                     
                                     
                                     
                                     
                                     
                                     
                                     
                                     
                                     
                                     
                                     
                                     
                                     
                                     
                                     
                                     
                                     
                                     
                                 
                                 
                                 
                                 
                                 
                                 
                                 
                                 
                                 
                                 
                                 
                                 
                                 
                                 
                                 
                                 
                                 
                                