
Ferienhaus 30612 in Gammelgabvej 62, Lønne
Ihr seid eine kleine Familie und euer Teenager möchte die beste Freundin oder den besten Freund mit in den Urlaub nehmen? Dann schaut hier einmal genauer hin. Dieses kleine, in 2020 renovierte Ferienhaus verfügt über ein Extrahäuschen mit zwei Betten, Badezimmer und Kochecke - perfekt zum Beispiel für Kinder, welche flügge werden. Auch euer Hund darf gern mit in den Urlaub und ist hier ebenso willkommen.
Gemütlich mit Kamin und geschlossener Terrasse
Das Ferienhaus auf Gammelgabvej 62 liegt inmitten der ruhigen Natur in einem Ferienhausgebiet, welches zu Houstrup gehört. Hier wohnt ihr sowohl in der Nähe zur Blåbjerg Plantage, einem herrlichen Wandergebiet sowie nah zum Ringkøbing Fjord und der Nordsee
Im gemütlichen Wohnzimmer mit integrierter Küche darf ein Kaminofen natürlich nicht fehlen. Gerade am Abend sorgt dieser nicht nur für kuschelige Wärme, sondern auch für die entsprechende Urlaubsatmosphäre. Ein Geschirrspüler übernimmt den Abwasch, sodass ihr stattdessen lieber noch eine Runde Karten spielen oder entspannt auf der schönen und komplett geschlossenen Terrasse mit Pavillon in der Abendsonne sitzen könnt.
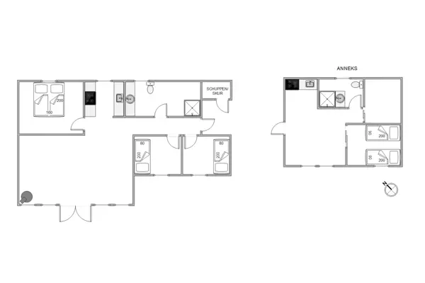
Schöne Außenanlage und extra Wohnraum im Nebengebäude
Die Kinder erfreuen sich auf dem großen Naturgrundstück über viel Platz und eine Schaukel. Die kleinen Abenteurer werden sich stundenlang draußen an der frischen Luft auspowern, sodass sie am Abend ganz erschöpft in ihre Betten fallen. Ein kleines, separates Nebengebäude mit zwei Schlafmöglichkeiten, einem eigenen Bad, ist der Traum aller Teenager - endlich ein eigenes kleines Reich!
Der Strand in Nymindegab ist in wenigen Minuten mit dem Auto zu erreichen oder ihr schnappt euch die Fahrräder und radelt nach Henne Strand, einem schönen und sehr quirligen Ferienort. Hier könnt ihr ein wenig bummeln und euch mit einem leckeren Softeis belohnen.
Platz für insgesamt 6 Personen und euren Hund
Bis zu 6 Personen können hier sowohl ruhige aber auch erlebnisreiche Tage miteinander verbringen. Eine Besonderheit führt fast am Haus vorbei. Es ist eine stillgelegte Bahnstrecke, welche nun mit Schienenfahrrädern erkundet werden kann. Und das macht richtig Spaß! Leiht euch so ein Gefährt und startet in Nørre Nebel Richtung Nymindegab.
Durchquert dabei die schöne Natur mit kleinen Seen, offenen Wiesen, hügeligen Dünenlandschaften und idyllisch im Grünen liegenden Ferienhäusern. Packt euch ruhig einen Picknickkorb ein, denn an der Strecke gibt es eine Grillhütte wo ihr eine kleine Verschnaufpause einlegen könnt und wo die Kinder herumtoben können, bevor es heißt, wieder in die Pedale zu treten.
Hausbilder
Ausstattung
Allgemeines
- Anbau
- Anzahl Haustiere maximal: 1
- Anzahl Personen: 6
- Baujahr: 1990
- Grundstücksfläche: 1.200 m²
- Haustiere erlaubt
- Inkl. Endreinigung
- Nichtraucher
- Renovierung: 2020
- Wohnfläche: 91 m²
Entfernungen
- Abstand Einkauf: 4.000 m
- Abstand Wasser: 3.000 m Nordsee
Wohnbereich
- Flachbildfernseher
- Kaminofen
Schlafbereich
- Anzahl Doppelbetten: 1
- Anzahl Einzelbetten: 4
- Anzahl Schlafzimmer: 4
Küche
- Geschirrspüler
- Herd Induktion mit Backofen
- Kühlschrank
- Tiefkühler: 60 l
Bad
- Anzahl Badezimmer: 2
- Trockner
- Waschmaschine
Multimedia
- CD-Player
- Deutsches Fernsehen Dänische und Deutsche
- Internet
- Radio
Aussenbereich
- Gartenmöbel
- Grundstück Naturgrundstück
- Grill Gasgrill
- Liegestuhl
- Schaukel
- Terrasse, geschlossen
- Terrasse, überdacht
Sonstiges
- Besonderheiten iPod Dock
- Fußbodenheizung Bad
- Hauswechseltag Samstag
- Wärmepumpe
Neben- und Verbrauchskosten
Die aktuellen Verbrauchskosten finden Sie im nächsten Schritt im Buchungsformular.
Raumaufteilung

Lageplan
Ferienhaus 30612
Gammelgabvej 62
Houstrup
6830 Nr. Nebel
Belegungskalender
- Reisedauer auswählen
- Anzahl Reisende auswählen
- Anreisetag im Belegungskalender anklicken
- Sie bekommen Verfügbarkeit und Preis angezeigt
2025 | 1 | 2 | 3 | 4 | 5 | 6 | 7 | 8 | 9 | 10 | 11 | 12 | 13 | 14 | 15 | 16 | 17 | 18 | 19 | 20 | 21 | 22 | 23 | 24 | 25 | 26 | 27 | 28 | 29 | 30 | 31 |
Oktober | M | D | F | S | S | M | D | M | D | F | S | S | M | D | M | D | F | S | S | M | D | M | D | F | S | S | M | D | M | D | F |
November | S | S | M | D | M | D | F | S | S | M | D | M | D | F | S | S | M | D | M | D | F | S | S | M | D | M | D | F | S | S | |
Dezember | M | D | M | D | F | S | S | M | D | M | D | F | S | S | M | D | M | D | F | S | S | M | D | M | D | F | S | S | M | D | M |
2026 | 1 | 2 | 3 | 4 | 5 | 6 | 7 | 8 | 9 | 10 | 11 | 12 | 13 | 14 | 15 | 16 | 17 | 18 | 19 | 20 | 21 | 22 | 23 | 24 | 25 | 26 | 27 | 28 | 29 | 30 | 31 |
Januar | D | F | S | S | M | D | M | D | F | S | S | M | D | M | D | F | S | S | M | D | M | D | F | S | S | M | D | M | D | F | S |
Februar | S | M | D | M | D | F | S | S | M | D | M | D | F | S | S | M | D | M | D | F | S | S | M | D | M | D | F | S | |||
März | S | M | D | M | D | F | S | S | M | D | M | D | F | S | S | M | D | M | D | F | S | S | M | D | M | D | F | S | S | M | D |
April | M | D | F | S | S | M | D | M | D | F | S | S | M | D | M | D | F | S | S | M | D | M | D | F | S | S | M | D | M | D | |
Mai | F | S | S | M | D | M | D | F | S | S | M | D | M | D | F | S | S | M | D | M | D | F | S | S | M | D | M | D | F | S | S |
Juni | M | D | M | D | F | S | S | M | D | M | D | F | S | S | M | D | M | D | F | S | S | M | D | M | D | F | S | S | M | D | |
Juli | M | D | F | S | S | M | D | M | D | F | S | S | M | D | M | D | F | S | S | M | D | M | D | F | S | S | M | D | M | D | F |
August | S | S | M | D | M | D | F | S | S | M | D | M | D | F | S | S | M | D | M | D | F | S | S | M | D | M | D | F | S | S | M |
September | D | M | D | F | S | S | M | D | M | D | F | S | S | M | D | M | D | F | S | S | M | D | M | D | F | S | S | M | D | M | |
Oktober | D | F | S | S | M | D | M | D | F | S | S | M | D | M | D | F | S | S | M | D | M | D | F | S | S | M | D | M | D | F | S |
November | S | M | D | M | D | F | S | S | M | D | M | D | F | S | S | M | D | M | D | F | S | S | M | D | M | D | F | S | S | M | |
Dezember | D | M | D | F | S | S | M | D | M | D | F | S | S | M | D | M | D | F | S | S | M | D | M | D | F | S | S | M | D | M | D |
2027 | 1 | 2 | 3 | 4 | 5 | 6 | 7 | 8 | 9 | 10 | 11 | 12 | 13 | 14 | 15 | 16 | 17 | 18 | 19 | 20 | 21 | 22 | 23 | 24 | 25 | 26 | 27 | 28 | 29 | 30 | 31 |
Januar | F | S | S | M | D | M | D | F | S | S | M | D | M | D | F | S | S | M | D | M | D | F | S | S | M | D | M | D | F | S | S |
Februar | M | D | M | D | F | S | S | M | D | M | D | F | S | S | M | D | M | D | F | S | S | M | D | M | D | F | S | S | |||
März | M | D | M | D | F | S | S | M | D | M | D | F | S | S | M | D | M | D | F | S | S | M | D | M | D | F | S | S | M | D | M |
April | D | F | S | S | M | D | M | D | F | S | S | M | D | M | D | F | S | S | M | D | M | D | F | S | S | M | D | M | D | F | |
Mai | S | S | M | D | M | D | F | S | S | M | D | M | D | F | S | S | M | D | M | D | F | S | S | M | D | M | D | F | S | S | M |
Juni | D | M | D | F | S | S | M | D | M | D | F | S | S | M | D | M | D | F | S | S | M | D | M | D | F | S | S | M | D | M | |
Juli | D | F | S | S | M | D | M | D | F | S | S | M | D | M | D | F | S | S | M | D | M | D | F | S | S | M | D | M | D | F | S |
August | S | M | D | M | D | F | S | S | M | D | M | D | F | S | S | M | D | M | D | F | S | S | M | D | M | D | F | S | S | M | D |
September | M | D | F | S | S | M | D | M | D | F | S | S | M | D | M | D | F | S | S | M | D | M | D | F | S | S | M | D | M | D | |
Oktober | F | S | S | M | D | M | D | F | S | S | M | D | M | D | F | S | S | M | D | M | D | F | S | S | M | D | M | D | F | S | S |
November | M | D | M | D | F | S | S | M | D | M | D | F | S | S | M | D | M | D | F | S | S | M | D | M | D | F | S | S | M | D | |
Dezember | M | D | F | S | S | M | D | M | D | F | S | S | M | D | M | D | F | S | S | M | D | M | D | F | S | S | M | D | M | D | F |
2028 | 1 | 2 | 3 | 4 | 5 | 6 | 7 | 8 | 9 | 10 | 11 | 12 | 13 | 14 | 15 | 16 | 17 | 18 | 19 | 20 | 21 | 22 | 23 | 24 | 25 | 26 | 27 | 28 | 29 | 30 | 31 |
Januar | S | S | M | D | M | D | F | S | S | M | D | M | D | F | S | S | M | D | M | D | F | S | S | M | D | M | D | F | S | S | M |
Februar | D | M | D | F | S | S | M | D | M | D | F | S | S | M | D | M | D | F | S | S | M | D | M | D | F | S | S | M | D | ||
März | M | D | F | S | S | M | D | M | D | F | S | S | M | D | M | D | F | S | S | M | D | M | D | F | S | S | M | D | M | D | F |
April | S | S | M | D | M | D | F | S | S | M | D | M | D | F | S | S | M | D | M | D | F | S | S | M | D | M | D | F | S | S | |
Mai | M | D | M | D | F | S | S | M | D | M | D | F | S | S | M | D | M | D | F | S | S | M | D | M | D | F | S | S | M | D | M |
Juni | D | F | S | S | M | D | M | D | F | S | S | M | D | M | D | F | S | S | M | D | M | D | F | S | S | M | D | M | D | F | |
Juli | S | S | M | D | M | D | F | S | S | M | D | M | D | F | S | S | M | D | M | D | F | S | S | M | D | M | D | F | S | S | M |
August | D | M | D | F | S | S | M | D | M | D | F | S | S | M | D | M | D | F | S | S | M | D | M | D | F | S | S | M | D | M | D |
September | F | S | S | M | D | M | D | F | S | S | M | D | M | D | F | S | S | M | D | M | D | F | S | S | M | D | M | D | F | S | |
Oktober | S | M | D | M | D | F | S | S | M | D | M | D | F | S | S | M | D | M |