Ferienhaus LL264 in Færgevej 9 1. th, Bagenkop
Willkommen in der Færgevej 9, 1. Th. in Bagenkop – eine schöne Ferienwohnung auf zwei Ebenen in einzigartiger Lage im Hafenbereich. Hier wohnen Sie direkt an der Marina, wo in den Sommermonaten reges Leben, Boote und echte Urlaubsstimmung herrschen. Von der Wohnung aus genießen Sie zudem einen schönen Blick in Richtung Meer und auf die offene Landschaft, wo Sie mit etwas Glück die berühmten wilden Pferde beobachten können. Die Ferienwohnung verbindet modernen Komfort mit maritimer Atmosphäre und ist der perfekte Ausgangspunkt für einen erholsamen Urlaub im Süden von Langeland.
Willkommen im Inneren
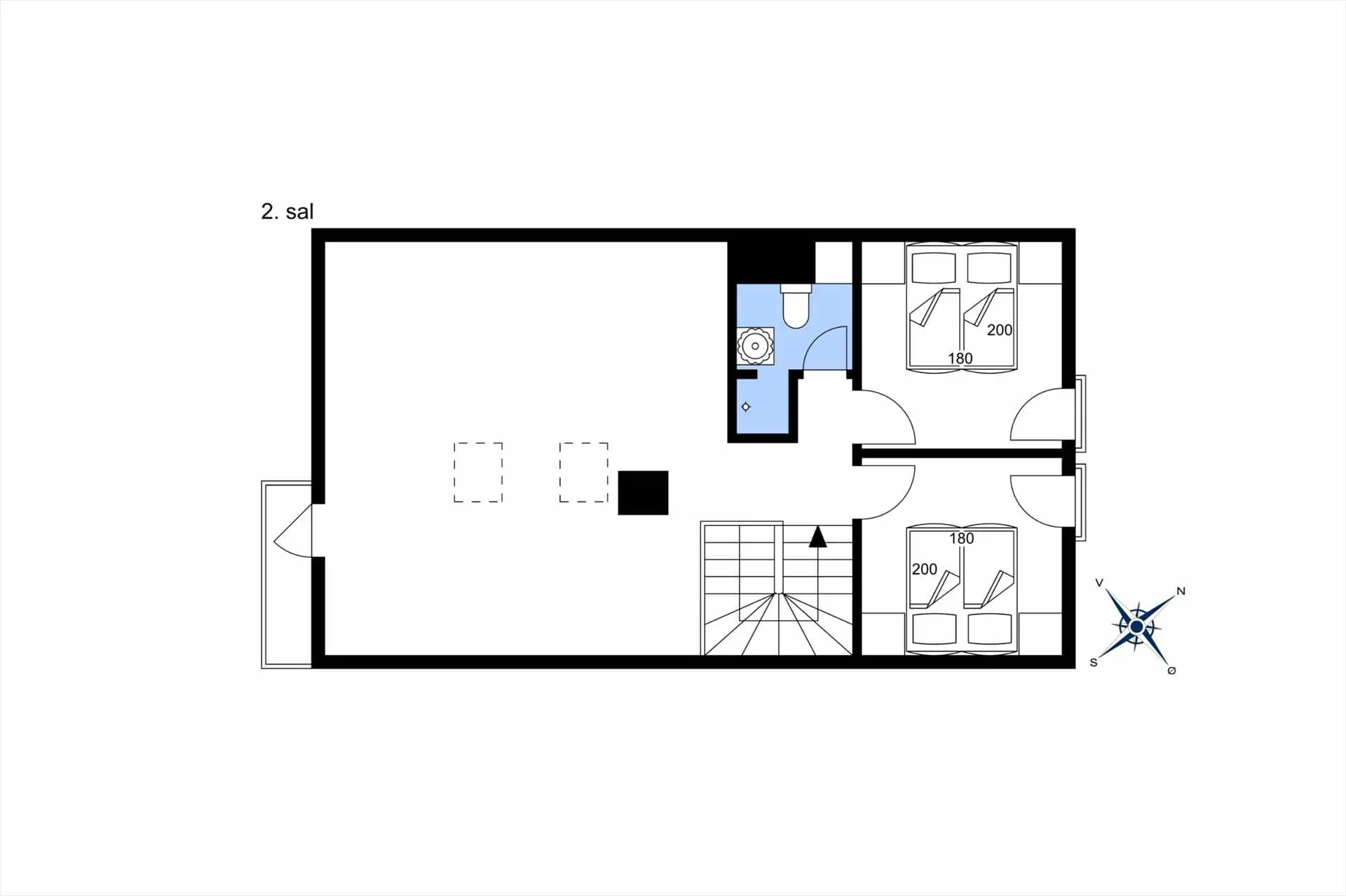
Die Ferienwohnung erstreckt sich über zwei Etagen und bietet insgesamt 136 m² Wohnfläche mit ausreichend Platz für bis zu sechs Personen. Im Obergeschoss befindet sich ein großzügiger und einladender Wohnbereich, ideal für gemütliche Stunden mit der Familie. Hier können Sie entspannen, Spiele spielen oder den Tag ruhig ausklingen lassen. Im unteren Stockwerk erwartet Sie ein helles und gut ausgestattetes Wohn- und Esszimmer mit offener Küche und Kaminofen, der das ganze Jahr über für eine behagliche Atmosphäre sorgt. Die Küche ist vollständig ausgestattet und macht das Zubereiten der Mahlzeiten einfach und angenehm. Die Wohnung verfügt über zwei Badezimmer, von denen eines mit Whirlpool und Sauna ausgestattet ist – perfekt für Entspannung und Wohlbefinden nach einem aktiven Tag.
Genießen Sie das Leben im Freien
Vom Wohn- und Essbereich gelangen Sie auf eine kleine Terrasse, auf der Sie den Morgen mit einer Tasse Kaffee beginnen und das Leben im Hafen beobachten können. Später am Tag können Sie auf der gegenüberliegenden Seite der Wohnung die Abendsonne genießen – mit Blick auf den Hafen und das Wasser. Die besondere Lage zwischen Hafen und Natur schafft eine einzigartige Stimmung, in der sich Ruhe und lebendiges Hafenleben perfekt ergänzen. Die charakteristischen rot-weißen Gebäude aus dem Jahr 2008 fügen sich harmonisch in die Umgebung ein und unterstreichen den maritimen Charakter des Gebiets.
Entdecken Sie die Umgebung
Bagenkop ist die südlichste Stadt auf Langeland und eine charmante Hafenstadt mit viel Leben, besonders in den Sommermonaten. Hier finden Sie Cafés, Restaurants und Eisdielen sowie die Möglichkeit, fangfrischen Fisch direkt am Hafen zu kaufen. Die Umgebung bietet beeindruckende Naturerlebnisse, und nur wenige Schritte von der Ferienwohnung entfernt können Sie die wilden Pferde beobachten, die frei in der Landschaft grasen. Außerdem liegt das Langelandsfort in der Nähe – ein spannendes Museum für Kinder und Erwachsene. Südlangeland eignet sich hervorragend für Wanderungen, Radtouren, Angeln und Naturerlebnisse, und diese Ferienwohnung ist der ideale Ausgangspunkt für einen Urlaub, der Komfort, Hafenidylle und Natur miteinander verbindet.
Hausbilder
Ausstattung
Allgemeines
- Anzahl Haustiere maximal: 2
- Anzahl Personen: 6
- Baujahr: 2008
- Fernwärme
- Grundstücksfläche: 136 m²
- Haustiere: Nur Hunde erlaubt
- Hundefreundlich
- Nichtraucher
-
Tolle Aussicht Meerblick
Panorama - Wohnfläche: 136 m²
Entfernungen
- Abstand Einkauf: 450 m
- Abstand Restaurant: 150 m
- Abstand Strand: 40 m
- Abstand Wasser: 40 m Meer
Wohnbereich
- Kaminofen
Schlafbereich
- Anzahl Doppelbetten: 3
Küche
- Dunstabzug
- Extra Backofen
- Geschirrspüler
- Kaffeemaschine
- Kochplatten: 1 elektrische
- Kühlschrank l mit Gefrierfach
- Mikrowelle
- Wasserkocher
Bad
- Anzahl Duschen: 2
- Anzahl Toiletten: 2
- Waschmaschine
Wellness
- Sauna
- Whirlpool Innenwhirlpool
Multimedia
- Deutsches Fernsehen
-
Internationales Fernsehen Dänisches Fernsehen
norwegische Programme
Schwedisches Fernsehen - Internet Kostenloses Wi-Fi - Mehr als 20 Mbit
Aussenbereich
- Gartenmöbel
- Grill
- Liegestuhl
- Terrasse: 1 m²
Sonstiges
- Bügelbrett
- Bügeleisen
- Das Aufladen von Elektroautos ist nicht erlaubt
Neben- und Verbrauchskosten
Die aktuellen Verbrauchskosten finden Sie im nächsten Schritt im Buchungsformular.
Raumaufteilung
Lageplan
Ferienhaus LL264
Færgevej 9 1. th
Bagenkop
5935 Bagenkop
Belegungskalender
- Reisedauer auswählen
- Anzahl Reisende auswählen
- Anreisetag im Belegungskalender anklicken
- Sie bekommen Verfügbarkeit und Preis angezeigt
| 2026 | 1 | 2 | 3 | 4 | 5 | 6 | 7 | 8 | 9 | 10 | 11 | 12 | 13 | 14 | 15 | 16 | 17 | 18 | 19 | 20 | 21 | 22 | 23 | 24 | 25 | 26 | 27 | 28 | 29 | 30 | 31 |
| Mai | F | S | S | M | D | M | D | F | S | S | M | D | M | D | F | S | S | M | D | M | D | F | S | S | M | D | M | D | F | S | S |
| Juni | M | D | M | D | F | S | S | M | D | M | D | F | S | S | M | D | M | D | F | S | S | M | D | M | D | F | S | S | M | D | |
| Juli | M | D | F | S | S | M | D | M | D | F | S | S | M | D | M | D | F | S | S | M | D | M | D | F | S | S | M | D | M | D | F |
| August | S | S | M | D | M | D | F | S | S | M | D | M | D | F | S | S | M | D | M | D | F | S | S | M | D | M | D | F | S | S | M |
| September | D | M | D | F | S | S | M | D | M | D | F | S | S | M | D | M | D | F | S | S | M | D | M | D | F | S | S | M | D | M | |
| Oktober | D | F | S | S | M | D | M | D | F | S | S | M | D | M | D | F | S | S | M | D | M | D | F | S | S | M | D | M | D | F | S |
| November | S | M | D | M | D | F | S | S | M | D | M | D | F | S | S | M | D | M | D | F | S | S | M | D | M | D | F | S | S | M | |
| Dezember | D | M | D | F | S | S | M | D | M | D | F | S | S | M | D | M | D | F | S | S | M | D | M | D | F | S | S | M | D | M | D |
| 2027 | 1 | 2 | 3 | 4 | 5 | 6 | 7 | 8 | 9 | 10 | 11 | 12 | 13 | 14 | 15 | 16 | 17 | 18 | 19 | 20 | 21 | 22 | 23 | 24 | 25 | 26 | 27 | 28 | 29 | 30 | 31 |
| Januar | F | S | S | M | D | M | D | F | S | S | M | D | M | D | F | S | S | M | D | M | D | F | S | S | M | D | M | D | F | S | S |
| Februar | M | D | M | D | F | S | S | M | D | M | D | F | S | S | M | D | M | D | F | S | S | M | D | M | D | F | S | S | |||
| März | M | D | M | D | F | S | S | M | D | M | D | F | S | S | M | D | M | D | F | S | S | M | D | M | D | F | S | S | M | D | M |
| April | D | F | S | S | M | D | M | D | F | S | S | M | D | M | D | F | S | S | M | D | M | D | F | S | S | M | D | M | D | F | |
| Mai | S | S | M | D | M | D | F | S | S | M | D | M | D | F | S | S | M | D | M | D | F | S | S | M | D | M | D | F | S | S | M |
| Juni | D | M | D | F | S | S | M | D | M | D | F | S | S | M | D | M | D | F | S | S | M | D | M | D | F | S | S | M | D | M | |
| Juli | D | F | S | S | M | D | M | D | F | S | S | M | D | M | D | F | S | S | M | D | M | D | F | S | S | M | D | M | D | F | S |
| August | S | M | D | M | D | F | S | S | M | D | M | D | F | S | S | M | D | M | D | F | S | S | M | D | M | D | F | S | S | M | D |
| September | M | D | F | S | S | M | D | M | D | F | S | S | M | D | M | D | F | S | S | M | D | M | D | F | S | S | M | D | M | D | |
| Oktober | F | S | S | M | D | M | D | F | S | S | M | D | M | D | F | S | S | M | D | M | D | F | S | S | M | D | M | D | F | S | S |
| November | M | D | M | D | F | S | S | M | D | M | D | F | S | S | M | D | M | D | F | S | S | M | D | M | D | F | S | S | M | D | |
| Dezember | M | D | F | S | S | M | D | M | D | F | S | S | M | D | M | D | F | S | S | M | D | M | D | F | S | S | M | D | M | D | F |
| 2028 | 1 | 2 | 3 | 4 | 5 | 6 | 7 | 8 | 9 | 10 | 11 | 12 | 13 | 14 | 15 | 16 | 17 | 18 | 19 | 20 | 21 | 22 | 23 | 24 | 25 | 26 | 27 | 28 | 29 | 30 | 31 |
| Januar | S | S | M | D | M | D | F | S | S | M | D | M | |||||||||||||||||||
FAQ
Wie hoch sind die Nebenkosten?
Die Kosten für Strom, Wasser, (bei einigen Häusern Gas) werden nach tagesaktuellen Preisen abgerechnet und hängen von vielen verschiedenen Faktoren ab, wie zum Beispiel Anzahl Personen, Größe des Hauses oder Ausstattung. In der Regel lässt sich sagen, dass ein Standardhaus ohne Pool, Whirlpool und Sauna im Sommer ca. 5 kWh pro Person pro Tag verbraucht. Im Winter gerne bei 10 kWh und darüber. Bei Poolhäusern mit Whirlpool und Sauna liegt der Wert im Sommer bei ca. 20 kWh und im Winter ca. bei 40 kWh. Auch hier variieren die Preise stark von Größe des Pools, Ausstattung, Größe des Hauses, Modell des Whirlpools und individuellem Verbrauch im Haus. Der Wasserverbrauch variiert ebenfalls stark und kann bei ca. 0,1-0,2 m³ pro Person pro Tag in einem Standardhaus liegen und bei Poolhäusern bei ca. 0,4-0,5 m³. Wenn eine Kaution bei der Buchung angegeben ist, ist diese angepasst an den ungefähren Durchschnittsverbrauch an Nebenkosten im Haus.
Alle Angaben ohne Gewähr und dienen lediglich als Richtwert und nicht als tatsächliche Prognose.
Kann ich das Haus reservieren?
Reservierungen sind in der Regel nicht möglich. In einigen Fällen ist es uns jedoch möglich, Reservierungen zu erstellen. Fragen Sie gerne direkt bei uns an, ob für dieses Haus eine Reservierung möglich ist.
Wie bekomme ich den Schlüssel für das Ferienhaus?
Mittlerweile sind bei fast allen Feriepartner Ferienhäusern Schlüsselboxen an den Häusern angebracht. Über den “Mein Feriepartner”- Link in der Buchungsbestätigung erhalten Sie Zugang zu Ihrer Buchung und können im Fenster der Schlüsselübergabe 48 Stunden vor Anreise einen Zugangscode einsehen, über welchen Sie den Schlüssel am Haus erhalten.
Ab wann ist das Haus bezugsbereit?
Die Ferienhäuser werden zwischen 10 Uhr und 16 Uhr gereinigt und sind spätestens ab 16 Uhr bezugsbereit. Wann Ihr Ferienhaus am Anreisetag gereinigt wird, entscheidet das Büro vor Ort kurz vorher, in Absprache mit dem Servicepersonal und der effektivsten Route für die Servicekräfte. Sobald Ihr Ferienhaus bezugsbereit ist, erhalten Sie, sofern Ihre Mobilnummer korrekt angegeben ist, eine SMS von Feriepartner mit dem Bescheid und allen wichtigen Informationen zum Beziehen Ihres Ferienhauses.
Wie läuft die Bezahlung ab?
Nach Aufgabe der Buchung und Bestätigung seitens Feriepartner wird die erste Rate in Höhe von 25 % des Mietpreises auf Ihrem Mietvertrag sofort fällig. Sie können die Raten und Beträge im Mietvertrag oder über “Mein Feriepartner” einsehen. Bis 70 Tage vor Anreise ist die Frist für den noch offenen Restbetrag Ihrer Buchung. Sind weniger als 70 Tage bis zur Anreise, wird der gesamte Betrag in einer Rate fällig.
Wie sind die Umbuchungs- / Stornierungsbedingungen?
Bei Feriepartner ist eine Reiserücktrittsversicherung immer im Mietpreis inklusive enthalten. Sie erhalten Informationen zu den Bedingungen nach Abschluss der Buchung oder bei der Versicherungsgesellschaft Tryg A/S. Bei Stornierungen ohne den Gebrauch der Reiserücktrittsversicherung werden bis 70 Tage vor Anreise 25 % des Mietpreises fällig. Dies entspricht der ersten Rate. Ab 70 Tagen vor Anreise bis zum Anreisetag werden 80 % fällig, ab dem Anreisetag 100 %. Umbuchungen können bei Feriepartner gegen eine Gebühr von 70 € bis 70 Tage vor Anreise vorgenommen werden, allerdings nur im gleichen Kalenderjahr.
Wann erhalte ich meine Nebenkostenabrechnung?
Die Abrechnung geschieht, sofern Feriepartner alle Informationen korrekt vorliegen, innerhalb von 14 Tagen nach Abreise. Denken Sie daran Ihre IBAN und BIC bei Feriepartner zu hinterlegen, sofern Sie per Banküberweisung gezahlt haben, damit Feriepartner einen eventuellen Restbetrag auf Ihr Konto zurück überweisen kann.
Jugendgruppen unter 25 Jahren?
Bei Feriepartner gilt eine Jugendgruppe ab 3 Personen und bis 25 Jahre der einzelnen Mitreisenden. Zwei Personen unter 25 Jahre gelten i. d. R. nicht als Jugendgruppe. In speziellen Fällen können wir individuell für Sie anfragen.