Ferienhaus 70851 in Havnevej 12 Lejl. 13, Thorsminde
Willkommen in deinem Ferienhaus
Freuen Sie sich auf einen wunderbaren Urlaub in dieser charmanten Ferienwohnung an der Hafenfront von Thorsminde, genau dort, wo der Nissum Fjord auf die Nordsee trifft. Die Wohnung erstreckt sich über zwei Etagen und bietet modernen Komfort sowie eine gemütliche Einrichtung – ideal für Familien und Freundesgruppen.
Die Küche im Erdgeschoss ist modern und funktional und bietet Platz für sechs Personen. Vom Wohnzimmer aus genießen Sie den Blick auf den Fjord. Das Badezimmer mit Whirlpool und Sauna lädt zur Entspannung nach einem aktiven Tag ein, und ein zusätzliches Bad mit Waschmaschine und Trockner macht den Urlaub noch komfortabler. Im Obergeschoss erwartet Sie ein helles Wohnzimmer mit Panoramablick und Zugang zum Balkon, wo Sie Sonne und Fjordblick genießen können.
Genieße das Leben im Freien
Der abgeschirmte Innenhof dient als private Oase mit komfortablen Gartenmöbeln und Liegestühlen – perfekt für den Morgenkaffee oder gemütliche Abende im Freien. Ein Geräteraum mit Gefrierschrank steht ebenfalls zur Verfügung, und ein privater Parkplatz befindet sich direkt an der Wohnung. Hier finden Sie alles, um Ihren Urlaub entspannt und bequem zu verbringen.
Entdecke deine Umgebung
Thorsminde ist ein Juwel an der dänischen Westküste mit weißen Sandstränden, Dünenlandschaften und Blick auf Fjord und Meer – nur 300 Meter von der Wohnung entfernt. Die Stadt bietet hervorragende Angelmöglichkeiten und ein lokales Räucherei mit frisch gefangenem Fisch. Naturliebhaber werden die Husby Klitplantage, eine kurze Autofahrt südlich, mit zahlreichen Wander- und Radwegen zu schätzen wissen. Thorsminde verbindet Entspannung, Naturerlebnisse und lokalen Charme – alles direkt vor der Haustür.
Hausbilder
Ausstattung
Allgemeines
- Anzahl Personen: 6
- Baujahr: 2006
- Grundstücksfläche: 300 m² Gemeinsamer Grundstück
- Nichtraucher
-
Tolle Aussicht Fjordblick
Meerblick - Wohnfläche: 107 m²
Entfernungen
- Abstand Einkauf: 300 m Ganzjährig geöffnet
- Abstand Strand: 300 m Sand-/Steinstrand
- Abstand Fjord: 50 m
Schlafbereich
- Anzahl Doppelbetten: 3
Küche
- Dunstabzug
- Geschirrspüler
- Herd
- Kaffeemaschine
- Tiefkühler: 85 l
- Wasserkocher
Bad
- Anzahl Duschen: 1
- Anzahl Toiletten: 2
- Trockner
- Waschmaschine
Wellness
- Sauna
- Whirlpool Innenwhirlpool
Multimedia
- Deutsches Fernsehen
- Internationales Fernsehen Dänisches Fernsehen
- Internationales Fernsehen
- Internet Kostenloses Wi-Fi - Mehr als 100 Mbit
Aussenbereich
- Gartenmöbel
- Grill
- Terrasse: 1 m² Geschlossene Terrasse
Sonstiges
- Bei diesem Haus inkl. Wasser
- Besonderheiten Gute Angelmöglichkeiten
- Kinderhochstuhl
- Das Aufladen von Elektroautos ist nicht erlaubt
- Sonstiges Chromecast
Neben- und Verbrauchskosten
Die aktuellen Verbrauchskosten finden Sie im nächsten Schritt im Buchungsformular.
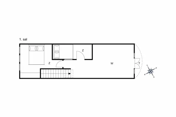
Raumaufteilung
Lageplan
Ferienhaus 70851
Havnevej 12 Lejl. 13
Thorsminde
6990 Ulfborg
Belegungskalender
- Reisedauer auswählen
- Anzahl Reisende auswählen
- Anreisetag im Belegungskalender anklicken
- Sie bekommen Verfügbarkeit und Preis angezeigt
| 2025 | 1 | 2 | 3 | 4 | 5 | 6 | 7 | 8 | 9 | 10 | 11 | 12 | 13 | 14 | 15 | 16 | 17 | 18 | 19 | 20 | 21 | 22 | 23 | 24 | 25 | 26 | 27 | 28 | 29 | 30 | 31 |
| Oktober | M | D | F | S | S | M | D | M | D | F | S | S | M | D | M | D | F | S | S | M | D | M | D | F | S | S | M | D | M | D | F |
| November | S | S | M | D | M | D | F | S | S | M | D | M | D | F | S | S | M | D | M | D | F | S | S | M | D | M | D | F | S | S | |
| Dezember | M | D | M | D | F | S | S | M | D | M | D | F | S | S | M | D | M | D | F | S | S | M | D | M | D | F | S | S | M | D | M |
| 2026 | 1 | 2 | 3 | 4 | 5 | 6 | 7 | 8 | 9 | 10 | 11 | 12 | 13 | 14 | 15 | 16 | 17 | 18 | 19 | 20 | 21 | 22 | 23 | 24 | 25 | 26 | 27 | 28 | 29 | 30 | 31 |
| Januar | D | F | S | S | M | D | M | D | F | S | S | M | D | M | D | F | S | S | M | D | M | D | F | S | S | M | D | M | D | F | S |
| Februar | S | M | D | M | D | F | S | S | M | D | M | D | F | S | S | M | D | M | D | F | S | S | M | D | M | D | F | S | |||
| März | S | M | D | M | D | F | S | S | M | D | M | D | F | S | S | M | D | M | D | F | S | S | M | D | M | D | F | S | S | M | D |
| April | M | D | F | S | S | M | D | M | D | F | S | S | M | D | M | D | F | S | S | M | D | M | D | F | S | S | M | D | M | D | |
| Mai | F | S | S | M | D | M | D | F | S | S | M | D | M | D | F | S | S | M | D | M | D | F | S | S | M | D | M | D | F | S | S |
| Juni | M | D | M | D | F | S | S | M | D | M | D | F | S | S | M | D | M | D | F | S | S | M | D | M | D | F | S | S | M | D | |
| Juli | M | D | F | S | S | M | D | M | D | F | S | S | M | D | M | D | F | S | S | M | D | M | D | F | S | S | M | D | M | D | F |
| August | S | S | M | D | M | D | F | S | S | M | D | M | D | F | S | S | M | D | M | D | F | S | S | M | D | M | D | F | S | S | M |
| September | D | M | D | F | S | S | M | D | M | D | F | S | S | M | D | M | D | F | S | S | M | D | M | D | F | S | S | M | D | M | |
| Oktober | D | F | S | S | M | D | M | D | F | S | S | M | D | M | D | F | S | S | M | D | M | D | F | S | S | M | D | M | D | F | S |
| November | S | M | D | M | D | F | S | S | M | D | M | D | F | S | S | M | D | M | D | F | S | S | M | D | M | D | F | S | S | M | |
| Dezember | D | M | D | F | S | S | M | D | M | D | F | S | S | M | D | M | D | F | S | S | M | D | M | D | F | S | S | M | D | M | D |
| 2027 | 1 | 2 | 3 | 4 | 5 | 6 | 7 | 8 | 9 | 10 | 11 | 12 | 13 | 14 | 15 | 16 | 17 | 18 | 19 | 20 | 21 | 22 | 23 | 24 | 25 | 26 | 27 | 28 | 29 | 30 | 31 |
| Januar | F | S | S | M | D | M | D | F | S | S | M | D | |||||||||||||||||||
FAQ
Wie hoch sind die Nebenkosten?
Die Kosten für Strom, Wasser, (bei einigen Häusern Gas) werden nach tagesaktuellen Preisen abgerechnet und hängen von vielen verschiedenen Faktoren ab, wie zum Beispiel Anzahl Personen, Größe des Hauses oder Ausstattung. In der Regel lässt sich sagen, dass ein Standardhaus ohne Pool, Whirlpool und Sauna im Sommer ca. 5 kWh pro Person pro Tag verbraucht. Im Winter gerne bei 10 kWh und darüber. Bei Poolhäusern mit Whirlpool und Sauna liegt der Wert im Sommer bei ca. 20 kWh und im Winter ca. bei 40 kWh. Auch hier variieren die Preise stark von Größe des Pools, Ausstattung, Größe des Hauses, Modell des Whirlpools und individuellem Verbrauch im Haus. Der Wasserverbrauch variiert ebenfalls stark und kann bei ca. 0,1-0,2 m³ pro Person pro Tag in einem Standardhaus liegen und bei Poolhäusern bei ca. 0,4-0,5 m³. Wenn eine Kaution bei der Buchung angegeben ist, ist diese angepasst an den ungefähren Durchschnittsverbrauch an Nebenkosten im Haus.
Alle Angaben ohne Gewähr und dienen lediglich als Richtwert und nicht als tatsächliche Prognose.
Kann ich das Haus reservieren?
Reservierungen sind in der Regel nicht möglich. In einigen Fällen ist es uns jedoch möglich, Reservierungen zu erstellen. Fragen Sie gerne direkt bei uns an, ob für dieses Haus eine Reservierung möglich ist.
Wie bekomme ich den Schlüssel für das Ferienhaus?
Mittlerweile sind bei fast allen Feriepartner Ferienhäusern Schlüsselboxen an den Häusern angebracht. Über den “Mein Feriepartner”- Link in der Buchungsbestätigung erhalten Sie Zugang zu Ihrer Buchung und können im Fenster der Schlüsselübergabe 48 Stunden vor Anreise einen Zugangscode einsehen, über welchen Sie den Schlüssel am Haus erhalten.
Ab wann ist das Haus bezugsbereit?
Die Ferienhäuser werden zwischen 10 Uhr und 16 Uhr gereinigt und sind spätestens ab 16 Uhr bezugsbereit. Wann Ihr Ferienhaus am Anreisetag gereinigt wird, entscheidet das Büro vor Ort kurz vorher, in Absprache mit dem Servicepersonal und der effektivsten Route für die Servicekräfte. Sobald Ihr Ferienhaus bezugsbereit ist, erhalten Sie, sofern Ihre Mobilnummer korrekt angegeben ist, eine SMS von Feriepartner mit dem Bescheid und allen wichtigen Informationen zum Beziehen Ihres Ferienhauses.
Wie läuft die Bezahlung ab?
Nach Aufgabe der Buchung und Bestätigung seitens Feriepartner wird die erste Rate in Höhe von 25 % des Mietpreises auf Ihrem Mietvertrag sofort fällig. Sie können die Raten und Beträge im Mietvertrag oder über “Mein Feriepartner” einsehen. Bis 70 Tage vor Anreise ist die Frist für den noch offenen Restbetrag Ihrer Buchung. Sind weniger als 70 Tage bis zur Anreise, wird der gesamte Betrag in einer Rate fällig.
Wie sind die Umbuchungs- / Stornierungsbedingungen?
Bei Feriepartner ist eine Reiserücktrittsversicherung immer im Mietpreis inklusive enthalten. Sie erhalten Informationen zu den Bedingungen nach Abschluss der Buchung oder bei der Versicherungsgesellschaft Tryg A/S. Bei Stornierungen ohne den Gebrauch der Reiserücktrittsversicherung werden bis 70 Tage vor Anreise 25 % des Mietpreises fällig. Dies entspricht der ersten Rate. Ab 70 Tagen vor Anreise bis zum Anreisetag werden 80 % fällig, ab dem Anreisetag 100 %. Umbuchungen können bei Feriepartner gegen eine Gebühr von 70 € bis 70 Tage vor Anreise vorgenommen werden, allerdings nur im gleichen Kalenderjahr.
Wann erhalte ich meine Nebenkostenabrechnung?
Die Abrechnung geschieht, sofern Feriepartner alle Informationen korrekt vorliegen, innerhalb von 14 Tagen nach Abreise. Denken Sie daran Ihre IBAN und BIC bei Feriepartner zu hinterlegen, sofern Sie per Banküberweisung gezahlt haben, damit Feriepartner einen eventuellen Restbetrag auf Ihr Konto zurück überweisen kann.
Jugendgruppen unter 25 Jahren?
Bei Feriepartner gilt eine Jugendgruppe ab 3 Personen und bis 25 Jahre der einzelnen Mitreisenden. Zwei Personen unter 25 Jahre gelten i. d. R. nicht als Jugendgruppe. In speziellen Fällen können wir individuell für Sie anfragen.