
Ferienhaus 71200 in Havnevej 12 nr. 8, Thorsminde
Willkommen in deinem Ferienhaus
Dieses helle, einladende Ferienreihenhaus mit zwei Etagen lädt zu schönen Urlaubstagen ein. Es eignet sich bestens für Urlauber, die von Komfort, Gemütlichkeit und einer ansprechenden Umgebung träumen. Das Erdgeschoss begrüßt dich mit zwei schönen Schlafräumen mit je einem Doppelbett, mit einem Gäste-WC und einem tollen Badezimmer. Letztgenanntes lädt dich nach langen, aktiven Urlaubstagen mit seinem Whirlpool, der Sauna und der Dusche zu erholsamen Momenten voller Wellnessflair ein. Im Obergeschoss erwartet dich ein großer, heller Raum, der die Küche und den Aufenthaltsbereich offen in sich vereint. In der gut ausgestatteten Küche wird die Zubereitung der täglichen Mahlzeiten zum reinen Vergnügen. Der am anderen Ende des Raumes befindliche Aufenthaltsbereich überzeugt mit komfortablen Polstersitzmöbeln, einem Kaminofen und Zugang zu einem kleinen Balkon. Begeistern wird dich die herrliche Aussicht auf die Schleuse und den Nissum Fjord. Dieses Ferienhaus verzaubert mit einer gelungenen Kombination aus Charme, Luxus und Naturerlebnis.
Genieße das Leben im Freien
Hinter dem leuchtend roten Reihenhauskomplex befindet sich ein Gemeinschaftsparkplatz, auf dem du bequem und unweit deines Urlaubsdomizils dein Auto parken kannst. Hinter der Eingangspforte zu deinem Haus begrüßt dich ein kleiner geschlossener Innenhof, der mit viel Privatsphäre zu überzeugen weiß. Hier kannst du morgens in aller Ruhe den ersten Becher Kaffee trinken und ruhige Stunden in der Abendsonne genießen. An den Innenhof schließt ein praktischer Geräteschuppen, in dem du deine Angelausrüstung, Strandspielzeug und Fahrräder unterbringen kannst. Vor der Küche im ersten Stock erstreckt sich eine sonnenverwöhnte Südterrasse mit schönen, komfortablen Gartenmöbeln. Auf dieser kannst du dich in der Sonne niederlassen und den gesamten Tag über die frische Seeluft genießen. Zwischendurch nimmst du sicherlich gern ein spannendes Buch zur Hand oder deckst den Gartentisch für ein stimmungsvolles Abendessen unter freiem Himmel. Unvergesslichen und entspannten Tagen steht hier absolut nichts im Wege.
Entdecke deine Umgebung
Willkommen in dieser schönen Urlaubsoase - einem hübschen Reihenhaus im Herzen des reizenden kleinen Hafenortes Thorsminde, nur 50 Meter abseits des Nissum Fjords. Du bist während deines Aufenthalts von Wasser, Natur und Ruhe umgeben. Lediglich 300 Meter trennen dich und deine Lieben von der majestätischen Nordsee und ihrem breiten Badestrand. Ganz gleich, ob du deinen Urlaub im Sommer oder im Winter in Thorsminde verbringst, dich erwarten das gesamte Jahr hindurch fantastische Naturerlebnisse direkt vor der Tür - perfekt für lange Spaziergänge, erfrischende Bäder und Erholung an der frischen Seeluft. Unter Anglern gilt Thorsminde aufgrund der vielen tollen Fangplätze als wahres Paradies. Ein Kulturerlebnis erster Güte verspricht Thorsmindes einzigartiges Strandungsmuseum St. George, das seinen großen und kleinen Besuchern die dramatischen Schiffstrandungen vor diesem Küstenabschnitt auf faszinierende und bewegende Weise näherbringt. Deine täglichen Einkäufe erledigst du das gesamte Jahr hindurch beim kleinen Lebensmittelgeschäft des Hafenortes. Freue dich bereits jetzt auf deinen Urlaub in diesem waschechten Westküstenidyll, bei dem Natur, Erlebnisse und Erholung Hand in Hand gehen.
Hausbilder
Ausstattung
Allgemeines
- Anzahl Personen: 4
- Baujahr: 2010
- Grundstücksfläche: 50 m² Gemeinsamer Grundstück
- Nichtraucher
-
Tolle Aussicht Fjordblick
Meerblick
Panorama - Wohnfläche: 117 m²
Entfernungen
- Abstand Einkauf: 300 m Ganzjährig geöffnet
- Abstand Golfplatz: 16.000 m
- Abstand Restaurant: 300 m
- Abstand Strand: 300 m Sand-/Steinstrand
- Abstand Fjord: 50 m
Wohnbereich
- Kaminofen
Schlafbereich
- Anzahl Doppelbetten: 2
Küche
- Dunstabzug
- Extra Backofen
- Geschirrspüler
- Kaffeemaschine
- Kochplatten: 1 elektrische
- Tiefkühler: 100 l
- Wasserkocher
Bad
- Anzahl Duschen: 1
- Anzahl Toiletten: 1
- Anzahl Toiletten: 1
- Trockner
- Waschmaschine
Wellness
- Sauna
- Whirlpool Innenwhirlpool
Multimedia
- Deutsches Fernsehen
- Internationales Fernsehen Dänisches Fernsehen
- Internet Kostenloses Wi-Fi - Mehr als 20 Mbit
Aussenbereich
- Gartenmöbel
- Grill
- Terrasse: 20 m² Geschlossene Terrasse
Sonstiges
- Anglerfreundlich
- Balkon: 10 m²
- Bei diesem Haus inkl. Wasser
- Besonderheiten Gute Angelmöglichkeiten
- Kinderbett
- Kinderhochstuhl
- Das Aufladen von Elektroautos ist nicht erlaubt
Neben- und Verbrauchskosten
Die aktuellen Verbrauchskosten finden Sie im nächsten Schritt im Buchungsformular.
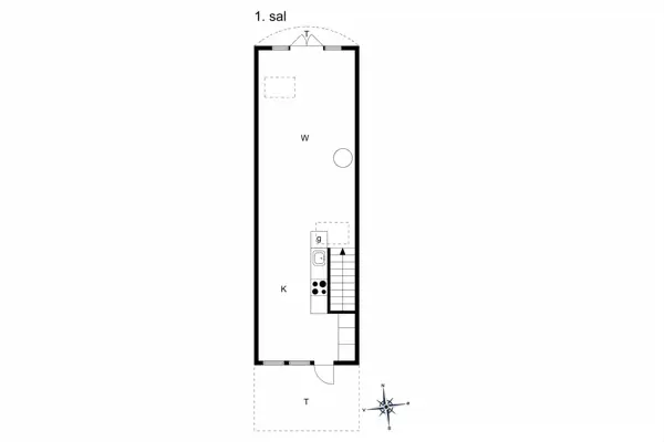
Raumaufteilung



Lageplan
Ferienhaus 71200
Havnevej 12 nr. 8
Thorsminde
6990 Ulfborg
Belegungskalender
- Reisedauer auswählen
- Anzahl Reisende auswählen
- Anreisetag im Belegungskalender anklicken
- Sie bekommen Verfügbarkeit und Preis angezeigt
2025 | 1 | 2 | 3 | 4 | 5 | 6 | 7 | 8 | 9 | 10 | 11 | 12 | 13 | 14 | 15 | 16 | 17 | 18 | 19 | 20 | 21 | 22 | 23 | 24 | 25 | 26 | 27 | 28 | 29 | 30 | 31 |
Oktober | M | D | F | S | S | M | D | M | D | F | S | S | M | D | M | D | F | S | S | M | D | M | D | F | S | S | M | D | M | D | F |
November | S | S | M | D | M | D | F | S | S | M | D | M | D | F | S | S | M | D | M | D | F | S | S | M | D | M | D | F | S | S | |
Dezember | M | D | M | D | F | S | S | M | D | M | D | F | S | S | M | D | M | D | F | S | S | M | D | M | D | F | S | S | M | D | M |
2026 | 1 | 2 | 3 | 4 | 5 | 6 | 7 | 8 | 9 | 10 | 11 | 12 | 13 | 14 | 15 | 16 | 17 | 18 | 19 | 20 | 21 | 22 | 23 | 24 | 25 | 26 | 27 | 28 | 29 | 30 | 31 |
Januar | D | F | S | S | M | D | M | D | F | S | S | M | D | M | D | F | S | S | M | D | M | D | F | S | S | M | D | M | D | F | S |
Februar | S | M | D | M | D | F | S | S | M | D | M | D | F | S | S | M | D | M | D | F | S | S | M | D | M | D | F | S | |||
März | S | M | D | M | D | F | S | S | M | D | M | D | F | S | S | M | D | M | D | F | S | S | M | D | M | D | F | S | S | M | D |
April | M | D | F | S | S | M | D | M | D | F | S | S | M | D | M | D | F | S | S | M | D | M | D | F | S | S | M | D | M | D | |
Mai | F | S | S | M | D | M | D | F | S | S | M | D | M | D | F | S | S | M | D | M | D | F | S | S | M | D | M | D | F | S | S |
Juni | M | D | M | D | F | S | S | M | D | M | D | F | S | S | M | D | M | D | F | S | S | M | D | M | D | F | S | S | M | D | |
Juli | M | D | F | S | S | M | D | M | D | F | S | S | M | D | M | D | F | S | S | M | D | M | D | F | S | S | M | D | M | D | F |
August | S | S | M | D | M | D | F | S | S | M | D | M | D | F | S | S | M | D | M | D | F | S | S | M | D | M | D | F | S | S | M |
September | D | M | D | F | S | S | M | D | M | D | F | S | S | M | D | M | D | F | S | S | M | D | M | D | F | S | S | M | D | M | |
Oktober | D | F | S | S | M | D | M | D | F | S | S | M | D | M | D | F | S | S | M | D | M | D | F | S | S | M | D | M | D | F | S |
November | S | M | D | M | D | F | S | S | M | D | M | D | F | S | S | M | D | M | D | F | S | S | M | D | M | D | F | S | S | M | |
Dezember | D | M | D | F | S | S | M | D | M | D | F | S | S | M | D | M | D | F | S | S | M | D | M | D | F | S | S | M | D | M | D |
2027 | 1 | 2 | 3 | 4 | 5 | 6 | 7 | 8 | 9 | 10 | 11 | 12 | 13 | 14 | 15 | 16 | 17 | 18 | 19 | 20 | 21 | 22 | 23 | 24 | 25 | 26 | 27 | 28 | 29 | 30 | 31 |
Januar | F | S | S | M | D | M | D | F | S | S | M | D |
FAQ
Wie hoch sind die Nebenkosten?
Die Kosten für Strom, Wasser, (bei einigen Häusern Gas) werden nach tagesaktuellen Preisen abgerechnet und hängen von vielen verschiedenen Faktoren ab, wie zum Beispiel Anzahl Personen, Größe des Hauses oder Ausstattung. In der Regel lässt sich sagen, dass ein Standardhaus ohne Pool, Whirlpool und Sauna im Sommer ca. 5 kWh pro Person pro Tag verbraucht. Im Winter gerne bei 10 kWh und darüber. Bei Poolhäusern mit Whirlpool und Sauna liegt der Wert im Sommer bei ca. 20 kWh und im Winter ca. bei 40 kWh. Auch hier variieren die Preise stark von Größe des Pools, Ausstattung, Größe des Hauses, Modell des Whirlpools und individuellem Verbrauch im Haus. Der Wasserverbrauch variiert ebenfalls stark und kann bei ca. 0,1-0,2 m³ pro Person pro Tag in einem Standardhaus liegen und bei Poolhäusern bei ca. 0,4-0,5 m³. Wenn eine Kaution bei der Buchung angegeben ist, ist diese angepasst an den ungefähren Durchschnittsverbrauch an Nebenkosten im Haus.
Alle Angaben ohne Gewähr und dienen lediglich als Richtwert und nicht als tatsächliche Prognose.
Kann ich das Haus reservieren?
Reservierungen sind in der Regel nicht möglich. In einigen Fällen ist es uns jedoch möglich, Reservierungen zu erstellen. Fragen Sie gerne direkt bei uns an, ob für dieses Haus eine Reservierung möglich ist.
Wie bekomme ich den Schlüssel für das Ferienhaus?
Mittlerweile sind bei fast allen Feriepartner Ferienhäusern Schlüsselboxen an den Häusern angebracht. Über den “Mein Feriepartner”- Link in der Buchungsbestätigung erhalten Sie Zugang zu Ihrer Buchung und können im Fenster der Schlüsselübergabe 48 Stunden vor Anreise einen Zugangscode einsehen, über welchen Sie den Schlüssel am Haus erhalten.
Ab wann ist das Haus bezugsbereit?
Die Ferienhäuser werden zwischen 10 Uhr und 16 Uhr gereinigt und sind spätestens ab 16 Uhr bezugsbereit. Wann Ihr Ferienhaus am Anreisetag gereinigt wird, entscheidet das Büro vor Ort kurz vorher, in Absprache mit dem Servicepersonal und der effektivsten Route für die Servicekräfte. Sobald Ihr Ferienhaus bezugsbereit ist, erhalten Sie, sofern Ihre Mobilnummer korrekt angegeben ist, eine SMS von Feriepartner mit dem Bescheid und allen wichtigen Informationen zum Beziehen Ihres Ferienhauses.
Wie läuft die Bezahlung ab?
Nach Aufgabe der Buchung und Bestätigung seitens Feriepartner wird die erste Rate in Höhe von 25 % des Mietpreises auf Ihrem Mietvertrag sofort fällig. Sie können die Raten und Beträge im Mietvertrag oder über “Mein Feriepartner” einsehen. Bis 70 Tage vor Anreise ist die Frist für den noch offenen Restbetrag Ihrer Buchung. Sind weniger als 70 Tage bis zur Anreise, wird der gesamte Betrag in einer Rate fällig.
Wie sind die Umbuchungs- / Stornierungsbedingungen?
Bei Feriepartner ist eine Reiserücktrittsversicherung immer im Mietpreis inklusive enthalten. Sie erhalten Informationen zu den Bedingungen nach Abschluss der Buchung oder bei der Versicherungsgesellschaft Tryg A/S. Bei Stornierungen ohne den Gebrauch der Reiserücktrittsversicherung werden bis 70 Tage vor Anreise 25 % des Mietpreises fällig. Dies entspricht der ersten Rate. Ab 70 Tagen vor Anreise bis zum Anreisetag werden 80 % fällig, ab dem Anreisetag 100 %. Umbuchungen können bei Feriepartner gegen eine Gebühr von 70 € bis 70 Tage vor Anreise vorgenommen werden, allerdings nur im gleichen Kalenderjahr.
Wann erhalte ich meine Nebenkostenabrechnung?
Die Abrechnung geschieht, sofern Feriepartner alle Informationen korrekt vorliegen, innerhalb von 14 Tagen nach Abreise. Denken Sie daran Ihre IBAN und BIC bei Feriepartner zu hinterlegen, sofern Sie per Banküberweisung gezahlt haben, damit Feriepartner einen eventuellen Restbetrag auf Ihr Konto zurück überweisen kann.
Jugendgruppen unter 25 Jahren?
Bei Feriepartner gilt eine Jugendgruppe ab 3 Personen und bis 25 Jahre der einzelnen Mitreisenden. Zwei Personen unter 25 Jahre gelten i. d. R. nicht als Jugendgruppe. In speziellen Fällen können wir individuell für Sie anfragen.