Ferienhaus 435 in Nordvej 63 B, Vejers Strand
Dieses teilweise reetgedeckte Ferienhaus bietet für seine 6 Bewohner alles was sie im Urlaub benötigen. Die Räumlichkeiten sind über drei Ebenen verteilt und sehr geschmackvoll eingerichtet. Es Liegt auf einer Düne und bietet vom oberen Wohnzimmer aus einen tollen Panoramablick auf das Meer. Es ist nur 100 Meter vom Strand entfernt, den Sie dann z.B. über die Dünenkette erreichen können. Die geschlossene Terrasse am Haus gibt Ihnen die Möglichkeit Ihre Vierbeiner mal frische Luft schnappen zu lassen, ohne das sie dann stiften gehen können. Das Erdgeschoss ist mit einer mediterranen Bodenfliese verlegt und im Wohnbereich des Hauses haben Sie den Kamin hängend von der Wand. Das ist nicht üblich und bringt ein gewisses Ambiente mit. Sie können Ihre Abende bei einem Gläschen Wein auf der gemütlichen Rundecke genießen und dabei das Lodern der Flammen beobachten. Alles im Hause ist stimmig und farblich gut abgestimmt, ob es die Möbel, die Gardinen oder die Farbwahl der Wände ist. Es passt einfach alles zusammen. Deutsches Fernsehprogramm empfangen Sie über eine Parabol-Antenne. Der Eingangsbereich ist in Eckform und ähnelt einem Wintergarten. Durch die große Fensterfront wird der Eingangsbereich licht durchflutet und bietet viel Platz. Der nicht reetgedeckte Anbau im Erdgeschoss dient als Wintergarten und ist mit einer hübschen stilvollen Sofagarnitur ausgestattet. Es hat ein doppeltflügiges Türelement und daher einen besonderen Charme. Die offene Küche ist mit einem Herd mit Cerankochfeld, einem Backofen, einer Geschirrspülmaschine und einer neuen Kühl- und Gefrierkombination (3 Fächer) ausgestattet. Angrenzend bietet Sie genügend Platz für den großen Esstisch. Hier haben alle Bewohner genügend Platz und können dem Geschehen in der Küche beiwohnen. Drei Schlafzimmer: DB + DB + DB. Ein Schlafzimmer mit Doppelbett (Maß 2 mal 90x200) befindet sich auch hier im Erdgeschoss. Im Kellergeschoss befindet sich nur das große Badezimmer mit einem WC, einem Handwaschbecken, einer Dusche, die Sauna und dem Whirlpool. Ebenfalls sind die Waschmaschine und der Trockner hier untergebracht. Über die offene Treppe zwischen Wohn- und Essbereich gelangen Sie dann vom Erdgeschoss in das Obergeschoss. Hier haben wir in weiteres Badezimmer mit WC, Handwaschbecken und einer Dusche. Zwei weitere Schlafzimmer mit jeweils einem Doppelbett in den gleichen Massen befinden sich auch hier im Obergeschoss. Der obere Wohnbereich ist mit der gleichen Sofagarnitur wie im Wintergarten stilvoll eingerichtet. Auch hier empfangen Sie deutsches Fernsehgrogramm. Es sind zwei große Dachfenster und ein großes Fensterelement vorhanden. Wenn Sie hier raus schauen haben Sie den wundervollen Panoramablick auf das Meer, die Dünenkette und das Ferienhausgebiet. Das Rauchen ist nicht gestattet. Das Ferienhaus ist 1999 erbaut und wurde 2010 renoviert. Das Ferienhaus verfügt über einen Internetanschluss (W-Lan). Es sind max. 3 Haustiere erlaubt.
HAUSTIERE:
Hunde erlaubt.
GUT ZU WISSEN:
Keine Vermietung an Jugendgruppen.
Kostenlose Parkplätze vor dem Haus.
Geschlossene Terrasse.
Verbrauchsabrechnung nach Ablesung.
Der Wasserverbrauch ist im Preis inbegriffen.
Die Reinigung ist im Preis inbegriffen.
3 Schlafzimmer mit Doppelbett 180x200 cm.
Es ist möglich, ein Kinderbett und Hochstuhl aus dem Büro zu leihen.
Spa und Sauna.
Bettwäsche ist nicht inbegriffen, kann aber gekauft werden.
NÄCHSTE EINKAUFSMÖGLICHKEITEN:
Bäckerei 1,3 km vom Ferienhaus entfernt. Supermarkt "Storkøb" 1,1 km vom Ferienhaus entfernt.
ÖFFENTLICHE VERKEHRSMITTEL:
Der nächstgelegene Bahnhof befindet sich in Oksbøl, ca. 10 km von Vejers entfernt.
Hausbilder
Ausstattung
Allgemeines
- Anzahl Haustiere maximal: 3
- Anzahl Personen: 6
- Baujahr: 1999
- Haustiere erlaubt
- Nichtraucher
- Renovierung: 2010
- Wohnfläche: 208 m²
Entfernungen
- Abstand Einkauf: 700 m
- Abstand Restaurant: 700 m
- Abstand Strand: 100 m
Wohnbereich
- Kaminofen
Schlafbereich
- Anzahl Schlafzimmer: 3
Küche
- Geschirrspüler
- Tiefkühler: 1 Kühl-/Gefrierschrank
Bad
- Anzahl Extraduschen: 1 1
- Anzahl Extratoiletten: 1
- Trockner
- Waschmaschine
Wellness
- Sauna
- Whirlpool
Multimedia
- Deutsches Fernsehen
- Internationales Fernsehen
- Internet
Aussenbereich
- Terrasse, geschlossen
Neben- und Verbrauchskosten
Die aktuellen Verbrauchskosten finden Sie im nächsten Schritt im Buchungsformular.
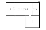
Raumaufteilung
Lageplan
Ferienhaus 435
Nordvej 63 B
6853 Vejers Strand
Belegungskalender
- Reisedauer auswählen
- Anzahl Reisende auswählen
- Anreisetag im Belegungskalender anklicken
- Sie bekommen Verfügbarkeit und Preis angezeigt
| 2026 | 1 | 2 | 3 | 4 | 5 | 6 | 7 | 8 | 9 | 10 | 11 | 12 | 13 | 14 | 15 | 16 | 17 | 18 | 19 | 20 | 21 | 22 | 23 | 24 | 25 | 26 | 27 | 28 | 29 | 30 | 31 |
| Mai | F | S | S | M | D | M | D | F | S | S | M | D | M | D | F | S | S | M | D | M | D | F | S | S | M | D | M | D | F | S | S |
| Juni | M | D | M | D | F | S | S | M | D | M | D | F | S | S | M | D | M | D | F | S | S | M | D | M | D | F | S | S | M | D | |
| Juli | M | D | F | S | S | M | D | M | D | F | S | S | M | D | M | D | F | S | S | M | D | M | D | F | S | S | M | D | M | D | F |
| August | S | S | M | D | M | D | F | S | S | M | D | M | D | F | S | S | M | D | M | D | F | S | S | M | D | M | D | F | S | S | M |
| September | D | M | D | F | S | S | M | D | M | D | F | S | S | M | D | M | D | F | S | S | M | D | M | D | F | S | S | M | D | M | |
| Oktober | D | F | S | S | M | D | M | D | F | S | S | M | D | M | D | F | S | S | M | D | M | D | F | S | S | M | D | M | D | F | S |
| November | S | M | D | M | D | F | S | S | M | D | M | D | F | S | S | M | D | M | D | F | S | S | M | D | M | D | F | S | S | M | |
| Dezember | D | M | D | F | S | S | M | D | M | D | F | S | S | M | D | M | D | F | S | S | M | D | M | D | F | S | S | M | D | M | D |
| 2027 | 1 | 2 | 3 | 4 | 5 | 6 | 7 | 8 | 9 | 10 | 11 | 12 | 13 | 14 | 15 | 16 | 17 | 18 | 19 | 20 | 21 | 22 | 23 | 24 | 25 | 26 | 27 | 28 | 29 | 30 | 31 |
| Januar | F | S | S | M | D | M | D | F | S | S | M | D | M | D | F | S | S | M | D | M | D | F | S | S | M | D | M | D | F | S | S |
| Februar | M | D | M | D | F | S | S | M | D | M | D | F | S | S | M | D | M | D | F | S | S | M | D | M | D | F | S | S | |||
| März | M | D | M | D | F | S | S | M | D | M | D | F | S | S | M | D | M | D | F | S | S | M | D | M | D | F | S | S | M | D | M |
| April | D | F | S | S | M | D | M | D | F | S | S | M | D | M | D | F | S | S | M | D | M | D | F | S | S | M | D | M | D | F | |
| Mai | S | S | M | D | M | D | F | S | S | M | D | M | D | F | S | S | M | D | M | D | F | S | S | M | D | M | D | F | S | S | M |
| Juni | D | M | D | F | S | S | M | D | M | D | F | S | S | M | D | M | D | F | S | S | M | D | M | D | F | S | S | M | D | M | |
| Juli | D | F | S | S | M | D | M | D | F | S | S | M | D | M | D | F | S | S | M | D | M | D | F | S | S | M | D | M | D | F | S |
| August | S | M | D | M | D | F | S | S | M | D | M | D | F | S | S | M | D | M | D | F | S | S | M | D | M | D | F | S | S | M | D |
| September | M | D | F | S | S | M | D | M | D | F | S | S | M | D | M | D | F | S | S | M | D | M | D | F | S | S | M | D | M | D | |
| Oktober | F | S | S | M | D | M | D | F | S | S | M | D | M | D | F | S | S | M | D | M | D | F | S | S | M | D | M | D | F | S | S |
| November | M | D | M | D | F | S | S | M | D | M | D | F | S | S | M | D | M | D | F | S | S | M | D | M | D | F | S | S | M | D | |
| Dezember | M | D | F | S | S | M | D | M | D | F | S | S | M | D | M | D | F | S | S | M | D | M | D | F | S | S | M | D | M | D | F |
| 2028 | 1 | 2 | 3 | 4 | 5 | 6 | 7 | 8 | 9 | 10 | 11 | 12 | 13 | 14 | 15 | 16 | 17 | 18 | 19 | 20 | 21 | 22 | 23 | 24 | 25 | 26 | 27 | 28 | 29 | 30 | 31 |
| Januar | S | S | M | D | M | D | F | S | S | M | D | M | D | F | S | S | M | D | M | D | F | S | S | M | D | M | D | F | S | S | M |
| Februar | D | M | D | F | S | S | M | D | M | D | F | S | S | M | D | M | D | F | S | S | M | D | M | D | F | S | S | M | D | ||
| März | M | D | F | S | S | M | D | M | D | F | S | S | M | D | M | D | F | S | S | M | D | M | D | F | S | S | M | D | M | D | F |
| April | S | S | M | D | M | D | F | S | S | M | D | M | D | F | S | S | M | D | M | D | F | S | S | M | D | M | D | F | S | S | |
| Mai | M | D | M | D | F | S | S | M | D | M | D | F | S | S | M | D | M | D | F | S | S | M | D | M | D | F | S | S | M | D | M |
| Juni | D | F | S | S | M | D | M | D | F | S | S | M | D | M | D | F | S | S | M | D | M | D | F | S | S | M | D | M | D | F | |
| Juli | S | S | M | D | M | D | F | S | S | M | D | M | D | F | S | S | M | D | M | D | F | S | S | M | D | M | D | F | S | S | M |
| August | D | M | D | F | S | S | M | D | M | D | F | S | S | M | D | M | D | F | S | S | M | D | M | D | F | S | S | M | D | M | D |
| September | F | S | S | M | D | M | D | F | S | S | M | D | M | D | F | S | S | M | D | M | D | F | S | S | M | D | M | D | F | S | |
| Oktober | S | M | D | M | D | F | S | S | M | D | M | D | F | S | S | M | D | M | D | F | S | S | M | D | M | D | F | S | S | M | D |
| November | M | D | F | S | S | M | D | M | D | F | S | S | M | D | M | D | F | S | S | M | D | M | D | F | S | S | M | D | M | D | |
| Dezember | F | S | S | M | D | M | D | F | S | S | M | D | M | D | F | S | S | M | D | M | D | F | S | S | M | D | M | D | F | S | S |
| 2029 | 1 | 2 | 3 | 4 | 5 | 6 | 7 | 8 | 9 | 10 | 11 | 12 | 13 | 14 | 15 | 16 | 17 | 18 | 19 | 20 | 21 | 22 | 23 | 24 | 25 | 26 | 27 | 28 | 29 | 30 | 31 |
| Januar | M | D | M | D | F | S | S | M | D | M | D | F | S | S | M | D | M | D | F | S | S | M | D | M | D | F | S | S | M | D | M |
| Februar | D | F | S | S | M | D | M | D | F | S | S | M | D | M | D | F | S | S | M | D | M | D | F | S | S | M | D | M | |||
| März | D | F | S | S | M | D | M | D | F | S | S | M | D | M | D | F | S | S | M | D | M | D | F | S | S | M | D | M | D | F | S |
| April | S | M | D | M | D | F | S | S | M | D | M | D | F | S | S | M | D | M | D | F | S | S | M | D | M | D | F | S | S | M | |
| Mai | D | M | D | F | S | S | M | D | M | D | F | S | S | M | D | M | D | F | S | S | M | D | |||||||||