Ferienhaus 051 in Risvej 20 A, Vejers Strand
Dieses moderne und grossartige Ferienhaus liegt nördlich. im Dünenbereich, nicht weit von Einkaufsmöglichkeiten und Strand entfernt. Die grosse geschlossene Holzterrasse hat viele sonnige und auch schattige Plätze, wo man sich richtig erholen oder auch ein tolles Sonnenbad genießen kann.
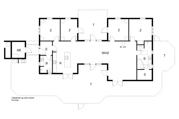
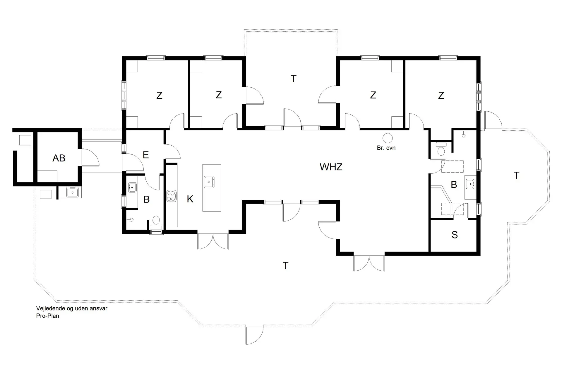
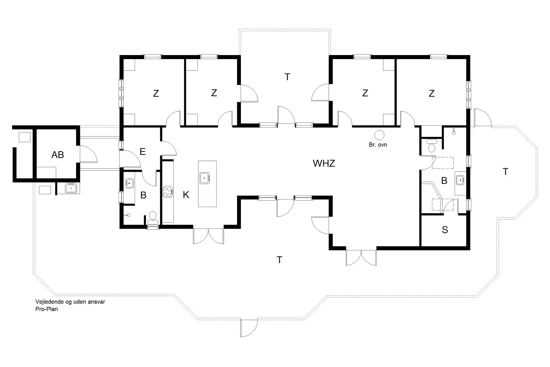
Der Wohn- und Essbereich bietet viel Platz für die 8 Personen und ist hell und freundlich ausgestattet. Im gemütlichem Wohnbereich kann man das Knistern des Holzes im Kamin beobachten. Der Kamin gibt eine wohlige Wärme ab. Das ganze Ferienhaus verfügt über Fußbodenheizung. Deutsches Fernsehprogramm ist über eine Parabol-Antenne zu empfangen, ebenso können dänische Programme empfangen werden. Der Essbereich ist mit einem Oberlicht versehen und daher licht durchflutet. Die offene Wohnküche verfügt über einen Herd mit Cerankochfeld und einem Backofen in Arbeitshöhe, einer Kühl- u. Gefrierkombination. Es befinden sich 2 Badezimmer im Ferienhaus. Beide sind mit einem Handwaschbecken, einer Dusche und einem WC ausgestattet. In einem der Badezimmer ist eine Sauna und ein Whirlpool vorhanden. 4 große Schlafzimmer: DB + DB + DB + DB.
Desweiteren ist das Ferienhaus rollstuhlgerecht, da sich alles zu ebene Erde befindet. Sie kommen problemlos auf den Holzterrassenbereich, da eine kleine Rampe dies für einen Rollstuhlfahrer erleichtert. Die Kosten für Gas für den am Haus befindlichen Grill haben die Kunden selber zu tragen und zu besorgen. Sie haben die Möglichkeit im Büro Gas auszuleihen.
Unter anderem befindet sich ein Internetanschluss (W-lan), eine Waschmaschine mit Trockner im Haus und das Haus ist 2014 erbaut. Das Rauchen ist nicht gestattet. Es sind max. 3 Haustiere erlaubt.
HAUSTIERE:
Hunde erlaubt.
GUT ZU WISSEN:
Keine Vermietung an Jugendgruppen.
Kostenlose Parkplätze vor dem Haus.
Geschlossene Terrasse.
Verbrauchsabrechnung nach Ablesung.
Der Wasserverbrauch ist im Preis inbegriffen.
Die Reinigung ist im Preis inbegriffen.
4 Schlafzimmer mit Doppelbett 180x200 cm.
Es ist möglich, ein Kinderbett und Hochstuhl aus dem Büro zu leihen.
Spa und Sauna.
Bettwäsche ist nicht inbegriffen, kann aber gekauft werden.
NÄCHSTE GESCHÄFTE:
Bäckerei 300 m vom Ferienhaus entfernt. Supermarkt "Storkøb" 400 m vom Ferienhaus entfernt.
ÖFFENTLICHE VERKEHRSMITTEL:
Der nächstgelegene Bahnhof befindet sich in Oksbøl, ca. 10 km von Vejers entfernt.
Hausbilder
Ausstattung
Allgemeines
- Anzahl Haustiere maximal: 3
- Anzahl Personen: 8
- Baujahr: 2014
- Handicapfreundlich
- Haustiere erlaubt
- Nichtraucher
- Wohnfläche: 155 m²
Entfernungen
- Abstand Einkauf: 400 m
- Abstand Restaurant: 400 m
- Abstand Strand: 400 m
Wohnbereich
- Kaminofen
Schlafbereich
- Anzahl Schlafzimmer: 4
Küche
- Geschirrspüler
- Tiefkühler: 1 Kühl-/Gefrierschrank
Bad
- Anzahl Extraduschen: 1 1
- Anzahl Extratoiletten: 1
- Trockner
- Waschmaschine
Wellness
- Sauna
- Whirlpool
Multimedia
- Deutsches Fernsehen
- Internationales Fernsehen
- Internet
Aussenbereich
- Terrasse, geschlossen
Neben- und Verbrauchskosten
Die aktuellen Verbrauchskosten finden Sie im nächsten Schritt im Buchungsformular.
Raumaufteilung
Lageplan
Ferienhaus 051
Risvej 20 A
6853 Vejers Strand
Belegungskalender
- Reisedauer auswählen
- Anzahl Reisende auswählen
- Anreisetag im Belegungskalender anklicken
- Sie bekommen Verfügbarkeit und Preis angezeigt
| 2026 | 1 | 2 | 3 | 4 | 5 | 6 | 7 | 8 | 9 | 10 | 11 | 12 | 13 | 14 | 15 | 16 | 17 | 18 | 19 | 20 | 21 | 22 | 23 | 24 | 25 | 26 | 27 | 28 | 29 | 30 | 31 |
| Mai | F | S | S | M | D | M | D | F | S | S | M | D | M | D | F | S | S | M | D | M | D | F | S | S | M | D | M | D | F | S | S |
| Juni | M | D | M | D | F | S | S | M | D | M | D | F | S | S | M | D | M | D | F | S | S | M | D | M | D | F | S | S | M | D | |
| Juli | M | D | F | S | S | M | D | M | D | F | S | S | M | D | M | D | F | S | S | M | D | M | D | F | S | S | M | D | M | D | F |
| August | S | S | M | D | M | D | F | S | S | M | D | M | D | F | S | S | M | D | M | D | F | S | S | M | D | M | D | F | S | S | M |
| September | D | M | D | F | S | S | M | D | M | D | F | S | S | M | D | M | D | F | S | S | M | D | M | D | F | S | S | M | D | M | |
| Oktober | D | F | S | S | M | D | M | D | F | S | S | M | D | M | D | F | S | S | M | D | M | D | F | S | S | M | D | M | D | F | S |
| November | S | M | D | M | D | F | S | S | M | D | M | D | F | S | S | M | D | M | D | F | S | S | M | D | M | D | F | S | S | M | |
| Dezember | D | M | D | F | S | S | M | D | M | D | F | S | S | M | D | M | D | F | S | S | M | D | M | D | F | S | S | M | D | M | D |
| 2027 | 1 | 2 | 3 | 4 | 5 | 6 | 7 | 8 | 9 | 10 | 11 | 12 | 13 | 14 | 15 | 16 | 17 | 18 | 19 | 20 | 21 | 22 | 23 | 24 | 25 | 26 | 27 | 28 | 29 | 30 | 31 |
| Januar | F | S | S | M | D | M | D | F | S | S | M | D | M | D | F | S | S | M | D | M | D | F | S | S | M | D | M | D | F | S | S |
| Februar | M | D | M | D | F | S | S | M | D | M | D | F | S | S | M | D | M | D | F | S | S | M | D | M | D | F | S | S | |||
| März | M | D | M | D | F | S | S | M | D | M | D | F | S | S | M | D | M | D | F | S | S | M | D | M | D | F | S | S | M | D | M |
| April | D | F | S | S | M | D | M | D | F | S | S | M | D | M | D | F | S | S | M | D | M | D | F | S | S | M | D | M | D | F | |
| Mai | S | S | M | D | M | D | F | S | S | M | D | M | D | F | S | S | M | D | M | D | F | S | S | M | D | M | D | F | S | S | M |
| Juni | D | M | D | F | S | S | M | D | M | D | F | S | S | M | D | M | D | F | S | S | M | D | M | D | F | S | S | M | D | M | |
| Juli | D | F | S | S | M | D | M | D | F | S | S | M | D | M | D | F | S | S | M | D | M | D | F | S | S | M | D | M | D | F | S |
| August | S | M | D | M | D | F | S | S | M | D | M | D | F | S | S | M | D | M | D | F | S | S | M | D | M | D | F | S | S | M | D |
| September | M | D | F | S | S | M | D | M | D | F | S | S | M | D | M | D | F | S | S | M | D | M | D | F | S | S | M | D | M | D | |
| Oktober | F | S | S | M | D | M | D | F | S | S | M | D | M | D | F | S | S | M | D | M | D | F | S | S | M | D | M | D | F | S | S |
| November | M | D | M | D | F | S | S | M | D | M | D | F | S | S | M | D | M | D | F | S | S | M | D | M | D | F | S | S | M | D | |
| Dezember | M | D | F | S | S | M | D | M | D | F | S | S | M | D | M | D | F | S | S | M | D | M | D | F | S | S | M | D | M | D | F |
| 2028 | 1 | 2 | 3 | 4 | 5 | 6 | 7 | 8 | 9 | 10 | 11 | 12 | 13 | 14 | 15 | 16 | 17 | 18 | 19 | 20 | 21 | 22 | 23 | 24 | 25 | 26 | 27 | 28 | 29 | 30 | 31 |
| Januar | S | S | M | D | M | D | F | S | S | M | D | M | D | F | S | S | M | D | M | D | F | S | S | M | D | M | D | F | S | S | M |
| Februar | D | M | D | F | S | S | M | D | M | D | F | S | S | M | D | M | D | F | S | S | M | D | M | D | F | S | S | M | D | ||
| März | M | D | F | S | S | M | D | M | D | F | S | S | M | D | M | D | F | S | S | M | D | M | D | F | S | S | M | D | M | D | F |
| April | S | S | M | D | M | D | F | S | S | M | D | M | D | F | S | S | M | D | M | D | F | S | S | M | D | M | D | F | S | S | |
| Mai | M | D | M | D | F | S | S | M | D | M | D | F | S | S | M | D | M | D | F | S | S | M | D | M | D | F | S | S | M | D | M |
| Juni | D | F | S | S | M | D | M | D | F | S | S | M | D | M | D | F | S | S | M | D | M | D | F | S | S | M | D | M | D | F | |
| Juli | S | S | M | D | M | D | F | S | S | M | D | M | D | F | S | S | M | D | M | D | F | S | S | M | D | M | D | F | S | S | M |
| August | D | M | D | F | S | S | M | D | M | D | F | S | S | M | D | M | D | F | S | S | M | D | M | D | F | S | S | M | D | M | D |
| September | F | S | S | M | D | M | D | F | S | S | M | D | M | D | F | S | S | M | D | M | D | F | S | S | M | D | M | D | F | S | |
| Oktober | S | M | D | M | D | F | S | S | M | D | M | D | F | S | S | M | D | M | D | F | S | S | M | D | M | D | F | S | S | M | D |
| November | M | D | F | S | S | M | D | M | D | F | S | S | M | D | M | D | F | S | S | M | D | M | D | F | S | S | M | D | M | D | |
| Dezember | F | S | S | M | D | M | D | F | S | S | M | D | M | D | F | S | S | M | D | M | D | F | S | S | M | D | M | D | F | S | S |
| 2029 | 1 | 2 | 3 | 4 | 5 | 6 | 7 | 8 | 9 | 10 | 11 | 12 | 13 | 14 | 15 | 16 | 17 | 18 | 19 | 20 | 21 | 22 | 23 | 24 | 25 | 26 | 27 | 28 | 29 | 30 | 31 |
| Januar | M | D | M | D | F | S | S | M | D | M | D | F | S | S | M | D | M | D | F | S | S | M | D | M | D | F | S | S | M | D | M |
| Februar | D | F | S | S | M | D | M | D | F | S | S | M | D | M | D | F | S | S | M | D | M | D | F | S | S | M | D | M | |||
| März | D | F | S | S | M | D | M | D | F | S | S | M | D | M | D | F | S | S | M | D | M | D | F | S | S | M | D | M | D | F | S |
| April | S | M | D | M | D | F | S | S | M | D | M | D | F | S | S | M | D | M | D | F | S | S | M | D | M | D | F | S | S | M | |
| Mai | D | M | D | F | S | S | M | D | M | D | F | S | S | M | D | M | D | F | S | S | M | D | |||||||||