Ferienhaus 440 in Risvej 2, Vejers Strand
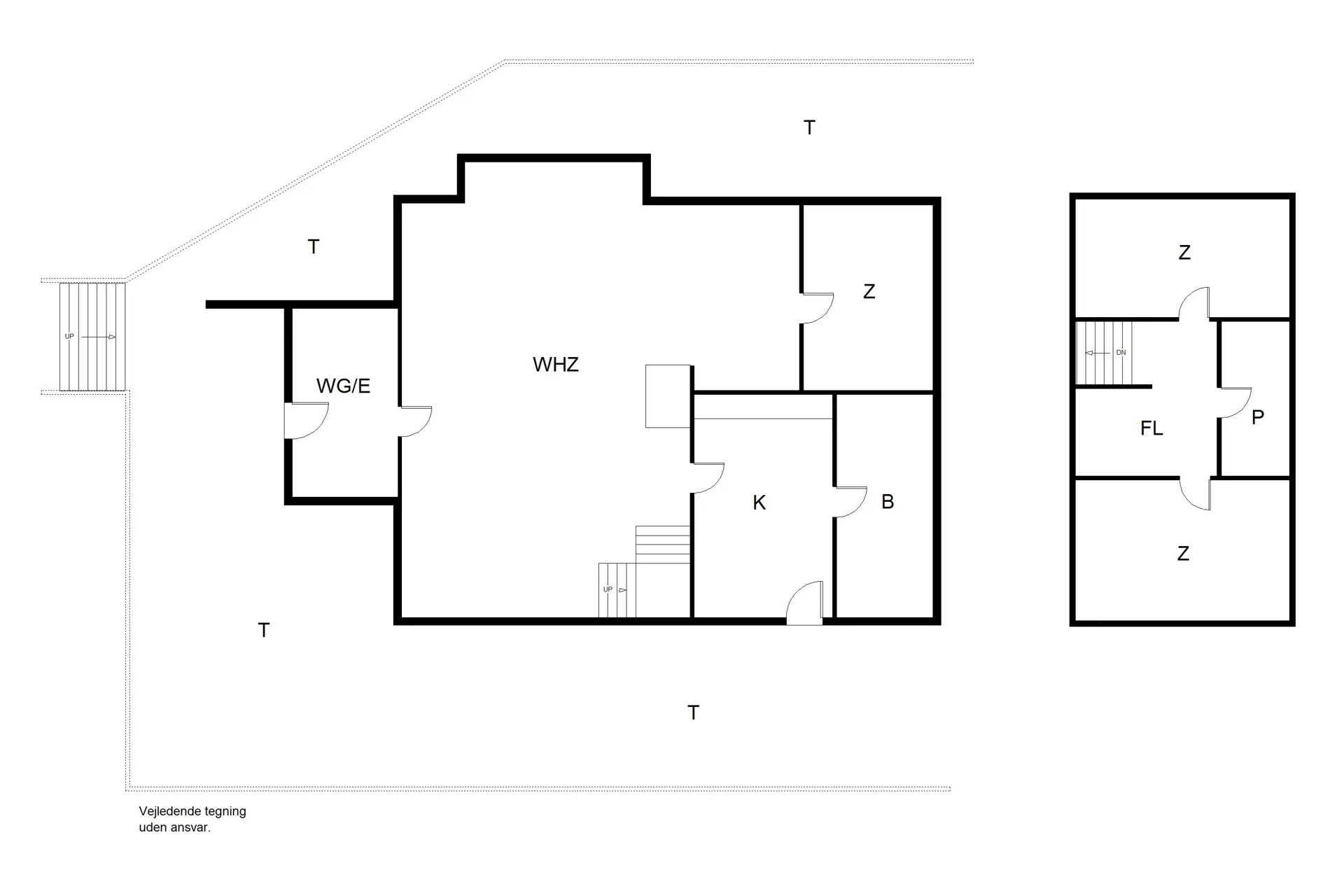
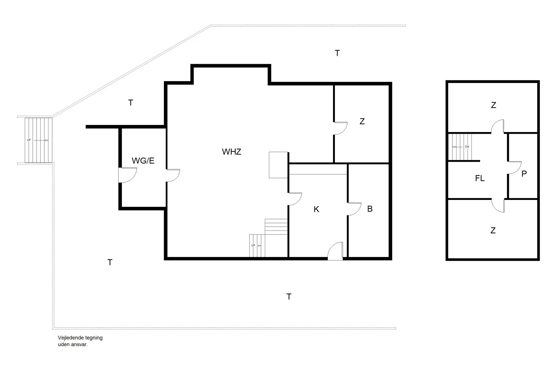
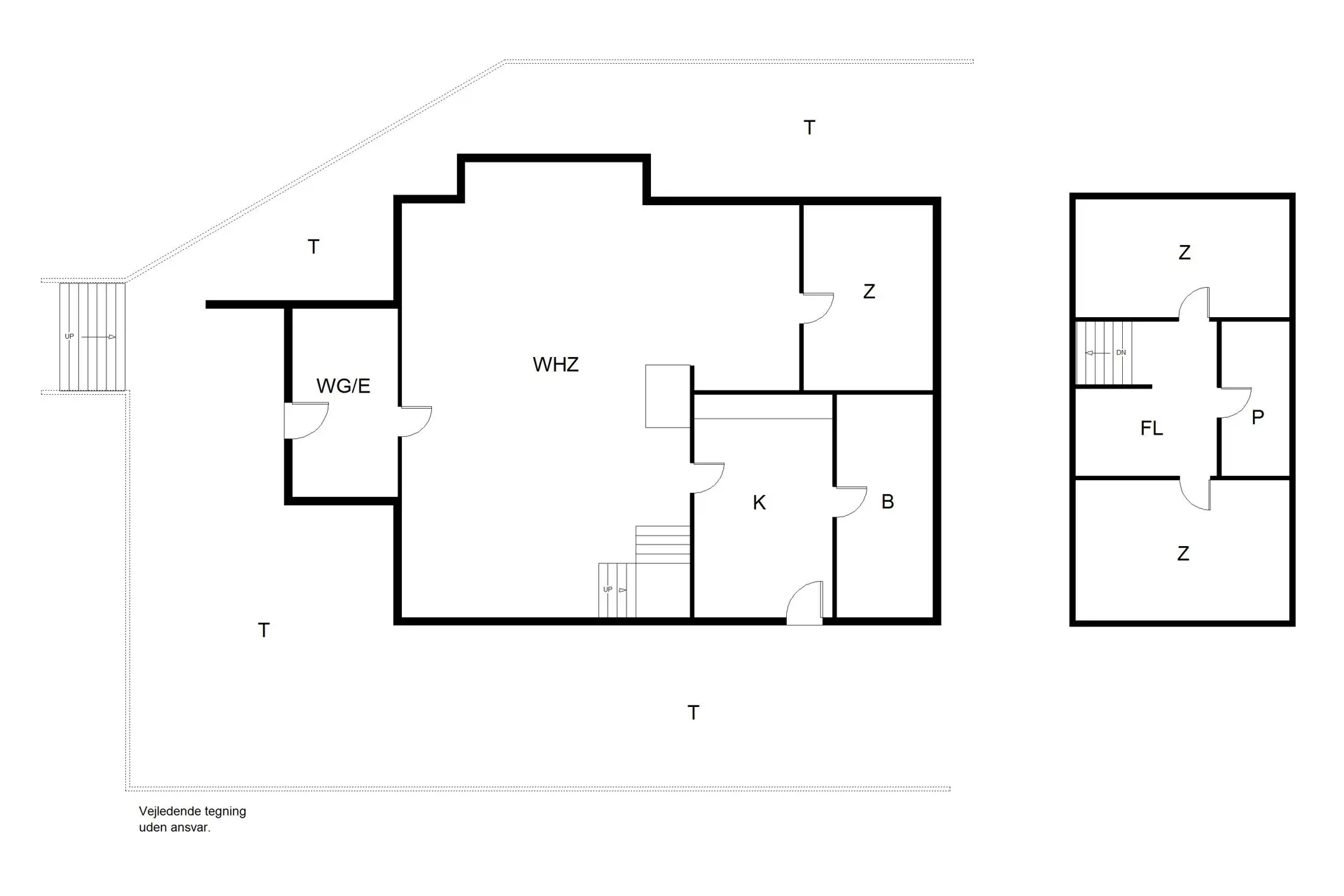
Charmantes Reetgedecktes älteres Ferienhaus hoch oben auf einer Düne gelegen mit Namen ”Alsbo”. Die Räumlichkeiten sind über 2 Etagen verteilt. Aus der oberen Etage haben Sie einen wunderschönen Blick über das tolle Ferienhausgebiet von Vejers Strand. Das Ferienhaus ist für 6 Personen ausgestattet und der Strand ist nur ca. 400 Meter vom Ferienhaus entfernt. Der Wintergarten dient auch gleich als Eingangsbereich. Eine gemütliche Eckbank befindet sich hier im Wintergarten, von dem Sie durch die grosszügige Fensterfront einen weiteren tollen Ausblick haben. Der Wohn- und Essbereich ist zusammen und mit charmanten Mobiliar ausgestattet. Das deutsche Fernsehproramm empfangen Sie über eine Parabolantenne. Das dänische Fernsehprogramm kann über den Anbieter Stofa empfangen werden. Ein eingebauter Kamin sorgt für wohlige Wärme und die dänische Gemütlichkeit. Ein weiterer Kamin (Mørso-Kamin) dient nur zur Zierde und Dekoration, der kann nicht befeuert werden. Die Küche ist ein separater Raum und einfach gehalten, verfügt aber über alles was Sie zum täglichen Gebrauch benötigen. Die Küche ist mit einem Herd mit Cernfeld, einem Backofen, einer Geschirspülmaschine, einer Mikrowelle und einer Kühl- und Gefrierkombination ausgestattet. Das Badezimmer verfügt über ein WC, ein Handwaschbecken und eine Dusche. Die zur Verfügung stehende Waschmaschine ist hier im Badezimmer untergebracht. Desweiteren ist das Badezimmer mit einer Fussbodenheizung ausgestattet. Das Feienhaus verfügt insgesamt über drei Schlafzimmer: DB + DB + 2B. Ein Schlafzimmer befinet sich im Erdgeschoss und die beiden anderen sind im Obergeschoss. Das Schlafzimmer im unteren Bereich ist mit einem Doppelbett ausgestattet. In der einen Ecke im Wohnbereich befindet sich die Holztreppe, über die Sie dann in den oberen Bereich gelangen. Das eine Schlafzimmer im Obergeschoss verfügt über zwei Einzelbetten und das andere Schlafzimmer hat ein Doppelbett. Das Schlafzimmer mit dem Doppelbett hat ebenfalls eine kleine Kuschelecke, ausgestattet mit einer kleine Madratze. Das Ferienhaus verfügt über einen Internetanschluss (W-Lan). Zwei Hunde sind erlaubt. Rauchen im Ferienhaus ist nicht erlaubt. Eine Holzterrasse ist fast um das ganze Ferienhaus gebaut. Hier können Sie mit den Gartenmöblen den Sonnenstrahlen folgen. Das Ferienhaus wurde in 1930 erbaut.
HAUSTIERE:
Hunde erlaubt.
GUT ZU WISSEN:
Keine Vermietung an Jugendgruppen.
Kostenlose Parkplätze vor dem Haus.
Terrasse.
Verbrauch wird nach Ablesung abgerechnet.
Der Wasserverbrauch ist im Preis inbegriffen.
Die Reinigung ist im Preis inbegriffen.
3 Schlafzimmer. 2 mit Doppelbett 180x200 cm. 1 mit 2 Einzelbetten (je 90x200 cm).
Es ist möglich, ein Kinderbett und einen Hochstuhl im Büro zu leihen.
Bettwäsche ist nicht inbegriffen, kann aber gekauft werden.
NÄCHSTE EINKÄUFE:
Bäckerei 80 m vom Ferienhaus entfernt. Supermarkt "Storkøb" 180 m vom Ferienhaus entfernt.
ÖFFENTLICHE VERKEHRSMITTEL:
Der nächstgelegene Bahnhof befindet sich in Oksbøl, ca. 10 km von Vejers entfernt.
Hausbilder
Ausstattung
Allgemeines
- Anzahl Haustiere maximal: 2
- Anzahl Personen: 6
- Baujahr: 1930
- Haustiere erlaubt
- Nichtraucher
- Wohnfläche: 105 m²
Entfernungen
- Abstand Einkauf: 300 m
- Abstand Restaurant: 300 m
- Abstand Strand: 400 m
Wohnbereich
- Kaminofen
Schlafbereich
- Anzahl Schlafzimmer: 3
Küche
- Geschirrspüler
- Mikrowelle
- Tiefkühler: 1 Kühl-/Gefrierschrank
Multimedia
- Internationales Fernsehen
- Internet
Sonstiges
- Besonderheiten Katzen sind nicht erlaubt
Neben- und Verbrauchskosten
Die aktuellen Verbrauchskosten finden Sie im nächsten Schritt im Buchungsformular.
Raumaufteilung
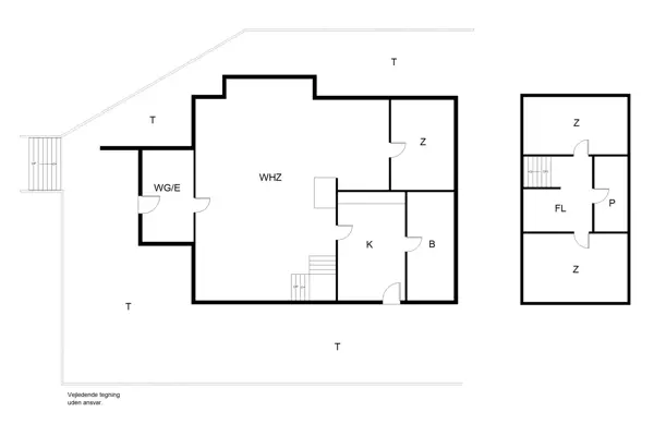
Lageplan
Ferienhaus 440
Risvej 2
6853 Vejers Strand
Belegungskalender
- Reisedauer auswählen
- Anzahl Reisende auswählen
- Anreisetag im Belegungskalender anklicken
- Sie bekommen Verfügbarkeit und Preis angezeigt
| 2026 | 1 | 2 | 3 | 4 | 5 | 6 | 7 | 8 | 9 | 10 | 11 | 12 | 13 | 14 | 15 | 16 | 17 | 18 | 19 | 20 | 21 | 22 | 23 | 24 | 25 | 26 | 27 | 28 | 29 | 30 | 31 |
| Mai | F | S | S | M | D | M | D | F | S | S | M | D | M | D | F | S | S | M | D | M | D | F | S | S | M | D | M | D | F | S | S |
| Juni | M | D | M | D | F | S | S | M | D | M | D | F | S | S | M | D | M | D | F | S | S | M | D | M | D | F | S | S | M | D | |
| Juli | M | D | F | S | S | M | D | M | D | F | S | S | M | D | M | D | F | S | S | M | D | M | D | F | S | S | M | D | M | D | F |
| August | S | S | M | D | M | D | F | S | S | M | D | M | D | F | S | S | M | D | M | D | F | S | S | M | D | M | D | F | S | S | M |
| September | D | M | D | F | S | S | M | D | M | D | F | S | S | M | D | M | D | F | S | S | M | D | M | D | F | S | S | M | D | M | |
| Oktober | D | F | S | S | M | D | M | D | F | S | S | M | D | M | D | F | S | S | M | D | M | D | F | S | S | M | D | M | D | F | S |
| November | S | M | D | M | D | F | S | S | M | D | M | D | F | S | S | M | D | M | D | F | S | S | M | D | M | D | F | S | S | M | |
| Dezember | D | M | D | F | S | S | M | D | M | D | F | S | S | M | D | M | D | F | S | S | M | D | M | D | F | S | S | M | D | M | D |
| 2027 | 1 | 2 | 3 | 4 | 5 | 6 | 7 | 8 | 9 | 10 | 11 | 12 | 13 | 14 | 15 | 16 | 17 | 18 | 19 | 20 | 21 | 22 | 23 | 24 | 25 | 26 | 27 | 28 | 29 | 30 | 31 |
| Januar | F | S | S | M | D | M | D | F | S | S | M | D | M | D | F | S | S | M | D | M | D | F | S | S | M | D | M | D | F | S | S |
| Februar | M | D | M | D | F | S | S | M | D | M | D | F | S | S | M | D | M | D | F | S | S | M | D | M | D | F | S | S | |||
| März | M | D | M | D | F | S | S | M | D | M | D | F | S | S | M | D | M | D | F | S | S | M | D | M | D | F | S | S | M | D | M |
| April | D | F | S | S | M | D | M | D | F | S | S | M | D | M | D | F | S | S | M | D | M | D | F | S | S | M | D | M | D | F | |
| Mai | S | S | M | D | M | D | F | S | S | M | D | M | D | F | S | S | M | D | M | D | F | S | S | M | D | M | D | F | S | S | M |
| Juni | D | M | D | F | S | S | M | D | M | D | F | S | S | M | D | M | D | F | S | S | M | D | M | D | F | S | S | M | D | M | |
| Juli | D | F | S | S | M | D | M | D | F | S | S | M | D | M | D | F | S | S | M | D | M | D | F | S | S | M | D | M | D | F | S |
| August | S | M | D | M | D | F | S | S | M | D | M | D | F | S | S | M | D | M | D | F | S | S | M | D | M | D | F | S | S | M | D |
| September | M | D | F | S | S | M | D | M | D | F | S | S | M | D | M | D | F | S | S | M | D | M | D | F | S | S | M | D | M | D | |
| Oktober | F | S | S | M | D | M | D | F | S | S | M | D | M | D | F | S | S | M | D | M | D | F | S | S | M | D | M | D | F | S | S |
| November | M | D | M | D | F | S | S | M | D | M | D | F | S | S | M | D | M | D | F | S | S | M | D | M | D | F | S | S | M | D | |
| Dezember | M | D | F | S | S | M | D | M | D | F | S | S | M | D | M | D | F | S | S | M | D | M | D | F | S | S | M | D | M | D | F |
| 2028 | 1 | 2 | 3 | 4 | 5 | 6 | 7 | 8 | 9 | 10 | 11 | 12 | 13 | 14 | 15 | 16 | 17 | 18 | 19 | 20 | 21 | 22 | 23 | 24 | 25 | 26 | 27 | 28 | 29 | 30 | 31 |
| Januar | S | S | M | D | M | D | F | S | S | M | D | M | D | F | S | S | M | D | M | D | F | S | S | M | D | M | D | F | S | S | M |
| Februar | D | M | D | F | S | S | M | D | M | D | F | S | S | M | D | M | D | F | S | S | M | D | M | D | F | S | S | M | D | ||
| März | M | D | F | S | S | M | D | M | D | F | S | S | M | D | M | D | F | S | S | M | D | M | D | F | S | S | M | D | M | D | F |
| April | S | S | M | D | M | D | F | S | S | M | D | M | D | F | S | S | M | D | M | D | F | S | S | M | D | M | D | F | S | S | |
| Mai | M | D | M | D | F | S | S | M | D | M | D | F | S | S | M | D | M | D | F | S | S | M | D | M | D | F | S | S | M | D | M |
| Juni | D | F | S | S | M | D | M | D | F | S | S | M | D | M | D | F | S | S | M | D | M | D | F | S | S | M | D | M | D | F | |
| Juli | S | S | M | D | M | D | F | S | S | M | D | M | D | F | S | S | M | D | M | D | F | S | S | M | D | M | D | F | S | S | M |
| August | D | M | D | F | S | S | M | D | M | D | F | S | S | M | D | M | D | F | S | S | M | D | M | D | F | S | S | M | D | M | D |
| September | F | S | S | M | D | M | D | F | S | S | M | D | M | D | F | S | S | M | D | M | D | F | S | S | M | D | M | D | F | S | |
| Oktober | S | M | D | M | D | F | S | S | M | D | M | D | F | S | S | M | D | M | D | F | S | S | M | D | M | D | F | S | S | M | D |
| November | M | D | F | S | S | M | D | M | D | F | S | S | M | D | M | D | F | S | S | M | D | M | D | F | S | S | M | D | M | D | |
| Dezember | F | S | S | M | D | M | D | F | S | S | M | D | M | D | F | S | S | M | D | M | D | F | S | S | M | D | M | D | F | S | S |
| 2029 | 1 | 2 | 3 | 4 | 5 | 6 | 7 | 8 | 9 | 10 | 11 | 12 | 13 | 14 | 15 | 16 | 17 | 18 | 19 | 20 | 21 | 22 | 23 | 24 | 25 | 26 | 27 | 28 | 29 | 30 | 31 |
| Januar | M | D | M | D | F | S | S | M | D | M | D | F | S | S | M | D | M | D | F | S | S | M | D | M | D | F | S | S | M | D | M |
| Februar | D | F | S | S | M | D | M | D | F | S | S | M | D | M | D | F | S | S | M | D | M | D | F | S | S | M | D | M | |||
| März | D | F | S | S | M | D | M | D | F | S | S | M | D | M | D | F | S | S | M | D | M | D | F | S | S | M | D | M | D | F | S |
| April | S | M | D | M | D | F | S | S | M | D | M | D | F | S | S | M | D | M | D | F | S | S | M | D | M | D | F | S | S | M | |
| Mai | D | M | D | F | S | S | M | D | M | D | F | S | S | M | D | M | D | F | S | S | M | D | |||||||||