Ferienhaus 010 in Torskevej 21, Vejers Strand
Sehr schönes neueres Sommerhaus von 2021 in Vejers Strand. Das Ferienhaus bietet für 6 Personen reichlich Platz. Das Ferienhaus bietet auf 118 m2 eine angenehme Atmosphäre und ist im Innenbereich mit gutem Komfort für die ganze Familie das ganze Jahr über ausgestattet. Das Haus ist ca. 1100 Meter vom Strand entfernt.
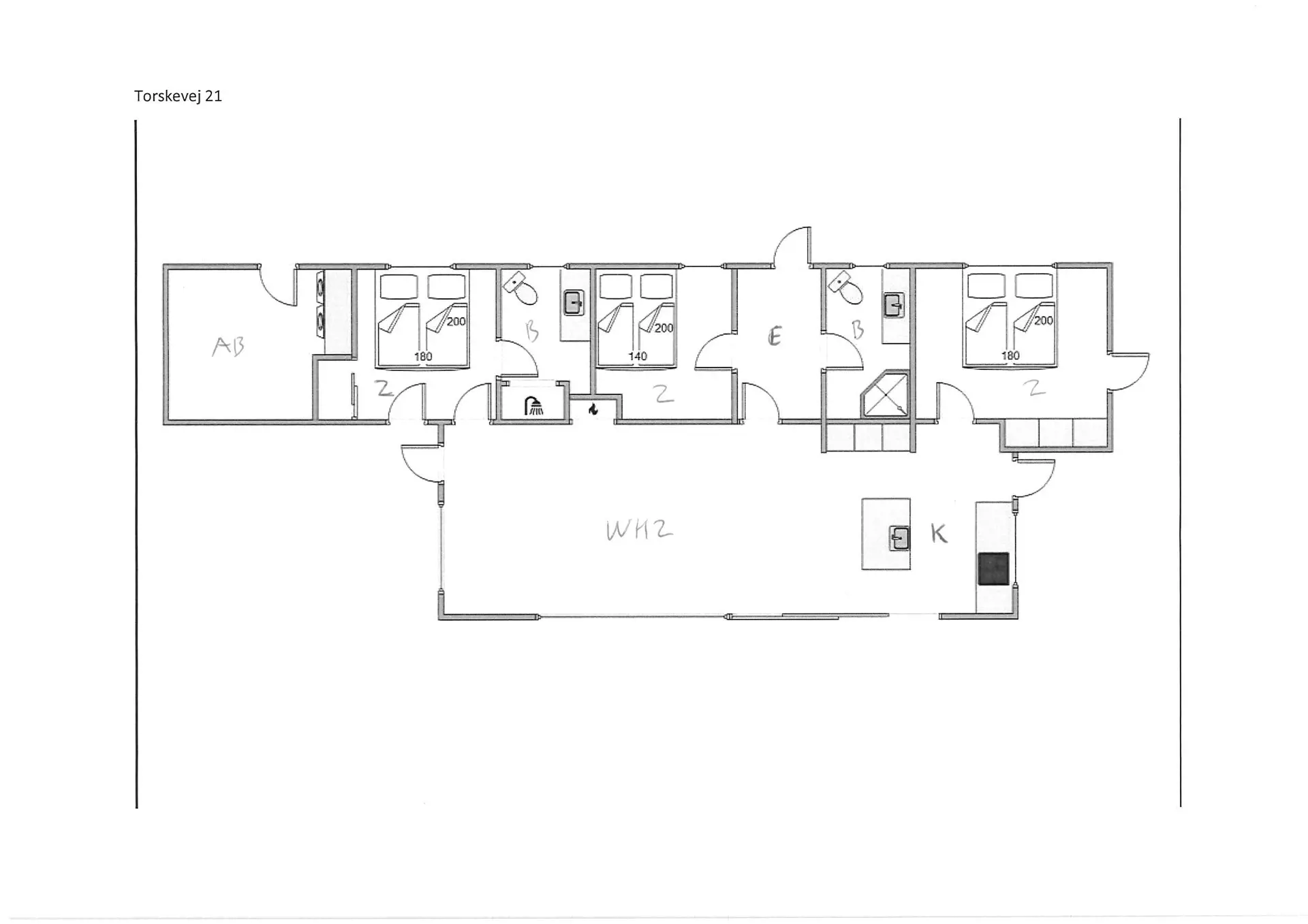
Der Eingangsbereich bietet viel Platz für die Garderobe. Der große Wohnbereich ist mit der offenen Küche verbunden und strahlt eine besondere Atmosphäre aus. Genießen Sie den tollen Blick auf den Gas-Kamin, dazu ein Gläschen Wein und die Erholung kann beginnen. Der Essbereich teilt den Wohnbereich von der Küche. Hier haben alle Gäste genügend Platz. Das Haus hat einen tollen Lichteinfall durch die hohen und großen Fensterfronten. Smart-TV, Stofa-Ferienhauspaket für das Fernsehprogramm (daher nur 5-8 deutsche Fernsehprogramme zu empfangen) und WLAN-Internetzugang mit guter Abdeckung (Glasfaser), außerdem Bluetooth-Lautsprecher und Chrome Cast stehen den Gästen zur Verfügung. Desweiteren ist hier im Wohnbereich eine Fußbodenheizung. Auch der Essbereich und die der Küchenbereich verfügen über eine Fussbodenheizung. Die Küche ist mit allem Komfort wie einer Geschirrspülmaschine, einer Mikrowelle, einem großen Kühlschrank, einem Herd und einer Dunstabzugshabe im Ceranfeld, einem Backofen in arbeitshöhe ausgestattet. Den Gästen stehen zwei schöne Badezimmer mit Fußbodenheizung zur Verfügung. Beide verfügen jeweils über ein Handwaschbecken, ein WC und eine Dusche. Es gibt insgesamt drei Schlafzimmer für die Gäste. DB + DB + DB. Eins der Schlafzimmer hat einen Zugang zum Terrassenbereich. In Verlängerung des Ferienhauses befindet sich ein Hauswirtschaftsraum. Hier ist ein Gefrierschrank (180 Liter), eine Waschmaschine und ein Trockner Wäschetrockner untergebracht. Zugang zum Hems ist vom Küchen-/ Essbereich. Das Haus wird mit Fußbodenheizung, Elektroradiatoren und zusätzlich mit einer Wärmepumpe beheizt. Mit dieser Wärmepumpe haben Sie die Möglichkeiten die Stromkosten zu senken, denn sie ist energiesparend. Haustiere und Rauchen sind nicht erlaubt. Private Ladesteckdosen für Elektroautos. Baujahr 2021.
Für Wasser wird ein Aufpreis berechnet.
Die Außenanlagen bieten eine schöne große teilweise überdachte Holzterrasse, auf der die Abende verlängert und bis weit in den Frühling/Herbst hinein genossen werden können. Das Sommerhaus liegt auf einem schönen Grundstück mit guten Parkmöglichkeiten. Schöne große Holzterrassenumgebung mit Außendusche, die im Sommer genutzt werden kann.
Für Wasser wird ein Aufpreis berechnet.
Der Stadtkern von Vejers ist nur wenige Autominuten vom Ferienhaus entfernt, das mehrere Restaurants, einen Bäcker, eine Pizzeria, 2 Lebensmittelgeschäfte, eine „Drops“ mit Eis und Softeis und mehr bietet.
HAUSTIERE:
Hunde sind nicht erlaubt.
GUT ZU WISSEN:
Keine Vermietungen für Jugendgruppen.
Kostenlose Parkplätze vor dem Ferienhaus.
Ladestation für Elektroautos.
Energiesparendes Haus.
Wasser- und Stromverbrauch wird nach Ablesung abgerechnet.
Die Reinigung ist im Preis inbegriffen.
3 Schlafzimmer. 2 mit Doppelbett 180x200 cm. 1 mit Doppelbett 160x200cm.
Es ist möglich, ein Kinderbett und einen Hochstuhl im Büro zu leihen.
Bettwäsche ist nicht inbegriffen, kann aber gekauft werden.
NÄCHSTE EINKÄUFE:
Bäckerei 850 m vom Ferienhaus entfernt. Supermarkt "Storkøb" 1 km vom Ferienhaus entfernt.
ÖFFENTLICHE VERKEHRSMITTEL:
Der nächstgelegene Bahnhof befindet sich in Oksbøl, ca. 10 km von Vejers entfernt.
Hausbilder
Ausstattung
Allgemeines
- Anzahl Personen: 6
- Baujahr: 2021
- Nichtraucher
- Wohnfläche: 118 m²
Entfernungen
- Abstand Einkauf: 700 m
- Abstand Restaurant: 600 m
- Abstand Strand: 1.100 m
Schlafbereich
- Anzahl Schlafzimmer: 3
Küche
- Geschirrspüler
- Mikrowelle
- Tiefkühler: 1 Gefrierschrank
Bad
- Anzahl Extraduschen: 1 1
- Anzahl Extratoiletten: 1
- Trockner
- Waschmaschine
Multimedia
- Deutsches Fernsehen
- Internet
Aussenbereich
- Außendusche
Sonstiges
- Besonderheiten Katzen sind nicht erlaubt
- Ladestation für Elektroautos
Neben- und Verbrauchskosten
Die aktuellen Verbrauchskosten finden Sie im nächsten Schritt im Buchungsformular.
Raumaufteilung
Lageplan
Ferienhaus 010
Torskevej 21
6853 Vejers Strand
Belegungskalender
- Reisedauer auswählen
- Anzahl Reisende auswählen
- Anreisetag im Belegungskalender anklicken
- Sie bekommen Verfügbarkeit und Preis angezeigt
| 2026 | 1 | 2 | 3 | 4 | 5 | 6 | 7 | 8 | 9 | 10 | 11 | 12 | 13 | 14 | 15 | 16 | 17 | 18 | 19 | 20 | 21 | 22 | 23 | 24 | 25 | 26 | 27 | 28 | 29 | 30 | 31 |
| Mai | F | S | S | M | D | M | D | F | S | S | M | D | M | D | F | S | S | M | D | M | D | F | S | S | M | D | M | D | F | S | S |
| Juni | M | D | M | D | F | S | S | M | D | M | D | F | S | S | M | D | M | D | F | S | S | M | D | M | D | F | S | S | M | D | |
| Juli | M | D | F | S | S | M | D | M | D | F | S | S | M | D | M | D | F | S | S | M | D | M | D | F | S | S | M | D | M | D | F |
| August | S | S | M | D | M | D | F | S | S | M | D | M | D | F | S | S | M | D | M | D | F | S | S | M | D | M | D | F | S | S | M |
| September | D | M | D | F | S | S | M | D | M | D | F | S | S | M | D | M | D | F | S | S | M | D | M | D | F | S | S | M | D | M | |
| Oktober | D | F | S | S | M | D | M | D | F | S | S | M | D | M | D | F | S | S | M | D | M | D | F | S | S | M | D | M | D | F | S |
| November | S | M | D | M | D | F | S | S | M | D | M | D | F | S | S | M | D | M | D | F | S | S | M | D | M | D | F | S | S | M | |
| Dezember | D | M | D | F | S | S | M | D | M | D | F | S | S | M | D | M | D | F | S | S | M | D | M | D | F | S | S | M | D | M | D |
| 2027 | 1 | 2 | 3 | 4 | 5 | 6 | 7 | 8 | 9 | 10 | 11 | 12 | 13 | 14 | 15 | 16 | 17 | 18 | 19 | 20 | 21 | 22 | 23 | 24 | 25 | 26 | 27 | 28 | 29 | 30 | 31 |
| Januar | F | S | S | M | D | M | D | F | S | S | M | D | M | D | F | S | S | M | D | M | D | F | S | S | M | D | M | D | F | S | S |
| Februar | M | D | M | D | F | S | S | M | D | M | D | F | S | S | M | D | M | D | F | S | S | M | D | M | D | F | S | S | |||
| März | M | D | M | D | F | S | S | M | D | M | D | F | S | S | M | D | M | D | F | S | S | M | D | M | D | F | S | S | M | D | M |
| April | D | F | S | S | M | D | M | D | F | S | S | M | D | M | D | F | S | S | M | D | M | D | F | S | S | M | D | M | D | F | |
| Mai | S | S | M | D | M | D | F | S | S | M | D | M | D | F | S | S | M | D | M | D | F | S | S | M | D | M | D | F | S | S | M |
| Juni | D | M | D | F | S | S | M | D | M | D | F | S | S | M | D | M | D | F | S | S | M | D | M | D | F | S | S | M | D | M | |
| Juli | D | F | S | S | M | D | M | D | F | S | S | M | D | M | D | F | S | S | M | D | M | D | F | S | S | M | D | M | D | F | S |
| August | S | M | D | M | D | F | S | S | M | D | M | D | F | S | S | M | D | M | D | F | S | S | M | D | M | D | F | S | S | M | D |
| September | M | D | F | S | S | M | D | M | D | F | S | S | M | D | M | D | F | S | S | M | D | M | D | F | S | S | M | D | M | D | |
| Oktober | F | S | S | M | D | M | D | F | S | S | M | D | M | D | F | S | S | M | D | M | D | F | S | S | M | D | M | D | F | S | S |
| November | M | D | M | D | F | S | S | M | D | M | D | F | S | S | M | D | M | D | F | S | S | M | D | M | D | F | S | S | M | D | |
| Dezember | M | D | F | S | S | M | D | M | D | F | S | S | M | D | M | D | F | S | S | M | D | M | D | F | S | S | M | D | M | D | F |
| 2028 | 1 | 2 | 3 | 4 | 5 | 6 | 7 | 8 | 9 | 10 | 11 | 12 | 13 | 14 | 15 | 16 | 17 | 18 | 19 | 20 | 21 | 22 | 23 | 24 | 25 | 26 | 27 | 28 | 29 | 30 | 31 |
| Januar | S | S | M | D | M | D | F | S | S | M | D | M | D | F | S | S | M | D | M | D | F | S | S | M | D | M | D | F | S | S | M |
| Februar | D | M | D | F | S | S | M | D | M | D | F | S | S | M | D | M | D | F | S | S | M | D | M | D | F | S | S | M | D | ||
| März | M | D | F | S | S | M | D | M | D | F | S | S | M | D | M | D | F | S | S | M | D | M | D | F | S | S | M | D | M | D | F |
| April | S | S | M | D | M | D | F | S | S | M | D | M | D | F | S | S | M | D | M | D | F | S | S | M | D | M | D | F | S | S | |
| Mai | M | D | M | D | F | S | S | M | D | M | D | F | S | S | M | D | M | D | F | S | S | M | D | M | D | F | S | S | M | D | M |
| Juni | D | F | S | S | M | D | M | D | F | S | S | M | D | M | D | F | S | S | M | D | M | D | F | S | S | M | D | M | D | F | |
| Juli | S | S | M | D | M | D | F | S | S | M | D | M | D | F | S | S | M | D | M | D | F | S | S | M | D | M | D | F | S | S | M |
| August | D | M | D | F | S | S | M | D | M | D | F | S | S | M | D | M | D | F | S | S | M | D | M | D | F | S | S | M | D | M | D |
| September | F | S | S | M | D | M | D | F | S | S | M | D | M | D | F | S | S | M | D | M | D | F | S | S | M | D | M | D | F | S | |
| Oktober | S | M | D | M | D | F | S | S | M | D | M | D | F | S | S | M | D | M | D | F | S | S | M | D | M | D | F | S | S | M | D |
| November | M | D | F | S | S | M | D | M | D | F | S | S | M | D | M | D | F | S | S | M | D | M | D | F | S | S | M | D | M | D | |
| Dezember | F | S | S | M | D | M | D | F | S | S | M | D | M | D | F | S | S | M | D | M | D | F | S | S | M | D | M | D | F | S | S |
| 2029 | 1 | 2 | 3 | 4 | 5 | 6 | 7 | 8 | 9 | 10 | 11 | 12 | 13 | 14 | 15 | 16 | 17 | 18 | 19 | 20 | 21 | 22 | 23 | 24 | 25 | 26 | 27 | 28 | 29 | 30 | 31 |
| Januar | M | D | M | D | F | S | S | M | D | M | D | F | S | S | M | D | M | D | F | S | S | M | D | M | D | F | S | S | M | D | M |
| Februar | D | F | S | S | M | D | M | D | F | S | S | M | D | M | D | F | S | S | M | D | M | D | F | S | S | M | D | M | |||
| März | D | F | S | S | M | D | M | D | F | S | S | M | D | M | D | F | S | S | M | D | M | D | F | S | S | M | D | M | D | F | S |
| April | S | M | D | M | D | F | S | S | M | D | M | D | F | S | S | M | D | M | D | F | S | S | M | D | M | D | F | S | S | M | |
| Mai | D | M | D | F | S | S | M | D | M | D | F | S | S | M | D | M | D | F | S | S | M | D | |||||||||