Ferienhaus 350 in Engesøvej 89, Vejers Strand
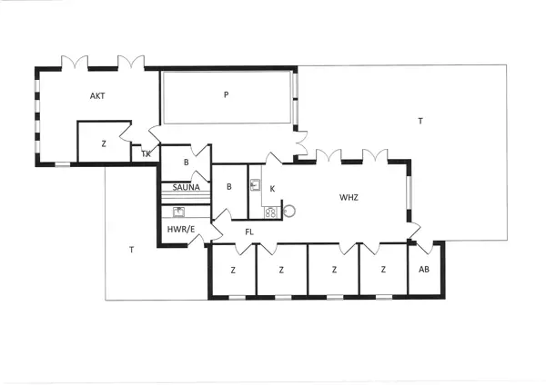
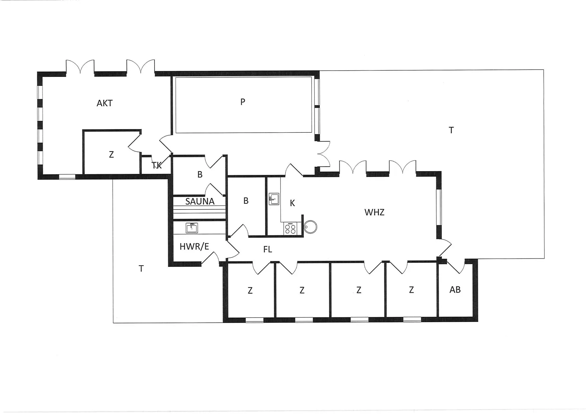
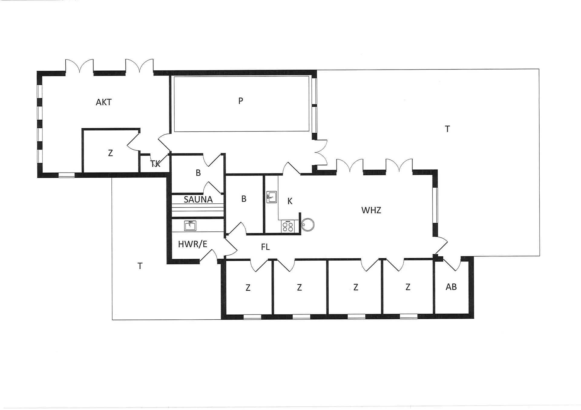
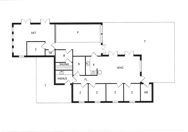
Neu renoviertes Aktivitätshaus mit Innenpool und Sauna. Das Ferienhaus befindet sich auf einem schönen großzügigen Naturgrundstück in direkter Waldrandlage. Auf seinen 190m2 Wohnfläche haben alle 10 Gäste reichlich Platz. Der Strand befindet sich ca. 850 Meter vom Haus entfernt. Der offene Wohn- und Essbereich ist freundlich und heller Ausstattung. Gemütliches Wohnsofa und großer Esstisch vorhanden. Smart-TV mit dänischen und deutschen Kanälen und der Möglichkeit zum Streamen und auch DVD-Abspielgerät befinden sich hier im Wohnbereich. Ein Kaminofen ist ebenfalls hier im Wohn- und Essbereich aufgestellt. Dieser strahlt eine gemütliche wohlige Wärme aus und man hat einen direkten Blick vom Sofa aus auf den Kamin. Desweiteren befindet sich eine Wärmepumpe im Ferienhaus. Mit dieser Wärmepumpe haben Sie die Möglichkeit die Stromkosten zu senken, denn sie ist energiesparend. Der Küchenbereich ist offen und ist gut ausgestattet. Die Küche verfügt über einen Herd mit Cerankochfeld, einem Backofen in arbeitshöhe, einer Mikrowelle, einer Geschirrspülmaschine und einer großen Amerikanischer Kühl- und Gefrierkombination (ca. 80 ltr.). Im Küchenbereich ist ausreichend Platz, so dass auch mehrere Personen gleichzeitig dort kochen oder vorbeireiten können. Im Ferienhaus befinden sich 2 schöne Badezimmer, beide sind mit einer Fußbodenheizung ausgestattet und verfügen jeweils über ein Handwaschbecken, einem WC und einer Dusche. In einem der Bäder, der vom Poolbereich erreichbar ist, befindet sich eine Sauna. Der Swimmingpool hat eine Grösse von ca. 6 x 3,6 x 1,10 Meter ( Länge x Breite x Tiefe). Eine Waschmaschine und ein Trockner stehen den Gästen ebenfalls im Hauswirtschaftsraum / Eingangsbereich zur Verfügung. Insgesamt gibt es 5 Schlafzimmer im Ferienhaus. 2 Schlafzimmer mit je einem Doppelbett und 3 Schlafzimmer mit je 2 Einzelbetten (DB + DB + DB + EB + EB). Großer und heller Aktivitätsraum ausgestattet mit Sitzmöglichkeiten, einem Billiard-Tisch und Tischtennis. Das Ferienhaus verfügt über einen Internetanschluss (W-Lan). Schöner geschlossener Terrassenbereich. Es ist max. ein Haustier erlaubt., aber keine Katzen. Das Rauchen im Ferienhaus ist nicht gestattet. Es sind keine Jugendgruppen erlaubt. Auf dem Grundstück gibt es ein Spielhaus und ein Sandkasten für die Kleinen Gäste. In den Sommermonaten stellt der Eigentümer einen Gasgrill zur Verfügung. Bitte beachten Sie, dass dieser nach Gebrauch wieder gereinigt zurückgestellt wird. Denn nur so haben alle etwas davon. Das Baujahr des Hauses ist im Jahre 1989 und renoviert wurde es im Jahre 2009.
Der Ortskern ist gut fußläufig zu erreichen. Dort finden Sie einen Lebensmittelladen, Restaurants, Bäckerei, Pizzeria und eine Eisdiele mit Cafe.
HAUSTIERE:
1 kleiner Hund erlaubt.
GUT ZU WISSEN:
Keine Vermietungen für Jugendgruppen.
Kostenlose Parkplätze vor dem Haus.
Terrasse.
Verbrauch wird nach Ablesung abgerechnet.
Der Wasserverbrauch ist im Preis inbegriffen.
Die Reinigung ist im Preis inbegriffen.
5 Schlafzimmer. 3 mit Doppelbett 180x200 cm. 2 mit je 2 Einzelbetten (je 90x200 cm).
Es ist möglich, ein Kinderbett und einen Hochstuhl im Büro zu leihen.
Sauna.
Hallenbad.
Bettwäsche ist nicht inbegriffen, kann aber erworben werden.
Tischfußball, Tischtennis und Billardtisch.
Energiesparendes Haus.
NÄCHSTE EINKÄUFE:
Bäckerei 1,4 km vom Ferienhaus entfernt. Supermarkt "Storkøb" 1,3 km vom Ferienhaus entfernt.
ÖFFENTLICHE VERKEHRSMITTEL:
Der nächstgelegene Bahnhof befindet sich in Oksbøl, ca. 10 km von Vejers entfernt.
Hausbilder
Ausstattung
Allgemeines
- Anzahl Haustiere maximal: 1
- Anzahl Personen: 10
- Baujahr: 1989
- Haustiere erlaubt
- Nichtraucher
- Renovierung: 2024
- Wohnfläche: 190 m²
Entfernungen
- Abstand Einkauf: 800 m
- Abstand Restaurant: 400 m
- Abstand Strand: 850 m
Wohnbereich
- Kaminofen
Schlafbereich
- Anzahl Schlafzimmer: 5
Küche
- Geschirrspüler
- Mikrowelle
- Tiefkühler: 1 Gefrierschrank
Bad
- Trockner
- Waschmaschine
Wellness
- Pool
- Sauna
Multimedia
- CD-Player
- Deutsches Fernsehen
- Internet
- Spielekonsole Playstation
Spieleangebot
- Billard
- Tischtennis
Aussenbereich
- Sandkiste
- Terrasse, geschlossen
Sonstiges
- Besonderheiten Katzen sind nicht erlaubt
Neben- und Verbrauchskosten
Die aktuellen Verbrauchskosten finden Sie im nächsten Schritt im Buchungsformular.
Raumaufteilung
Lageplan
Ferienhaus 350
Engesøvej 89
6853 Vejers Strand
Belegungskalender
- Reisedauer auswählen
- Anzahl Reisende auswählen
- Anreisetag im Belegungskalender anklicken
- Sie bekommen Verfügbarkeit und Preis angezeigt
| 2026 | 1 | 2 | 3 | 4 | 5 | 6 | 7 | 8 | 9 | 10 | 11 | 12 | 13 | 14 | 15 | 16 | 17 | 18 | 19 | 20 | 21 | 22 | 23 | 24 | 25 | 26 | 27 | 28 | 29 | 30 | 31 |
| Mai | F | S | S | M | D | M | D | F | S | S | M | D | M | D | F | S | S | M | D | M | D | F | S | S | M | D | M | D | F | S | S |
| Juni | M | D | M | D | F | S | S | M | D | M | D | F | S | S | M | D | M | D | F | S | S | M | D | M | D | F | S | S | M | D | |
| Juli | M | D | F | S | S | M | D | M | D | F | S | S | M | D | M | D | F | S | S | M | D | M | D | F | S | S | M | D | M | D | F |
| August | S | S | M | D | M | D | F | S | S | M | D | M | D | F | S | S | M | D | M | D | F | S | S | M | D | M | D | F | S | S | M |
| September | D | M | D | F | S | S | M | D | M | D | F | S | S | M | D | M | D | F | S | S | M | D | M | D | F | S | S | M | D | M | |
| Oktober | D | F | S | S | M | D | M | D | F | S | S | M | D | M | D | F | S | S | M | D | M | D | F | S | S | M | D | M | D | F | S |
| November | S | M | D | M | D | F | S | S | M | D | M | D | F | S | S | M | D | M | D | F | S | S | M | D | M | D | F | S | S | M | |
| Dezember | D | M | D | F | S | S | M | D | M | D | F | S | S | M | D | M | D | F | S | S | M | D | M | D | F | S | S | M | D | M | D |
| 2027 | 1 | 2 | 3 | 4 | 5 | 6 | 7 | 8 | 9 | 10 | 11 | 12 | 13 | 14 | 15 | 16 | 17 | 18 | 19 | 20 | 21 | 22 | 23 | 24 | 25 | 26 | 27 | 28 | 29 | 30 | 31 |
| Januar | F | S | S | M | D | M | D | F | S | S | M | D | M | D | F | S | S | M | D | M | D | F | S | S | M | D | M | D | F | S | S |
| Februar | M | D | M | D | F | S | S | M | D | M | D | F | S | S | M | D | M | D | F | S | S | M | D | M | D | F | S | S | |||
| März | M | D | M | D | F | S | S | M | D | M | D | F | S | S | M | D | M | D | F | S | S | M | D | M | D | F | S | S | M | D | M |
| April | D | F | S | S | M | D | M | D | F | S | S | M | D | M | D | F | S | S | M | D | M | D | F | S | S | M | D | M | D | F | |
| Mai | S | S | M | D | M | D | F | S | S | M | D | M | D | F | S | S | M | D | M | D | F | S | S | M | D | M | D | F | S | S | M |
| Juni | D | M | D | F | S | S | M | D | M | D | F | S | S | M | D | M | D | F | S | S | M | D | M | D | F | S | S | M | D | M | |
| Juli | D | F | S | S | M | D | M | D | F | S | S | M | D | M | D | F | S | S | M | D | M | D | F | S | S | M | D | M | D | F | S |
| August | S | M | D | M | D | F | S | S | M | D | M | D | F | S | S | M | D | M | D | F | S | S | M | D | M | D | F | S | S | M | D |
| September | M | D | F | S | S | M | D | M | D | F | S | S | M | D | M | D | F | S | S | M | D | M | D | F | S | S | M | D | M | D | |
| Oktober | F | S | S | M | D | M | D | F | S | S | M | D | M | D | F | S | S | M | D | M | D | F | S | S | M | D | M | D | F | S | S |
| November | M | D | M | D | F | S | S | M | D | M | D | F | S | S | M | D | M | D | F | S | S | M | D | M | D | F | S | S | M | D | |
| Dezember | M | D | F | S | S | M | D | M | D | F | S | S | M | D | M | D | F | S | S | M | D | M | D | F | S | S | M | D | M | D | F |
| 2028 | 1 | 2 | 3 | 4 | 5 | 6 | 7 | 8 | 9 | 10 | 11 | 12 | 13 | 14 | 15 | 16 | 17 | 18 | 19 | 20 | 21 | 22 | 23 | 24 | 25 | 26 | 27 | 28 | 29 | 30 | 31 |
| Januar | S | S | M | D | M | D | F | S | S | M | D | M | D | F | S | S | M | D | M | D | F | S | S | M | D | M | D | F | S | S | M |
| Februar | D | M | D | F | S | S | M | D | M | D | F | S | S | M | D | M | D | F | S | S | M | D | M | D | F | S | S | M | D | ||
| März | M | D | F | S | S | M | D | M | D | F | S | S | M | D | M | D | F | S | S | M | D | M | D | F | S | S | M | D | M | D | F |
| April | S | S | M | D | M | D | F | S | S | M | D | M | D | F | S | S | M | D | M | D | F | S | S | M | D | M | D | F | S | S | |
| Mai | M | D | M | D | F | S | S | M | D | M | D | F | S | S | M | D | M | D | F | S | S | M | D | M | D | F | S | S | M | D | M |
| Juni | D | F | S | S | M | D | M | D | F | S | S | M | D | M | D | F | S | S | M | D | M | D | F | S | S | M | D | M | D | F | |
| Juli | S | S | M | D | M | D | F | S | S | M | D | M | D | F | S | S | M | D | M | D | F | S | S | M | D | M | D | F | S | S | M |
| August | D | M | D | F | S | S | M | D | M | D | F | S | S | M | D | M | D | F | S | S | M | D | M | D | F | S | S | M | D | M | D |
| September | F | S | S | M | D | M | D | F | S | S | M | D | M | D | F | S | S | M | D | M | D | F | S | S | M | D | M | D | F | S | |
| Oktober | S | M | D | M | D | F | S | S | M | D | M | D | F | S | S | M | D | M | D | F | S | S | M | D | M | D | F | S | S | M | D |
| November | M | D | F | S | S | M | D | M | D | F | S | S | M | D | M | D | F | S | S | M | D | M | D | F | S | S | M | D | M | D | |
| Dezember | F | S | S | M | D | M | D | F | S | S | M | D | M | D | F | S | S | M | D | M | D | F | S | S | M | D | M | D | F | S | S |
| 2029 | 1 | 2 | 3 | 4 | 5 | 6 | 7 | 8 | 9 | 10 | 11 | 12 | 13 | 14 | 15 | 16 | 17 | 18 | 19 | 20 | 21 | 22 | 23 | 24 | 25 | 26 | 27 | 28 | 29 | 30 | 31 |
| Januar | M | D | M | D | F | S | S | M | D | M | D | F | S | S | M | D | M | D | F | S | S | M | D | M | D | F | S | S | M | D | M |
| Februar | D | F | S | S | M | D | M | D | F | S | S | M | D | M | D | F | S | S | M | D | M | D | F | S | S | M | D | M | |||
| März | D | F | S | S | M | D | M | D | F | S | S | M | D | M | D | F | S | S | M | D | M | D | F | S | S | M | D | M | D | F | S |
| April | S | M | D | M | D | F | S | S | M | D | M | D | F | S | S | M | D | M | D | F | S | S | M | D | M | D | F | S | S | M | |
| Mai | D | M | D | F | S | S | M | D | M | D | F | S | S | M | D | M | D | F | S | S | M | D | |||||||||