Ferienhaus 097 in Risvej 4, Vejers Strand
Gemütliches und „echtes“ Dünenferienhaus mit luxuriösem Wildnisbad, Sauna, vielen Kinderaktivitäten und vieles mehr…. Wild in naturbelassener Idylle, den Urlaub verbringen können.
Wenn Sie Ihren nächsten Urlaub mit der Familie planen, sollten Sie dieses helle und einladende Ferienhaus im Risvej 4 in Vejers in Betracht ziehen. Mit Platz für bis zu 6 Personen und2 Hunde können Sie sich auf einen Urlaub voller Entspannung und Gemütlichkeit freuen, nur 275 Meter von der wunderschönen Nordsee entfernt, wo Sie das Rau´schen des Meeres genießen können. Einkaufsmöglichkeiten im Ortskern und großer Wiking-Spielplatz. Ferienhaus mit Fokus auf Aktivitäten und Wellness und freiem herumlaufen in idyllischer Umgebung.
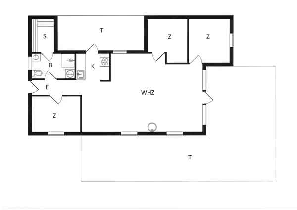
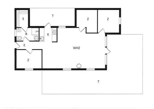
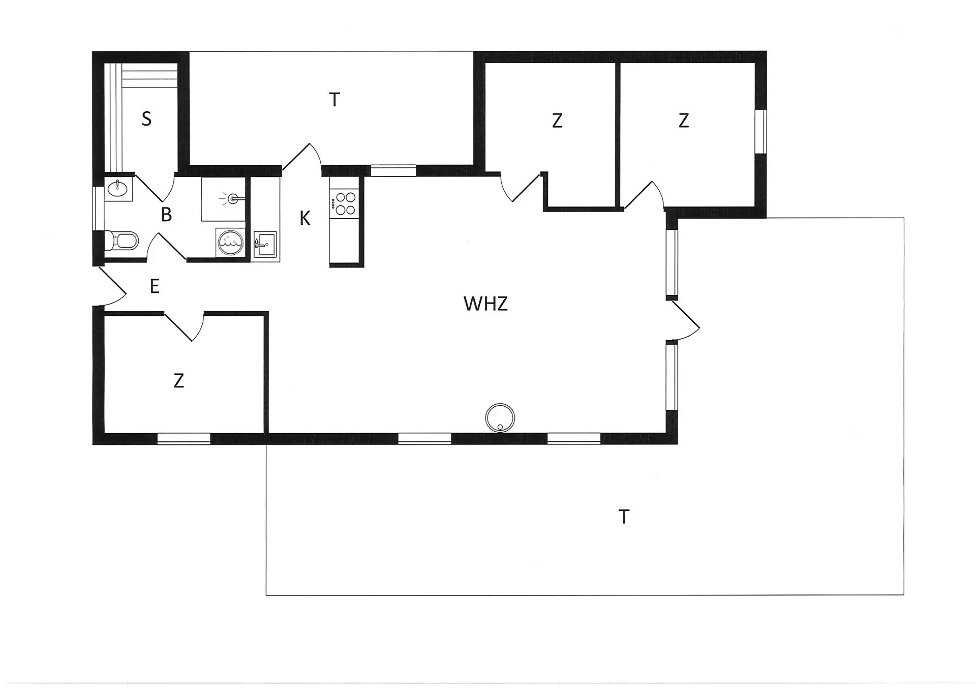
Im Inneren des Ferienhauses erwartet Sie eine helle und freundliche Einrichtung, die eine angenehme Atmosphäre schafft. Das Wohnzimmer ist der Mittelpunkt des Hauses, wo Sie Filme schauen, kochen und das Knistern des Kamins genießen können. Deutsches und dänisches Fernsehprogramm möglich. Es steht ebenfalls Chrome Cast zum Streamen zur Verfügung. Darüber hinaus bietet das Haus viele Indoor-Aktivitäten für Familien und Gäste jeden Alters, wie Billard, Minifußball, Mini-Tischtennis, Airhockey, DVD und diverse Filme und ein Regal voller Brettspiele. Der Küchenbereich ist zum Wohn- und Essbereich offengehalten und mit einem Herd mit Cerankochfeld, einem Backofen, einer Mikrowelle, einer Geschirrspülmaschine und einer Kühl- und Gefrierkombination ausgestattet. Das Badezimmer verfügt über ein WC, ein Handwaschbecken, eine Dusche und eine Sauna, die perfekt nach einem Spaziergang an der Nordsee benutzt werden kann. Vorab natürlich das Wildnisbad, das sich draußen auf dem Grundstück befindet. Das 73 Quadratmeter große Ferienhaus verfügt über drei komfortable Schlafzimmer – zwei mit je einem Doppelbett und eines mit zwei Einzelbetten (DB+DB+2EB). Zudem ist das Haus mit praktischen Annehmlichkeiten wie Waschmaschine und Trockner ausgestattet, sodass Sie den Urlaub mit Gemütlichkeit statt Hausarbeit verbringen können. Eine Wärmepumpe sorgt das ganze Jahr über für ein angenehmes Raumklima. Mit dieser Wärmepumpe haben Sie die Möglichkeit die Stromkosten zu senken, denn sie ist energiesparend. Das Rauchen im Ferienhaus ist nicht gestattet. Das Haus wurde 1984 erbaut und inm Jahr 1992 renoviert.
Der Außenbereich ist so gestaltet, dass Sie viele schöne Stunden im Freien verbringen können. Auf dem gemütlichen Naturgrundstück ist an große und kleine Feriengäste gedacht, sodass die ganze Familie gemeinsam schöne Momente genießen kann. Das Highlight ist zweifellos das herrliche Wildnisbad, in dem Sie unter freiem Himmel völlig entspannen können, besonders abends, wenn die Sterne am Himmel erscheinen.
Freies herumlaufen in naturbelassener Idylle 75m zu Einkaufsmöglichkeiten und großem Wikinger-Spielplatz auf dem Weg durch die Stadt zu fantastischen Sonnenuntergängen am Strand, nur 275m entfernt.
Das Ferienhaus verfügt über zwei Terrassen, auf denen Sie das schöne Ferienwetter genießen können. Die nach Osten ausgerichtete Terrasse ist perfekt für Ihren Morgenkaffee, während die nach Süden ausgerichtete Terrasse Ihnen ermöglicht, die Sonne den ganzen Tag über zu genießen. Hier finden Sie Gartenmöbel und Liegestühle, sodass Sie sich in der Sonne entspannen können, während die Kinder im Sandkasten spielen oder auf der Schaukel schaukeln.
HAUSTIERE:
Hunde erlaubt.
GUT ZU WISSEN:
Keine Vermietung an Jugendgruppen.
Kostenlose Parkplätze vor dem Haus.
Terrasse.
Der Verbrauch wird nach Ablesung abgerechnet.
Der Wasserverbrauch ist im Preis inbegriffen.
Die Reinigung ist im Preis inbegriffen.
3 Schlafzimmer. 1 mit Doppelbett 180x200 cm. 1 mit kleines Doppelbett 160x200 cm. 1 mit 2 Einzelbetten (je 90x200 cm).
Es ist möglich, ein Kinderbett und einen Hochstuhl im Büro zu leihen.
Bettwäsche ist nicht inbegriffen, kann aber gekauft werden.
Sauna.
NÄCHSTE EINKÄUFE:
Bäckerei 220 m vom Ferienhaus entfernt. Supermarkt "Storkøb" 350 m vom Ferienhaus entfernt.
ÖFFENTLICHE VERKEHRSMITTEL:
Der nächstgelegene Bahnhof befindet sich in Oksbøl, ca. 10 km von Vejers entfernt.
Hausbilder
Ausstattung
Allgemeines
- Anzahl Haustiere maximal: 2
- Anzahl Personen: 6
- Baujahr: 1987
- Haustiere erlaubt
- Nichtraucher
- Renovierung: 2020
- Wohnfläche: 73 m²
Entfernungen
- Abstand Einkauf: 300 m
- Abstand Restaurant: 300 m
- Abstand Strand: 275 m
Wohnbereich
- Kaminofen
Schlafbereich
- Anzahl Schlafzimmer: 3
Küche
- Geschirrspüler
- Mikrowelle
- Tiefkühler: 1 Kühl-/Gefrierschrank
Bad
- Trockner
- Waschmaschine
Wellness
- Sauna
Multimedia
- CD-Player
- Deutsches Fernsehen
- DVD-Player
- Internet
- Radio
Aussenbereich
- Sandkiste
- Schaukel
- Terrasse, geschlossen
Neben- und Verbrauchskosten
Die aktuellen Verbrauchskosten finden Sie im nächsten Schritt im Buchungsformular.
Raumaufteilung
Lageplan
Ferienhaus 097
Risvej 4
6853 Vejers Strand
Belegungskalender
- Reisedauer auswählen
- Anzahl Reisende auswählen
- Anreisetag im Belegungskalender anklicken
- Sie bekommen Verfügbarkeit und Preis angezeigt
| 2026 | 1 | 2 | 3 | 4 | 5 | 6 | 7 | 8 | 9 | 10 | 11 | 12 | 13 | 14 | 15 | 16 | 17 | 18 | 19 | 20 | 21 | 22 | 23 | 24 | 25 | 26 | 27 | 28 | 29 | 30 | 31 |
| Mai | F | S | S | M | D | M | D | F | S | S | M | D | M | D | F | S | S | M | D | M | D | F | S | S | M | D | M | D | F | S | S |
| Juni | M | D | M | D | F | S | S | M | D | M | D | F | S | S | M | D | M | D | F | S | S | M | D | M | D | F | S | S | M | D | |
| Juli | M | D | F | S | S | M | D | M | D | F | S | S | M | D | M | D | F | S | S | M | D | M | D | F | S | S | M | D | M | D | F |
| August | S | S | M | D | M | D | F | S | S | M | D | M | D | F | S | S | M | D | M | D | F | S | S | M | D | M | D | F | S | S | M |
| September | D | M | D | F | S | S | M | D | M | D | F | S | S | M | D | M | D | F | S | S | M | D | M | D | F | S | S | M | D | M | |
| Oktober | D | F | S | S | M | D | M | D | F | S | S | M | D | M | D | F | S | S | M | D | M | D | F | S | S | M | D | M | D | F | S |
| November | S | M | D | M | D | F | S | S | M | D | M | D | F | S | S | M | D | M | D | F | S | S | M | D | M | D | F | S | S | M | |
| Dezember | D | M | D | F | S | S | M | D | M | D | F | S | S | M | D | M | D | F | S | S | M | D | M | D | F | S | S | M | D | M | D |
| 2027 | 1 | 2 | 3 | 4 | 5 | 6 | 7 | 8 | 9 | 10 | 11 | 12 | 13 | 14 | 15 | 16 | 17 | 18 | 19 | 20 | 21 | 22 | 23 | 24 | 25 | 26 | 27 | 28 | 29 | 30 | 31 |
| Januar | F | S | S | M | D | M | D | F | S | S | M | D | M | D | F | S | S | M | D | M | D | F | S | S | M | D | M | D | F | S | S |
| Februar | M | D | M | D | F | S | S | M | D | M | D | F | S | S | M | D | M | D | F | S | S | M | D | M | D | F | S | S | |||
| März | M | D | M | D | F | S | S | M | D | M | D | F | S | S | M | D | M | D | F | S | S | M | D | M | D | F | S | S | M | D | M |
| April | D | F | S | S | M | D | M | D | F | S | S | M | D | M | D | F | S | S | M | D | M | D | F | S | S | M | D | M | D | F | |
| Mai | S | S | M | D | M | D | F | S | S | M | D | M | D | F | S | S | M | D | M | D | F | S | S | M | D | M | D | F | S | S | M |
| Juni | D | M | D | F | S | S | M | D | M | D | F | S | S | M | D | M | D | F | S | S | M | D | M | D | F | S | S | M | D | M | |
| Juli | D | F | S | S | M | D | M | D | F | S | S | M | D | M | D | F | S | S | M | D | M | D | F | S | S | M | D | M | D | F | S |
| August | S | M | D | M | D | F | S | S | M | D | M | D | F | S | S | M | D | M | D | F | S | S | M | D | M | D | F | S | S | M | D |
| September | M | D | F | S | S | M | D | M | D | F | S | S | M | D | M | D | F | S | S | M | D | M | D | F | S | S | M | D | M | D | |
| Oktober | F | S | S | M | D | M | D | F | S | S | M | D | M | D | F | S | S | M | D | M | D | F | S | S | M | D | M | D | F | S | S |
| November | M | D | M | D | F | S | S | M | D | M | D | F | S | S | M | D | M | D | F | S | S | M | D | M | D | F | S | S | M | D | |
| Dezember | M | D | F | S | S | M | D | M | D | F | S | S | M | D | M | D | F | S | S | M | D | M | D | F | S | S | M | D | M | D | F |
| 2028 | 1 | 2 | 3 | 4 | 5 | 6 | 7 | 8 | 9 | 10 | 11 | 12 | 13 | 14 | 15 | 16 | 17 | 18 | 19 | 20 | 21 | 22 | 23 | 24 | 25 | 26 | 27 | 28 | 29 | 30 | 31 |
| Januar | S | S | M | D | M | D | F | S | S | M | D | M | D | F | S | S | M | D | M | D | F | S | S | M | D | M | D | F | S | S | M |
| Februar | D | M | D | F | S | S | M | D | M | D | F | S | S | M | D | M | D | F | S | S | M | D | M | D | F | S | S | M | D | ||
| März | M | D | F | S | S | M | D | M | D | F | S | S | M | D | M | D | F | S | S | M | D | M | D | F | S | S | M | D | M | D | F |
| April | S | S | M | D | M | D | F | S | S | M | D | M | D | F | S | S | M | D | M | D | F | S | S | M | D | M | D | F | S | S | |
| Mai | M | D | M | D | F | S | S | M | D | M | D | F | S | S | M | D | M | D | F | S | S | M | D | M | D | F | S | S | M | D | M |
| Juni | D | F | S | S | M | D | M | D | F | S | S | M | D | M | D | F | S | S | M | D | M | D | F | S | S | M | D | M | D | F | |
| Juli | S | S | M | D | M | D | F | S | S | M | D | M | D | F | S | S | M | D | M | D | F | S | S | M | D | M | D | F | S | S | M |
| August | D | M | D | F | S | S | M | D | M | D | F | S | S | M | D | M | D | F | S | S | M | D | M | D | F | S | S | M | D | M | D |
| September | F | S | S | M | D | M | D | F | S | S | M | D | M | D | F | S | S | M | D | M | D | F | S | S | M | D | M | D | F | S | |
| Oktober | S | M | D | M | D | F | S | S | M | D | M | D | F | S | S | M | D | M | D | F | S | S | M | D | M | D | F | S | S | M | D |
| November | M | D | F | S | S | M | D | M | D | F | S | S | M | D | M | D | F | S | S | M | D | M | D | F | S | S | M | D | M | D | |
| Dezember | F | S | S | M | D | M | D | F | S | S | M | D | M | D | F | S | S | M | D | M | D | F | S | S | M | D | M | D | F | S | S |
| 2029 | 1 | 2 | 3 | 4 | 5 | 6 | 7 | 8 | 9 | 10 | 11 | 12 | 13 | 14 | 15 | 16 | 17 | 18 | 19 | 20 | 21 | 22 | 23 | 24 | 25 | 26 | 27 | 28 | 29 | 30 | 31 |
| Januar | M | D | M | D | F | S | S | M | D | M | D | F | S | S | M | D | M | D | F | S | S | M | D | M | D | F | S | S | M | D | M |
| Februar | D | F | S | S | M | D | M | D | F | S | S | M | D | M | D | F | S | S | M | D | M | D | F | S | S | M | D | M | |||
| März | D | F | S | S | M | D | M | D | F | S | S | M | D | M | D | F | S | S | M | D | M | D | F | S | S | M | D | M | D | F | S |
| April | S | M | D | M | D | F | S | S | M | D | M | D | F | S | S | M | D | M | D | F | S | S | M | D | M | D | F | S | S | M | |
| Mai | D | M | D | F | S | S | M | D | M | D | F | S | S | M | D | M | D | F | S | S | M | D | |||||||||