Ferienhaus 152 in Jafdalvej 101, Vejers Strand
Schönes Poolhaus auf einen Naturgrundstück gelegen
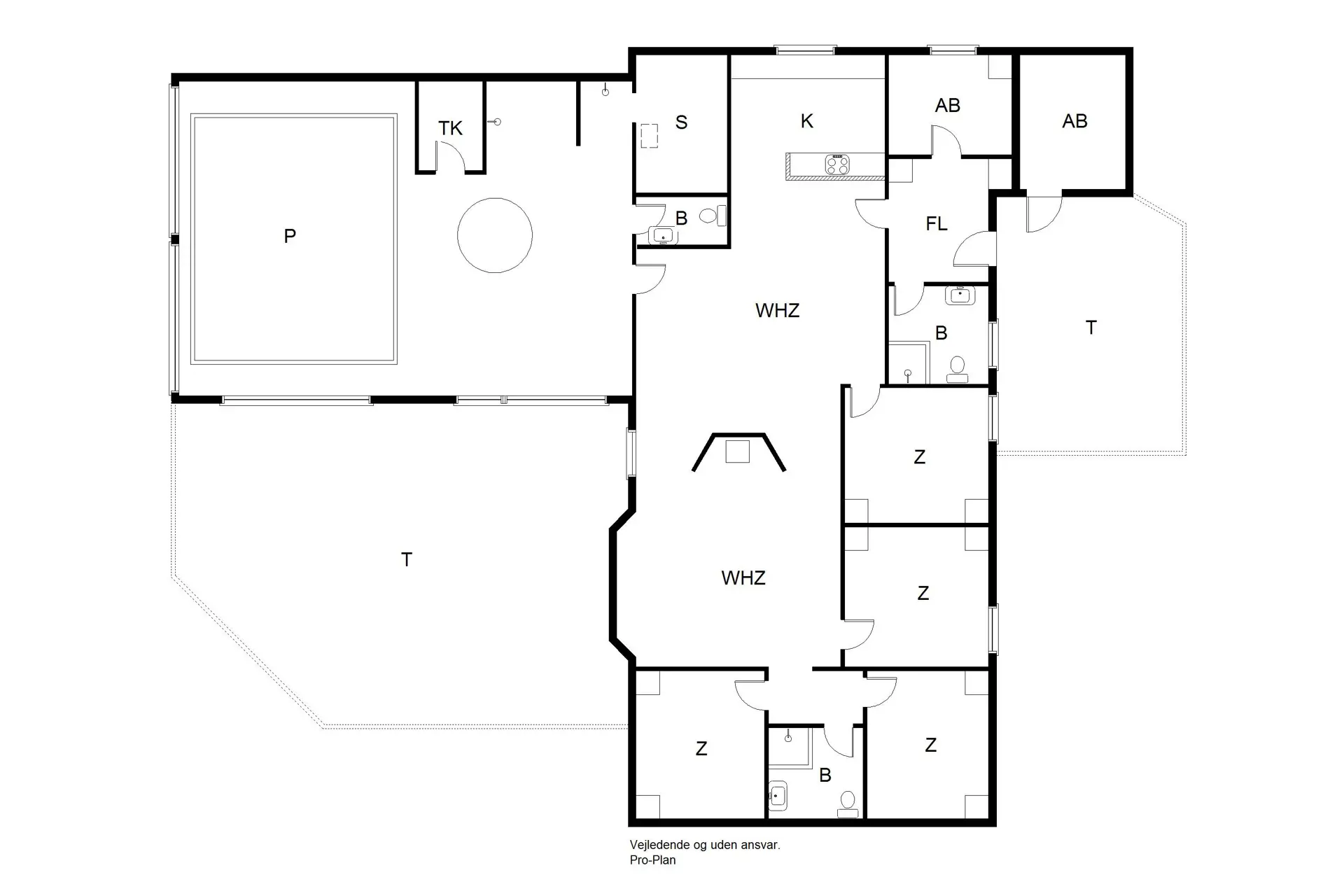
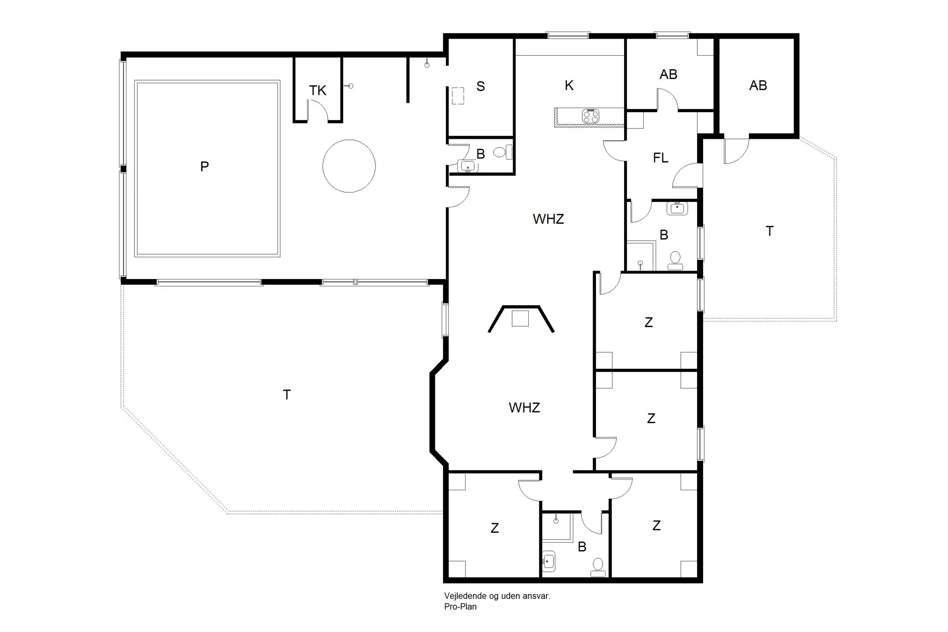
Großes flott eingerichtetes Poolhaus für 8 Personen mit ausreichendem Platz für alle seine Bewohner. Das Poolhaus liegt auf einem großen Grundstück am Ende einer Sackgasse mit einem tollen Blick auf den See. Der Strand ist ca. 1,1 Km vom Ferienhaus entfernt. Zwischen dem Wohn- und Essbereich ist der Kamin aufgestellt. Im Wohnbereich befinden sich gemütliche helle Ledersitzmöbel. Das deutsche Fernsehprogramm empfangen Sie über eine Parabolantenne. Ein DVD-Abspielgerät steht ebenfalls zur Verfügung sowie Chrome Cast. Der Essbereich ist zur Küche hin offen gehalten. Die Küche verfügt über einen Herd mit Cerankochfeld, einem Backofen in Arbeitshöhe, einer Geschirrspülmaschine, einer Mikrowelle und einer Kühl- und Gefrierkombination. Es gibt insgesamt vier Schlafzimmer im Ferienhaus: DB + DB + DB + DB. Auf dem Hems befinden sich weitere zwei Schlafplätze mit Matratzen und niedliche Sitzmöbel. Im ganzen Ferienhaus gibt es insgesamt zwei Bäder und ein Gäste WC. Die beiden Bäder sind jeweils mit einem WC, einem Handwaschbecken und einer Dusche ausgestattet. Im Poolbereich befindet sich das Schwimmbecken mit einer Grösse von ca. 5 x 3,5 x 1,30 Meter ( Länge x Breite x Tiefe). Vom Schwimmbecken aus haben Sie durch die große Fensterfront einen wundervollen Blick auf den See. Der Standwasser-Whirlpool ist hier im separaten Poolraum untergebracht und bietet Platz für 5 Personen. Der Standwasser-Whirlpool ist gleich betriebsbereit und kann bei Ankunft sofort genutzt werden. Hier brauchen Sie nicht abwarten und Wasser einfüllen, er steht ständig mit Wasser gefüllt. Vom Poolraum geht ein weiteres Gäste WC mit Handwaschbecken ab. So brauchen Sie nicht immer durchs Haus um in die normalen Bäder zu gelangen. Der Zugang zur Sauna ist hier vom Poolbereich. Um eine kleine Pause, nach dem Schwimmen, einzulegen zu können, stehen Ihnen ein paar Rattanmöbel zum Sitzen zur Verfügung. Das Haus verfügt über eine Luft-Wasser-Wärmepumpe zur Beheizung des Pools, um den Stromverbrauch zu senken. Eine Waschmaschine und ein Trockner sind im Ferienhaus auch untergebracht. Zwei schöne Terrassenbereiche stehen am Ferienhaus den Bewohnern zur Verfügung. Gestalten Sie Ihren Grillabend oder nehmen Sie einfach nur mal ein Sonnenbad auf einer der Terrassen und genießen den Urlaub. Es sind max. zwei Haustiere erlaubt. Katzen sind nicht erlaubt. Im Haus befindet sich ein Telefon, allerdings können hier nur Gespräche angenommen werden. Das Ferienhaus verfügt über einen Internetanschluss (W-Lan). Ein Gasgrill und ein Holzkohlegrill steht den Gästen zur Verfügung. Für Gas für den Grill befinden sich 2 Flasen im Hause und der Eigentümer stellt diese kostenfrei zur Verfügung. Sollten die Flaschen leer sein, bitte das büro kontaktieren. Für die Kleinen Gäste befindet sich ein schönes Klettergerüst, mit Schaukel, Kletterleiter und Klettertaue und Rutsche zur Verfügung. Ein Spielhaus, eine Sandkiste und ein Trampolien stehen den Kleinen ebenfalls zur Verfügung. Platz zum Bolzen ist auch auf dem Grundstück möglich. Das Rauchen ist nicht gestattet. Das Ferienhaus ist 1989 erbaut worden und laufend renoviert.
Bei diesem Haus ist die Anreise bereits ab 14.00 Uhr möglich und Abreise bitte spätestens Um 10.00 Uhr.
HAUSTIERE:
Hunde erlaubt.
GUT ZU WISSEN:
Keine Vermietung an Jugendgruppen.
Kostenlose Parkplätze vor dem Haus.
Teilweise geschlossene Terrasse.
Verbrauchsabrechnung nach Ablesung.
Der Wasserverbrauch ist im Preis inbegriffen.
Die Reinigung ist im Preis inbegriffen.
4 Schlafzimmer mit Doppelbett. (2 x 140x200 und 2 x 160x200).
Es ist möglich, ein Kinderbett und Hochstuhl aus dem Büro zu leihen.
Spa und Sauna.
Hallenbad.
Bettwäsche ist nicht inbegriffen, kann aber gekauft werden.
NÄCHSTE GESCHÄFTE:
Bäckerei 2,4 km vom Ferienhaus entfernt. Supermarkt: Supermarkt 2,5 km vom Ferienhaus entfernt.
ÖFFENTLICHE VERKEHRSMITTEL:
Der nächstgelegene Bahnhof befindet sich in Oksbøl, ca. 10 km von Vejers entfernt.
Hausbilder
Ausstattung
Allgemeines
- Anzahl Haustiere maximal: 2
- Anzahl Personen: 8
- Baujahr: 1989
- Haustiere erlaubt
- Nichtraucher
- Wohnfläche: 168 m²
Entfernungen
- Abstand Einkauf: 800 m
- Abstand Restaurant: 800 m
- Abstand Strand: 1.100 m
Wohnbereich
- Kaminofen
Schlafbereich
- Anzahl Schlafzimmer: 4
Küche
- Geschirrspüler
- Mikrowelle
- Tiefkühler: 1 Gefrierschrank
Bad
- Anzahl Extraduschen: 1 1
- Anzahl Extratoiletten: 1
- Trockner
- Waschmaschine
Wellness
- Pool
- Sauna
- Whirlpool Standwasser-Whirlpool
Multimedia
- Deutsches Fernsehen
- DVD-Player
- Internationales Fernsehen
- Internet
- Radio
Aussenbereich
- Sandkiste
- Schaukel
Sonstiges
- Besonderheiten Katzen sind nicht erlaubt
Neben- und Verbrauchskosten
Die aktuellen Verbrauchskosten finden Sie im nächsten Schritt im Buchungsformular.
Raumaufteilung
Lageplan
Ferienhaus 152
Jafdalvej 101
6853 Vejers Strand
Belegungskalender
- Reisedauer auswählen
- Anzahl Reisende auswählen
- Anreisetag im Belegungskalender anklicken
- Sie bekommen Verfügbarkeit und Preis angezeigt
| 2026 | 1 | 2 | 3 | 4 | 5 | 6 | 7 | 8 | 9 | 10 | 11 | 12 | 13 | 14 | 15 | 16 | 17 | 18 | 19 | 20 | 21 | 22 | 23 | 24 | 25 | 26 | 27 | 28 | 29 | 30 | 31 |
| Mai | F | S | S | M | D | M | D | F | S | S | M | D | M | D | F | S | S | M | D | M | D | F | S | S | M | D | M | D | F | S | S |
| Juni | M | D | M | D | F | S | S | M | D | M | D | F | S | S | M | D | M | D | F | S | S | M | D | M | D | F | S | S | M | D | |
| Juli | M | D | F | S | S | M | D | M | D | F | S | S | M | D | M | D | F | S | S | M | D | M | D | F | S | S | M | D | M | D | F |
| August | S | S | M | D | M | D | F | S | S | M | D | M | D | F | S | S | M | D | M | D | F | S | S | M | D | M | D | F | S | S | M |
| September | D | M | D | F | S | S | M | D | M | D | F | S | S | M | D | M | D | F | S | S | M | D | M | D | F | S | S | M | D | M | |
| Oktober | D | F | S | S | M | D | M | D | F | S | S | M | D | M | D | F | S | S | M | D | M | D | F | S | S | M | D | M | D | F | S |
| November | S | M | D | M | D | F | S | S | M | D | M | D | F | S | S | M | D | M | D | F | S | S | M | D | M | D | F | S | S | M | |
| Dezember | D | M | D | F | S | S | M | D | M | D | F | S | S | M | D | M | D | F | S | S | M | D | M | D | F | S | S | M | D | M | D |
| 2027 | 1 | 2 | 3 | 4 | 5 | 6 | 7 | 8 | 9 | 10 | 11 | 12 | 13 | 14 | 15 | 16 | 17 | 18 | 19 | 20 | 21 | 22 | 23 | 24 | 25 | 26 | 27 | 28 | 29 | 30 | 31 |
| Januar | F | S | S | M | D | M | D | F | S | S | M | D | M | D | F | S | S | M | D | M | D | F | S | S | M | D | M | D | F | S | S |
| Februar | M | D | M | D | F | S | S | M | D | M | D | F | S | S | M | D | M | D | F | S | S | M | D | M | D | F | S | S | |||
| März | M | D | M | D | F | S | S | M | D | M | D | F | S | S | M | D | M | D | F | S | S | M | D | M | D | F | S | S | M | D | M |
| April | D | F | S | S | M | D | M | D | F | S | S | M | D | M | D | F | S | S | M | D | M | D | F | S | S | M | D | M | D | F | |
| Mai | S | S | M | D | M | D | F | S | S | M | D | M | D | F | S | S | M | D | M | D | F | S | S | M | D | M | D | F | S | S | M |
| Juni | D | M | D | F | S | S | M | D | M | D | F | S | S | M | D | M | D | F | S | S | M | D | M | D | F | S | S | M | D | M | |
| Juli | D | F | S | S | M | D | M | D | F | S | S | M | D | M | D | F | S | S | M | D | M | D | F | S | S | M | D | M | D | F | S |
| August | S | M | D | M | D | F | S | S | M | D | M | D | F | S | S | M | D | M | D | F | S | S | M | D | M | D | F | S | S | M | D |
| September | M | D | F | S | S | M | D | M | D | F | S | S | M | D | M | D | F | S | S | M | D | M | D | F | S | S | M | D | M | D | |
| Oktober | F | S | S | M | D | M | D | F | S | S | M | D | M | D | F | S | S | M | D | M | D | F | S | S | M | D | M | D | F | S | S |
| November | M | D | M | D | F | S | S | M | D | M | D | F | S | S | M | D | M | D | F | S | S | M | D | M | D | F | S | S | M | D | |
| Dezember | M | D | F | S | S | M | D | M | D | F | S | S | M | D | M | D | F | S | S | M | D | M | D | F | S | S | M | D | M | D | F |
| 2028 | 1 | 2 | 3 | 4 | 5 | 6 | 7 | 8 | 9 | 10 | 11 | 12 | 13 | 14 | 15 | 16 | 17 | 18 | 19 | 20 | 21 | 22 | 23 | 24 | 25 | 26 | 27 | 28 | 29 | 30 | 31 |
| Januar | S | S | M | D | M | D | F | S | S | M | D | M | D | F | S | S | M | D | M | D | F | S | S | M | D | M | D | F | S | S | M |
| Februar | D | M | D | F | S | S | M | D | M | D | F | S | S | M | D | M | D | F | S | S | M | D | M | D | F | S | S | M | D | ||
| März | M | D | F | S | S | M | D | M | D | F | S | S | M | D | M | D | F | S | S | M | D | M | D | F | S | S | M | D | M | D | F |
| April | S | S | M | D | M | D | F | S | S | M | D | M | D | F | S | S | M | D | M | D | F | S | S | M | D | M | D | F | S | S | |
| Mai | M | D | M | D | F | S | S | M | D | M | D | F | S | S | M | D | M | D | F | S | S | M | D | M | D | F | S | S | M | D | M |
| Juni | D | F | S | S | M | D | M | D | F | S | S | M | D | M | D | F | S | S | M | D | M | D | F | S | S | M | D | M | D | F | |
| Juli | S | S | M | D | M | D | F | S | S | M | D | M | D | F | S | S | M | D | M | D | F | S | S | M | D | M | D | F | S | S | M |
| August | D | M | D | F | S | S | M | D | M | D | F | S | S | M | D | M | D | F | S | S | M | D | M | D | F | S | S | M | D | M | D |
| September | F | S | S | M | D | M | D | F | S | S | M | D | M | D | F | S | S | M | D | M | D | F | S | S | M | D | M | D | F | S | |
| Oktober | S | M | D | M | D | F | S | S | M | D | M | D | F | S | S | M | D | M | D | F | S | S | M | D | M | D | F | S | S | M | D |
| November | M | D | F | S | S | M | D | M | D | F | S | S | M | D | M | D | F | S | S | M | D | M | D | F | S | S | M | D | M | D | |
| Dezember | F | S | S | M | D | M | D | F | S | S | M | D | M | D | F | S | S | M | D | M | D | F | S | S | M | D | M | D | F | S | S |
| 2029 | 1 | 2 | 3 | 4 | 5 | 6 | 7 | 8 | 9 | 10 | 11 | 12 | 13 | 14 | 15 | 16 | 17 | 18 | 19 | 20 | 21 | 22 | 23 | 24 | 25 | 26 | 27 | 28 | 29 | 30 | 31 |
| Januar | M | D | M | D | F | S | S | M | D | M | D | F | S | S | M | D | M | D | F | S | S | M | D | M | D | F | S | S | M | D | M |
| Februar | D | F | S | S | M | D | M | D | F | S | S | M | D | M | D | F | S | S | M | D | M | D | F | S | S | M | D | M | |||
| März | D | F | S | S | M | D | M | D | F | S | S | M | D | M | D | F | S | S | M | D | M | D | F | S | S | M | D | M | D | F | S |
| April | S | M | D | M | D | F | S | S | M | D | M | D | F | S | S | M | D | M | D | F | S | S | M | D | M | D | F | S | S | M | |
| Mai | D | M | D | F | S | S | M | D | M | D | F | S | S | M | D | M | D | F | S | S | M | D | |||||||||