Ferienhaus 155 in Nordvej 116 A, Vejers Strand
Dieses hübsche Reetdachhaus ist für 6 Personen ausgestattet und liegt nur 200 Meter vom Strand entfernt in Mitten der Dünenlandschaft. Das Wohnzimmer ist geschmackvoll eingerichtet mit seinen Möbeln und in zwei Wohnbereiche aufgeteilt. Der Kaminofen ist in einem der Bereiche aufgestellt und stahlt eine angenehme Wärme aus. Es befindet sich eine Warmepumpe im Ferienhaus. Mit dieser Warmepumpe haben sie die Möglichkeit die Stromkosten zu senken, denn die Warmepumpe ist energiesparend. Das deutsche Fernsehprogramm empfangen Sie über eine Parabolantenne (Smart-Tv). Desweiteren befindet sich ein DVD-Abspielgerät im Ferienhaus. Fussbodenheizung im Wohnzimmer. Die Küche ist mit dem Essbereich offen gehalten und verfügt über einen Herd mit Cerankochfeld, einem Backofen, einer Geschirrspülmaschine, einer Mikrowelle, einem Kühlschrank und einem kleinen Gefrierfach. Ein Kinderhochstuhl steht für die Kleinen Gäste zur Verfügung. Es gibt zwei schöne Badezimmer im Haus. Das eine Bad ist mit einem WC, einem Handwaschbecken, einem großem Whirlpool und. Das zweite Badezimmer ist mit einem WC, einem Handwaschbecken, einer Dusche und der Sauna ausgestattet. Eine Waschmaschine steht für die Gäste auch zur Verfügung und ist in dem Badezimmer mit der Sauna untergebracht. Insgesamt befinden sich drei Schlafzimmer im Ferienhaus: DB + DB + 2B im etagenbett. Rauchen ist nicht erlaubt. Am Ferienhaus befindet sich ein großzügiger Terrassenbereich. Ein kleiner Teil davon ist sogar überdacht und teilweise geschlossen. Auf der Terrasse ist eine kleine Sandkiste für die kleinen Gäste aufgestellt. Das Ferienhaus Verfügung über einen Internetanschluss (W-Lan)(25/25). Es sind max. zwei Haustiere erlaubt. Das Ferienhaus ist 1988 erbaut worden und in 2009 renoviert.
HAUSTIERE:
Hunde erlaubt.
GUT ZU WISSEN:
Keine Vermietung an Jugendgruppen.
Kostenlose Parkplätze vor dem Haus.
Teilweise geschlossene Terrasse.
Verbrauchsabrechnung nach Ablesung.
Der Wasserverbrauch ist im Preis inbegriffen.
Die Reinigung ist im Preis inbegriffen.
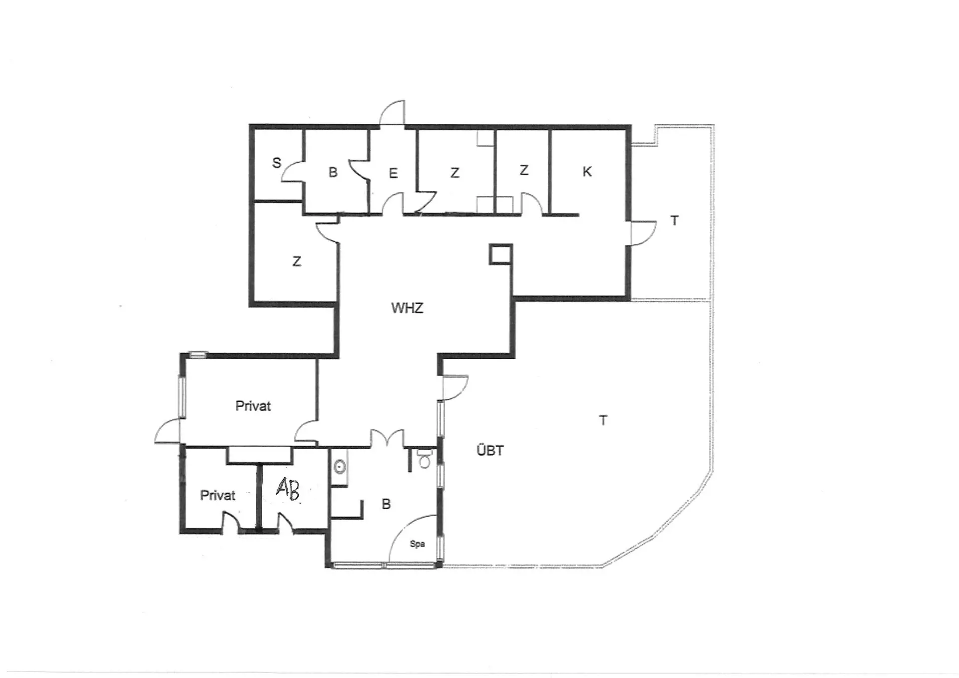
3 Schlafzimmer. 2 mit Doppelbett 140x200 cm. 1 mit Etagenbett.
Es ist möglich, ein Kinderbett und Hochstuhl aus dem Büro zu leihen.
Sauna und Spa.
Bettwäsche ist nicht inbegriffen, kann aber gekauft werden.
NÄCHSTE EINKAUFSMÖGLICHKEITEN:
Bäckerei 1,4 km vom Ferienhaus entfernt. Supermarkt Supermarkt 13 km vom Ferienhaus entfernt.
ÖFFENTLICHE VERKEHRSMITTEL:
Der nächstgelegene Bahnhof befindet sich in Oksbøl, ca. 10 km von Vejers entfernt.
Hausbilder
Ausstattung
Allgemeines
- Anzahl Haustiere maximal: 2
- Anzahl Personen: 6
- Baujahr: 1988
- Haustiere erlaubt
- Nichtraucher
- Renovierung: 2009
- Wohnfläche: 122 m²
Entfernungen
- Abstand Einkauf: 500 m
- Abstand Restaurant: 500 m
- Abstand Strand: 200 m
Wohnbereich
- Kaminofen
Schlafbereich
- Anzahl Schlafzimmer: 3
Küche
- Geschirrspüler
- Mikrowelle
- Tiefkühler: 1 Gefrierschrank
Bad
- Anzahl Extraduschen: 1 1
- Anzahl Extratoiletten: 1
- Waschmaschine
Wellness
- Sauna
- Whirlpool
Multimedia
- CD-Player
- Deutsches Fernsehen
- DVD-Player
- Internationales Fernsehen
- Internet
- Radio
Neben- und Verbrauchskosten
Die aktuellen Verbrauchskosten finden Sie im nächsten Schritt im Buchungsformular.
Raumaufteilung
Lageplan
Ferienhaus 155
Nordvej 116 A
6853 Vejers Strand
Belegungskalender
- Reisedauer auswählen
- Anzahl Reisende auswählen
- Anreisetag im Belegungskalender anklicken
- Sie bekommen Verfügbarkeit und Preis angezeigt
| 2026 | 1 | 2 | 3 | 4 | 5 | 6 | 7 | 8 | 9 | 10 | 11 | 12 | 13 | 14 | 15 | 16 | 17 | 18 | 19 | 20 | 21 | 22 | 23 | 24 | 25 | 26 | 27 | 28 | 29 | 30 | 31 |
| Mai | F | S | S | M | D | M | D | F | S | S | M | D | M | D | F | S | S | M | D | M | D | F | S | S | M | D | M | D | F | S | S |
| Juni | M | D | M | D | F | S | S | M | D | M | D | F | S | S | M | D | M | D | F | S | S | M | D | M | D | F | S | S | M | D | |
| Juli | M | D | F | S | S | M | D | M | D | F | S | S | M | D | M | D | F | S | S | M | D | M | D | F | S | S | M | D | M | D | F |
| August | S | S | M | D | M | D | F | S | S | M | D | M | D | F | S | S | M | D | M | D | F | S | S | M | D | M | D | F | S | S | M |
| September | D | M | D | F | S | S | M | D | M | D | F | S | S | M | D | M | D | F | S | S | M | D | M | D | F | S | S | M | D | M | |
| Oktober | D | F | S | S | M | D | M | D | F | S | S | M | D | M | D | F | S | S | M | D | M | D | F | S | S | M | D | M | D | F | S |
| November | S | M | D | M | D | F | S | S | M | D | M | D | F | S | S | M | D | M | D | F | S | S | M | D | M | D | F | S | S | M | |
| Dezember | D | M | D | F | S | S | M | D | M | D | F | S | S | M | D | M | D | F | S | S | M | D | M | D | F | S | S | M | D | M | D |
| 2027 | 1 | 2 | 3 | 4 | 5 | 6 | 7 | 8 | 9 | 10 | 11 | 12 | 13 | 14 | 15 | 16 | 17 | 18 | 19 | 20 | 21 | 22 | 23 | 24 | 25 | 26 | 27 | 28 | 29 | 30 | 31 |
| Januar | F | S | S | M | D | M | D | F | S | S | M | D | M | D | F | S | S | M | D | M | D | F | S | S | M | D | M | D | F | S | S |
| Februar | M | D | M | D | F | S | S | M | D | M | D | F | S | S | M | D | M | D | F | S | S | M | D | M | D | F | S | S | |||
| März | M | D | M | D | F | S | S | M | D | M | D | F | S | S | M | D | M | D | F | S | S | M | D | M | D | F | S | S | M | D | M |
| April | D | F | S | S | M | D | M | D | F | S | S | M | D | M | D | F | S | S | M | D | M | D | F | S | S | M | D | M | D | F | |
| Mai | S | S | M | D | M | D | F | S | S | M | D | M | D | F | S | S | M | D | M | D | F | S | S | M | D | M | D | F | S | S | M |
| Juni | D | M | D | F | S | S | M | D | M | D | F | S | S | M | D | M | D | F | S | S | M | D | M | D | F | S | S | M | D | M | |
| Juli | D | F | S | S | M | D | M | D | F | S | S | M | D | M | D | F | S | S | M | D | M | D | F | S | S | M | D | M | D | F | S |
| August | S | M | D | M | D | F | S | S | M | D | M | D | F | S | S | M | D | M | D | F | S | S | M | D | M | D | F | S | S | M | D |
| September | M | D | F | S | S | M | D | M | D | F | S | S | M | D | M | D | F | S | S | M | D | M | D | F | S | S | M | D | M | D | |
| Oktober | F | S | S | M | D | M | D | F | S | S | M | D | M | D | F | S | S | M | D | M | D | F | S | S | M | D | M | D | F | S | S |
| November | M | D | M | D | F | S | S | M | D | M | D | F | S | S | M | D | M | D | F | S | S | M | D | M | D | F | S | S | M | D | |
| Dezember | M | D | F | S | S | M | D | M | D | F | S | S | M | D | M | D | F | S | S | M | D | M | D | F | S | S | M | D | M | D | F |
| 2028 | 1 | 2 | 3 | 4 | 5 | 6 | 7 | 8 | 9 | 10 | 11 | 12 | 13 | 14 | 15 | 16 | 17 | 18 | 19 | 20 | 21 | 22 | 23 | 24 | 25 | 26 | 27 | 28 | 29 | 30 | 31 |
| Januar | S | S | M | D | M | D | F | S | S | M | D | M | D | F | S | S | M | D | M | D | F | S | S | M | D | M | D | F | S | S | M |
| Februar | D | M | D | F | S | S | M | D | M | D | F | S | S | M | D | M | D | F | S | S | M | D | M | D | F | S | S | M | D | ||
| März | M | D | F | S | S | M | D | M | D | F | S | S | M | D | M | D | F | S | S | M | D | M | D | F | S | S | M | D | M | D | F |
| April | S | S | M | D | M | D | F | S | S | M | D | M | D | F | S | S | M | D | M | D | F | S | S | M | D | M | D | F | S | S | |
| Mai | M | D | M | D | F | S | S | M | D | M | D | F | S | S | M | D | M | D | F | S | S | M | D | M | D | F | S | S | M | D | M |
| Juni | D | F | S | S | M | D | M | D | F | S | S | M | D | M | D | F | S | S | M | D | M | D | F | S | S | M | D | M | D | F | |
| Juli | S | S | M | D | M | D | F | S | S | M | D | M | D | F | S | S | M | D | M | D | F | S | S | M | D | M | D | F | S | S | M |
| August | D | M | D | F | S | S | M | D | M | D | F | S | S | M | D | M | D | F | S | S | M | D | M | D | F | S | S | M | D | M | D |
| September | F | S | S | M | D | M | D | F | S | S | M | D | M | D | F | S | S | M | D | M | D | F | S | S | M | D | M | D | F | S | |
| Oktober | S | M | D | M | D | F | S | S | M | D | M | D | F | S | S | M | D | M | D | F | S | S | M | D | M | D | F | S | S | M | D |
| November | M | D | F | S | S | M | D | M | D | F | S | S | M | D | M | D | F | S | S | M | D | M | D | F | S | S | M | D | M | D | |
| Dezember | F | S | S | M | D | M | D | F | S | S | M | D | M | D | F | S | S | M | D | M | D | F | S | S | M | D | M | D | F | S | S |
| 2029 | 1 | 2 | 3 | 4 | 5 | 6 | 7 | 8 | 9 | 10 | 11 | 12 | 13 | 14 | 15 | 16 | 17 | 18 | 19 | 20 | 21 | 22 | 23 | 24 | 25 | 26 | 27 | 28 | 29 | 30 | 31 |
| Januar | M | D | M | D | F | S | S | M | D | M | D | F | S | S | M | D | M | D | F | S | S | M | D | M | D | F | S | S | M | D | M |
| Februar | D | F | S | S | M | D | M | D | F | S | S | M | D | M | D | F | S | S | M | D | M | D | F | S | S | M | D | M | |||
| März | D | F | S | S | M | D | M | D | F | S | S | M | D | M | D | F | S | S | M | D | M | D | F | S | S | M | D | M | D | F | S |
| April | S | M | D | M | D | F | S | S | M | D | M | D | F | S | S | M | D | M | D | F | S | S | M | D | M | D | F | S | S | M | |
| Mai | D | M | D | F | S | S | M | D | M | D | F | S | S | M | D | M | D | F | S | S | M | D | |||||||||