Ferienhaus 60102 in Sønder-Vasevej 76, Blåvand Strand
Möchtet ihr einen entspannten Urlaub in einer schönen Umgebung? So ist dieses Ferienhaus für insgesamt bis zu 8 Personen sowie euren Hund auf jeden Fall das Richtige. Ihr werdet in einem schönen Haus auf einem großen Grundstück wohnen. Sauna und Whirlpool sowie eine fantastische Lage nahe dem Strand und dem Zentrum von Blåvand sind ein weiterer Pluspunkt.
Schönes und geräumiges Haus mit Platz für viel Spaß
Sobald ihr im Sonder Vasevej 76 durch die Tür des Hauses hineingeht, werdet ihr feststellen, dass ihr hier richtig seid. Das geschmackvolle und geräumige Haus setzt von Anfang an den Rahmen für entspannte Ferien, mit Allem, was euer Herz begehrt.
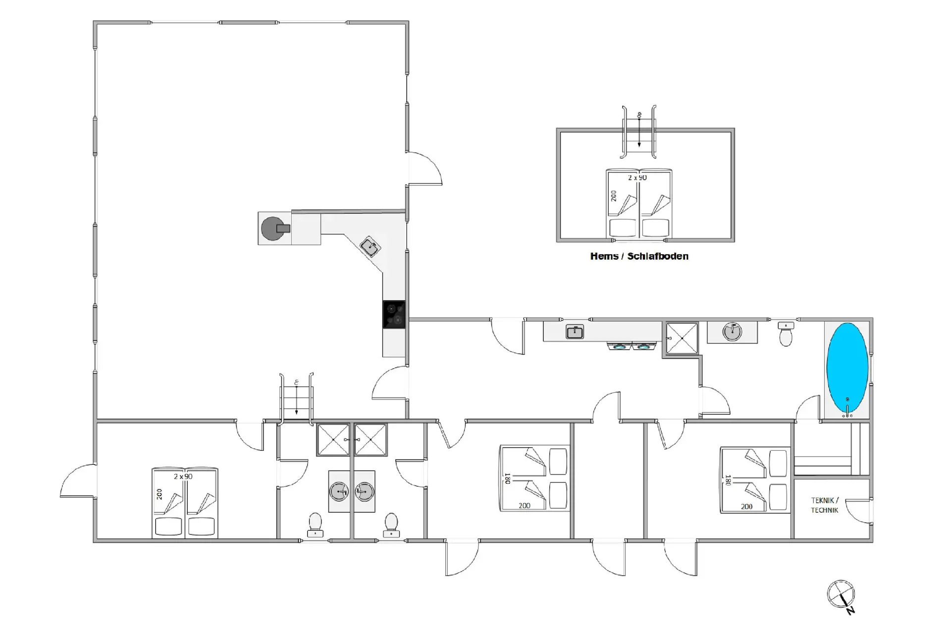
Die Einrichtung ist nicht nur schön und modern, sondern auch voller Persönlichkeit, so dass ihr euch gleich wohlfühlen werdet. Das Ferienhaus verfügt insgesamt über drei Badezimmer. Zwei Bäder sind unmittelbar jeweils am Schlafzimmer, was sehr praktisch ist. Im Hauptbadezimmer gibt es einen Whirlpool und eine Sauna. An kalten oder an Regentagen kann dieser kleine Wellnessbereich ausgiebig genutzt werden. Vom 1. April bis zum 31. Oktober steht auch eine Außendusche zur Verfügung.
Die offene Küche und der Wohnbereich lädt zur Geselligkeit und entspannenden Momente ein. Gemeinsamen Kochen oder einen Filmeabend - fröhliche Stunden bis in den späten Abend.
Schöne Terrasse und tolle Lage im Sønder-Vasevej 76
Innen und außen ist alles auf den Punkt gebracht. Das Haus ist von einer wunderschönen, großen Wiese umgeben und umrahmt von Bäumen. So kann der Tag auf der Terrasse ungestört genossen werden.
Es dauert nur ein paar Minuten, um den Strand zu erreichen. Dieser Strand ist ein Besuch bei jedem Wetter wert. Nicht nur im Sommer, wenn du mit den Füssen in das flachen Wasser gehen kannst, sondern auch in den kalten und windigen Monaten, wo die mächtigen Wellen tosend an den Strand rollen.
Fussläuffig gibt es viele Einkaufsmöglichkeiten. Ein kurzer Spaziergang, dann seid ihr in Blåvands Zentrum. Der malerische Badeort hat Einiges zu bieten. Nicht nur viele Geschäfte, sondern auch Cafés, Restaurants und sogar eine Zuckerfabrik.
Hausbilder
Ausstattung
Allgemeines
- Anzahl Haustiere maximal: 1
- Anzahl Personen: 8
- Baujahr: 2013
- Grundstücksfläche: 1.890 m²
- Haustiere erlaubt
- Inkl. Endreinigung
- Nichtraucher
- Wohnfläche: 156 m²
Entfernungen
- Abstand Einkauf: 400 m
- Abstand Wasser: 300 m Nordsee
Wohnbereich
- Flachbildfernseher
- Kaminofen
- Schlafboden
Schlafbereich
- Anzahl Doppelbetten: 3
- Anzahl Schlafzimmer: 3
Küche
- Geschirrspüler
- Herd mit Backofen
- Kühlschrank mit Gefrierfach
- Mikrowelle
- Tiefkühler: 60 l
Bad
- Anzahl Badezimmer: 3
- Trockner
- Waschmaschine
Wellness
- Sauna
Multimedia
- Deutsches Fernsehen Dänische und Deutsche
- DVD-Player
- Internet
Aussenbereich
- Gartenmöbel
- Grundstück Rasengrundstück
- Grill Gasgrill
- Grill Gasgrill
- Liegestuhl
- Sandkiste
- Schaukel
- Sonnenschirm
- Terrasse: 1 offen
Sonstiges
- Besonderheiten iPod Dock
-
Fußbodenheizung Bad
Wohnbereich - Hauswechseltag Sonntag
Neben- und Verbrauchskosten
Die aktuellen Verbrauchskosten finden Sie im nächsten Schritt im Buchungsformular.
Raumaufteilung
Lageplan
Ferienhaus 60102
Sønder-Vasevej 76
Blåvand
6857 Blåvand
Belegungskalender
- Reisedauer auswählen
- Anzahl Reisende auswählen
- Anreisetag im Belegungskalender anklicken
- Sie bekommen Verfügbarkeit und Preis angezeigt
| 2025 | 1 | 2 | 3 | 4 | 5 | 6 | 7 | 8 | 9 | 10 | 11 | 12 | 13 | 14 | 15 | 16 | 17 | 18 | 19 | 20 | 21 | 22 | 23 | 24 | 25 | 26 | 27 | 28 | 29 | 30 | 31 |
| Dezember | M | D | M | D | F | S | S | M | D | M | D | F | S | S | M | D | M | D | F | S | S | M | D | M | D | F | S | S | M | D | M |
| 2026 | 1 | 2 | 3 | 4 | 5 | 6 | 7 | 8 | 9 | 10 | 11 | 12 | 13 | 14 | 15 | 16 | 17 | 18 | 19 | 20 | 21 | 22 | 23 | 24 | 25 | 26 | 27 | 28 | 29 | 30 | 31 |
| Januar | D | F | S | S | M | D | M | D | F | S | S | M | D | M | D | F | S | S | M | D | M | D | F | S | S | M | D | M | D | F | S |
| Februar | S | M | D | M | D | F | S | S | M | D | M | D | F | S | S | M | D | M | D | F | S | S | M | D | M | D | F | S | |||
| März | S | M | D | M | D | F | S | S | M | D | M | D | F | S | S | M | D | M | D | F | S | S | M | D | M | D | F | S | S | M | D |
| April | M | D | F | S | S | M | D | M | D | F | S | S | M | D | M | D | F | S | S | M | D | M | D | F | S | S | M | D | M | D | |
| Mai | F | S | S | M | D | M | D | F | S | S | M | D | M | D | F | S | S | M | D | M | D | F | S | S | M | D | M | D | F | S | S |
| Juni | M | D | M | D | F | S | S | M | D | M | D | F | S | S | M | D | M | D | F | S | S | M | D | M | D | F | S | S | M | D | |
| Juli | M | D | F | S | S | M | D | M | D | F | S | S | M | D | M | D | F | S | S | M | D | M | D | F | S | S | M | D | M | D | F |
| August | S | S | M | D | M | D | F | S | S | M | D | M | D | F | S | S | M | D | M | D | F | S | S | M | D | M | D | F | S | S | M |
| September | D | M | D | F | S | S | M | D | M | D | F | S | S | M | D | M | D | F | S | S | M | D | M | D | F | S | S | M | D | M | |
| Oktober | D | F | S | S | M | D | M | D | F | S | S | M | D | M | D | F | S | S | M | D | M | D | F | S | S | M | D | M | D | F | S |
| November | S | M | D | M | D | F | S | S | M | D | M | D | F | S | S | M | D | M | D | F | S | S | M | D | M | D | F | S | S | M | |
| Dezember | D | M | D | F | S | S | M | D | M | D | F | S | S | M | D | M | D | F | S | S | M | D | M | D | F | S | S | M | D | M | D |
| 2027 | 1 | 2 | 3 | 4 | 5 | 6 | 7 | 8 | 9 | 10 | 11 | 12 | 13 | 14 | 15 | 16 | 17 | 18 | 19 | 20 | 21 | 22 | 23 | 24 | 25 | 26 | 27 | 28 | 29 | 30 | 31 |
| Januar | F | S | S | M | D | M | D | F | S | S | M | D | M | D | F | S | S | M | D | M | D | F | S | S | M | D | M | D | F | S | S |
| Februar | M | D | M | D | F | S | S | M | D | M | D | F | S | S | M | D | M | D | F | S | S | M | D | M | D | F | S | S | |||
| März | M | D | M | D | F | S | S | M | D | M | D | F | S | S | M | D | M | D | F | S | S | M | D | M | D | F | S | S | M | D | M |
| April | D | F | S | S | M | D | M | D | F | S | S | M | D | M | D | F | S | S | M | D | M | D | F | S | S | M | D | M | D | F | |
| Mai | S | S | M | D | M | D | F | S | S | M | D | M | D | F | S | S | M | D | M | D | F | S | S | M | D | M | D | F | S | S | M |
| Juni | D | M | D | F | S | S | M | D | M | D | F | S | S | M | D | M | D | F | S | S | M | D | M | D | F | S | S | M | D | M | |
| Juli | D | F | S | S | M | D | M | D | F | S | S | M | D | M | D | F | S | S | M | D | M | D | F | S | S | M | D | M | D | F | S |
| August | S | M | D | M | D | F | S | S | M | D | M | D | F | S | S | M | D | M | D | F | S | S | M | D | M | D | F | S | S | M | D |
| September | M | D | F | S | S | M | D | M | D | F | S | S | M | D | M | D | F | S | S | M | D | M | D | F | S | S | M | D | M | D | |
| Oktober | F | S | S | M | D | M | D | F | S | S | M | D | M | D | F | S | S | M | D | M | D | F | S | S | M | D | M | D | F | S | S |
| November | M | D | M | D | F | S | S | M | D | M | D | F | S | S | M | D | M | D | F | S | S | M | D | M | D | F | S | S | M | D | |
| Dezember | M | D | F | S | S | M | D | M | D | F | S | S | M | D | M | D | F | S | S | M | D | M | D | F | S | S | M | D | M | D | F |
| 2028 | 1 | 2 | 3 | 4 | 5 | 6 | 7 | 8 | 9 | 10 | 11 | 12 | 13 | 14 | 15 | 16 | 17 | 18 | 19 | 20 | 21 | 22 | 23 | 24 | 25 | 26 | 27 | 28 | 29 | 30 | 31 |
| Januar | S | S | M | D | M | D | F | S | S | M | D | M | D | F | S | S | M | D | M | D | F | S | S | M | D | M | D | F | S | S | M |
| Februar | D | M | D | F | S | S | M | D | M | D | F | S | S | M | D | M | D | F | S | S | M | D | M | D | F | S | S | M | D | ||
| März | M | D | F | S | S | M | D | M | D | F | S | S | M | D | M | D | F | S | S | M | D | M | D | F | S | S | M | D | M | D | F |
| April | S | S | M | D | M | D | F | S | S | M | D | M | D | F | S | S | M | D | M | D | F | S | S | M | D | M | D | F | S | S | |
| Mai | M | D | M | D | F | S | S | M | D | M | D | F | S | S | M | D | M | D | F | S | S | M | D | M | D | F | S | S | M | D | M |
| Juni | D | F | S | S | M | D | M | D | F | S | S | M | D | M | D | F | S | S | M | D | M | D | F | S | S | M | D | M | D | F | |
| Juli | S | S | M | D | M | D | F | S | S | M | D | M | D | F | S | S | M | D | M | D | F | S | S | M | D | M | D | F | S | S | M |
| August | D | M | D | F | S | S | M | D | M | D | F | S | S | M | D | M | D | F | S | S | M | D | M | D | F | S | S | M | D | M | D |
| September | F | S | S | M | D | M | D | F | S | S | M | D | M | D | F | S | S | M | D | M | D | F | S | S | M | D | M | D | F | S | |
| Oktober | S | M | D | M | D | F | S | S | M | D | M | D | F | S | S | M | D | M | D | F | S | S | M | D | M | D | F | S | S | M | D |
| November | M | D | F | S | S | M | D | M | D | F | S | S | M | D | M | D | F | S | S | M | D | M | D | F | S | S | M | D | M | D | |
| Dezember | F | S | S | M | D | M | D | F | S | S | M | D | M | D | F | S | S | M | D | M | D | F | S | S | M | ||||||