
Ferienhaus 60193 in Hvidbjerg Strandvej 137, Blåvand Strand
Nur einen Steinwurf vom Meer entfernt liegt dieses attraktive, kleine Ferienhaus. Mit Platz für bis zu 4 Personen ist dieses Haus im Hvidbjerg Strandvej 137 eure perfekte Urlaubsadresse, wenn ihr bereits mit dem Rauschen der Wellen in den Tag starten wollt.
Ferienhaus nur 50 Meter zum Meer, perfekt für Strandliebhaber
In diesem laufend renoviertem Ferienhaus, welches ganz strandnah liegt, hat eure kleine Familie sowie euren Hund den perfekten Ort für euren geplanten Dänemarkurlaub gefunden.
Die aussergewöhnlich nahe Lage zum Wasser ermöglicht es euch, bereits am Morgen durch das beruhigende Rauschen der Wellen ganz entspannt in den Tag zu starten. Strandliebhaber kommen hier voll auf ihre Kosten. Strandgut in Form von Steinen, Muscheln und Bernstein sowie Treibgut können auf der Terrasse des Hauses gesammelt und von allen Mitreisenden begutachtet werden.
Euer vierbeiniger Liebling wird die stundenlangen Spaziergänge lieben und danach ganz entspannt auf der teilweise abgeschirmten und geschlossenen Terrasse dösen.
Kaminofen, Geschirrspüler und Waschmaschine
Die praktische und zugleich gemütliche Einrichtung macht es euch leicht, euch hier gleich willkommen und wohlzufühlen.
Die praktischen Helfer des Alltages helfen euch, den Arbeitsaufwand mit Dingen wie Geschirr spülen und Wäsche waschen so gering wie möglich zu halten.
Verbringt eure schönste Zeit des Jahres doch lieber damit, euch miteinander zu beschäftigen oder einfach wieder einmal ein gutes Buch zu lesen, während im Hintergrund der Kaminofen für eine angenehme Wärme und behagliche Atmosphäre sorgt.
Der Himmel so weit das Auge reicht
Lehnt euch gemütlich auf einem der Liegestühle zurück und lasst euren Blick schweifen. Manch einem mag diese Aussicht langweilig vorkommen, dabei ist diese doch täglich abwechselnd. Sei es die Wolken, welche am Himmel vorbeiziehen, Vogelschwärme oder bunte Drachen, die am blauen Himmel tanzen oder auch das Dünengras, welches sich im Wind wiegt – hier gibt es immer etwas zu sehen.
Dazu das Gezeter der Möwen, der Gesang der Lerchen und on top das Rauschen der Brandung – viel mehr braucht es nicht, um sich sicher zu sein, unmittelbar am Meer gelandet zu sein.
Sehr zur Freude der Jüngsten, gibt es Schaukeln die für viel Bewegung sorgen.
Die nächste Einkaufsmöglichkeit liegt in nur 500 Metern Entfernung - trotz abgeschiedener Lage braucht ihr auf frische Brötchen also keinesfalls zu verzichten.
Hausbilder
Ausstattung
Allgemeines
- Anzahl Haustiere maximal: 2
- Anzahl Personen: 5
- Anzahl Personen: 6
- Baujahr: 1990
- Grundstücksfläche: 4.100 m²
- Haustiere erlaubt
- Inkl. Endreinigung
- Nichtraucher
- Renovierung: 2022
- Tolle Aussicht Panoramablick
- Wohnfläche: 78 m²
Entfernungen
- Abstand Einkauf: 500 m
- Abstand Wasser: 50 m Nordsee
Wohnbereich
- Flachbildfernseher
- Kaminofen
Schlafbereich
- Anzahl Doppelbetten: 2
- Anzahl Einzelbetten: 2
- Anzahl Schlafzimmer: 3
Küche
- Geschirrspüler
- Herd Induktion mit Backofen
- Kühlschrank
- Mikrowelle
- Tiefkühler: 190 l
Bad
- Anzahl Badezimmer: 1
- Waschmaschine
Multimedia
- Internationales Fernsehen
- Internet
- Radio
Aussenbereich
- Gartenmöbel
- Grundstück Naturgrundstück
- Grill
- Liegestuhl
- Sonnenschirm
- Terrasse: 1 abgeschirmt
- Terrasse, geschlossen
Sonstiges
- Hauswechseltag Samstag
Neben- und Verbrauchskosten
Die aktuellen Verbrauchskosten finden Sie im nächsten Schritt im Buchungsformular.
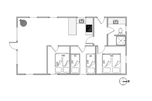
Raumaufteilung

Lageplan
Ferienhaus 60193
Hvidbjerg Strandvej 137
Blåvand
6857 Blåvand
Belegungskalender
- Reisedauer auswählen
- Anzahl Reisende auswählen
- Anreisetag im Belegungskalender anklicken
- Sie bekommen Verfügbarkeit und Preis angezeigt
2025 | 1 | 2 | 3 | 4 | 5 | 6 | 7 | 8 | 9 | 10 | 11 | 12 | 13 | 14 | 15 | 16 | 17 | 18 | 19 | 20 | 21 | 22 | 23 | 24 | 25 | 26 | 27 | 28 | 29 | 30 | 31 |
Oktober | M | D | F | S | S | M | D | M | D | F | S | S | M | D | M | D | F | S | S | M | D | M | D | F | S | S | M | D | M | D | F |
November | S | S | M | D | M | D | F | S | S | M | D | M | D | F | S | S | M | D | M | D | F | S | S | M | D | M | D | F | S | S | |
Dezember | M | D | M | D | F | S | S | M | D | M | D | F | S | S | M | D | M | D | F | S | S | M | D | M | D | F | S | S | M | D | M |
2026 | 1 | 2 | 3 | 4 | 5 | 6 | 7 | 8 | 9 | 10 | 11 | 12 | 13 | 14 | 15 | 16 | 17 | 18 | 19 | 20 | 21 | 22 | 23 | 24 | 25 | 26 | 27 | 28 | 29 | 30 | 31 |
Januar | D | F | S | S | M | D | M | D | F | S | S | M | D | M | D | F | S | S | M | D | M | D | F | S | S | M | D | M | D | F | S |
Februar | S | M | D | M | D | F | S | S | M | D | M | D | F | S | S | M | D | M | D | F | S | S | M | D | M | D | F | S | |||
März | S | M | D | M | D | F | S | S | M | D | M | D | F | S | S | M | D | M | D | F | S | S | M | D | M | D | F | S | S | M | D |
April | M | D | F | S | S | M | D | M | D | F | S | S | M | D | M | D | F | S | S | M | D | M | D | F | S | S | M | D | M | D | |
Mai | F | S | S | M | D | M | D | F | S | S | M | D | M | D | F | S | S | M | D | M | D | F | S | S | M | D | M | D | F | S | S |
Juni | M | D | M | D | F | S | S | M | D | M | D | F | S | S | M | D | M | D | F | S | S | M | D | M | D | F | S | S | M | D | |
Juli | M | D | F | S | S | M | D | M | D | F | S | S | M | D | M | D | F | S | S | M | D | M | D | F | S | S | M | D | M | D | F |
August | S | S | M | D | M | D | F | S | S | M | D | M | D | F | S | S | M | D | M | D | F | S | S | M | D | M | D | F | S | S | M |
September | D | M | D | F | S | S | M | D | M | D | F | S | S | M | D | M | D | F | S | S | M | D | M | D | F | S | S | M | D | M | |
Oktober | D | F | S | S | M | D | M | D | F | S | S | M | D | M | D | F | S | S | M | D | M | D | F | S | S | M | D | M | D | F | S |
November | S | M | D | M | D | F | S | S | M | D | M | D | F | S | S | M | D | M | D | F | S | S | M | D | M | D | F | S | S | M | |
Dezember | D | M | D | F | S | S | M | D | M | D | F | S | S | M | D | M | D | F | S | S | M | D | M | D | F | S | S | M | D | M | D |
2027 | 1 | 2 | 3 | 4 | 5 | 6 | 7 | 8 | 9 | 10 | 11 | 12 | 13 | 14 | 15 | 16 | 17 | 18 | 19 | 20 | 21 | 22 | 23 | 24 | 25 | 26 | 27 | 28 | 29 | 30 | 31 |
Januar | F | S | S | M | D | M | D | F | S | S | M | D | M | D | F | S | S | M | D | M | D | F | S | S | M | D | M | D | F | S | S |
Februar | M | D | M | D | F | S | S | M | D | M | D | F | S | S | M | D | M | D | F | S | S | M | D | M | D | F | S | S | |||
März | M | D | M | D | F | S | S | M | D | M | D | F | S | S | M | D | M | D | F | S | S | M | D | M | D | F | S | S | M | D | M |
April | D | F | S | S | M | D | M | D | F | S | S | M | D | M | D | F | S | S | M | D | M | D | F | S | S | M | D | M | D | F | |
Mai | S | S | M | D | M | D | F | S | S | M | D | M | D | F | S | S | M | D | M | D | F | S | S | M | D | M | D | F | S | S | M |
Juni | D | M | D | F | S | S | M | D | M | D | F | S | S | M | D | M | D | F | S | S | M | D | M | D | F | S | S | M | D | M | |
Juli | D | F | S | S | M | D | M | D | F | S | S | M | D | M | D | F | S | S | M | D | M | D | F | S | S | M | D | M | D | F | S |
August | S | M | D | M | D | F | S | S | M | D | M | D | F | S | S | M | D | M | D | F | S | S | M | D | M | D | F | S | S | M | D |
September | M | D | F | S | S | M | D | M | D | F | S | S | M | D | M | D | F | S | S | M | D | M | D | F | S | S | M | D | M | D | |
Oktober | F | S | S | M | D | M | D | F | S | S | M | D | M | D | F | S | S | M | D | M | D | F | S | S | M | D | M | D | F | S | S |
November | M | D | M | D | F | S | S | M | D | M | D | F | S | S | M | D | M | D | F | S | S | M | D | M | D | F | S | S | M | D | |
Dezember | M | D | F | S | S | M | D | M | D | F | S | S | M | D | M | D | F | S | S | M | D | M | D | F | S | S | M | D | M | D | F |
2028 | 1 | 2 | 3 | 4 | 5 | 6 | 7 | 8 | 9 | 10 | 11 | 12 | 13 | 14 | 15 | 16 | 17 | 18 | 19 | 20 | 21 | 22 | 23 | 24 | 25 | 26 | 27 | 28 | 29 | 30 | 31 |
Januar | S | S | M | D | M | D | F | S | S | M | D | M | D | F | S | S | M | D | M | D | F | S | S | M | D | M | D | F | S | S | M |
Februar | D | M | D | F | S | S | M | D | M | D | F | S | S | M | D | M | D | F | S | S | M | D | M | D | F | S | S | M | D | ||
März | M | D | F | S | S | M | D | M | D | F | S | S | M | D | M | D | F | S | S | M | D | M | D | F | S | S | M | D | M | D | F |
April | S | S | M | D | M | D | F | S | S | M | D | M | D | F | S | S | M | D | M | D | F | S | S | M | D | M | D | F | S | S | |
Mai | M | D | M | D | F | S | S | M | D | M | D | F | S | S | M | D | M | D | F | S | S | M | D | M | D | F | S | S | M | D | M |
Juni | D | F | S | S | M | D | M | D | F | S | S | M | D | M | D | F | S | S | M | D | M | D | F | S | S | M | D | M | D | F | |
Juli | S | S | M | D | M | D | F | S | S | M | D | M | D | F | S | S | M | D | M | D | F | S | S | M | D | M | D | F | S | S | M |
August | D | M | D | F | S | S | M | D | M | D | F | S | S | M | D | M | D | F | S | S | M | D | M | D | F | S | S | M | D | M | D |
September | F | S | S | M | D | M | D | F | S | S | M | D | M | D | F | S | S | M | D | M | D | F | S | S | M | D | M | D | F | S | |
Oktober | S | M | D | M | D | F | S | S | M | D | M | D | F | S | S |