Ferienhaus 60728 in Vandflodvej 2, 35, Blåvand Strand
Willkommen in Vandflodvej 2, 35 – deinem persönlichen Rückzugsort in Blåvand, von dem aus du alles schnell erreichst. Du wohnst nah am Zentrum vom Stadt und bist gleichzeitig in nur 1250 Metern vom Strand, wenn du den Sand unter den Füßen spüren möchtest. Für den Alltag zwischendurch liegt das Einkaufen nur 100 Meter entfernt, sodass du spontan frische Brötchen holen oder das Abendessen planen kannst, ohne lange Wege einzuplanen. Dieses Ferienhaus bietet dir 96 m2 Wohnfläche und ist ideal für eine Auszeit zu zweit, mit Freunden oder als kleine Familie.
Ferienhaus bei Vandflodvej 2, 35: Platz, Komfort und durchdachter Ausstattung
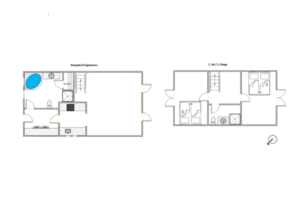
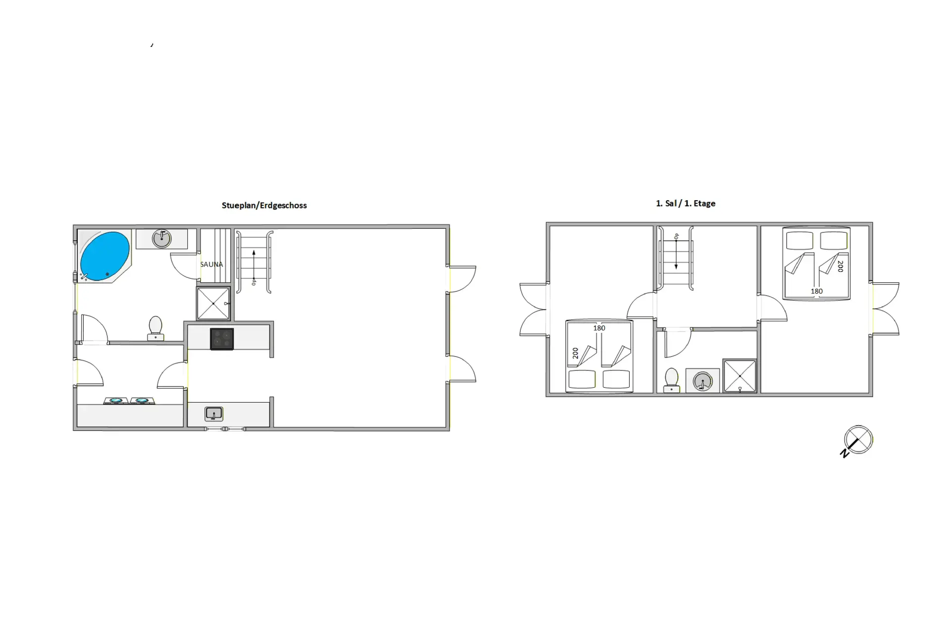
Mit Platz für 4 Personen ist das Haus so geschnitten, dass du dich von Anfang an zuhause fühlst. Zwei Schlafzimmer in erster Stock mit jeweils einem Doppelbett geben dir und deinen Mitreisenden Privatsphäre und erholsamen Schlaf. Besonders angenehm ist, dass dir gleich zwei Badezimmer zur Verfügung stehen – perfekt, wenn ihr euch morgens nicht in die Quere kommen wollt oder nach einem Tag am Strand schnell duschen möchtet. Im Bad sorgt eine Fußbodenheizung dafür, dass der Start in den Tag auch an kühleren Tagen angenehm bleibt. Für ein konstant gutes Raumklima unterstützt dich außerdem eine Wärmepumpe, die den Aufenthalt zu jeder Jahreszeit komfortabel macht.
Mehrere Terrassen, Gartenmöbel und deine Auszeit im Freien
Draußen wartet dein Lieblingsplatz schon: Du kannst zwischen mehreren Terrassen wählen und den Tag genau so gestalten, wie er zu dir passt. Eine offene Terrasse lädt zum Sonnen und zum entspannten Lesen ein, während die überdachte Terrasse ideal ist, wenn du länger draußen sitzen möchtest. Mit den Gartenmöbeln richtest du dir im Handumdrehen eine gemütliche Ecke für Frühstück, Kaffee am Nachmittag oder ein spätes Abendessen ein. So entsteht ein fließender Übergang zwischen Innen- und Außenbereich, der deinen Urlaub spürbar leichter macht.
Alltag leicht gemacht: Küche, Wäsche und extra Stauraum
Damit du im Urlaub nicht ständig organisieren musst, ist die Ausstattung auf unkomplizierte Abläufe ausgelegt. In der Küche übernimmt die Spülmaschine den Abwasch, sodass du mehr Zeit für Ausflüge oder Wellnessmomente hast. Praktisch ist auch der separate 60-Liter-Gefrierschrank, in dem du Vorräte, Eis oder Mitbringsel problemlos unterbringst. Waschmaschine und Trockner geben dir zusätzliche Freiheit, wenn du länger bleibst oder nach einem aktiven Tag alles schnell wieder frisch haben möchtest. So bleibt mehr Raum für das, worauf es ankommt: Erholung.
Wellnessmöglichkeit und Urlaub mit Hund – das Highlight für dein Feriengefühl
Ein besonderer Pluspunkt ist die Wellnessmöglichkeit, die dir nach einem Strandtag oder einem langen Spaziergang ein Extra an Entspannung schenkt. Und wenn dein vierbeiniger Begleiter zur Familie gehört, kannst du ihn mitbringen: Maximal 1 Hund ist erlaubt, sodass ihr euren Urlaub gemeinsam genießen könnt. Wenn du ein Ferienhaus in Blåvand suchst, das zentrale Wege, Komfort für 4 Personen und Extras wie Wellness und mehrere Terrassen verbindet, findest du hier genau den Rahmen für entspannte Tage.
Hausbilder
Ausstattung
Allgemeines
- Anzahl Haustiere maximal: 1
- Anzahl Personen: 4
- Anzahl Personen: 4
- Baujahr: 2005
- Haustiere erlaubt
- Nichtraucher
- Wohnfläche: 96 m²
Entfernungen
- Abstand Einkauf: 100 m
- Abstand Wasser: 1.250 m Nordsee
Wohnbereich
- Flachbildfernseher
Schlafbereich
- Anzahl Doppelbetten: 2
- Anzahl Schlafzimmer: 2
Küche
- Geschirrspüler
- Herd Induktion mit Backofen
- Kühlschrank
- Mikrowelle
- Tiefkühler: 60 l
Bad
- Anzahl Badezimmer: 2
- Trockner
- Waschmaschine
Multimedia
- Deutsches Fernsehen Dänische und Deutsche
- Internet
Aussenbereich
- Gartenmöbel
- Grill Gasgrill
- Liegestuhl
- Sonnenschirm
- Terrasse: 1 offen
- Terrasse, überdacht
Sonstiges
- Besonderheiten Abstellraum
-
Fußbodenheizung Bad
Wohnbereich - Hauswechseltag Samstag
- Wärmepumpe
Neben- und Verbrauchskosten
Die aktuellen Verbrauchskosten finden Sie im nächsten Schritt im Buchungsformular.
Raumaufteilung
Lageplan
Ferienhaus 60728
Vandflodvej 2, 35
Blåvand
6857 Blåvand
Belegungskalender
- Reisedauer auswählen
- Anzahl Reisende auswählen
- Anreisetag im Belegungskalender anklicken
- Sie bekommen Verfügbarkeit und Preis angezeigt
| 2026 | 1 | 2 | 3 | 4 | 5 | 6 | 7 | 8 | 9 | 10 | 11 | 12 | 13 | 14 | 15 | 16 | 17 | 18 | 19 | 20 | 21 | 22 | 23 | 24 | 25 | 26 | 27 | 28 | 29 | 30 | 31 |
| Mai | F | S | S | M | D | M | D | F | S | S | M | D | M | D | F | S | S | M | D | M | D | F | S | S | M | D | M | D | F | S | S |
| Juni | M | D | M | D | F | S | S | M | D | M | D | F | S | S | M | D | M | D | F | S | S | M | D | M | D | F | S | S | M | D | |
| Juli | M | D | F | S | S | M | D | M | D | F | S | S | M | D | M | D | F | S | S | M | D | M | D | F | S | S | M | D | M | D | F |
| August | S | S | M | D | M | D | F | S | S | M | D | M | D | F | S | S | M | D | M | D | F | S | S | M | D | M | D | F | S | S | M |
| September | D | M | D | F | S | S | M | D | M | D | F | S | S | M | D | M | D | F | S | S | M | D | M | D | F | S | S | M | D | M | |
| Oktober | D | F | S | S | M | D | M | D | F | S | S | M | D | M | D | F | S | S | M | D | M | D | F | S | S | M | D | M | D | F | S |
| November | S | M | D | M | D | F | S | S | M | D | M | D | F | S | S | M | D | M | D | F | S | S | M | D | M | D | F | S | S | M | |
| Dezember | D | M | D | F | S | S | M | D | M | D | F | S | S | M | D | M | D | F | S | S | M | D | M | D | F | S | S | M | D | M | D |
| 2027 | 1 | 2 | 3 | 4 | 5 | 6 | 7 | 8 | 9 | 10 | 11 | 12 | 13 | 14 | 15 | 16 | 17 | 18 | 19 | 20 | 21 | 22 | 23 | 24 | 25 | 26 | 27 | 28 | 29 | 30 | 31 |
| Januar | F | S | S | M | D | M | D | F | S | S | M | D | M | D | F | S | S | M | D | M | D | F | S | S | M | D | M | D | F | S | S |
| Februar | M | D | M | D | F | S | S | M | D | M | D | F | S | S | M | D | M | D | F | S | S | M | D | M | D | F | S | S | |||
| März | M | D | M | D | F | S | S | M | D | M | D | F | S | S | M | D | M | D | F | S | S | M | D | M | D | F | S | S | M | D | M |
| April | D | F | S | S | M | D | M | D | F | S | S | M | D | M | D | F | S | S | M | D | M | D | F | S | S | M | D | M | D | F | |
| Mai | S | S | M | D | M | D | F | S | S | M | D | M | D | F | S | S | M | D | M | D | F | S | S | M | D | M | D | F | S | S | M |
| Juni | D | M | D | F | S | S | M | D | M | D | F | S | S | M | D | M | D | F | S | S | M | D | M | D | F | S | S | M | D | M | |
| Juli | D | F | S | S | M | D | M | D | F | S | S | M | D | M | D | F | S | S | M | D | M | D | F | S | S | M | D | M | D | F | S |
| August | S | M | D | M | D | F | S | S | M | D | M | D | F | S | S | M | D | M | D | F | S | S | M | D | M | D | F | S | S | M | D |
| September | M | D | F | S | S | M | D | M | D | F | S | S | M | D | M | D | F | S | S | M | D | M | D | F | S | S | M | D | M | D | |
| Oktober | F | S | S | M | D | M | D | F | S | S | M | D | M | D | F | S | S | M | D | M | D | F | S | S | M | D | M | D | F | S | S |
| November | M | D | M | D | F | S | S | M | D | M | D | F | S | S | M | D | M | D | F | S | S | M | D | M | D | F | S | S | M | D | |
| Dezember | M | D | F | S | S | M | D | M | D | F | S | S | M | D | M | D | F | S | S | M | D | M | D | F | S | S | M | D | M | D | F |
| 2028 | 1 | 2 | 3 | 4 | 5 | 6 | 7 | 8 | 9 | 10 | 11 | 12 | 13 | 14 | 15 | 16 | 17 | 18 | 19 | 20 | 21 | 22 | 23 | 24 | 25 | 26 | 27 | 28 | 29 | 30 | 31 |
| Januar | S | S | M | D | M | D | F | S | S | M | D | M | D | F | S | S | M | D | M | D | F | S | S | M | D | M | D | F | S | S | M |
| Februar | D | M | D | F | S | S | M | D | M | D | F | S | S | M | D | M | D | F | S | S | M | D | M | D | F | S | S | M | D | ||
| März | M | D | F | S | S | M | D | M | D | F | S | S | M | D | M | D | F | S | S | M | D | M | D | F | S | S | M | D | M | D | F |
| April | S | S | M | D | M | D | F | S | S | M | D | M | D | F | S | S | M | D | M | D | F | S | S | M | D | M | D | F | S | S | |
| Mai | M | D | M | D | F | S | S | M | D | M | D | F | S | S | M | D | M | D | F | S | S | M | D | M | D | F | S | S | M | D | M |
| Juni | D | F | S | S | M | D | M | D | F | S | S | M | D | M | D | F | S | S | M | D | M | D | F | S | S | M | D | M | D | F | |
| Juli | S | S | M | D | M | D | F | S | S | M | D | M | D | F | S | S | M | D | M | D | F | S | S | M | D | M | D | F | S | S | M |
| August | D | M | D | F | S | S | M | D | M | D | F | S | S | M | D | M | D | F | S | S | M | D | M | D | F | S | S | M | D | M | D |
| September | F | S | S | M | D | M | D | F | S | S | M | D | M | D | F | S | S | M | D | M | D | F | S | S | M | D | M | D | F | S | |
| Oktober | S | M | D | M | D | F | S | S | M | D | M | D | F | S | S | M | D | M | D | F | S | S | M | D | M | D | F | S | S | M | D |
| November | M | D | F | S | S | M | D | M | D | F | S | S | M | D | M | D | F | S | S | M | D | M | D | F | S | S | M | D | M | D | |
| Dezember | F | S | S | M | D | M | D | F | S | S | M | D | M | D | F | S | S | M | D | M | D | F | S | S | M | D | M | D | F | S | S |
| 2029 | 1 | 2 | 3 | 4 | 5 | 6 | 7 | 8 | 9 | 10 | 11 | 12 | 13 | 14 | 15 | 16 | 17 | 18 | 19 | 20 | 21 | 22 | 23 | 24 | 25 | 26 | 27 | 28 | 29 | 30 | 31 |
| Januar | M | D | M | D | F | S | S | M | D | M | D | F | S | S | |||||||||||||||||