Poolhaus BV247 in Gl Hovej 41, Blåvand Strand
Dieses große Qualitäts-Sommerhaus in Blåvand bietet eine Fülle von wunderbaren Details. Im Inneren werden Sie mit einem Whirlpool, einer Sauna und einem stimmungsvollen Wohnbereich verwöhnt, und draußen können Sie das Leben im Pool und auf den sonnigen Terrassen genießen.
Willkommen in deinem Ferienhaus
Es ist sicher nicht übertrieben, das Haus als sehr groß zu bezeichnen, denn im Inneren können Sie auf ganzen 300 m2 Ihr Urlaubsleben entfalten. Das bedeutet, dass Sie problemlos 12 Personen unterbringen können. Die Frage ist also, ob Sie Freunde oder Familie in den Urlaub einladen möchten. Der Grundriss ist in mehrere Ebenen unterteilt, wobei das Erdgeschoss bei weitem die größte ist. Hier finden Sie zwei Bäder, zwei Gästetoiletten und vier Schlafzimmer, von denen eines einen offenen Hems mit einem Doppelbett hat. Der Wohnbereich besteht aus einer Wohnküche und einem Esszimmer mit direktem Zugang zu einem großen Wohnzimmer mit eingebautem Spiegel, Flachbildfernseher und bequemen Sitzgelegenheiten.
Entspannende Momente können Sie auch im Erdgeschoss erleben, in dem Sie einen Wellness-Raum mit einem Whirlpool und einer Sauna vorfinden. Im Untergeschoss befinden sich außerdem ein praktischer Hauswirtschaftsraum mit Waschgelegenheit und eine Garage.
Genieße das Leben im Freien
Das reetgedeckte Haus liegt auf einem hügeligen Grundstück, sodass ein Teil der Terrasse über dem Boden liegt und einen hervorragenden Blick auf Ihr eigenes Grundstück und die umliegende Landschaft bietet. Es gibt mehrere gute Sitzgelegenheiten, aber vielleicht möchten Sie die meisten sonnigen Stunden im schattigen Poolbereich verbringen. Hier können Sie stundenlang in den Liegestühlen liegen, nur unterbrochen von einem Sprung in den Pool oder einem Abstecher zu einer Erfrischung.
Poolgröße:
L11,5 m x B 5,9 m x T 1,35/1,65 Meter. Mit Leiter.
Bitte beachten Sie, dass der Pool von ca. 1. Juni bis ca. 15. September geöffnet ist. Der Pool ist nicht beheizt.
Entdecke deine Umgebung
Das Sommerhaus liegt an einer Sackgasse, direkt neben einem offenen Naturgebiet. Wenn Sie gerne wandern, haben Sie reichlich Gelegenheit, die traumhafte Landschaft rund um den Tirpitzbunker, der heute ein Museum ist, zu erkunden. Sie können auch Ihre Schuhe schnüren und nach Hvidbjerg Strand gehen: Es ist ein angenehmer Spaziergang von etwa 25 Minuten, und bei der Ankunft werden Sie mit der besten Aussicht auf die Nordsee und den weißen Sandstrand belohnt. Ob Sie zu Fuß, mit dem Fahrrad oder mit dem Auto unterwegs sind, Blåvand sieht von überall fantastisch aus. Die natürliche Umgebung ist etwas Besonderes, und Blåvand selbst hat ein gemütliches Zentrum mit vielen Geschäften und Restaurants, die das ganze Jahr über geöffnet sind.
Hausbilder
Ausstattung
Allgemeines
- Anzahl Personen: 12
- Baujahr: 1980
- Grundstücksfläche: 2.650 m² Naturgrundstück
- Inkl. Endreinigung
- Nichtraucher
- Renovierung: 2009
- Verbrauch inklusive
- Wohnfläche: 300 m²
Entfernungen
- Abstand Einkauf: 1.600 m Ganzjährig geöffnet
- Abstand Golfplatz: 5.000 m
- Abstand Restaurant: 1.800 m
- Abstand Strand: 1.600 m Sandstrand
Wohnbereich
- Kaminofen
Schlafbereich
- Anzahl Doppelbetten: 4
- Anzahl Etagenbetten : 2
Küche
- Dunstabzug
- Extra Backofen
- Geschirrspüler
- Kaffeemaschine
- Kochplatten: 1 elektrische
- Kühlschrank l
- Kühlschrank l
- Mikrowelle
- Tiefkühler: 0 l
- Tiefkühler: 0 l
- Wasserkocher
Bad
- Anzahl Duschen: 3
- Anzahl Toiletten: 4
- Trockner
- Waschmaschine
Wellness
- Pool Außenpool, 100 M3
- Sauna
- Whirlpool Innenwhirlpool
Multimedia
- Deutsches Fernsehen 3 sender
- Internationales Fernsehen Dänisches Fernsehen, 3 kanaler
- Internet Kostenloses Wi-Fi - Mehr als 20 Mbit
Spieleangebot
- Billard
Aussenbereich
- Garage
- Gartenmöbel
- Grill Gas
- Terrasse: 1 m²
Sonstiges
-
Bei diesem Haus inkl. Brennholz
Heizung
Strom - Besonderheiten Das Schwimmbad uns unbeheizt, und ist nur ab ca. 1. Juni bis ca. 15. September nutzbar
- Kinderbett
- Kinderhochstuhl
- Das Aufladen von Elektroautos ist nicht erlaubt
Neben- und Verbrauchskosten
Die aktuellen Verbrauchskosten finden Sie im nächsten Schritt im Buchungsformular.
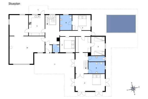
Raumaufteilung
Lageplan
Poolhaus BV247
Gl Hovej 41
Blåvand
6857 Blåvand
Belegungskalender
- Reisedauer auswählen
- Anzahl Reisende auswählen
- Anreisetag im Belegungskalender anklicken
- Sie bekommen Verfügbarkeit und Preis angezeigt
| 2026 | 1 | 2 | 3 | 4 | 5 | 6 | 7 | 8 | 9 | 10 | 11 | 12 | 13 | 14 | 15 | 16 | 17 | 18 | 19 | 20 | 21 | 22 | 23 | 24 | 25 | 26 | 27 | 28 | 29 | 30 | 31 |
| April | M | D | F | S | S | M | D | M | D | F | S | S | M | D | M | D | F | S | S | M | D | M | D | F | S | S | M | D | M | D | |
| Mai | F | S | S | M | D | M | D | F | S | S | M | D | M | D | F | S | S | M | D | M | D | F | S | S | M | D | M | D | F | S | S |
| Juni | M | D | M | D | F | S | S | M | D | M | D | F | S | S | M | D | M | D | F | S | S | M | D | M | D | F | S | S | M | D | |
| Juli | M | D | F | S | S | M | D | M | D | F | S | S | M | D | M | D | F | S | S | M | D | M | D | F | S | S | M | D | M | D | F |
| August | S | S | M | D | M | D | F | S | S | M | D | M | D | F | S | S | M | D | M | D | F | S | S | M | D | M | D | F | S | S | M |
| September | D | M | D | F | S | S | M | D | M | D | F | S | S | M | D | M | D | F | S | S | M | D | M | D | F | S | S | M | D | M | |
| Oktober | D | F | S | S | M | D | M | D | F | S | S | M | D | M | D | F | S | S | M | D | M | D | F | S | S | M | D | M | D | F | S |
| November | S | M | D | M | D | F | S | S | M | D | M | D | F | S | S | M | D | M | D | F | S | S | M | D | M | D | F | S | S | M | |
| Dezember | D | M | D | F | S | S | M | D | M | D | F | S | S | M | D | M | D | F | S | S | M | D | M | D | F | S | S | M | D | M | D |
| 2027 | 1 | 2 | 3 | 4 | 5 | 6 | 7 | 8 | 9 | 10 | 11 | 12 | 13 | 14 | 15 | 16 | 17 | 18 | 19 | 20 | 21 | 22 | 23 | 24 | 25 | 26 | 27 | 28 | 29 | 30 | 31 |
| Januar | F | S | S | M | D | M | D | F | S | S | M | D | M | D | F | S | S | M | D | M | D | F | S | S | M | D | M | D | F | S | S |
| Februar | M | D | M | D | F | S | S | M | D | M | D | F | S | S | M | D | M | D | F | S | S | M | D | M | D | F | S | S | |||
| März | M | D | M | D | F | S | S | M | D | M | D | F | S | S | M | D | M | D | F | S | S | M | D | M | D | F | S | S | M | D | M |
| April | D | F | S | S | M | D | M | D | F | S | S | M | D | M | D | F | S | S | M | D | M | D | F | S | S | M | D | M | D | F | |
| Mai | S | S | M | D | M | D | F | S | S | M | D | M | D | F | S | S | M | D | M | D | F | S | S | M | D | M | D | F | S | S | M |
| Juni | D | M | D | F | S | S | M | D | M | D | F | S | S | M | D | M | D | F | S | S | M | D | M | D | F | S | S | M | D | M | |
| Juli | D | F | S | S | M | D | M | D | F | S | S | M | D | M | D | F | S | S | M | D | M | D | F | S | S | M | D | M | D | F | S |
| August | S | M | D | M | D | F | S | S | M | D | M | D | F | S | S | M | D | M | D | F | S | S | M | D | M | D | F | S | S | M | D |
| September | M | D | F | S | S | M | D | M | D | F | S | S | M | D | M | D | F | S | S | M | D | M | D | F | S | S | M | D | M | D | |
| Oktober | F | S | S | M | D | M | D | F | S | S | M | D | M | D | F | S | S | M | D | M | D | F | S | S | M | D | M | D | F | S | S |
| November | M | D | M | D | F | S | S | M | D | M | D | F | S | S | M | D | M | D | F | S | S | M | D | M | D | F | S | S | M | D | |
| Dezember | M | D | F | S | S | M | D | M | D | F | S | S | M | D | M | D | F | S | S | M | D | M | D | F | S | S | M | D | M | D | F |
| 2028 | 1 | 2 | 3 | 4 | 5 | 6 | 7 | 8 | 9 | 10 | 11 | 12 | 13 | 14 | 15 | 16 | 17 | 18 | 19 | 20 | 21 | 22 | 23 | 24 | 25 | 26 | 27 | 28 | 29 | 30 | 31 |
| Januar | S | S | M | D | M | D | F | S | S | M | D | M | |||||||||||||||||||
FAQ
Wie hoch sind die Nebenkosten?
Die Kosten für Strom, Wasser, (bei einigen Häusern Gas) werden nach tagesaktuellen Preisen abgerechnet und hängen von vielen verschiedenen Faktoren ab, wie zum Beispiel Anzahl Personen, Größe des Hauses oder Ausstattung. In der Regel lässt sich sagen, dass ein Standardhaus ohne Pool, Whirlpool und Sauna im Sommer ca. 5 kWh pro Person pro Tag verbraucht. Im Winter gerne bei 10 kWh und darüber. Bei Poolhäusern mit Whirlpool und Sauna liegt der Wert im Sommer bei ca. 20 kWh und im Winter ca. bei 40 kWh. Auch hier variieren die Preise stark von Größe des Pools, Ausstattung, Größe des Hauses, Modell des Whirlpools und individuellem Verbrauch im Haus. Der Wasserverbrauch variiert ebenfalls stark und kann bei ca. 0,1-0,2 m³ pro Person pro Tag in einem Standardhaus liegen und bei Poolhäusern bei ca. 0,4-0,5 m³. Wenn eine Kaution bei der Buchung angegeben ist, ist diese angepasst an den ungefähren Durchschnittsverbrauch an Nebenkosten im Haus.
Alle Angaben ohne Gewähr und dienen lediglich als Richtwert und nicht als tatsächliche Prognose.
Kann ich das Haus reservieren?
Reservierungen sind in der Regel nicht möglich. In einigen Fällen ist es uns jedoch möglich, Reservierungen zu erstellen. Fragen Sie gerne direkt bei uns an, ob für dieses Haus eine Reservierung möglich ist.
Wie bekomme ich den Schlüssel für das Ferienhaus?
Mittlerweile sind bei fast allen Feriepartner Ferienhäusern Schlüsselboxen an den Häusern angebracht. Über den “Mein Feriepartner”- Link in der Buchungsbestätigung erhalten Sie Zugang zu Ihrer Buchung und können im Fenster der Schlüsselübergabe 48 Stunden vor Anreise einen Zugangscode einsehen, über welchen Sie den Schlüssel am Haus erhalten.
Ab wann ist das Haus bezugsbereit?
Die Ferienhäuser werden zwischen 10 Uhr und 16 Uhr gereinigt und sind spätestens ab 16 Uhr bezugsbereit. Wann Ihr Ferienhaus am Anreisetag gereinigt wird, entscheidet das Büro vor Ort kurz vorher, in Absprache mit dem Servicepersonal und der effektivsten Route für die Servicekräfte. Sobald Ihr Ferienhaus bezugsbereit ist, erhalten Sie, sofern Ihre Mobilnummer korrekt angegeben ist, eine SMS von Feriepartner mit dem Bescheid und allen wichtigen Informationen zum Beziehen Ihres Ferienhauses.
Wie läuft die Bezahlung ab?
Nach Aufgabe der Buchung und Bestätigung seitens Feriepartner wird die erste Rate in Höhe von 25 % des Mietpreises auf Ihrem Mietvertrag sofort fällig. Sie können die Raten und Beträge im Mietvertrag oder über “Mein Feriepartner” einsehen. Bis 70 Tage vor Anreise ist die Frist für den noch offenen Restbetrag Ihrer Buchung. Sind weniger als 70 Tage bis zur Anreise, wird der gesamte Betrag in einer Rate fällig.
Wie sind die Umbuchungs- / Stornierungsbedingungen?
Bei Feriepartner ist eine Reiserücktrittsversicherung immer im Mietpreis inklusive enthalten. Sie erhalten Informationen zu den Bedingungen nach Abschluss der Buchung oder bei der Versicherungsgesellschaft Tryg A/S. Bei Stornierungen ohne den Gebrauch der Reiserücktrittsversicherung werden bis 70 Tage vor Anreise 25 % des Mietpreises fällig. Dies entspricht der ersten Rate. Ab 70 Tagen vor Anreise bis zum Anreisetag werden 80 % fällig, ab dem Anreisetag 100 %. Umbuchungen können bei Feriepartner gegen eine Gebühr von 70 € bis 70 Tage vor Anreise vorgenommen werden, allerdings nur im gleichen Kalenderjahr.
Wann erhalte ich meine Nebenkostenabrechnung?
Die Abrechnung geschieht, sofern Feriepartner alle Informationen korrekt vorliegen, innerhalb von 14 Tagen nach Abreise. Denken Sie daran Ihre IBAN und BIC bei Feriepartner zu hinterlegen, sofern Sie per Banküberweisung gezahlt haben, damit Feriepartner einen eventuellen Restbetrag auf Ihr Konto zurück überweisen kann.
Jugendgruppen unter 25 Jahren?
Bei Feriepartner gilt eine Jugendgruppe ab 3 Personen und bis 25 Jahre der einzelnen Mitreisenden. Zwei Personen unter 25 Jahre gelten i. d. R. nicht als Jugendgruppe. In speziellen Fällen können wir individuell für Sie anfragen.