
Ferienhaus 20519 in Blomstervangen 8, Jegum
Startet euren Urlaub in diesem Ferienhaus in Jegum Ferieland, gelegen im Blomstervangen 8. Das geräumige Ferienhaus bietet auf 101m2 Platz für bis zu 6 Personen. Hunde sind in diesem Ferienhaus ebenfalls herzlich willkommen, sodass ihr euren geliebten Vierbeiner problemlos mit in den Urlaub nehmen könnt.
Blomstervangen 8 - Wohlfühlambiente für gemütliche Stunden
Das Herzstück des Ferienhauses ist der geräumige Wohnbereich, der mit einem Kaminofen ausgestattet ist. Dieser sorgt für eine behagliche Wärme und eine einladende Atmosphäre, ideal für Abende mit der Familie oder Freunden. Dank des Google Chromecast`s könnt ihr eure Lieblingsserien und -filme bequem auf dem großen Fernseher streamen und euch wie zuhause fühlen. Die offene Küche ist modern ausgestattet und verfügt über alles notwendige, darunter eine Spülmaschine, welche das Aufräumen nach den Mahlzeiten erleichtert. Der angrenzende Essbereich bietet ausreichend Platz für gemeinsame Mahlzeiten und gesellige Stunden.
Für eure erholsame Nachtruhe sorgen 3 Schlafzimmer, die jeweils mit einem Doppelbett ausgestattet sind. Das Badezimmer ist mit einer Fußbodenheizung ausgestattet, die an kalten Morgen für etwas Wärme sorgt. Eine Waschmaschine und ein Trockner stehen bereit, sodass ihr während eures Aufenthalts immer frische Kleidung zur Verfügung habt.
Ein besonderes Merkmal des Ferienhauses ist der Wintergarten. Hier könnt ihr das ganze Jahr über die Natur genießen, unabhängig vom Wetter. Der Wintergarten ist nicht nur ein idealer Ort zum Entspannen und Lesen, sondern auch perfekt für gesellige Momente mit Blick auf das Rasengrundstück.
Einfach mal die Seele baumeln lassen
Der Außenbereich des Ferienhauses im Blomstervangen 8 in Jegum Ferieland ist sicher etwas für Naturliebhaber und bietet euch zahlreiche Möglichkeiten, den Tag im Freien zu verbringen. Das großzügige Rasengrundstück lädt zum Spielen und Entspannen ein und bietet Kindern und dem Hund viel Platz zum Austoben. Inmitten der grünen Umgebung könnt ihr auf der offenen Terrasse oder den abgeschirmten und geschlossenen Terrassen entspannen. Diese bieten vielseitige Nutzungsmöglichkeiten: ob Sonnenbaden, gemütliche Grillabende oder ein ruhiges Frühstück im Freien – hier findet jeder seinen Lieblingsplatz.
Für die kleinen Gäste steht ein Sandkasten bereit, der für stundenlangen Spielspaß sorgt. Eltern können sich dabei entspannt zurücklehnen und den Tag unter freiem Himmel genießen. Die Terrassen sind perfekt ausgestattet, um gesellige Abende mit Familie und Freunden zu verbringen.
Naturerlebnisse rund um Jegum Ferieland
Die Umgebung von Jegum Ferieland ist gut geeignet für Naturliebhaber, Aktivurlauber und Familien. Die charmante Ferienhausregion bietet euch verschiedene Möglichkeiten, unvergessliche Momente zu erleben. Die Landschaft, geprägt von sanften Hügeln, dichten Wäldern und weiten Feldern, lädt zu ausgedehnten Spaziergängen und Fahrradtouren ein. Der Strand ist circa 10Km von eurem Ferienhaus entfernt und hier könnt ihr erholsame Tage am Meer verbringen, Sandburgen bauen oder baden. Auch für Wassersportler gibt es zahlreiche Angebote, von Windsurfen über Kitesurfen bis hin zu Segeln. In unmittelbarer Nähe des Ferienhauses findet ihr auch zahlreiche Einkaufsmöglichkeiten. Nur 150m entfernt befindet sich der nächste Supermarkt, wo ihr alle notwendigen Dinge für euren Aufenthalt benötigt.
Hausbilder
Ausstattung
Allgemeines
- Anzahl Haustiere maximal: 1
- Anzahl Personen: 6
- Anzahl Personen: 6
- Baujahr: 1980
- Grundstücksfläche: 1.728 m²
- Haustiere erlaubt
- Nichtraucher
- Renovierung: 2018
- Wohnfläche: 101 m²
Entfernungen
- Abstand Einkauf: 150 m
- Abstand Wasser: 10.000 m Nordsee
Wohnbereich
- Flachbildfernseher
- Kaminofen
Schlafbereich
- Anzahl Doppelbetten: 3
- Anzahl Schlafzimmer: 3
Küche
- Geschirrspüler
- Herd mit Backofen
- Kühlschrank mit Gefrierfach
- Mikrowelle
Bad
- Anzahl Badezimmer: 1
- Trockner
- Waschmaschine
Multimedia
- Deutsches Fernsehen
- Internet
Aussenbereich
- Gartenmöbel
- Grundstück Rasengrundstück
- Grill
- Liegestuhl
- Sandkiste
- Sonnenschirm
-
Terrasse: 1 abgeschirmt
offen - Terrasse, geschlossen
Sonstiges
- Fußbodenheizung Bad
- Hauswechseltag Samstag
- Kinderhochstuhl
- Wintergarten
Neben- und Verbrauchskosten
Die aktuellen Verbrauchskosten finden Sie im nächsten Schritt im Buchungsformular.
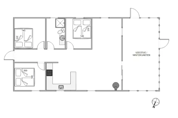
Raumaufteilung

Lageplan
Ferienhaus 20519
Blomstervangen 8
Jegum Ferieland
6840 Oksbøl
Belegungskalender
- Reisedauer auswählen
- Anzahl Reisende auswählen
- Anreisetag im Belegungskalender anklicken
- Sie bekommen Verfügbarkeit und Preis angezeigt
2025 | 1 | 2 | 3 | 4 | 5 | 6 | 7 | 8 | 9 | 10 | 11 | 12 | 13 | 14 | 15 | 16 | 17 | 18 | 19 | 20 | 21 | 22 | 23 | 24 | 25 | 26 | 27 | 28 | 29 | 30 | 31 |
Oktober | M | D | F | S | S | M | D | M | D | F | S | S | M | D | M | D | F | S | S | M | D | M | D | F | S | S | M | D | M | D | F |
November | S | S | M | D | M | D | F | S | S | M | D | M | D | F | S | S | M | D | M | D | F | S | S | M | D | M | D | F | S | S | |
Dezember | M | D | M | D | F | S | S | M | D | M | D | F | S | S | M | D | M | D | F | S | S | M | D | M | D | F | S | S | M | D | M |
2026 | 1 | 2 | 3 | 4 | 5 | 6 | 7 | 8 | 9 | 10 | 11 | 12 | 13 | 14 | 15 | 16 | 17 | 18 | 19 | 20 | 21 | 22 | 23 | 24 | 25 | 26 | 27 | 28 | 29 | 30 | 31 |
Januar | D | F | S | S | M | D | M | D | F | S | S | M | D | M | D | F | S | S | M | D | M | D | F | S | S | M | D | M | D | F | S |
Februar | S | M | D | M | D | F | S | S | M | D | M | D | F | S | S | M | D | M | D | F | S | S | M | D | M | D | F | S | |||
März | S | M | D | M | D | F | S | S | M | D | M | D | F | S | S | M | D | M | D | F | S | S | M | D | M | D | F | S | S | M | D |
April | M | D | F | S | S | M | D | M | D | F | S | S | M | D | M | D | F | S | S | M | D | M | D | F | S | S | M | D | M | D | |
Mai | F | S | S | M | D | M | D | F | S | S | M | D | M | D | F | S | S | M | D | M | D | F | S | S | M | D | M | D | F | S | S |
Juni | M | D | M | D | F | S | S | M | D | M | D | F | S | S | M | D | M | D | F | S | S | M | D | M | D | F | S | S | M | D | |
Juli | M | D | F | S | S | M | D | M | D | F | S | S | M | D | M | D | F | S | S | M | D | M | D | F | S | S | M | D | M | D | F |
August | S | S | M | D | M | D | F | S | S | M | D | M | D | F | S | S | M | D | M | D | F | S | S | M | D | M | D | F | S | S | M |
September | D | M | D | F | S | S | M | D | M | D | F | S | S | M | D | M | D | F | S | S | M | D | M | D | F | S | S | M | D | M | |
Oktober | D | F | S | S | M | D | M | D | F | S | S | M | D | M | D | F | S | S | M | D | M | D | F | S | S | M | D | M | D | F | S |
November | S | M | D | M | D | F | S | S | M | D | M | D | F | S | S | M | D | M | D | F | S | S | M | D | M | D | F | S | S | M | |
Dezember | D | M | D | F | S | S | M | D | M | D | F | S | S | M | D | M | D | F | S | S | M | D | M | D | F | S | S | M | D | M | D |
2027 | 1 | 2 | 3 | 4 | 5 | 6 | 7 | 8 | 9 | 10 | 11 | 12 | 13 | 14 | 15 | 16 | 17 | 18 | 19 | 20 | 21 | 22 | 23 | 24 | 25 | 26 | 27 | 28 | 29 | 30 | 31 |
Januar | F | S | S | M | D | M | D | F | S | S | M | D | M | D | F | S | S | M | D | M | D | F | S | S | M | D | M | D | F | S | S |
Februar | M | D | M | D | F | S | S | M | D | M | D | F | S | S | M | D | M | D | F | S | S | M | D | M | D | F | S | S | |||
März | M | D | M | D | F | S | S | M | D | M | D | F | S | S | M | D | M | D | F | S | S | M | D | M | D | F | S | S | M | D | M |
April | D | F | S | S | M | D | M | D | F | S | S | M | D | M | D | F | S | S | M | D | M | D | F | S | S | M | D | M | D | F | |
Mai | S | S | M | D | M | D | F | S | S | M | D | M | D | F | S | S | M | D | M | D | F | S | S | M | D | M | D | F | S | S | M |
Juni | D | M | D | F | S | S | M | D | M | D | F | S | S | M | D | M | D | F | S | S | M | D | M | D | F | S | S | M | D | M | |
Juli | D | F | S | S | M | D | M | D | F | S | S | M | D | M | D | F | S | S | M | D | M | D | F | S | S | M | D | M | D | F | S |
August | S | M | D | M | D | F | S | S | M | D | M | D | F | S | S | M | D | M | D | F | S | S | M | D | M | D | F | S | S | M | D |
September | M | D | F | S | S | M | D | M | D | F | S | S | M | D | M | D | F | S | S | M | D | M | D | F | S | S | M | D | M | D | |
Oktober | F | S | S | M | D | M | D | F | S | S | M | D | M | D | F | S | S | M | D | M | D | F | S | S | M | D | M | D | F | S | S |
November | M | D | M | D | F | S | S | M | D | M | D | F | S | S | M | D | M | D | F | S | S | M | D | M | D | F | S | S | M | D | |
Dezember | M | D | F | S | S | M | D | M | D | F | S | S | M | D | M | D | F | S | S | M | D | M | D | F | S | S | M | D | M | D | F |
2028 | 1 | 2 | 3 | 4 | 5 | 6 | 7 | 8 | 9 | 10 | 11 | 12 | 13 | 14 | 15 | 16 | 17 | 18 | 19 | 20 | 21 | 22 | 23 | 24 | 25 | 26 | 27 | 28 | 29 | 30 | 31 |
Januar | S | S | M | D | M | D | F | S | S | M | D | M | D | F | S | S | M | D | M | D | F | S | S | M | D | M | D | F | S | S | M |
Februar | D | M | D | F | S | S | M | D | M | D | F | S | S | M | D | M | D | F | S | S | M | D | M | D | F | S | S | M | D | ||
März | M | D | F | S | S | M | D | M | D | F | S | S | M | D | M | D | F | S | S | M | D | M | D | F | S | S | M | D | M | D | F |
April | S | S | M | D | M | D | F | S | S | M | D | M | D | F | S | S | M | D | M | D | F | S | S | M | D | M | D | F | S | S | |
Mai | M | D | M | D | F | S | S | M | D | M | D | F | S | S | M | D | M | D | F | S | S | M | D | M | D | F | S | S | M | D | M |
Juni | D | F | S | S | M | D | M | D | F | S | S | M | D | M | D | F | S | S | M | D | M | D | F | S | S | M | D | M | D | F | |
Juli | S | S | M | D | M | D | F | S | S | M | D | M | D | F | S | S | M | D | M | D | F | S | S | M | D | M | D | F | S | S | M |
August | D | M | D | F | S | S | M | D | M | D | F | S | S | M | D | M | D | F | S | S | M | D | M | D | F | S | S | M | D | M | D |
September | F | S | S | M | D | M | D | F | S | S | M | D | M | D | F | S | S | M | D | M | D | F | S | S | M | D | M | D | F | S | |
Oktober | S | M | D | M | D | F | S | S | M | D | M | D | F | S | S | M | D | M |