Ferienhaus 4179 in Sydskrænten 9, Jegum
Dieses im Jahr 2021 vollständig renovierte Ferienhaus in Jegum Ferieland bietet alles, was ihr für einen entspannten Urlaub mit Hund in Dänemark braucht. Genießt moderne Ausstattung, ein eingezäuntes Grundstück und die Ruhe der Natur, nur 11 km von der Nordsee entfernt.
Sydskrænten 9 – Ferienhaus mit Kamin, Komfort und Lademöglichkeit für E-Auto`s
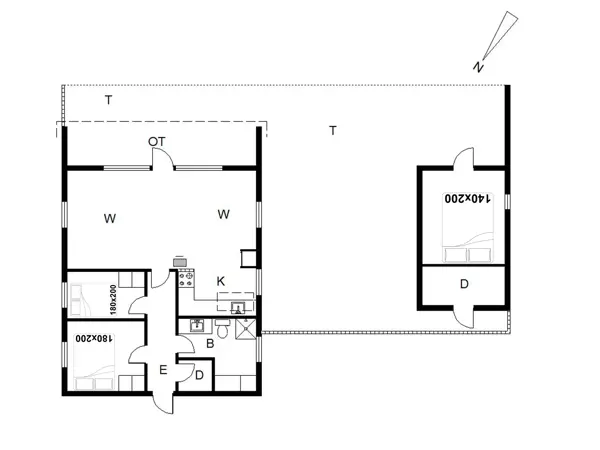
Das 80 m² große Ferienhaus wurde im Jahr 2021 umfassend renoviert und präsentiert sich heute hell, freundlich und modern eingerichtet. Zwei gemütliche Schlafzimmer im Haupthaus sowie ein separates, liebevoll eingerichtetes Anneks bieten Platz für bis zu 4 Personen – perfekt für Familien, Freunde oder Paare, die auch im Urlaub in Dänemark nicht auf Privatsphäre verzichten wollen.
Im offenen Wohnbereich lädt der knisternde Kaminofen zu entspannten Abenden ein. Das skandinavische Design schafft eine behagliche Atmosphäre. Eine moderne Wärmepumpe sorgt für ein angenehmes Raumklima zu jeder Jahreszeit.
Die Küche ist modern ausgestattet – unter anderem mit einer Spülmaschine – und geht fließend in den Essbereich über, wo gemeinsame Mahlzeiten zum Genuss werden. Das helle Badezimmer bietet dank Fußbodenheizung besonderen Komfort.
Für Unterhaltung sorgen eine Spielekonsole und WLAN, während Waschmaschine und Trockner praktische Alltagshelfer sind.
Bettengrösse: 2 Doppelbetten 180 x 200 cm + 1 Doppelbett 140 x 200 cm.
Ferienhaus mit eingezäuntem Grundstück – ideal für den Urlaub mit Hund in Dänemark
Der Außenbereich von eurem Ferienhaus im Sydskrænten 9 ist ein echtes Highlight für den Urlaub mit Hund oder Kindern. Das vollständig eingezäunte Grundstück bietet nicht nur Schutz, sondern auch ein gutes Gefühl der Sicherheit. Hier kann euer Hund sich frei bewegen und die Kinder frei spielen, während ihr euch ganz dem Urlaub hingebt.
Die großzügige, überdachte Terrasse lädt zu jeder Tageszeit zum Verweilen ein – ob beim ersten Kaffee am Morgen oder beim gemeinsamen Essen am Abend. Gut geschützt vor Wind und Wetter, wird sie schnell zum Lieblingsplatz für gemeinsame Stunden im Freien.
Ein weiterer Pluspunkt für den umweltbewussten Urlaub: Direkt am Ferienhaus ist eine Lademöglichkeit für E-Autos mit dem Typ2-Stecker vorhanden – nachhaltig und praktisch zugleich. So beginnt jeder Ausflug in die Umgebung mit einem vollen Akku.
Alles in der Nähe: Nordsee, Einkauf & Aktivitäten rund um Jegum Ferieland
Jegum Ferieland ist bekannt für seine entspannte Atmosphäre, viel Grün und die Nähe zur Natur. Nur 400 m vom Ferienhaus entfernt befindet sich ein kleiner Supermarkt – perfekt für frische Brötchen am Morgen oder den spontanen Einkauf zwischendurch. Die Nordsee mit ihren weiten Stränden ist in nur 11 Km erreichbar und lädt zu ausgedehnten Spaziergängen, einem Bad in der Nordsee und viel frischer Seeluft ein. Auch Ausflüge nach Ribe, Henne Strand oder Blåvand bieten sich an – die Region steckt voller Möglichkeiten für einen abwechslungsreichen Urlaub.
Hausbilder
Ausstattung
Allgemeines
- Anzahl Haustiere maximal: 1
- Anzahl Personen: 6
- Baujahr: 1980
- Grundstücksfläche: 1.700 m²
- Nichtraucher
- Wohnfläche: 80 m²
Entfernungen
- Abstand Einkauf: 400 m
- Abstand Wasser: 11.000 m Meer
Wohnbereich
- Kaminofen
Schlafbereich
- Anzahl Doppelbetten: 3
- Anzahl Schlafzimmer: 2
Küche
- Geschirrspüler
- Herd Ceranfeld mit Backofen
- Kühlschrank mit Gefrierfach
- Mikrowelle
Bad
- Duschnische
- Trockner
- Waschmaschine
Multimedia
- Deutsches Fernsehen
- Internationales Fernsehen Dänisches Fernsehen
- Internet WLAN
- Spielekonsole
Aussenbereich
- Gartenmöbel
Sonstiges
- Wärmepumpe
Neben- und Verbrauchskosten
Die aktuellen Verbrauchskosten finden Sie im nächsten Schritt im Buchungsformular.
Raumaufteilung
Lageplan
Ferienhaus 4179
Sydskrænten 9
6840 Oksbøl
Belegungskalender
- Reisedauer auswählen
- Anzahl Reisende auswählen
- Anreisetag im Belegungskalender anklicken
- Sie bekommen Verfügbarkeit und Preis angezeigt
| 2025 | 1 | 2 | 3 | 4 | 5 | 6 | 7 | 8 | 9 | 10 | 11 | 12 | 13 | 14 | 15 | 16 | 17 | 18 | 19 | 20 | 21 | 22 | 23 | 24 | 25 | 26 | 27 | 28 | 29 | 30 | 31 |
| Oktober | M | D | F | S | S | M | D | M | D | F | S | S | M | D | M | D | F | S | S | M | D | M | D | F | S | S | M | D | M | D | F |
| November | S | S | M | D | M | D | F | S | S | M | D | M | D | F | S | S | M | D | M | D | F | S | S | M | D | M | D | F | S | S | |
| Dezember | M | D | M | D | F | S | S | M | D | M | D | F | S | S | M | D | M | D | F | S | S | M | D | M | D | F | S | S | M | D | M |
| 2026 | 1 | 2 | 3 | 4 | 5 | 6 | 7 | 8 | 9 | 10 | 11 | 12 | 13 | 14 | 15 | 16 | 17 | 18 | 19 | 20 | 21 | 22 | 23 | 24 | 25 | 26 | 27 | 28 | 29 | 30 | 31 |
| Januar | D | F | S | S | M | D | M | D | F | S | S | M | D | M | D | F | S | S | M | D | M | D | F | S | S | M | D | M | D | F | S |
| Februar | S | M | D | M | D | F | S | S | M | D | M | D | F | S | S | M | D | M | D | F | S | S | M | D | M | D | F | S | |||
| März | S | M | D | M | D | F | S | S | M | D | M | D | F | S | S | M | D | M | D | F | S | S | M | D | M | D | F | S | S | M | D |
| April | M | D | F | S | S | M | D | M | D | F | S | S | M | D | M | D | F | S | S | M | D | M | D | F | S | S | M | D | M | D | |
| Mai | F | S | S | M | D | M | D | F | S | S | M | D | M | D | F | S | S | M | D | M | D | F | S | S | M | D | M | D | F | S | S |
| Juni | M | D | M | D | F | S | S | M | D | M | D | F | S | S | M | D | M | D | F | S | S | M | D | M | D | F | S | S | M | D | |
| Juli | M | D | F | S | S | M | D | M | D | F | S | S | M | D | M | D | F | S | S | M | D | M | D | F | S | S | M | D | M | D | F |
| August | S | S | M | D | M | D | F | S | S | M | D | M | D | F | S | S | M | D | M | D | F | S | S | M | D | M | D | F | S | S | M |
| September | D | M | D | F | S | S | M | D | M | D | F | S | S | M | D | M | D | F | S | S | M | D | M | D | F | S | S | M | D | M | |
| Oktober | D | F | S | S | M | D | M | D | F | S | S | M | D | M | D | F | S | S | M | D | M | D | F | S | S | M | D | M | D | F | S |
| November | S | M | D | M | D | F | S | S | M | D | M | D | F | S | S | M | D | M | D | F | S | S | M | D | M | D | F | S | S | M | |
| Dezember | D | M | D | F | S | S | M | D | M | D | F | S | S | M | D | M | D | F | S | S | M | D | M | D | F | S | S | M | D | M | D |
| 2027 | 1 | 2 | 3 | 4 | 5 | 6 | 7 | 8 | 9 | 10 | 11 | 12 | 13 | 14 | 15 | 16 | 17 | 18 | 19 | 20 | 21 | 22 | 23 | 24 | 25 | 26 | 27 | 28 | 29 | 30 | 31 |
| Januar | F | S | S | M | D | M | D | F | S | S | M | D | M | D | F | S | S | M | D | M | D | F | S | S | M | D | M | D | F | S | S |
| Februar | M | D | M | D | F | S | S | M | D | M | D | F | S | S | M | D | M | D | F | S | S | M | D | M | D | F | S | S | |||
| März | M | D | M | D | F | S | S | M | D | M | D | F | S | S | M | D | M | D | F | S | S | M | D | M | D | F | S | S | M | D | M |
| April | D | F | S | S | M | D | M | D | F | S | S | M | D | M | D | F | S | S | M | D | M | D | F | S | S | M | D | M | D | F | |
| Mai | S | S | M | D | M | D | F | S | S | M | D | M | D | F | S | S | M | D | M | D | F | S | S | M | D | M | D | F | S | S | M |
| Juni | D | M | D | F | S | S | M | D | M | D | F | S | S | M | D | M | D | F | S | S | M | D | M | D | F | S | S | M | D | M | |
| Juli | D | F | S | S | M | D | M | D | F | S | S | M | D | M | D | F | S | S | M | D | M | D | F | S | S | M | D | M | D | F | S |
| August | S | M | D | M | D | F | S | S | M | D | M | D | F | S | S | M | D | M | D | F | S | S | M | D | M | D | F | S | S | M | D |
| September | M | D | F | S | S | M | D | M | D | F | S | S | M | D | M | D | F | S | S | M | D | M | D | F | S | S | M | D | M | D | |
| Oktober | F | S | S | M | D | M | D | F | S | S | M | D | M | D | F | S | S | M | D | M | D | F | S | S | M | D | M | D | F | S | S |
| November | M | D | M | D | F | S | S | M | D | M | D | F | S | S | M | D | M | D | F | S | S | M | D | M | D | F | S | S | M | D | |
| Dezember | M | D | F | S | S | M | D | M | D | F | S | S | M | D | M | D | F | S | S | M | D | M | D | F | S | S | M | D | M | D | F |
| 2028 | 1 | 2 | 3 | 4 | 5 | 6 | 7 | 8 | 9 | 10 | 11 | 12 | 13 | 14 | 15 | 16 | 17 | 18 | 19 | 20 | 21 | 22 | 23 | 24 | 25 | 26 | 27 | 28 | 29 | 30 | 31 |
| Januar | S | S | M | D | M | D | F | S | S | M | D | M | D | F | S | S | M | D | M | D | F | S | S | M | D | M | D | F | S | S | M |
| Februar | D | M | D | F | S | S | M | D | M | D | F | S | S | M | D | M | D | F | S | S | M | D | M | D | F | S | S | M | D | ||
| März | M | D | F | S | S | M | D | M | D | F | S | S | M | D | M | D | F | S | S | M | D | M | D | F | S | S | M | D | M | D | F |
| April | S | S | M | D | M | D | F | S | S | M | D | M | D | F | S | S | M | D | M | D | F | S | S | M | D | M | D | F | S | S | |
| Mai | M | D | M | D | F | S | S | M | D | M | D | F | S | S | M | D | M | D | F | S | S | M | D | M | D | F | S | S | M | D | M |
| Juni | D | F | S | S | M | D | M | D | F | S | S | M | D | M | D | F | S | S | M | D | M | D | F | S | S | M | D | M | D | F | |
| Juli | S | S | M | D | M | D | F | S | S | M | D | M | D | F | S | S | M | D | M | D | F | S | S | M | D | M | D | F | S | S | M |
| August | D | M | D | F | S | S | M | D | M | D | F | S | S | M | D | M | D | F | S | S | M | D | M | D | F | S | S | M | D | M | D |
| September | F | S | S | M | D | M | D | F | S | S | M | D | M | D | F | S | S | M | D | M | D | F | S | S | M | D | M | D | F | S | |
| Oktober | S | M | D | M | D | F | S | S | M | D | M | D | F | S | S | M | D | M | D | F | S | S | M | D | M | D | F | ||||
FAQ
Wie hoch sind die Nebenkosten?
Die Kosten für Strom, Wasser, (bei einigen Häusern Gas) werden nach tagesaktuellen Preisen abgerechnet und hängen von vielen verschiedenen Faktoren ab, wie zum Beispiel Anzahl Personen, Größe des Hauses oder Ausstattung. In der Regel lässt sich sagen, dass ein Standardhaus ohne Pool, Whirlpool und Sauna im Sommer ca. 5 kWh pro Person pro Tag verbraucht. Im Winter gerne bei 10 kWh und darüber. Bei Poolhäusern mit Whirlpool und Sauna liegt der Wert im Sommer bei ca. 20 kWh und im Winter ca. bei 40 kWh. Auch hier variieren die Preise stark von Größe des Pools, Ausstattung, Größe des Hauses, Modell des Whirlpools und individuellem Verbrauch im Haus. Der Wasserverbrauch variiert ebenfalls stark und kann bei ca. 0,1-0,2 m³ pro Person pro Tag in einem Standardhaus liegen und bei Poolhäusern bei ca. 0,4-0,5 m³. Wenn eine Kaution bei der Buchung angegeben ist, ist diese angepasst an den ungefähren Durchschnittsverbrauch an Nebenkosten im Haus.
Alle Angaben ohne Gewähr und dienen lediglich als Richtwert und nicht als tatsächliche Prognose.
Kann ich das Ferienhaus unverbindlich reservieren?
Bei Købmand Hansen können keine unverbindlichen Reservierungen vorgenommen werden.
Wie bekomme ich den Schlüssel für das Ferienhaus?
Wenn nicht anders im Mietvertrag angegeben, erfolgt die Schlüsselübergabe im Büro von Købmand Hansen.
Ab wann ist das Haus bezugsbereit?
Das Ferienhaus ist ab spätestens 16 Uhr bezugsbereit.
Wie läuft die Bezahlung ab?
Die Zahlung bei Købmand Hansen erfolgt in zwei Raten. Die erste Rate beträgt 25 % des Mietpreises und wird bis 10 Tage nach der Buchung fällig. Die zweite Rate beträgt 75 % zzgl. eventueller gewählter Zusatzleistungen und wird bis 70 Tage vor Anreise fällig. Bei Buchungen mit weniger als 70 Tagen bis zur Anreise werden 100 % des Mietpreises 5 Tage nach Abschluss fällig. Bei Buchungen ab 14 Tagen bis zur Anreise werden 100 % des Mietpreises sofort fällig.
Wie sind die Umbuchungs- / Stornierungsbedingungen?
Umbuchungen sind bis 70 Tage vor Anreise möglich, gegen eine Gebühr von 70 € und müssen für eine Umbuchung im gleichen Kalenderjahr erfolgen. Bei einer Stornierung werden bis 70 Tage vor Anreise Stornierungsgebühren in Höhe von 25 % erhoben. 69 bis 1 Tag vor Anreise betragen die Stornierungsgebühren 80 % und ab dem Tag der Anreise 100 %.
Wann erhalte ich meine Nebenkostenabrechnung?
Die Nebenkostenabrechnung i. d. R. binnen 14 Tagen nach Abreise an Sie übermittelt.
Jugendgruppen unter 25 Jahren?
Zu Jugendgruppen macht der Anbieter keine genauen Angaben und müssen daher angefragt werden.