Ferienhaus 40801 in Fasanvej 10, Henne Strand
Ein Ferienhaus der absoluten Sonderklasse lädt zu exklusiven Ferien direkt an der Nordsee ein. Der Fasanvej 10 im lebhaften Urlaubsort Henne Strand, bietet eine fantastische Panoramaaussicht mit Meeresblick von fast allen Stockwerken, eine individuelle exklusive Einrichtung und Platz für 6 Personen.
Dieses herrliche Sommerhaus ist durch seine grossen Panaromafenster lichtdurchflutet und erstreckt sich über mehrere Etagen. Im Erdgeschoss befindet sich der grosse, mit exklusiven Möbeln und Küchgeräten ausgestattete kombinierte Wohn-und Küchenbereich, von dem aus man auf die herrliche Terrasse mit Panoramaaussicht gelangt.
Für Eure Autos und Sportgeräte steht eine grosse Garage zur Verfügung.
Panoramaaussicht und eine exklusive Ausstattung in direkter Meeresnähe
Ferien der Luxusklasse erwarten Euch in diesem erstklassig ausgestatten Sommerhaus in direkter Strandnähe.
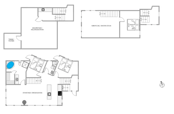
Es verfügt über drei geräumige, mit hochwertigen Möbeln ausgestattete Schlafzimmer, zwei Badezimmer, von denen das eine mit Sauna und Whirlpool ausgestattet ist, sowie einen herrlichen unvergleichlich schönen grosssen Wohnraum mit exklusiver offener Küche.
Die Ausstattung ist von bester Qualität und lässt an nichts zu wünschen übrig. Selbstverständlich gehören eine Spülmaschine, Trockner, Waschmaschine, einen Biokamin und ein grosser Flachbildschirm zum Inventar.
Ferien der Extraklasse
Was kann es Schöneres geben, als auf der herrlichen grossen Terrasse mit bequemen Liegestühlen ein Sonnenbad zu nehmen und bei einem kühlen Drink aufs Meer zu schauen und die schneeweissen Möwen am tiefblauen Himmel zu beobachten.
Nach einem ereignisreichen Tag könnt Ihr den Abend nach einem Saunagang und einem entspannenden Bad im Whirlpool vor dem schönen gas-betriebenen Kamin ausklingen lassen. Kurz vor dem Schlafengehen kann man von der von den Schlafzimmern abgehenden Terrasse noch einen letzten Blick auf den Sonnenuntergang über der Nordsee werfen und dabei den Duft, der das Haus umgebenden Strandrosen, geniessen.
Ferienstimmung pur im lebhaften Treiben von Henne Strand
Henne Strand bietet Abwechslung für alle Altersgruppen. Der beliebte lebhafte Ferienort bietet neben verschiedensten Einkaufsmöglichten, Fahrradverleih und Restaurants auch einen wunderschönen langen weissen Sandstrand, der zum Baden, Sonnen langen Spaziergängen und Buddeln für die ganz Kleinen einlädt. Dieses herrliche Sommerhaus ist der ideale Ausgangspunkt für unvergessliche Ferien im exklusiven Rahmen.
Hausbilder
Ausstattung
Allgemeines
- Anzahl Haustiere maximal: 1
- Anzahl Personen: 6
- Baujahr: 2012
- Grundstücksfläche: 1.093 m²
- Haustiere erlaubt
- Inkl. Endreinigung
- Nichtraucher
- Tolle Aussicht Panoramablick
- Wohnfläche: 160 m²
Entfernungen
- Abstand Einkauf: 300 m
- Abstand Wasser: 250 m Nordsee
Wohnbereich
- Flachbildfernseher
- Offener Kamin
Schlafbereich
- Anzahl Doppelbetten: 3
- Anzahl Schlafzimmer: 3
Küche
- Geschirrspüler
-
Herd Induktion mit Backofen
mit Backofen -
Herd Induktion mit Backofen
mit Backofen - Kühlschrank mit Gefrierfach
- Mikrowelle
Bad
- Anzahl Badezimmer: 2
- Trockner
- Waschmaschine
Wellness
- Poolgröße: 2 Anzahl Personen Whirlpool
- Sauna
Multimedia
- CD-Player
- Deutsches Fernsehen Dänische und Deutsche
- DVD-Player
- Internet
- Radio
Aussenbereich
- Gartenmöbel
- Grundstück Naturgrundstück
- Grill
- Liegestuhl
- Terrasse: 1 offen
Sonstiges
-
Fußbodenheizung Bad
Schlafzimmer
Wohnbereich - Hauswechseltag Samstag
- Kinderbett
- Kinderhochstuhl
Neben- und Verbrauchskosten
Die aktuellen Verbrauchskosten finden Sie im nächsten Schritt im Buchungsformular.
Raumaufteilung
Lageplan
Ferienhaus 40801
Fasanvej 10
Henne Strand
6854 Henne Strand
Belegungskalender
- Reisedauer auswählen
- Anzahl Reisende auswählen
- Anreisetag im Belegungskalender anklicken
- Sie bekommen Verfügbarkeit und Preis angezeigt
| 2026 | 1 | 2 | 3 | 4 | 5 | 6 | 7 | 8 | 9 | 10 | 11 | 12 | 13 | 14 | 15 | 16 | 17 | 18 | 19 | 20 | 21 | 22 | 23 | 24 | 25 | 26 | 27 | 28 | 29 | 30 | 31 |
| Mai | F | S | S | M | D | M | D | F | S | S | M | D | M | D | F | S | S | M | D | M | D | F | S | S | M | D | M | D | F | S | S |
| Juni | M | D | M | D | F | S | S | M | D | M | D | F | S | S | M | D | M | D | F | S | S | M | D | M | D | F | S | S | M | D | |
| Juli | M | D | F | S | S | M | D | M | D | F | S | S | M | D | M | D | F | S | S | M | D | M | D | F | S | S | M | D | M | D | F |
| August | S | S | M | D | M | D | F | S | S | M | D | M | D | F | S | S | M | D | M | D | F | S | S | M | D | M | D | F | S | S | M |
| September | D | M | D | F | S | S | M | D | M | D | F | S | S | M | D | M | D | F | S | S | M | D | M | D | F | S | S | M | D | M | |
| Oktober | D | F | S | S | M | D | M | D | F | S | S | M | D | M | D | F | S | S | M | D | M | D | F | S | S | M | D | M | D | F | S |
| November | S | M | D | M | D | F | S | S | M | D | M | D | F | S | S | M | D | M | D | F | S | S | M | D | M | D | F | S | S | M | |
| Dezember | D | M | D | F | S | S | M | D | M | D | F | S | S | M | D | M | D | F | S | S | M | D | M | D | F | S | S | M | D | M | D |
| 2027 | 1 | 2 | 3 | 4 | 5 | 6 | 7 | 8 | 9 | 10 | 11 | 12 | 13 | 14 | 15 | 16 | 17 | 18 | 19 | 20 | 21 | 22 | 23 | 24 | 25 | 26 | 27 | 28 | 29 | 30 | 31 |
| Januar | F | S | S | M | D | M | D | F | S | S | M | D | M | D | F | S | S | M | D | M | D | F | S | S | M | D | M | D | F | S | S |
| Februar | M | D | M | D | F | S | S | M | D | M | D | F | S | S | M | D | M | D | F | S | S | M | D | M | D | F | S | S | |||
| März | M | D | M | D | F | S | S | M | D | M | D | F | S | S | M | D | M | D | F | S | S | M | D | M | D | F | S | S | M | D | M |
| April | D | F | S | S | M | D | M | D | F | S | S | M | D | M | D | F | S | S | M | D | M | D | F | S | S | M | D | M | D | F | |
| Mai | S | S | M | D | M | D | F | S | S | M | D | M | D | F | S | S | M | D | M | D | F | S | S | M | D | M | D | F | S | S | M |
| Juni | D | M | D | F | S | S | M | D | M | D | F | S | S | M | D | M | D | F | S | S | M | D | M | D | F | S | S | M | D | M | |
| Juli | D | F | S | S | M | D | M | D | F | S | S | M | D | M | D | F | S | S | M | D | M | D | F | S | S | M | D | M | D | F | S |
| August | S | M | D | M | D | F | S | S | M | D | M | D | F | S | S | M | D | M | D | F | S | S | M | D | M | D | F | S | S | M | D |
| September | M | D | F | S | S | M | D | M | D | F | S | S | M | D | M | D | F | S | S | M | D | M | D | F | S | S | M | D | M | D | |
| Oktober | F | S | S | M | D | M | D | F | S | S | M | D | M | D | F | S | S | M | D | M | D | F | S | S | M | D | M | D | F | S | S |
| November | M | D | M | D | F | S | S | M | D | M | D | F | S | S | M | D | M | D | F | S | S | M | D | M | D | F | S | S | M | D | |
| Dezember | M | D | F | S | S | M | D | M | D | F | S | S | M | D | M | D | F | S | S | M | D | M | D | F | S | S | M | D | M | D | F |
| 2028 | 1 | 2 | 3 | 4 | 5 | 6 | 7 | 8 | 9 | 10 | 11 | 12 | 13 | 14 | 15 | 16 | 17 | 18 | 19 | 20 | 21 | 22 | 23 | 24 | 25 | 26 | 27 | 28 | 29 | 30 | 31 |
| Januar | S | S | M | D | M | D | F | S | S | M | D | M | D | F | S | S | M | D | M | D | F | S | S | M | D | M | D | F | S | S | M |
| Februar | D | M | D | F | S | S | M | D | M | D | F | S | S | M | D | M | D | F | S | S | M | D | M | D | F | S | S | M | D | ||
| März | M | D | F | S | S | M | D | M | D | F | S | S | M | D | M | D | F | S | S | M | D | M | D | F | S | S | M | D | M | D | F |
| April | S | S | M | D | M | D | F | S | S | M | D | M | D | F | S | S | M | D | M | D | F | S | S | M | D | M | D | F | S | S | |
| Mai | M | D | M | D | F | S | S | M | D | M | D | F | S | S | M | D | M | D | F | S | S | M | D | M | D | F | S | S | M | D | M |
| Juni | D | F | S | S | M | D | M | D | F | S | S | M | D | M | D | F | S | S | M | D | M | D | F | S | S | M | D | M | D | F | |
| Juli | S | S | M | D | M | D | F | S | S | M | D | M | D | F | S | S | M | D | M | D | F | S | S | M | D | M | D | F | S | S | M |
| August | D | M | D | F | S | S | M | D | M | D | F | S | S | M | D | M | D | F | S | S | M | D | M | D | F | S | S | M | D | M | D |
| September | F | S | S | M | D | M | D | F | S | S | M | D | M | D | F | S | S | M | D | M | D | F | S | S | M | D | M | D | F | S | |
| Oktober | S | M | D | M | D | F | S | S | M | D | M | D | F | S | S | M | D | M | D | F | S | S | M | D | M | D | F | S | S | M | D |
| November | M | D | F | S | S | M | D | M | D | F | S | S | M | D | M | D | F | S | S | M | D | M | D | F | S | S | M | D | M | D | |
| Dezember | F | S | S | M | D | M | D | F | S | S | M | D | M | D | F | S | S | M | D | M | D | F | S | S | M | D | M | D | F | S | S |
| 2029 | 1 | 2 | 3 | 4 | 5 | 6 | 7 | 8 | 9 | 10 | 11 | 12 | 13 | 14 | 15 | 16 | 17 | 18 | 19 | 20 | 21 | 22 | 23 | 24 | 25 | 26 | 27 | 28 | 29 | 30 | 31 |
| Januar | M | D | M | D | F | S | S | M | D | M | D | F | S | S | M | D | M | D | F | S | |||||||||||