Ferienhaus 41915 in Strandgodsvej 4, Henneby
Dieses schöne und gepflegte Poolhaus im Strandgodsvej 4 in Henneby, ist mit allem ausgestattet was das Herz begehrt. Das Sommerhaus verfügt über eine schöne Wellnessabteilung mit Pool, Whirlpool und Sauna, in der sich alle Wasserratten tummeln können. Die energiesparende Wärmepumpe trägt dazu bei, die Stromrechnung so niedrig wie möglich zu halten. Sollt Ihr euer Elektroauto dabeihaben, könnt Ihr die mit Hilfe des Ladestations (Typ 2 Stecker) aufladen.
Ferienstimmung, Spiele und Beisammensein im herrlichen Poolhaus
Der Pool lädt jederzeit zu vielen Stunden Spiel, Sport und Spass ein. Der Whirlpool und die Sauna sorgen für Entspannung und Wellness. Das stilvoll und modern eingerichtete Sommerhaus verfügt über einen kombinierten Wohn- und Küchenbereich, in dem Ihr Eure Ferien mit gemeinsamen Spielen und Mahlzeiten verbringen könnt.
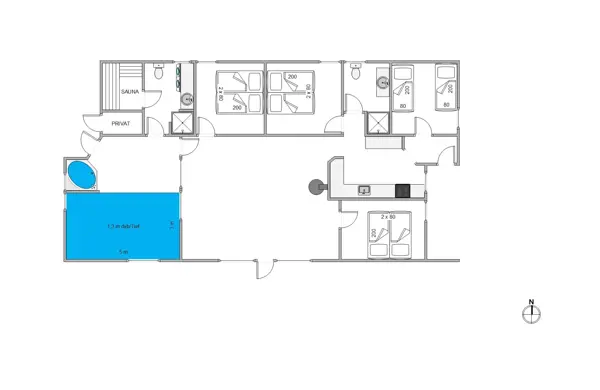
Dieses Sommerhaus bietet Platz für bis zu 10 Personen (ab 2023 für bis zu 8 Personen), die sich auf 4 Schlafzimmer verteilen können, von denen das eine mit 2 Einzelnbetten und die 3 anderen mit Doppelbetten ausgestattet sind. Es gibt 2 Badezimmer, eines davon ist der Poolabteilung angeschlossen.
Die Kinder werden das Trampolin und die grosse Wiese lieben
Dieses Sommerhaus liegt auf einem herrlichen Wiesengrundstück mit vielen Aktivitäten für Kinder. Es gibt u.a. eine Schaukel, einen Sandkasten und ein Trampolin, der Hit für Kinder jeden Alters. Die schöne geschlossene Terrasse ist mit guten Gartenmöbeln ausgestattet und nach einem erfrischenden Bad in der Nordsee könnt Ihr Euch unter der Aussendusche* den Sand abspülen.
Es ist nicht weit bis zum lebhaften Ferienort Henne Strand, der mit seinen vielen Geschäften, einer grossen Auswahl an Restaurants und Eiscafés zum Bummeln einlädt.
Der herrliche feinsandige Badestrand ist ein Eldorado für Sonnenanbeter, Wasserratten, Muschelsucher und Naturliebhaber. Lasst die Seele bei einem langen Strandspaziergang baumeln oder geniesst einen wunderschönen Sonnenuntergang über dem Meer.
Dieses Sommerhaus wird nicht an Jugendgruppen vermietet.
* Die Außendusche ist vom 01. April bis 31. Oktober nuztbar
Hausbilder
Ausstattung
Allgemeines
- Anzahl Haustiere maximal: 2
- Anzahl Personen: 8
- Anzahl Personen: 8
- Baujahr: 1994
- Grundstücksfläche: 1.600 m²
- Haustiere erlaubt
- Inkl. Endreinigung
- Wohnfläche: 141 m²
Entfernungen
- Abstand Einkauf: 2.000 m
- Abstand Wasser: 2.500 m Nordsee
Wohnbereich
- Flachbildfernseher
- Kaminofen
Schlafbereich
- Anzahl Doppelbetten: 3
- Anzahl Einzelbetten: 2
- Anzahl Schlafzimmer: 4
Küche
- Geschirrspüler
- Herd mit Backofen
- Kühlschrank mit Gefrierfach
- Mikrowelle
- Tiefkühler: 82 l
Bad
- Anzahl Badezimmer: 2
- Trockner
- Waschmaschine
Wellness
- Pool
- Poolgröße: 15 m²
- Sauna
Multimedia
- Deutsches Fernsehen Dänische und Deutsche
- DVD-Player
- Internet
- Internet
Aussenbereich
- Gartenmöbel
- Grundstück Rasengrundstück
- Grill
- Liegestuhl
- Sandkiste
- Schaukel
- Sonnenschirm
- Terrasse: 1 offen
- Terrasse, geschlossen
- Terrasse, überdacht
Sonstiges
- Fußbodenheizung Bad
- Hauswechseltag Samstag
- Kinderbett
- Kinderhochstuhl
- Ladestation für Elektroautos
- Wärmepumpe Luft-Wasser
Neben- und Verbrauchskosten
Die aktuellen Verbrauchskosten finden Sie im nächsten Schritt im Buchungsformular.
Raumaufteilung
Lageplan
Ferienhaus 41915
Strandgodsvej 4
Henneby
6854 Henne Strand
Belegungskalender
- Reisedauer auswählen
- Anzahl Reisende auswählen
- Anreisetag im Belegungskalender anklicken
- Sie bekommen Verfügbarkeit und Preis angezeigt
| 2025 | 1 | 2 | 3 | 4 | 5 | 6 | 7 | 8 | 9 | 10 | 11 | 12 | 13 | 14 | 15 | 16 | 17 | 18 | 19 | 20 | 21 | 22 | 23 | 24 | 25 | 26 | 27 | 28 | 29 | 30 | 31 |
| November | S | S | M | D | M | D | F | S | S | M | D | M | D | F | S | S | M | D | M | D | F | S | S | M | D | M | D | F | S | S | |
| Dezember | M | D | M | D | F | S | S | M | D | M | D | F | S | S | M | D | M | D | F | S | S | M | D | M | D | F | S | S | M | D | M |
| 2026 | 1 | 2 | 3 | 4 | 5 | 6 | 7 | 8 | 9 | 10 | 11 | 12 | 13 | 14 | 15 | 16 | 17 | 18 | 19 | 20 | 21 | 22 | 23 | 24 | 25 | 26 | 27 | 28 | 29 | 30 | 31 |
| Januar | D | F | S | S | M | D | M | D | F | S | S | M | D | M | D | F | S | S | M | D | M | D | F | S | S | M | D | M | D | F | S |
| Februar | S | M | D | M | D | F | S | S | M | D | M | D | F | S | S | M | D | M | D | F | S | S | M | D | M | D | F | S | |||
| März | S | M | D | M | D | F | S | S | M | D | M | D | F | S | S | M | D | M | D | F | S | S | M | D | M | D | F | S | S | M | D |
| April | M | D | F | S | S | M | D | M | D | F | S | S | M | D | M | D | F | S | S | M | D | M | D | F | S | S | M | D | M | D | |
| Mai | F | S | S | M | D | M | D | F | S | S | M | D | M | D | F | S | S | M | D | M | D | F | S | S | M | D | M | D | F | S | S |
| Juni | M | D | M | D | F | S | S | M | D | M | D | F | S | S | M | D | M | D | F | S | S | M | D | M | D | F | S | S | M | D | |
| Juli | M | D | F | S | S | M | D | M | D | F | S | S | M | D | M | D | F | S | S | M | D | M | D | F | S | S | M | D | M | D | F |
| August | S | S | M | D | M | D | F | S | S | M | D | M | D | F | S | S | M | D | M | D | F | S | S | M | D | M | D | F | S | S | M |
| September | D | M | D | F | S | S | M | D | M | D | F | S | S | M | D | M | D | F | S | S | M | D | M | D | F | S | S | M | D | M | |
| Oktober | D | F | S | S | M | D | M | D | F | S | S | M | D | M | D | F | S | S | M | D | M | D | F | S | S | M | D | M | D | F | S |
| November | S | M | D | M | D | F | S | S | M | D | M | D | F | S | S | M | D | M | D | F | S | S | M | D | M | D | F | S | S | M | |
| Dezember | D | M | D | F | S | S | M | D | M | D | F | S | S | M | D | M | D | F | S | S | M | D | M | D | F | S | S | M | D | M | D |
| 2027 | 1 | 2 | 3 | 4 | 5 | 6 | 7 | 8 | 9 | 10 | 11 | 12 | 13 | 14 | 15 | 16 | 17 | 18 | 19 | 20 | 21 | 22 | 23 | 24 | 25 | 26 | 27 | 28 | 29 | 30 | 31 |
| Januar | F | S | S | M | D | M | D | F | S | S | M | D | M | D | F | S | S | M | D | M | D | F | S | S | M | D | M | D | F | S | S |
| Februar | M | D | M | D | F | S | S | M | D | M | D | F | S | S | M | D | M | D | F | S | S | M | D | M | D | F | S | S | |||
| März | M | D | M | D | F | S | S | M | D | M | D | F | S | S | M | D | M | D | F | S | S | M | D | M | D | F | S | S | M | D | M |
| April | D | F | S | S | M | D | M | D | F | S | S | M | D | M | D | F | S | S | M | D | M | D | F | S | S | M | D | M | D | F | |
| Mai | S | S | M | D | M | D | F | S | S | M | D | M | D | F | S | S | M | D | M | D | F | S | S | M | D | M | D | F | S | S | M |
| Juni | D | M | D | F | S | S | M | D | M | D | F | S | S | M | D | M | D | F | S | S | M | D | M | D | F | S | S | M | D | M | |
| Juli | D | F | S | S | M | D | M | D | F | S | S | M | D | M | D | F | S | S | M | D | M | D | F | S | S | M | D | M | D | F | S |
| August | S | M | D | M | D | F | S | S | M | D | M | D | F | S | S | M | D | M | D | F | S | S | M | D | M | D | F | S | S | M | D |
| September | M | D | F | S | S | M | D | M | D | F | S | S | M | D | M | D | F | S | S | M | D | M | D | F | S | S | M | D | M | D | |
| Oktober | F | S | S | M | D | M | D | F | S | S | M | D | M | D | F | S | S | M | D | M | D | F | S | S | M | D | M | D | F | S | S |
| November | M | D | M | D | F | S | S | M | D | M | D | F | S | S | M | D | M | D | F | S | S | M | D | M | D | F | S | S | M | D | |
| Dezember | M | D | F | S | S | M | D | M | D | F | S | S | M | D | M | D | F | S | S | M | D | M | D | F | S | S | M | D | M | D | F |
| 2028 | 1 | 2 | 3 | 4 | 5 | 6 | 7 | 8 | 9 | 10 | 11 | 12 | 13 | 14 | 15 | 16 | 17 | 18 | 19 | 20 | 21 | 22 | 23 | 24 | 25 | 26 | 27 | 28 | 29 | 30 | 31 |
| Januar | S | S | M | D | M | D | F | S | S | M | D | M | D | F | S | S | M | D | M | D | F | S | S | M | D | M | D | F | S | S | M |
| Februar | D | M | D | F | S | S | M | D | M | D | F | S | S | M | D | M | D | F | S | S | M | D | M | D | F | S | S | M | D | ||
| März | M | D | F | S | S | M | D | M | D | F | S | S | M | D | M | D | F | S | S | M | D | M | D | F | S | S | M | D | M | D | F |
| April | S | S | M | D | M | D | F | S | S | M | D | M | D | F | S | S | M | D | M | D | F | S | S | M | D | M | D | F | S | S | |
| Mai | M | D | M | D | F | S | S | M | D | M | D | F | S | S | M | D | M | D | F | S | S | M | D | M | D | F | S | S | M | D | M |
| Juni | D | F | S | S | M | D | M | D | F | S | S | M | D | M | D | F | S | S | M | D | M | D | F | S | S | M | D | M | D | F | |
| Juli | S | S | M | D | M | D | F | S | S | M | D | M | D | F | S | S | M | D | M | D | F | S | S | M | D | M | D | F | S | S | M |
| August | D | M | D | F | S | S | M | D | M | D | F | S | S | M | D | M | D | F | S | S | M | D | M | D | F | S | S | M | D | M | D |
| September | F | S | S | M | D | M | D | F | S | S | M | D | M | D | F | S | S | M | D | M | D | F | S | S | M | D | M | D | F | S | |
| Oktober | S | M | D | M | D | F | S | S | M | D | M | D | F | S | S | M | D | M | D | F | S | S | M | D | M | D | F | S | S | M | D |
| November | M | D | F | S | S | M | D | M | D | F | S | ||||||||||||||||||||