Ferienhaus 41610 in Dahlsvej 6, Henneby
Im wunderschönen Henneby erwartet euch im Dahlsvej 6 ein Poolhaus, das keine Wünsche offenlässt. Hier findet ihr nicht nur wunderbare Annehmlichkeiten und ein durchdachtes Design, sondern auch genug Platz für bis zu 14 Personen. Dieses Juwel, im Jahr 2025 erbaut, bietet auf einer Wohnfläche von 300 m² ein unvergleichliches Erlebnis, das euch und euren Liebsten lange in Erinnerung bleiben wird. Wenn ihr mit dem E-Auto anreist, findet ihr am Ferienhaus eine Lademöglichkeit, vergesst aber bitte nicht euer Kabel / Adapter.
Offenes Wohnkonzept mit moderner Küche
Beim Betreten des Ferienhauses in Henneby werdet ihr sofort von der großzügigen, offenen Gestaltung des Wohnbereichs beeindruckt sein. Die moderne Küche ist nahtlos in den Wohnbereich integriert und lädt dazu ein, gemeinsam kulinarische Meisterwerke zu zaubern. Ausgestattet mit zwei praktischen Spülmaschinen wird der Abwasch zum Kinderspiel, sodass ihr eure Zeit auf die schönste Art und Weise nutzen könnt, Entspannung und Geselligkeit.
Der Wohnraum ist das Herzstück des Ferienhauses. Eine gemütliche Atmosphäre und moderne Unterhaltungstechnik wie Apple TV machen dieses Wohnzimmer zum idealen Ort, um gemeinsam zu plaudern, Spieleabende zu veranstalten oder die Lieblingsfilme zu genießen.
Eines der Highlights des Ferienhauses ist der 24 m² große Salzwasserpool, der mit einer innovativen Gegenstromanlage ausgestattet ist. Ob ihr sportlich einige Bahnen ziehen oder einfach nur planschen wollt – dieser Pool bietet alles, was das Herz begehrt. Im Aktivitätsraum könnt ihr weitere sportliche Duelle ausfechten, ob beim Poolbillard oder beim Tischtennis. Mehr Bewegung könnt Ihr auch im Motionsraum erhalten, und dort die Motionsausstattung geniessen.
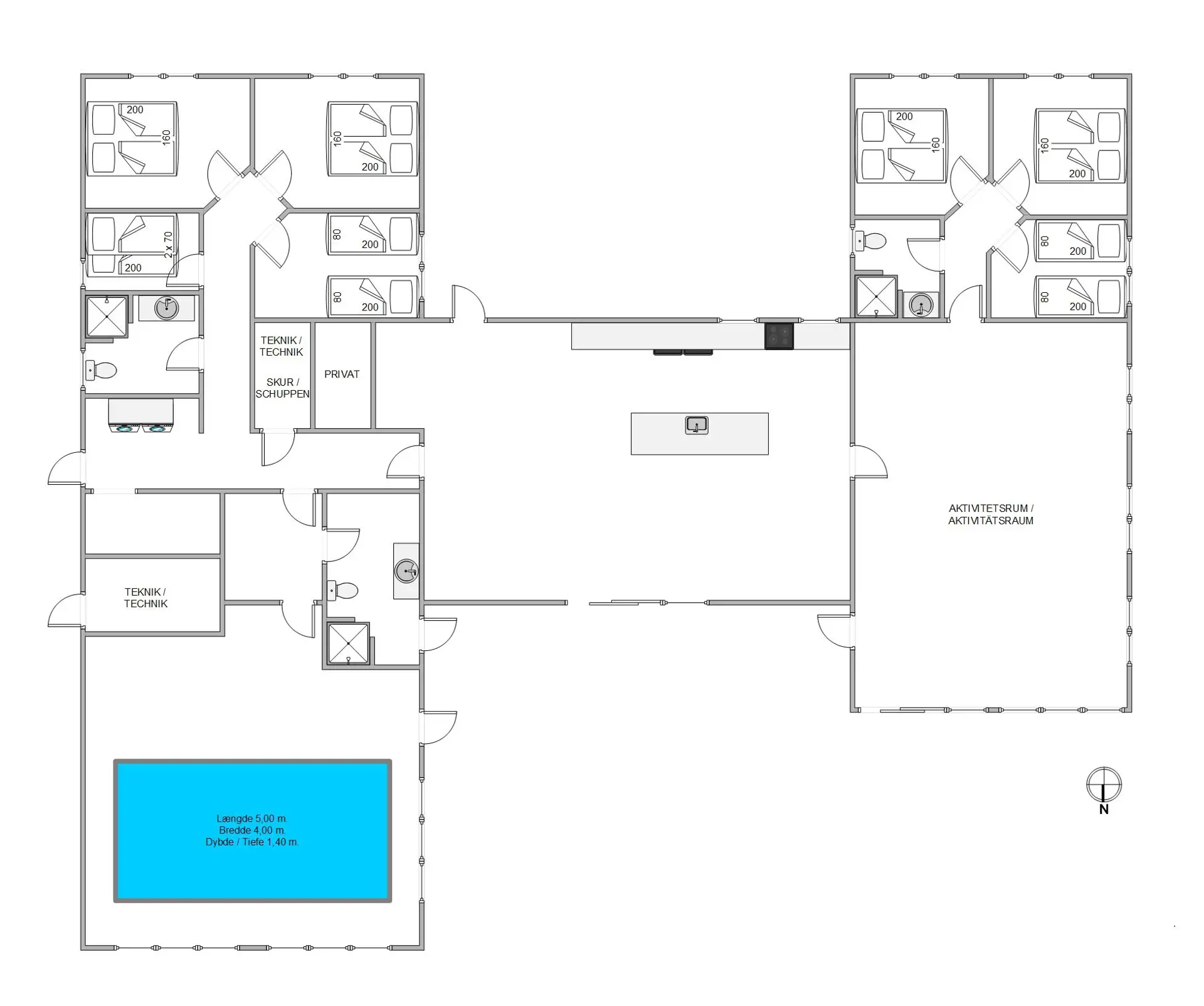
Mit insgesamt 7 Schlafzimmern, ausgestattet mit 4 Doppelbetten, 4 Einzelbetten, einem Etagenbett und einer zusätzlichen Schlafnische, ist genug Platz für alle. Jeder Gast findet hier seine persönliche Rückzugsmöglichkeit. Die 3 Badezimmer sind modern eingerichtet und mit Fußbodenheizung ausgestattet – Komfort auf höchstem Niveau. Die Waschmaschine und der Trockner sorgen dafür, dass ihr nur eure Lieblingskleidung einpacken müsst.
Weitläufiger Außenbereich im Dahlsvej 6
Das Ferienhaus in Henneby besticht durch einen beeindruckenden Außenbereich auf einem 3700 m² großen Rasengrundstück. Ob in der Sonne auf einer der Terrassen – offen, überdacht oder abgeschirmt – oder beim Grillen mit den bereitstehenden Gartenmöbeln, hier findet ihr euren Lieblingsplatz im Freien. Kinder und Erwachsene werden gleichermaßen vom Trampolin begeistert sein. Für noch mehr Entspannung sorgen die Außensauna und der Außenwhirlpool, der ebenfalls mit Salzwasser gefüllt ist. Diese Wellnessoase mitten in Henneby verspricht totale Erholung für die ganze Familie. Wenn ihr vom Strand kommt, dann steht euch eine Außendusche von April – November zur Verfügung, damit ihr euch gleich den Sand von den Füßen spülen könnt.
Nah am Strand, der Natur und Erlebnissen
Mit nur ca. 2,2 Km bis zur beeindruckenden Nordsee und ca. 2 Km bis zu den nächsten Einkaufsmöglichkeiten wohnt ihr nah an der Natur und allen Annehmlichkeiten. Henneby ist eine ruhige und grüne Gegend, die zu Ruhe und Besinnung einlädt – optimal für alle, die mal so richtig abschalten wollen. Gleichzeitig seid ihr nur wenige Autominuten von Henne Strand entfernt, wo ihr ein charmantes Urlaubsgebiet mit Cafés, Eisdielen, Spezialitätengeschäften und Aktivitäten für die ganze Familie findet.
*Keine Jugendgruppen
Hausbilder
Ausstattung
Allgemeines
- Anzahl Personen: 14
- Anzahl Personen: 14
- Baujahr: 2025
- Grundstücksfläche: 3.700 m²
- Inkl. Endreinigung
- Nichtraucher
- Verbrauch inklusive Strom
- Wohnfläche: 300 m²
Entfernungen
- Abstand Einkauf: 2.000 m
- Abstand Wasser: 2.200 m Nordsee
Wohnbereich
- Flachbildfernseher
Schlafbereich
- Anzahl Doppelbetten: 4
- Anzahl Einzelbetten: 4
- Anzahl Etagenbetten : 1
- Anzahl Schlafzimmer: 7
- Schlafnische im Wohnraum: 1
Küche
- Geschirrspüler
- Herd Induktion mit Backofen
- Kühlschrank
- Mikrowelle
- Tiefkühler: 40 l
Bad
- Anzahl Badezimmer: 3
- Trockner
- Waschmaschine
Wellness
- Pool mit Gegenstromanlage
- Pool mit Gegenstromanlage
- Poolgröße: 24 m² Anzahl Personen Außenwhirlpool
- Poolgröße: 6 Anzahl Personen Außenwhirlpool
- Sauna Außensauna
Multimedia
- Deutsches Fernsehen Dänische und Deutsche
- Internet
- Radio
Spieleangebot
- Billard
- Tischtennis
Aussenbereich
- Gartenmöbel
- Grundstück Rasengrundstück
- Grill Gasgrill
- Liegestuhl
- Sonnenschirm
-
Terrasse: 1 abgeschirmt
offen - Terrasse, überdacht
Sonstiges
-
Besonderheiten Abstellraum
iPod Dock -
Fußbodenheizung Bad
Schlafzimmer
Wohnbereich - Hauswechseltag Samstag
- Ladestation für Elektroautos
- Wärmepumpe Luft-Wasser
Neben- und Verbrauchskosten
Die aktuellen Verbrauchskosten finden Sie im nächsten Schritt im Buchungsformular.
Raumaufteilung
Lageplan
Ferienhaus 41610
Dahlsvej 6
Henneby
6854 Henne
Belegungskalender
- Reisedauer auswählen
- Anzahl Reisende auswählen
- Anreisetag im Belegungskalender anklicken
- Sie bekommen Verfügbarkeit und Preis angezeigt
| 2026 | 1 | 2 | 3 | 4 | 5 | 6 | 7 | 8 | 9 | 10 | 11 | 12 | 13 | 14 | 15 | 16 | 17 | 18 | 19 | 20 | 21 | 22 | 23 | 24 | 25 | 26 | 27 | 28 | 29 | 30 | 31 |
| Mai | F | S | S | M | D | M | D | F | S | S | M | D | M | D | F | S | S | M | D | M | D | F | S | S | M | D | M | D | F | S | S |
| Juni | M | D | M | D | F | S | S | M | D | M | D | F | S | S | M | D | M | D | F | S | S | M | D | M | D | F | S | S | M | D | |
| Juli | M | D | F | S | S | M | D | M | D | F | S | S | M | D | M | D | F | S | S | M | D | M | D | F | S | S | M | D | M | D | F |
| August | S | S | M | D | M | D | F | S | S | M | D | M | D | F | S | S | M | D | M | D | F | S | S | M | D | M | D | F | S | S | M |
| September | D | M | D | F | S | S | M | D | M | D | F | S | S | M | D | M | D | F | S | S | M | D | M | D | F | S | S | M | D | M | |
| Oktober | D | F | S | S | M | D | M | D | F | S | S | M | D | M | D | F | S | S | M | D | M | D | F | S | S | M | D | M | D | F | S |
| November | S | M | D | M | D | F | S | S | M | D | M | D | F | S | S | M | D | M | D | F | S | S | M | D | M | D | F | S | S | M | |
| Dezember | D | M | D | F | S | S | M | D | M | D | F | S | S | M | D | M | D | F | S | S | M | D | M | D | F | S | S | M | D | M | D |
| 2027 | 1 | 2 | 3 | 4 | 5 | 6 | 7 | 8 | 9 | 10 | 11 | 12 | 13 | 14 | 15 | 16 | 17 | 18 | 19 | 20 | 21 | 22 | 23 | 24 | 25 | 26 | 27 | 28 | 29 | 30 | 31 |
| Januar | F | S | S | M | D | M | D | F | S | S | M | D | M | D | F | S | S | M | D | M | D | F | S | S | M | D | M | D | F | S | S |
| Februar | M | D | M | D | F | S | S | M | D | M | D | F | S | S | M | D | M | D | F | S | S | M | D | M | D | F | S | S | |||
| März | M | D | M | D | F | S | S | M | D | M | D | F | S | S | M | D | M | D | F | S | S | M | D | M | D | F | S | S | M | D | M |
| April | D | F | S | S | M | D | M | D | F | S | S | M | D | M | D | F | S | S | M | D | M | D | F | S | S | M | D | M | D | F | |
| Mai | S | S | M | D | M | D | F | S | S | M | D | M | D | F | S | S | M | D | M | D | F | S | S | M | D | M | D | F | S | S | M |
| Juni | D | M | D | F | S | S | M | D | M | D | F | S | S | M | D | M | D | F | S | S | M | D | M | D | F | S | S | M | D | M | |
| Juli | D | F | S | S | M | D | M | D | F | S | S | M | D | M | D | F | S | S | M | D | M | D | F | S | S | M | D | M | D | F | S |
| August | S | M | D | M | D | F | S | S | M | D | M | D | F | S | S | M | D | M | D | F | S | S | M | D | M | D | F | S | S | M | D |
| September | M | D | F | S | S | M | D | M | D | F | S | S | M | D | M | D | F | S | S | M | D | M | D | F | S | S | M | D | M | D | |
| Oktober | F | S | S | M | D | M | D | F | S | S | M | D | M | D | F | S | S | M | D | M | D | F | S | S | M | D | M | D | F | S | S |
| November | M | D | M | D | F | S | S | M | D | M | D | F | S | S | M | D | M | D | F | S | S | M | D | M | D | F | S | S | M | D | |
| Dezember | M | D | F | S | S | M | D | M | D | F | S | S | M | D | M | D | F | S | S | M | D | M | D | F | S | S | M | D | M | D | F |
| 2028 | 1 | 2 | 3 | 4 | 5 | 6 | 7 | 8 | 9 | 10 | 11 | 12 | 13 | 14 | 15 | 16 | 17 | 18 | 19 | 20 | 21 | 22 | 23 | 24 | 25 | 26 | 27 | 28 | 29 | 30 | 31 |
| Januar | S | S | M | D | M | D | F | S | S | M | D | M | D | F | S | S | M | D | M | D | F | S | S | M | D | M | D | F | S | S | M |
| Februar | D | M | D | F | S | S | M | D | M | D | F | S | S | M | D | M | D | F | S | S | M | D | M | D | F | S | S | M | D | ||
| März | M | D | F | S | S | M | D | M | D | F | S | S | M | D | M | D | F | S | S | M | D | M | D | F | S | S | M | D | M | D | F |
| April | S | S | M | D | M | D | F | S | S | M | D | M | D | F | S | S | M | D | M | D | F | S | S | M | D | M | D | F | S | S | |
| Mai | M | D | M | D | F | S | S | M | D | M | D | F | S | S | M | D | M | D | F | S | S | M | D | M | D | F | S | S | M | D | M |
| Juni | D | F | S | S | M | D | M | D | F | S | S | M | D | M | D | F | S | S | M | D | M | D | F | S | S | M | D | M | D | F | |
| Juli | S | S | M | D | M | D | F | S | S | M | D | M | D | F | S | S | M | D | M | D | F | S | S | M | D | M | D | F | S | S | M |
| August | D | M | D | F | S | S | M | D | M | D | F | S | S | M | D | M | D | F | S | S | M | D | M | D | F | S | S | M | D | M | D |
| September | F | S | S | M | D | M | D | F | S | S | M | D | M | D | F | S | S | M | D | M | D | F | S | S | M | D | M | D | F | S | |
| Oktober | S | M | D | M | D | F | S | S | M | D | M | D | F | S | S | M | D | M | D | F | S | S | M | D | M | D | F | S | S | M | D |
| November | M | D | F | S | S | M | D | M | D | F | S | S | M | D | M | D | F | S | S | M | D | M | D | F | S | S | M | D | M | D | |
| Dezember | F | S | S | M | D | M | D | F | S | S | M | D | M | D | F | S | S | M | D | M | D | F | S | S | M | D | M | D | F | S | S |
| 2029 | 1 | 2 | 3 | 4 | 5 | 6 | 7 | 8 | 9 | 10 | 11 | 12 | 13 | 14 | 15 | 16 | 17 | 18 | 19 | 20 | 21 | 22 | 23 | 24 | 25 | 26 | 27 | 28 | 29 | 30 | 31 |
| Januar | M | D | M | D | F | S | S | M | D | M | D | F | S | S | M | D | M | D | F | S | |||||||||||