Ferienhaus 1087 in Berberisvej 7, Ulvshale Strand
Sobald Sie den Schlüssel umdrehen, beginnt Ihr Urlaub und Sie können die Tage an diesem malerischen Ort ganz nach Ihren Wünschen genießen.
Willkommen in deinem Ferienhaus
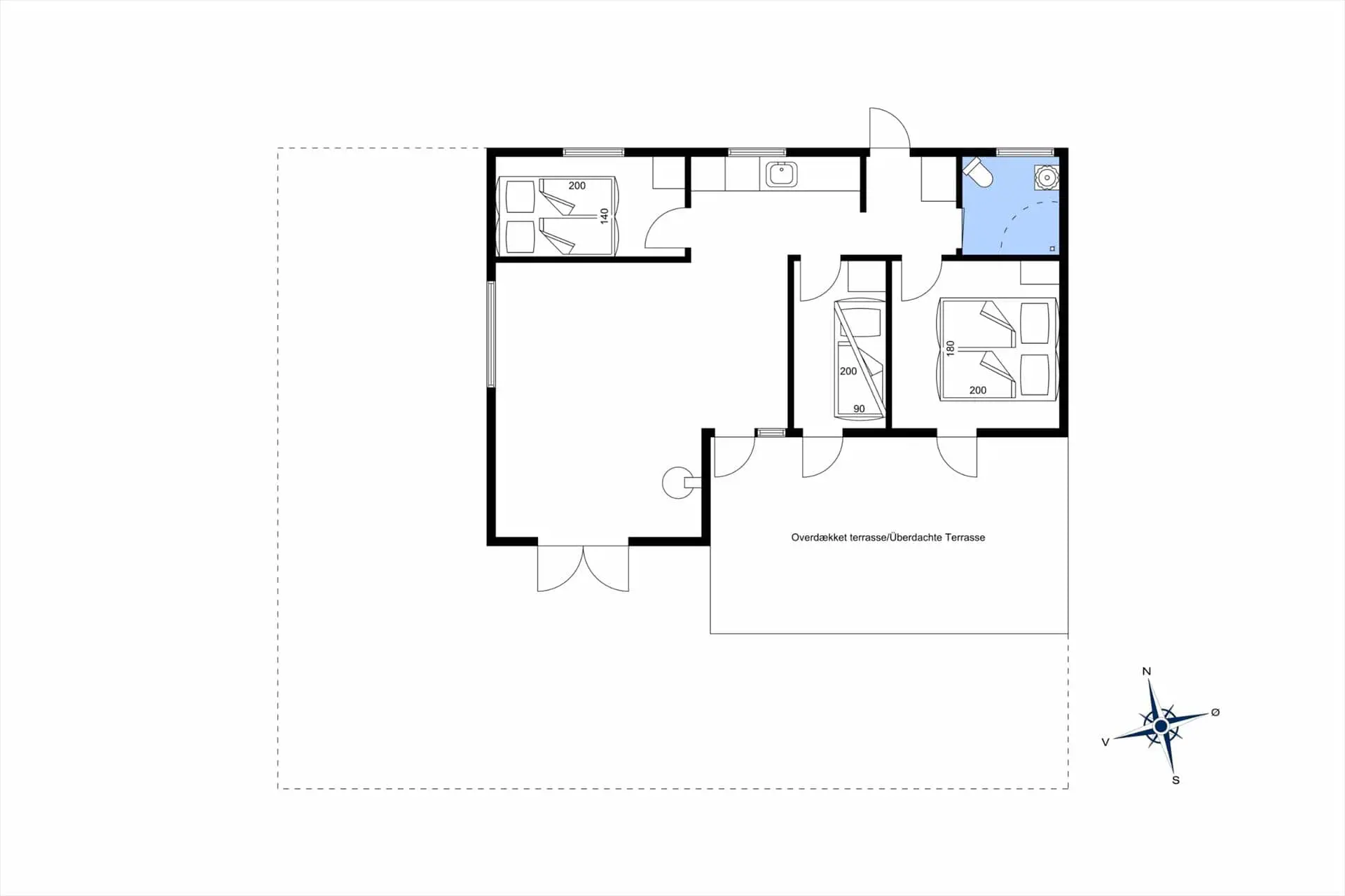
Von der großzügigen Holzterrasse (ca. 130 m²) gelangen Sie direkt in ein helles und einladendes Ferienhaus, das mit neuen Türen und Fenstern sowie einem modernen, stilvollen Ambiente wunderschön renoviert wurde. Das gemütliche Interieur schafft eine entspannte Urlaubsatmosphäre, in der Sie gemeinsam das Essen zubereiten und die Erlebnisse für den nächsten Tag planen können. Hier finden Sie eine Sofaecke, einen Essbereich, Streaming-TV und WLAN, sodass Sie sich ganz einfach entspannen oder – falls gewünscht – in Kontakt bleiben können. Der Kaminofen sorgt an kühlen Abenden für wohlige Wärme, und die Wärmepumpe garantiert das ganze Jahr über eine angenehme Temperatur. Die neue Küche ist mit Induktionskochfeld, Backofen, Dunstabzugshaube, Kühlschrank, Gefrierschrank und Geschirrspüler sowie einer Waschmaschine ausgestattet – so lassen sich sowohl schnelle Mittagessen als auch ausgedehnte Abendessen im Handumdrehen zubereiten. Das Haus verfügt über drei komfortable Zimmer: eines mit einem Doppelbett (140 cm), eines mit zwei neuen Etagenbetten und direktem Zugang zur Terrasse sowie ein Hauptschlafzimmer mit Doppelbett und eigener Terrassentür. Das Badezimmer ist mit WC, Waschbecken und Dusche ausgestattet. Hier finden sechs Gäste Platz – ideal für Familien oder Freunde.
Genieße das Leben im Freien
Der Garten ist von einer hohen Buchenhecke umgeben, und die große Holzterrasse wird schnell zu Ihrem Lieblingsplatz. Hier finden Sie viel Platz für den Morgenkaffee, gemütliche Abendessen und lange Sommerabende. Wenn die Terrassentüren vom Wohnzimmer und den Schlafzimmern geöffnet sind, verschmelzen Innen- und Außenbereich harmonisch. Das Grundstück ist ca. 1.200 m² groß und bietet viel frische Luft. Hier können die Kinder unbeschwert spielen, während Sie die Ruhe genießen. Der Strand ist ganz in der Nähe, sodass Sie sich jederzeit erfrischen können.
Entdecke deine Umgebung
Diese Gegend auf Møn bietet den perfekten Rahmen für einen gelungenen Urlaub mit der ganzen Familie. Sie wohnen inmitten der Natur von Møn – in der Nähe von Wald und Strand. Die Umgebung bietet zahlreiche Outdoor-Aktivitäten wie Schwimmen, Angeln, Wandern und Radfahren. Besuchen Sie Møns Klint und das Geozentrum mit seinen vielfältigen Angeboten für Groß und Klein. Oder unternehmen Sie einen Ausflug zur Insel Nyord über den Damm. Der Ort selbst ist autofrei. Auch Møn Is ist einen Besuch wert und bietet Erlebnisse für die ganze Familie. Besuchen Sie die gemütliche Marktstadt Stege mit ihren vielen Fachgeschäften und einer großen Auswahl an regionalen Produkten. Hier finden Sie außerdem gute Restaurants, Lebensmittelgeschäfte und im Sommer die berühmten Wochenmärkte am Dienstag. Møns Klint wurde 2025 in die Liste des UNESCO-Welterbes aufgenommen.
Hausbilder
Ausstattung
Allgemeines
- Anzahl Haustiere maximal: 1
- Anzahl Personen: 6
- Baujahr: 1974
- Carport
- Grundstücksfläche: 1.200 m²
- Haustiere: Nur Hunde erlaubt
- Nichtraucher
- Renovierung: 2026 Teilw. renoviert
- Wohnfläche: 69 m²
Entfernungen
- Abstand Einkauf: 0 m
- Abstand Strand: 100 m
Wohnbereich
- Kaminofen
Schlafbereich
-
Anzahl Doppelbetten: 2 140x200cm
180x200cm - Anzahl Etagenbetten : 2 Hochbett, 90x200cm
Küche
- Dunstabzug
- Extra Backofen
- Geschirrspüler
- Kaffeemaschine
- Kochplatten: 1 elektrische
- Kühlschrank l
- Tiefkühler: 0 l
- Wasserkocher
Bad
- Anzahl Duschen: 1
- Anzahl Toiletten: 1
- Waschmaschine
- Waschmaschine
Multimedia
- Internet
Aussenbereich
- Gartenmöbel
- Terrasse: 130 m² Teilw. überdachte Terrasse
Sonstiges
- Bügelbrett
- Bügeleisen
- Kinderhochstuhl
- Das Aufladen von Elektroautos ist nicht erlaubt
- Wärmepumpe
- Sonstiges Chromecast
- Sonstiges Apple TV
Neben- und Verbrauchskosten
Die aktuellen Verbrauchskosten finden Sie im nächsten Schritt im Buchungsformular.
Raumaufteilung
Lageplan
Ferienhaus 1087
Berberisvej 7
4780 Stege
Belegungskalender
- Reisedauer auswählen
- Anzahl Reisende auswählen
- Anreisetag im Belegungskalender anklicken
- Sie bekommen Verfügbarkeit und Preis angezeigt
| 2026 | 1 | 2 | 3 | 4 | 5 | 6 | 7 | 8 | 9 | 10 | 11 | 12 | 13 | 14 | 15 | 16 | 17 | 18 | 19 | 20 | 21 | 22 | 23 | 24 | 25 | 26 | 27 | 28 | 29 | 30 | 31 |
| Mai | F | S | S | M | D | M | D | F | S | S | M | D | M | D | F | S | S | M | D | M | D | F | S | S | M | D | M | D | F | S | S |
| Juni | M | D | M | D | F | S | S | M | D | M | D | F | S | S | M | D | M | D | F | S | S | M | D | M | D | F | S | S | M | D | |
| Juli | M | D | F | S | S | M | D | M | D | F | S | S | M | D | M | D | F | S | S | M | D | M | D | F | S | S | M | D | M | D | F |
| August | S | S | M | D | M | D | F | S | S | M | D | M | D | F | S | S | M | D | M | D | F | S | S | M | D | M | D | F | S | S | M |
| September | D | M | D | F | S | S | M | D | M | D | F | S | S | M | D | M | D | F | S | S | M | D | M | D | F | S | S | M | D | M | |
| Oktober | D | F | S | S | M | D | M | D | F | S | S | M | D | M | D | F | S | S | M | D | M | D | F | S | S | M | D | M | D | F | S |
| November | S | M | D | M | D | F | S | S | M | D | M | D | F | S | S | M | D | M | D | F | S | S | M | D | M | D | F | S | S | M | |
| Dezember | D | M | D | F | S | S | M | D | M | D | F | S | S | M | D | M | D | F | S | S | M | D | M | D | F | S | S | M | D | M | D |
| 2027 | 1 | 2 | 3 | 4 | 5 | 6 | 7 | 8 | 9 | 10 | 11 | 12 | 13 | 14 | 15 | 16 | 17 | 18 | 19 | 20 | 21 | 22 | 23 | 24 | 25 | 26 | 27 | 28 | 29 | 30 | 31 |
| Januar | F | S | S | M | D | M | D | F | S | S | M | D | M | D | F | S | S | M | D | M | D | F | S | S | M | D | M | D | F | S | S |
| Februar | M | D | M | D | F | S | S | M | D | M | D | F | S | S | M | D | M | D | F | S | S | M | D | M | D | F | S | S | |||
| März | M | D | M | D | F | S | S | M | D | M | D | F | S | S | M | D | M | D | F | S | S | M | D | M | D | F | S | S | M | D | M |
| April | D | F | S | S | M | D | M | D | F | S | S | M | D | M | D | F | S | S | M | D | M | D | F | S | S | M | D | M | D | F | |
| Mai | S | S | M | D | M | D | F | S | S | M | D | M | D | F | S | S | M | D | M | D | F | S | S | M | D | M | D | F | S | S | M |
| Juni | D | M | D | F | S | S | M | D | M | D | F | S | S | M | D | M | D | F | S | S | M | D | M | D | F | S | S | M | D | M | |
| Juli | D | F | S | S | M | D | M | D | F | S | S | M | D | M | D | F | S | S | M | D | M | D | F | S | S | M | D | M | D | F | S |
| August | S | M | D | M | D | F | S | S | M | D | M | D | F | S | S | M | D | M | D | F | S | S | M | D | M | D | F | S | S | M | D |
| September | M | D | F | S | S | M | D | M | D | F | S | S | M | D | M | D | F | S | S | M | D | M | D | F | S | S | M | D | M | D | |
| Oktober | F | S | S | M | D | M | D | F | S | S | M | D | M | D | F | S | S | M | D | M | D | F | S | S | M | D | M | D | F | S | S |
| November | M | D | M | D | F | S | S | M | D | M | D | F | S | S | M | D | M | D | F | S | S | M | D | M | D | F | S | S | M | D | |
| Dezember | M | D | F | S | S | M | D | M | D | F | S | S | M | D | M | D | F | S | S | M | D | M | D | F | S | S | M | D | M | D | F |
| 2028 | 1 | 2 | 3 | 4 | 5 | 6 | 7 | 8 | 9 | 10 | 11 | 12 | 13 | 14 | 15 | 16 | 17 | 18 | 19 | 20 | 21 | 22 | 23 | 24 | 25 | 26 | 27 | 28 | 29 | 30 | 31 |
| Januar | S | S | M | D | |||||||||||||||||||||||||||
FAQ
Wie hoch sind die Nebenkosten?
Die Kosten für Strom, Wasser, (bei einigen Häusern Gas) werden nach tagesaktuellen Preisen abgerechnet und hängen von vielen verschiedenen Faktoren ab, wie zum Beispiel Anzahl Personen, Größe des Hauses oder Ausstattung. In der Regel lässt sich sagen, dass ein Standardhaus ohne Pool, Whirlpool und Sauna im Sommer ca. 5 kWh pro Person pro Tag verbraucht. Im Winter gerne bei 10 kWh und darüber. Bei Poolhäusern mit Whirlpool und Sauna liegt der Wert im Sommer bei ca. 20 kWh und im Winter ca. bei 40 kWh. Auch hier variieren die Preise stark von Größe des Pools, Ausstattung, Größe des Hauses, Modell des Whirlpools und individuellem Verbrauch im Haus. Der Wasserverbrauch variiert ebenfalls stark und kann bei ca. 0,1-0,2 m³ pro Person pro Tag in einem Standardhaus liegen und bei Poolhäusern bei ca. 0,4-0,5 m³. Wenn eine Kaution bei der Buchung angegeben ist, ist diese angepasst an den ungefähren Durchschnittsverbrauch an Nebenkosten im Haus.
Alle Angaben ohne Gewähr und dienen lediglich als Richtwert und nicht als tatsächliche Prognose.
Kann ich das Haus reservieren?
Reservierungen sind in der Regel nicht möglich. In einigen Fällen ist es uns jedoch möglich, Reservierungen zu erstellen. Fragen Sie gerne direkt bei uns an, ob für dieses Haus eine Reservierung möglich ist.
Wie bekomme ich den Schlüssel für das Ferienhaus?
Mittlerweile sind bei fast allen Feriepartner Ferienhäusern Schlüsselboxen an den Häusern angebracht. Über den “Mein Feriepartner”- Link in der Buchungsbestätigung erhalten Sie Zugang zu Ihrer Buchung und können im Fenster der Schlüsselübergabe 48 Stunden vor Anreise einen Zugangscode einsehen, über welchen Sie den Schlüssel am Haus erhalten.
Ab wann ist das Haus bezugsbereit?
Die Ferienhäuser werden zwischen 10 Uhr und 16 Uhr gereinigt und sind spätestens ab 16 Uhr bezugsbereit. Wann Ihr Ferienhaus am Anreisetag gereinigt wird, entscheidet das Büro vor Ort kurz vorher, in Absprache mit dem Servicepersonal und der effektivsten Route für die Servicekräfte. Sobald Ihr Ferienhaus bezugsbereit ist, erhalten Sie, sofern Ihre Mobilnummer korrekt angegeben ist, eine SMS von Feriepartner mit dem Bescheid und allen wichtigen Informationen zum Beziehen Ihres Ferienhauses.
Wie läuft die Bezahlung ab?
Nach Aufgabe der Buchung und Bestätigung seitens Feriepartner wird die erste Rate in Höhe von 25 % des Mietpreises auf Ihrem Mietvertrag sofort fällig. Sie können die Raten und Beträge im Mietvertrag oder über “Mein Feriepartner” einsehen. Bis 70 Tage vor Anreise ist die Frist für den noch offenen Restbetrag Ihrer Buchung. Sind weniger als 70 Tage bis zur Anreise, wird der gesamte Betrag in einer Rate fällig.
Wie sind die Umbuchungs- / Stornierungsbedingungen?
Bei Feriepartner ist eine Reiserücktrittsversicherung immer im Mietpreis inklusive enthalten. Sie erhalten Informationen zu den Bedingungen nach Abschluss der Buchung oder bei der Versicherungsgesellschaft Tryg A/S. Bei Stornierungen ohne den Gebrauch der Reiserücktrittsversicherung werden bis 70 Tage vor Anreise 25 % des Mietpreises fällig. Dies entspricht der ersten Rate. Ab 70 Tagen vor Anreise bis zum Anreisetag werden 80 % fällig, ab dem Anreisetag 100 %. Umbuchungen können bei Feriepartner gegen eine Gebühr von 70 € bis 70 Tage vor Anreise vorgenommen werden, allerdings nur im gleichen Kalenderjahr.
Wann erhalte ich meine Nebenkostenabrechnung?
Die Abrechnung geschieht, sofern Feriepartner alle Informationen korrekt vorliegen, innerhalb von 14 Tagen nach Abreise. Denken Sie daran Ihre IBAN und BIC bei Feriepartner zu hinterlegen, sofern Sie per Banküberweisung gezahlt haben, damit Feriepartner einen eventuellen Restbetrag auf Ihr Konto zurück überweisen kann.
Jugendgruppen unter 25 Jahren?
Bei Feriepartner gilt eine Jugendgruppe ab 3 Personen und bis 25 Jahre der einzelnen Mitreisenden. Zwei Personen unter 25 Jahre gelten i. d. R. nicht als Jugendgruppe. In speziellen Fällen können wir individuell für Sie anfragen.