Ferienhaus 82106 in Råbjergvej 98, Kongsmark
Das große, reetgedeckte Ferienhaus im Råbjergvej 98 auf Rømø ist ein wahrer Traum für alle, die einen erholsamen Urlaub in idyllischer und naturreicher Umgebung suchen.
Sonnige Urlaubsgefühle und Badespaß im Poolhaus
Das rustikale Reetdachhaus wurde im Jahr 1991 erbaut und bietet mit seinen 217 m2 ausreichend Platz für bis zu 10 Personen. Ein besonderes Highlight des Hauses ist der Pool, der für die kleinen Mitreisenden für eine Menge Spaß und bei allen anderen für entspannte Stunden sorgt. Einen Whirlpool gibt es ebenfalls, in dem ihr die Seele baumeln lassen könnt.
Wohlfühlatmosphäre, Fernweh, Nordsee
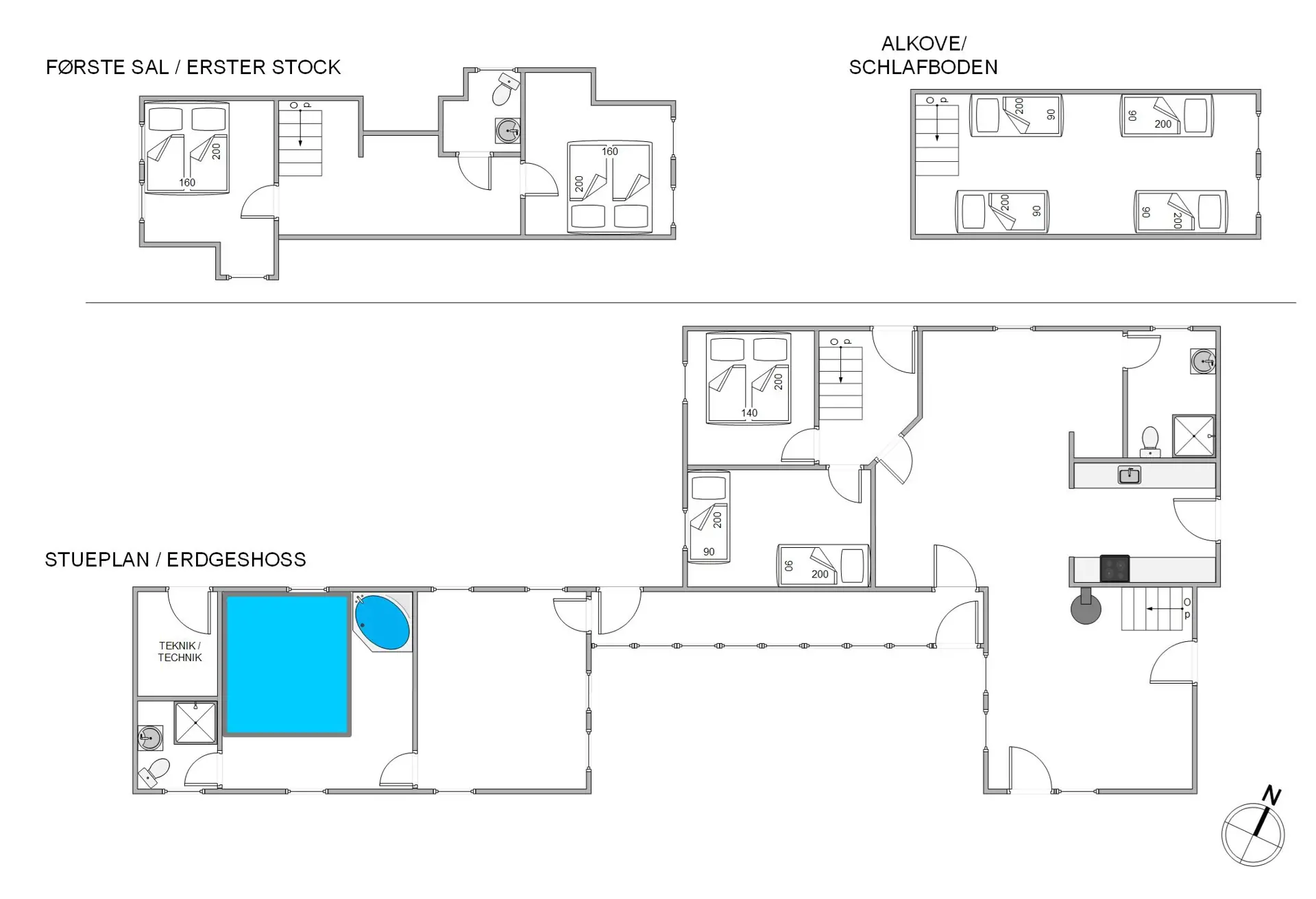
Das Haus verfügt über insgesamt vier Schlafzimmer im Wohnhaus und das fünfte befindet sich im Gästehaus. Alle Zimmer sind mit gemütlichen Betten ausgestattet. Hier finden sowohl Familien als auch Freunde ausreichend Platz, um sich zurückzuziehen und erholsame Nächte zu verbringen. In jedem der fünf Schlafzimmer erwartet euch ein warmer Holzboden.
Beim Betreten des Wohnzimmers, fällt sofort der wärmende Kaminofen ins Auge, der an kälteren Tagen für eine wohltuende Atmosphäre sorgt. Eine energiesparende Wärmepumpe gibt es ebenfalls, falls es schneller gehen soll. Die bequeme Sofagarnitur lädt zum Entspannen und Verweilen ein. Der angrenzende Essbereich bietet ausreichend Platz für die ganze Familie, um gemeinsame Mahlzeiten zu genießen und Spieleabende zu planen. Der Fliesenboden verleiht dem Wohnbereich ein modernes und ansprechendes Ambiente.
Die helle und moderne Küche ist mit einem Geschirrspüler, einer Mikrowelle und einem Gefrierfach bestens ausgestattet.
Es gibt zwei Bäder mit angenehmer Fußbodenheizung, die für warme Füße sorgt. Zwei Toiletten und zwei Duschen bieten ausreichend Platz und Komfort für die ganze Familie.
Urlaubszeit, Inselleben und Unternehmungen
Für die kleinen Gäste gibt es einen Aktivitätsraum, der mit Tischkicker und einer Tischtennisplatte ausgestattet ist. Hier können sich die Kinder austoben und spielerisch ihre Energie loswerden. Worüber sie sich garantiert auch freuen werden ist die Schaukel, Rutsche und der Sandkasten im Garten, in dem sie spielen können, während die Erwachsenen die Sonne auf der Terrasse genießen. Draußen angekommen gibt es viele Sitzmöglichkeiten, einen Grill für ausgiebige Grillabende und Sonnenliegen für Sonnenbäder. Die teilweise überdachte Holzterrasse lädt zum Verweilen im Freien ein.
Die Lage des Hauses ist einfach traumhaft. Umgeben von wunderschöner Natur, die sich auch für lange, ausgelassene Spaziergängen und Fahrradtouren anbietet. Auch die vierbeinigen Familienmitglieder sind herzlich willkommen, denn das Haus erlaubt die Mitnahme von zwei Hunden. Der berühmte kilometerweite Sandstrand in Lakolk ist 3,5 km entfernt und Rømøs Sønderstrand für sportliche Aktivitäten wie z.B. Strandsegeln 6 km.
Das Ferienhaus ist der ideale Ort, um gemeinsam mit der Familie oder Freunden einen unvergesslichen Urlaub zu verbringen. Hier könnt ihr die Natur auskosten, euch im Pool erfrischen und einfach die Zeit miteinander genießen.
Hausbilder
Ausstattung
Allgemeines
- Anzahl Haustiere maximal: 2
- Anzahl Personen: 10
- Anzahl Personen: 10
- Baujahr: 1991
- Grundstücksfläche: 2.900 m²
- Haustiere erlaubt
- Inkl. Endreinigung
- Nichtraucher
- Wohnfläche: 217 m²
Entfernungen
- Abstand Einkauf: 500 m
- Abstand Wasser: 500 m Nordsee
Wohnbereich
- Flachbildfernseher
- Kaminofen
Schlafbereich
- Anzahl Doppelbetten: 3
- Anzahl Einzelbetten: 2
- Anzahl Schlafzimmer: 4
Küche
- Geschirrspüler
- Herd mit Backofen
- Kühlschrank mit Gefrierfach
- Mikrowelle
Bad
- Anzahl Badezimmer: 1
- Trockner
- Waschmaschine
Wellness
- Pool
- Poolgröße: 12 m² Anzahl Personen Whirlpool
- Poolgröße: 2 Anzahl Personen Whirlpool
Multimedia
- Deutsches Fernsehen
- Internet
Spieleangebot
- Tischtennis
Aussenbereich
- Gartenmöbel
- Grundstück Naturgrundstück
- Grill
- Liegestuhl
- Schaukel
-
Terrasse: 1 abgeschirmt
offen
Sonstiges
- Fußbodenheizung Bad
- Hauswechseltag Samstag
- Wärmepumpe
Neben- und Verbrauchskosten
Die aktuellen Verbrauchskosten finden Sie im nächsten Schritt im Buchungsformular.
Raumaufteilung
Lageplan
Ferienhaus 82106
Råbjergvej 98
Kongsmark, Rømø
6792 Rømø
Belegungskalender
- Reisedauer auswählen
- Anzahl Reisende auswählen
- Anreisetag im Belegungskalender anklicken
- Sie bekommen Verfügbarkeit und Preis angezeigt
| 2026 | 1 | 2 | 3 | 4 | 5 | 6 | 7 | 8 | 9 | 10 | 11 | 12 | 13 | 14 | 15 | 16 | 17 | 18 | 19 | 20 | 21 | 22 | 23 | 24 | 25 | 26 | 27 | 28 | 29 | 30 | 31 |
| April | M | D | F | S | S | M | D | M | D | F | S | S | M | D | M | D | F | S | S | M | D | M | D | F | S | S | M | D | M | D | |
| Mai | F | S | S | M | D | M | D | F | S | S | M | D | M | D | F | S | S | M | D | M | D | F | S | S | M | D | M | D | F | S | S |
| Juni | M | D | M | D | F | S | S | M | D | M | D | F | S | S | M | D | M | D | F | S | S | M | D | M | D | F | S | S | M | D | |
| Juli | M | D | F | S | S | M | D | M | D | F | S | S | M | D | M | D | F | S | S | M | D | M | D | F | S | S | M | D | M | D | F |
| August | S | S | M | D | M | D | F | S | S | M | D | M | D | F | S | S | M | D | M | D | F | S | S | M | D | M | D | F | S | S | M |
| September | D | M | D | F | S | S | M | D | M | D | F | S | S | M | D | M | D | F | S | S | M | D | M | D | F | S | S | M | D | M | |
| Oktober | D | F | S | S | M | D | M | D | F | S | S | M | D | M | D | F | S | S | M | D | M | D | F | S | S | M | D | M | D | F | S |
| November | S | M | D | M | D | F | S | S | M | D | M | D | F | S | S | M | D | M | D | F | S | S | M | D | M | D | F | S | S | M | |
| Dezember | D | M | D | F | S | S | M | D | M | D | F | S | S | M | D | M | D | F | S | S | M | D | M | D | F | S | S | M | D | M | D |
| 2027 | 1 | 2 | 3 | 4 | 5 | 6 | 7 | 8 | 9 | 10 | 11 | 12 | 13 | 14 | 15 | 16 | 17 | 18 | 19 | 20 | 21 | 22 | 23 | 24 | 25 | 26 | 27 | 28 | 29 | 30 | 31 |
| Januar | F | S | S | M | D | M | D | F | S | S | M | D | M | D | F | S | S | M | D | M | D | F | S | S | M | D | M | D | F | S | S |
| Februar | M | D | M | D | F | S | S | M | D | M | D | F | S | S | M | D | M | D | F | S | S | M | D | M | D | F | S | S | |||
| März | M | D | M | D | F | S | S | M | D | M | D | F | S | S | M | D | M | D | F | S | S | M | D | M | D | F | S | S | M | D | M |
| April | D | F | S | S | M | D | M | D | F | S | S | M | D | M | D | F | S | S | M | D | M | D | F | S | S | M | D | M | D | F | |
| Mai | S | S | M | D | M | D | F | S | S | M | D | M | D | F | S | S | M | D | M | D | F | S | S | M | D | M | D | F | S | S | M |
| Juni | D | M | D | F | S | S | M | D | M | D | F | S | S | M | D | M | D | F | S | S | M | D | M | D | F | S | S | M | D | M | |
| Juli | D | F | S | S | M | D | M | D | F | S | S | M | D | M | D | F | S | S | M | D | M | D | F | S | S | M | D | M | D | F | S |
| August | S | M | D | M | D | F | S | S | M | D | M | D | F | S | S | M | D | M | D | F | S | S | M | D | M | D | F | S | S | M | D |
| September | M | D | F | S | S | M | D | M | D | F | S | S | M | D | M | D | F | S | S | M | D | M | D | F | S | S | M | D | M | D | |
| Oktober | F | S | S | M | D | M | D | F | S | S | M | D | M | D | F | S | S | M | D | M | D | F | S | S | M | D | M | D | F | S | S |
| November | M | D | M | D | F | S | S | M | D | M | D | F | S | S | M | D | M | D | F | S | S | M | D | M | D | F | S | S | M | D | |
| Dezember | M | D | F | S | S | M | D | M | D | F | S | S | M | D | M | D | F | S | S | M | D | M | D | F | S | S | M | D | M | D | F |
| 2028 | 1 | 2 | 3 | 4 | 5 | 6 | 7 | 8 | 9 | 10 | 11 | 12 | 13 | 14 | 15 | 16 | 17 | 18 | 19 | 20 | 21 | 22 | 23 | 24 | 25 | 26 | 27 | 28 | 29 | 30 | 31 |
| Januar | S | S | M | D | M | D | F | S | S | M | D | M | D | F | S | S | M | D | M | D | F | S | S | M | D | M | D | F | S | S | M |
| Februar | D | M | D | F | S | S | M | D | M | D | F | S | S | M | D | M | D | F | S | S | M | D | M | D | F | S | S | M | D | ||
| März | M | D | F | S | S | M | D | M | D | F | S | S | M | D | M | D | F | S | S | M | D | M | D | F | S | S | M | D | M | D | F |
| April | S | S | M | D | M | D | F | S | S | M | D | M | D | F | S | S | M | D | M | D | F | S | S | M | D | M | D | F | S | S | |
| Mai | M | D | M | D | F | S | S | M | D | M | D | F | S | S | M | D | M | D | F | S | S | M | D | M | D | F | S | S | M | D | M |
| Juni | D | F | S | S | M | D | M | D | F | S | S | M | D | M | D | F | S | S | M | D | M | D | F | S | S | M | D | M | D | F | |
| Juli | S | S | M | D | M | D | F | S | S | M | D | M | D | F | S | S | M | D | M | D | F | S | S | M | D | M | D | F | S | S | M |
| August | D | M | D | F | S | S | M | D | M | D | F | S | S | M | D | M | D | F | S | S | M | D | M | D | F | S | S | M | D | M | D |
| September | F | S | S | M | D | M | D | F | S | S | M | D | M | D | F | S | S | M | D | M | D | F | S | S | M | D | M | D | F | S | |
| Oktober | S | M | D | M | D | F | S | S | M | D | M | D | F | S | S | M | D | M | D | F | S | S | M | D | M | D | F | S | S | M | D |
| November | M | D | F | S | S | M | D | M | D | F | S | S | M | D | M | D | F | S | S | M | D | M | D | F | S | S | M | D | M | D | |
| Dezember | F | S | S | M | D | M | D | F | S | S | M | D | M | D | F | S | S | M | D | M | D | F | S | S | M | D | M | D | F | S | S |
| 2029 | 1 | 2 | 3 | 4 | 5 | 6 | 7 | 8 | 9 | 10 | 11 | 12 | 13 | 14 | 15 | 16 | 17 | 18 | 19 | 20 | 21 | 22 | 23 | 24 | 25 | 26 | 27 | 28 | 29 | 30 | 31 |
| Januar | M | D | M | D | F | S | S | M | D | M | D | F | S | S | |||||||||||||||||