
Ferienhaus 0050 in Lakolk 16 D, Lakolk
Du wirst dich schnell wie zu Hause fühlen in diesem modernen Haus mit Whirlpool, das wunderbar gelegen ist, direkt an der Zufahrt zum herrlichen Strand von Lakolk.
Willkommen in deinem Ferienhaus
Tolle Architektur, komfortables Interieur und schönster Lichteinfall spielen zusammen und machen deinen Urlaub hier in diesem Ferienhaus aus dem Jahr 2008 zu einem reinen Vergnügen. Dass es sich hier um ein Qualitätshaus handelt, kannst du in jedem Raum sehen – auch im Badezimmer, das mit Fußbodenheizung und Whirlpool ausgestattet ist. Im Wohnbereich lassen die großen Fensterpartien jede Menge Sonnenlicht herein und die hohen Decken bis unters Dach tragen das ihre zur leichten und luftigen Atmosphäre bei. Hier erwartet dich auch ein modernes Smart-TV. Die stilvolle und gut sortierte Küche, die mit dem Wohnbereich verbunden ist, sorgt dafür, dass die Essenszubereitung schnell zu einem täglichen Gemeinschaftsevent wird. Zusätzlich verfügt die Küche über eine Wärmepumpe mit Kühlfunktion. Und wenn Kinder mit dabei sind, werden sie den Zwischenboden des Wohnbereichs schnell zu ihrem Lieblingsort erklären. Dieser ergänzt zudem die zwei Schlafzimmer des Ferienhauses. Hinzu kommt noch ein Doppelbett im Nebengebäude.
BITTE BEACHTEN! Zwei Haustiere sind herzlich willkommen, sie dürfen sich jedoch nicht in den Möbeln aufhalten.
Genieße das Leben im Freien
Auf beiden Seiten des Ferienhauses sind Terrassen angelegt, von denen die nach Süden gewandte mit Sicherheit dein Lieblingsort werden wird – nicht nur aufgrund ihrer Ausrichtung, sondern weil sie komplett abgeschirmt zwischen Haus, Nebengebäude und den Holzzäunen einen herrlichen Sonnenhof bildet. Hier kannst du deinen Urlaub ganz ungestört genießen, während du grillst oder es dir in den Gartenmöbeln bequem machst.
Entdecke deine Umgebung
Das Ferienhaus hat eine perfekte Lage, wenn du deinen Urlaub in Strandnähe verbringen möchtest. Der schöne Strand von Lakolk ist so nah, dass ein Spaziergang entlang der Küste oder ein Bad in der Nordsee problemlos mehrmals am Tag stattfinden kann. Am breiten Sandstrand kannst du mit dem Auto bis ans Wasser fahren und ab dem 1. Oktober bis 31. März mit deinem Hund unangeleint Gassi gehen. Es gibt die Möglichkeit zum Windsurfen und zum Reiten, bei einem der Reitställe auf Rømø. Ein weiteres nettes Detail der Ferienhausadresse ist die kurze Entfernung zum Lakolk Butikscenter, wo du einkaufen, shoppen und etwas Gutes essen kannst – zum Beispiel eine Eiswaffel vom Café Fru Dax, das 2019 zu Dänemarks bester Eisdiele gewählt wurde. Es besteht auch die Möglichkeit, Elektroautos im Umkreis von 150 Metern aufzuladen.
Hausbilder
Ausstattung
Allgemeines
- Anzahl Haustiere maximal: 2
- Anzahl Personen: 6
- Baujahr: 2008
- Grundstücksfläche: 500 m² Naturgrundstück
- Haustiere: Nur Hunde erlaubt
- Inkl. Endreinigung
- Nichtraucher
- Wohnfläche: 75 m²
Entfernungen
- Abstand Einkauf: 200 m Nur im Sommer geöffnet
- Abstand Golfplatz: 10.000 m
- Abstand Restaurant: 200 m
- Abstand Strand: 150 m Sandstrand
- Abstand Wasser: 3.000 m Wattenmeer
Schlafbereich
-
Anzahl Doppelbetten: 2 140 x 200
160 x 200 -
Anzahl Doppelbetten: 1 140 x 200
160 x 200 - Anzahl Einzelbetten: 2 80 x 200
Küche
- Dunstabzug
- Extra Backofen
- Geschirrspüler
- Kaffeemaschine
- Kochplatten: 1 elektrische
- Kühlschrank l
- Tiefkühler: 65 l
- Wasserkocher
Bad
- Anzahl Duschen: 1
- Anzahl Toiletten: 1
- Trockner
- Waschmaschine
Wellness
- Whirlpool Innenwhirlpool
Multimedia
- CD-Player
- Deutsches Fernsehen ARD,ZDF,3Sat, arte, KIKA, 7, Super RTL,, VOX, RTL2, SAT1, Kabeleins
- Internationales Fernsehen
- Internationales Fernsehen Dänisches Fernsehen
- Internet Kostenloses Wi-Fi - Mehr als 20 Mbit
- Radio
Aussenbereich
- Gartenmöbel
- Grill
- Liegestuhl
- Sonnenschirm
- Terrasse: 1 m²
Sonstiges
- Das Aufladen von Elektroautos ist nicht erlaubt
- Wärmepumpe
- Sonstiges Chromecast, für Musik
- Sonstiges Chromecast
Neben- und Verbrauchskosten
Die aktuellen Verbrauchskosten finden Sie im nächsten Schritt im Buchungsformular.
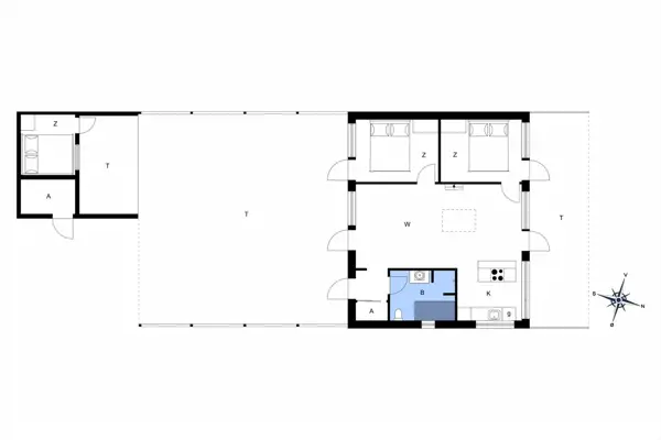
Raumaufteilung


Lageplan
Ferienhaus 0050
Lakolk 16 D
6792 Rømø
Belegungskalender
- Reisedauer auswählen
- Anzahl Reisende auswählen
- Anreisetag im Belegungskalender anklicken
- Sie bekommen Verfügbarkeit und Preis angezeigt
2025 | 1 | 2 | 3 | 4 | 5 | 6 | 7 | 8 | 9 | 10 | 11 | 12 | 13 | 14 | 15 | 16 | 17 | 18 | 19 | 20 | 21 | 22 | 23 | 24 | 25 | 26 | 27 | 28 | 29 | 30 | 31 |
Oktober | M | D | F | S | S | M | D | M | D | F | S | S | M | D | M | D | F | S | S | M | D | M | D | F | S | S | M | D | M | D | F |
November | S | S | M | D | M | D | F | S | S | M | D | M | D | F | S | S | M | D | M | D | F | S | S | M | D | M | D | F | S | S | |
Dezember | M | D | M | D | F | S | S | M | D | M | D | F | S | S | M | D | M | D | F | S | S | M | D | M | D | F | S | S | M | D | M |
2026 | 1 | 2 | 3 | 4 | 5 | 6 | 7 | 8 | 9 | 10 | 11 | 12 | 13 | 14 | 15 | 16 | 17 | 18 | 19 | 20 | 21 | 22 | 23 | 24 | 25 | 26 | 27 | 28 | 29 | 30 | 31 |
Januar | D | F | S | S | M | D | M | D | F | S | S | M | D | M | D | F | S | S | M | D | M | D | F | S | S | M | D | M | D | F | S |
Februar | S | M | D | M | D | F | S | S | M | D | M | D | F | S | S | M | D | M | D | F | S | S | M | D | M | D | F | S | |||
März | S | M | D | M | D | F | S | S | M | D | M | D | F | S | S | M | D | M | D | F | S | S | M | D | M | D | F | S | S | M | D |
April | M | D | F | S | S | M | D | M | D | F | S | S | M | D | M | D | F | S | S | M | D | M | D | F | S | S | M | D | M | D | |
Mai | F | S | S | M | D | M | D | F | S | S | M | D | M | D | F | S | S | M | D | M | D | F | S | S | M | D | M | D | F | S | S |
Juni | M | D | M | D | F | S | S | M | D | M | D | F | S | S | M | D | M | D | F | S | S | M | D | M | D | F | S | S | M | D | |
Juli | M | D | F | S | S | M | D | M | D | F | S | S | M | D | M | D | F | S | S | M | D | M | D | F | S | S | M | D | M | D | F |
August | S | S | M | D | M | D | F | S | S | M | D | M | D | F | S | S | M | D | M | D | F | S | S | M | D | M | D | F | S | S | M |
September | D | M | D | F | S | S | M | D | M | D | F | S | S | M | D | M | D | F | S | S | M | D | M | D | F | S | S | M | D | M | |
Oktober | D | F | S | S | M | D | M | D | F | S | S | M | D | M | D | F | S | S | M | D | M | D | F | S | S | M | D | M | D | F | S |
November | S | M | D | M | D | F | S | S | M | D | M | D | F | S | S | M | D | M | D | F | S | S | M | D | M | D | F | S | S | M | |
Dezember | D | M | D | F | S | S | M | D | M | D | F | S | S | M | D | M | D | F | S | S | M | D | M | D | F | S | S | M | D | M | D |
2027 | 1 | 2 | 3 | 4 | 5 | 6 | 7 | 8 | 9 | 10 | 11 | 12 | 13 | 14 | 15 | 16 | 17 | 18 | 19 | 20 | 21 | 22 | 23 | 24 | 25 | 26 | 27 | 28 | 29 | 30 | 31 |
Januar | F | S | S | M | D | M | D | F | S |
FAQ
Wie hoch sind die Nebenkosten?
Die Kosten für Strom, Wasser, (bei einigen Häusern Gas) werden nach tagesaktuellen Preisen abgerechnet und hängen von vielen verschiedenen Faktoren ab, wie zum Beispiel Anzahl Personen, Größe des Hauses oder Ausstattung. In der Regel lässt sich sagen, dass ein Standardhaus ohne Pool, Whirlpool und Sauna im Sommer ca. 5 kWh pro Person pro Tag verbraucht. Im Winter gerne bei 10 kWh und darüber. Bei Poolhäusern mit Whirlpool und Sauna liegt der Wert im Sommer bei ca. 20 kWh und im Winter ca. bei 40 kWh. Auch hier variieren die Preise stark von Größe des Pools, Ausstattung, Größe des Hauses, Modell des Whirlpools und individuellem Verbrauch im Haus. Der Wasserverbrauch variiert ebenfalls stark und kann bei ca. 0,1-0,2 m³ pro Person pro Tag in einem Standardhaus liegen und bei Poolhäusern bei ca. 0,4-0,5 m³. Wenn eine Kaution bei der Buchung angegeben ist, ist diese angepasst an den ungefähren Durchschnittsverbrauch an Nebenkosten im Haus.
Alle Angaben ohne Gewähr und dienen lediglich als Richtwert und nicht als tatsächliche Prognose.
Kann ich das Haus reservieren?
Reservierungen sind in der Regel nicht möglich. In einigen Fällen ist es uns jedoch möglich, Reservierungen zu erstellen. Fragen Sie gerne direkt bei uns an, ob für dieses Haus eine Reservierung möglich ist.
Wie bekomme ich den Schlüssel für das Ferienhaus?
Mittlerweile sind bei fast allen Feriepartner Ferienhäusern Schlüsselboxen an den Häusern angebracht. Über den “Mein Feriepartner”- Link in der Buchungsbestätigung erhalten Sie Zugang zu Ihrer Buchung und können im Fenster der Schlüsselübergabe 48 Stunden vor Anreise einen Zugangscode einsehen, über welchen Sie den Schlüssel am Haus erhalten.
Ab wann ist das Haus bezugsbereit?
Die Ferienhäuser werden zwischen 10 Uhr und 16 Uhr gereinigt und sind spätestens ab 16 Uhr bezugsbereit. Wann Ihr Ferienhaus am Anreisetag gereinigt wird, entscheidet das Büro vor Ort kurz vorher, in Absprache mit dem Servicepersonal und der effektivsten Route für die Servicekräfte. Sobald Ihr Ferienhaus bezugsbereit ist, erhalten Sie, sofern Ihre Mobilnummer korrekt angegeben ist, eine SMS von Feriepartner mit dem Bescheid und allen wichtigen Informationen zum Beziehen Ihres Ferienhauses.
Wie läuft die Bezahlung ab?
Nach Aufgabe der Buchung und Bestätigung seitens Feriepartner wird die erste Rate in Höhe von 25 % des Mietpreises auf Ihrem Mietvertrag sofort fällig. Sie können die Raten und Beträge im Mietvertrag oder über “Mein Feriepartner” einsehen. Bis 70 Tage vor Anreise ist die Frist für den noch offenen Restbetrag Ihrer Buchung. Sind weniger als 70 Tage bis zur Anreise, wird der gesamte Betrag in einer Rate fällig.
Wie sind die Umbuchungs- / Stornierungsbedingungen?
Bei Feriepartner ist eine Reiserücktrittsversicherung immer im Mietpreis inklusive enthalten. Sie erhalten Informationen zu den Bedingungen nach Abschluss der Buchung oder bei der Versicherungsgesellschaft Tryg A/S. Bei Stornierungen ohne den Gebrauch der Reiserücktrittsversicherung werden bis 70 Tage vor Anreise 25 % des Mietpreises fällig. Dies entspricht der ersten Rate. Ab 70 Tagen vor Anreise bis zum Anreisetag werden 80 % fällig, ab dem Anreisetag 100 %. Umbuchungen können bei Feriepartner gegen eine Gebühr von 70 € bis 70 Tage vor Anreise vorgenommen werden, allerdings nur im gleichen Kalenderjahr.
Wann erhalte ich meine Nebenkostenabrechnung?
Die Abrechnung geschieht, sofern Feriepartner alle Informationen korrekt vorliegen, innerhalb von 14 Tagen nach Abreise. Denken Sie daran Ihre IBAN und BIC bei Feriepartner zu hinterlegen, sofern Sie per Banküberweisung gezahlt haben, damit Feriepartner einen eventuellen Restbetrag auf Ihr Konto zurück überweisen kann.
Jugendgruppen unter 25 Jahren?
Bei Feriepartner gilt eine Jugendgruppe ab 3 Personen und bis 25 Jahre der einzelnen Mitreisenden. Zwei Personen unter 25 Jahre gelten i. d. R. nicht als Jugendgruppe. In speziellen Fällen können wir individuell für Sie anfragen.