Ferienhaus 3046 in Hagevej 89, Fjand
In ruhiger und naturschöner Umgebung, ganz in der Nähe des Nissum Fjords und der Nordsee, steht dieses wunderschöne, neu erbaute Ferienhaus aus dem Jahr 2023.
Das Haus vereint modernen Komfort mit gemütlicher Atmosphäre und ist der perfekte Ort für einen erholsamen Urlaub mit Familie oder Freunden.
Von hier aus führen schöne Wege direkt zur Fjordseite bei Helmklit Havn oder zum Strand von Fjand – ideal für Spaziergänge und Radtouren in der westjütländischen Landschaft.
Hell, geräumig und einladend eingerichtet
Das moderne Ferienhaus besticht durch eine helle, offene Raumaufteilung, in der Küche, Essbereich und Wohnzimmer harmonisch ineinander übergehen.
Im Wohnzimmer sorgen Kaminofen und bequeme Möbel für Gemütlichkeit, während ihr durch die großen Fenster den Blick in die Natur genießen könnt. Von hier gelangt ihr auf die südostseitige Terrasse, auf der ihr die Sonne fast den ganzen Tag über genießen könnt.
Vom Wohn- und Küchenbereich führt eine Leiter auf den gemütlichen Hems – ein wunderbarer Rückzugsort mit schöner Aussicht über die Wiesen und den Nissum Fjord.
Das Haus verfügt über drei gute Schlafzimmer: zwei mit Doppelbetten und eines mit Einzelbetten.
Zudem gibt es zwei Badezimmer, eines davon mit Whirlpool und Sauna – ideal, um nach einem aktiven Tag in der Natur zu entspannen.
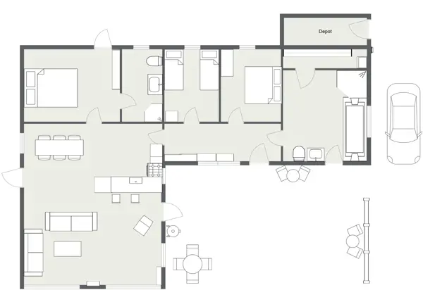
Aufteilung
Eingangsbereich
Großes Wohn- und Esszimmer mit offener Küche
Wohnzimmer mit TV, Kaminofen und Ausgang zur südostseitigen Terrasse
2 Schlafzimmer mit Doppelbett
1 Schlafzimmer mit Einzelbetten
2 Badezimmer, eines davon mit Whirlpool und Sauna
Gemütlicher Hems mit Blick auf die Wiesen und den Fjord
Große Terrasse mit guten Sonnenverhältnissen
Lage
Die Umgebung bietet zahlreiche Wander- und Radwege durch die weiten Landschaften und entlang des Fjords.
Hier erwartet euch eine beeindruckende Natur mit reichem Vogel- und Tierleben – ein idealer Ort für alle, die Ruhe und Nähe zur Natur suchen, ohne auf modernen Komfort zu verzichten.
Kurz gesagt
Ein neues und modernes Ferienhaus mit Whirlpool, Sauna und schöner Aussicht über die Fjordlandschaft.
Hier genießt ihr hohen Komfort, stilvolles Design und eine ruhige Lage nahe Fjord, Strand und der herrlichen Natur bei Fjand – perfekt für einen erholsamen und erlebnisreichen Familienurlaub.
Hausbilder
Ausstattung
Allgemeines
- Anzahl Personen: 6
- Baujahr: 2023
- Grundstücksfläche: 1.032 m²
- Nichtraucher
- Wohnfläche: 117 m²
Entfernungen
- Abstand Einkauf: 3.800 m
- Abstand Küste: 800 Nordsee
- Abstand Fjord: 600 m
Wohnbereich
- Kaminofen
Schlafbereich
- Anzahl Doppelbetten: 2
- Anzahl Einzelbetten: 2
- Anzahl Schlafzimmer: 3
Küche
- Dunstabzug
- Geschirrspüler
- Kühlschrank Kühl-/Gefrierschrank
Bad
- Anzahl Badezimmer: 2
- Anzahl Toiletten: 2
- Trockner
- Waschmaschine
Wellness
- Whirlpool
Multimedia
- Deutsches Fernsehen
- Internet
Aussenbereich
- Grill
- Liegestuhl
- Sonnenschirm
Sonstiges
- Wärmepumpe Luft-Wasser
Neben- und Verbrauchskosten
Die aktuellen Verbrauchskosten finden Sie im nächsten Schritt im Buchungsformular.
Raumaufteilung
Lageplan
Ferienhaus 3046
Hagevej 89
Nr. Fjand
6990 Ulfborg
Belegungskalender
- Reisedauer auswählen
- Anzahl Reisende auswählen
- Anreisetag im Belegungskalender anklicken
- Sie bekommen Verfügbarkeit und Preis angezeigt
| 2026 | 1 | 2 | 3 | 4 | 5 | 6 | 7 | 8 | 9 | 10 | 11 | 12 | 13 | 14 | 15 | 16 | 17 | 18 | 19 | 20 | 21 | 22 | 23 | 24 | 25 | 26 | 27 | 28 | 29 | 30 | 31 |
| Mai | F | S | S | M | D | M | D | F | S | S | M | D | M | D | F | S | S | M | D | M | D | F | S | S | M | D | M | D | F | S | S |
| Juni | M | D | M | D | F | S | S | M | D | M | D | F | S | S | M | D | M | D | F | S | S | M | D | M | D | F | S | S | M | D | |
| Juli | M | D | F | S | S | M | D | M | D | F | S | S | M | D | M | D | F | S | S | M | D | M | D | F | S | S | M | D | M | D | F |
| August | S | S | M | D | M | D | F | S | S | M | D | M | D | F | S | S | M | D | M | D | F | S | S | M | D | M | D | F | S | S | M |
| September | D | M | D | F | S | S | M | D | M | D | F | S | S | M | D | M | D | F | S | S | M | D | M | D | F | S | S | M | D | M | |
| Oktober | D | F | S | S | M | D | M | D | F | S | S | M | D | M | D | F | S | S | M | D | M | D | F | S | S | M | D | M | D | F | S |
| November | S | M | D | M | D | F | S | S | M | D | M | D | F | S | S | M | D | M | D | F | S | S | M | D | M | D | F | S | S | M | |
| Dezember | D | M | D | F | S | S | M | D | M | D | F | S | S | M | D | M | D | F | S | S | M | D | M | D | F | S | S | M | D | M | D |
| 2027 | 1 | 2 | 3 | 4 | 5 | 6 | 7 | 8 | 9 | 10 | 11 | 12 | 13 | 14 | 15 | 16 | 17 | 18 | 19 | 20 | 21 | 22 | 23 | 24 | 25 | 26 | 27 | 28 | 29 | 30 | 31 |
| Januar | F | S | S | M | D | M | D | F | S | S | M | D | M | D | F | S | S | M | D | M | D | F | S | S | M | D | M | D | F | S | S |
| Februar | M | D | M | D | F | S | S | M | D | M | D | F | S | S | M | D | M | D | F | S | S | M | D | M | D | F | S | S | |||
| März | M | D | M | D | F | S | S | M | D | M | D | F | S | S | M | D | M | D | F | S | S | M | D | M | D | F | S | S | M | D | M |
| April | D | F | S | S | M | D | M | D | F | S | S | M | D | M | D | F | S | S | M | D | M | D | F | S | S | M | D | M | D | F | |
| Mai | S | S | M | D | M | D | F | S | S | M | D | M | D | F | S | S | M | D | M | D | F | S | S | M | D | M | D | F | S | S | M |
| Juni | D | M | D | F | S | S | M | D | M | D | F | S | S | M | D | M | D | F | S | S | M | D | M | D | F | S | S | M | D | M | |
| Juli | D | F | S | S | M | D | M | D | F | S | S | M | D | M | D | F | S | S | M | D | M | D | F | S | S | M | D | M | D | F | S |
| August | S | M | D | M | D | F | S | S | M | D | M | D | F | S | S | M | D | M | D | F | S | S | M | D | M | D | F | S | S | M | D |
| September | M | D | F | S | S | M | D | M | D | F | S | S | M | D | M | D | F | S | S | M | D | M | D | F | S | S | M | D | M | D | |
| Oktober | F | S | S | M | D | M | D | F | S | S | M | D | M | D | F | S | S | M | D | M | D | F | S | S | M | D | M | D | F | S | S |
| November | M | D | M | D | F | S | S | M | D | M | D | F | S | S | M | D | M | D | F | S | S | M | D | M | D | F | S | S | M | D | |
| Dezember | M | D | F | S | S | M | D | M | D | F | S | S | M | D | M | D | F | S | S | M | D | M | D | F | S | S | M | D | M | D | F |
| 2028 | 1 | 2 | 3 | 4 | 5 | 6 | 7 | 8 | 9 | 10 | 11 | 12 | 13 | 14 | 15 | 16 | 17 | 18 | 19 | 20 | 21 | 22 | 23 | 24 | 25 | 26 | 27 | 28 | 29 | 30 | 31 |
| Januar | S | S | M | D | M | D | F | S | S | M | D | M | D | F | S | S | M | D | M | D | F | S | S | M | D | M | D | F | S | S | M |
| Februar | D | M | D | F | S | S | M | D | M | D | F | S | S | M | D | M | D | F | S | S | M | D | M | D | F | S | S | M | D | ||
| März | M | D | F | S | S | M | D | M | D | F | S | S | M | D | M | D | F | S | S | M | D | M | D | F | S | S | M | D | M | D | F |
| April | S | S | M | D | M | D | F | S | S | M | D | M | D | F | S | S | M | D | M | D | F | S | S | M | D | M | D | F | S | S | |
| Mai | M | D | M | D | F | S | S | M | D | M | D | F | S | S | M | D | M | D | F | S | S | M | D | M | D | F | S | S | M | D | M |
| Juni | D | F | S | S | M | D | M | D | F | S | S | M | D | M | D | F | S | S | M | D | M | D | F | S | S | M | D | M | D | F | |
| Juli | S | S | M | D | M | D | F | S | S | M | D | M | D | F | S | S | M | D | M | D | F | S | S | M | D | M | D | F | S | S | M |
| August | D | M | D | F | S | S | M | D | M | D | F | S | S | M | D | M | D | F | S | S | M | D | M | D | F | S | S | M | D | M | D |
| September | F | S | S | M | D | M | D | F | S | S | M | D | M | D | F | S | S | M | D | M | D | F | S | S | M | D | M | D | F | S | |
| Oktober | S | M | D | M | D | F | S | S | M | D | M | D | F | S | S | M | D | M | D | F | S | S | M | D | M | D | F | S | S | M | D |
| November | M | D | F | S | S | M | D | M | D | F | S | S | M | D | M | D | F | S | S | M | D | M | D | F | S | S | M | D | M | D | |
| Dezember | F | S | S | M | D | M | D | F | S | S | M | D | M | D | F | S | S | M | D | M | D | F | S | S | M | D | M | D | F | S | S |
| 2029 | 1 | 2 | 3 | 4 | 5 | 6 | 7 | 8 | 9 | 10 | 11 | 12 | 13 | 14 | 15 | 16 | 17 | 18 | 19 | 20 | 21 | 22 | 23 | 24 | 25 | 26 | 27 | 28 | 29 | 30 | 31 |
| Januar | M | D | M | D | F | S | S | M | D | M | D | F | S | S | M | D | M | D | F | S | |||||||||||