Ferienhaus 50809 in Nordvej 11- 9, Vejers Strand
Im Nordvej 11 - 9 liegt diese gemütliche Nichtraucherwohnung als Teil eines aus 22 Wohnungen bestehenden Feriencenters. Sie bietet Platz für bis zu 6 Personen, ist also ideal für schöne Familienferien direkt an der Nordsee. Bis zum herrlichen Nordseestrand sind es nur etwa 100 Meter und auch der lebhafte Ferienort Vejers lässt sich bequem zu Fuss erreichen.
Gemütlichkeit pur und freier Zugang zu den Gemeinschaftsaktivitäten
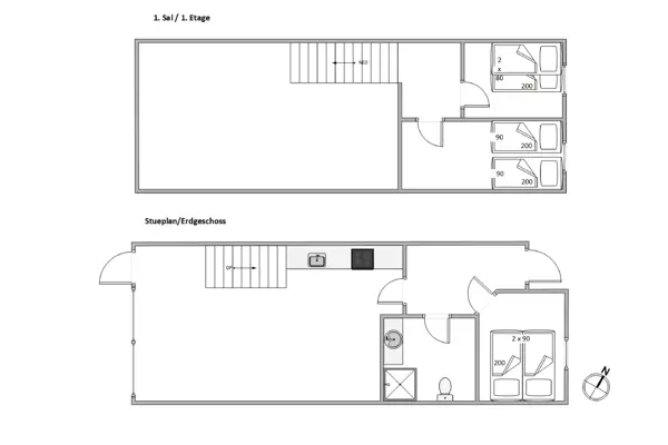
Die Ferienwohnung erstreckt sich über 2 Etagen, die, durch eine im Wohnraum befindliche Treppe miteinander verbunden sind. Die 6 Schlafplätze verteilen sich auf insgesamt 3 Schlafzimmer, von denen sich 2 in der oberen Etage befinden.
Mittelpunkt des Hauses ist der gemütliche freundlich eingerichtete Wohnraum mit der modernen integrierten Küche, die mit allem ausgestattet ist, was Ihr zum Zubereiten leckerer Ferienmahlzeiten benötigt. Vom Wohnraum aus habt Ihr Zugang zur abgeschirmten, mit guten und bequemen Gartenmöbeln ausgestatteten Terrasse. Beim Sonnenbaden könnt Ihr dem Rauschen der Nordsee lauschen und die schneeweissen Möwen am tiefblauen Himmel beobachten. Einen warmen Sommertag könnt Ihr mit einem gemütlichen Grillabend auf der Terrasse ausklingen lassen.
Als Gäste des Feriencenters habt Ihr freien Zugang zu allen Gemeinschaftsaktivitäten wie Pool, Aktivitätsraum und Spielplatz. Also auch in der kühleren Jahreszeit solltet Ihr unbedingt Euer Badezeug einpacken. Bei den Kindern ist besonders der Spielplatz sehr beliebt, da hier schnell und unkompliziert neue Urlaubsbekannschaften geschlossen werden können.
Die Sauna sowie eine Waschmaschine kannst du gegen Zahlung einer Gebühr nutzen. Hier zählt das Prinzip – wer zuerst vor Ort ist.
Strandnahe Lage in Vejers
Nach einem kurzen Spaziergang durch die Dünen erreicht Ihr den herrlichen feinsandigen Nordseestrand. Ungeachtet der Jahreszeit ist ein Spaziergang an der Nordsee ein faszinierendes Erlebnis für Gross und Klein.
Der lebhafte Ferienort Vejers Strand lädt mit den verschiedenen Einkaufsmöglichkeiten, den Restaurants und Gallerien zum Shoppen und Bummeln ein. Auch die Nachbarorte wie Henne Strand und Blåvand sind einen Besuch wert. Dort herrscht fast das ganze Jahr über ein reges Treiben.
Keine Vermietung an Jugendgruppen!
Hausbilder
Ausstattung
Allgemeines
- Anzahl Personen: 6
- Baujahr: 1992
- Grundstücksfläche: 100 m²
- Nichtraucher
- Wohnfläche: 62 m²
Entfernungen
- Abstand Einkauf: 200 m
- Abstand Wasser: 100 m Nordsee
Wohnbereich
- Flachbildfernseher
Schlafbereich
- Anzahl Doppelbetten: 1
- Anzahl Einzelbetten: 2
- Anzahl Etagenbetten : 1
- Anzahl Schlafzimmer: 3
Küche
- Geschirrspüler
- Herd mit Backofen
- Kühlschrank mit Gefrierfach
- Mikrowelle
Bad
- Anzahl Badezimmer: 1
Wellness
- Pool
Multimedia
- Deutsches Fernsehen Dänische und Deutsche
- Internet
Aussenbereich
- Gartenmöbel
- Grill
- Liegestuhl
- Sonnenschirm
- Terrasse: 1 abgeschirmt
Sonstiges
- Fußbodenheizung Bad
- Hauswechseltag Samstag
Neben- und Verbrauchskosten
Die aktuellen Verbrauchskosten finden Sie im nächsten Schritt im Buchungsformular.
Raumaufteilung
Lageplan
Ferienhaus 50809
Nordvej 11- 9
Vejers
6853 Vejers Strand
Belegungskalender
- Reisedauer auswählen
- Anzahl Reisende auswählen
- Anreisetag im Belegungskalender anklicken
- Sie bekommen Verfügbarkeit und Preis angezeigt
| 2026 | 1 | 2 | 3 | 4 | 5 | 6 | 7 | 8 | 9 | 10 | 11 | 12 | 13 | 14 | 15 | 16 | 17 | 18 | 19 | 20 | 21 | 22 | 23 | 24 | 25 | 26 | 27 | 28 | 29 | 30 | 31 |
| Mai | F | S | S | M | D | M | D | F | S | S | M | D | M | D | F | S | S | M | D | M | D | F | S | S | M | D | M | D | F | S | S |
| Juni | M | D | M | D | F | S | S | M | D | M | D | F | S | S | M | D | M | D | F | S | S | M | D | M | D | F | S | S | M | D | |
| Juli | M | D | F | S | S | M | D | M | D | F | S | S | M | D | M | D | F | S | S | M | D | M | D | F | S | S | M | D | M | D | F |
| August | S | S | M | D | M | D | F | S | S | M | D | M | D | F | S | S | M | D | M | D | F | S | S | M | D | M | D | F | S | S | M |
| September | D | M | D | F | S | S | M | D | M | D | F | S | S | M | D | M | D | F | S | S | M | D | M | D | F | S | S | M | D | M | |
| Oktober | D | F | S | S | M | D | M | D | F | S | S | M | D | M | D | F | S | S | M | D | M | D | F | S | S | M | D | M | D | F | S |
| November | S | M | D | M | D | F | S | S | M | D | M | D | F | S | S | M | D | M | D | F | S | S | M | D | M | D | F | S | S | M | |
| Dezember | D | M | D | F | S | S | M | D | M | D | F | S | S | M | D | M | D | F | S | S | M | D | M | D | F | S | S | M | D | M | D |
| 2027 | 1 | 2 | 3 | 4 | 5 | 6 | 7 | 8 | 9 | 10 | 11 | 12 | 13 | 14 | 15 | 16 | 17 | 18 | 19 | 20 | 21 | 22 | 23 | 24 | 25 | 26 | 27 | 28 | 29 | 30 | 31 |
| Januar | F | S | S | M | D | M | D | F | S | S | M | D | M | D | F | S | S | M | D | M | D | F | S | S | M | D | M | D | F | S | S |
| Februar | M | D | M | D | F | S | S | M | D | M | D | F | S | S | M | D | M | D | F | S | S | M | D | M | D | F | S | S | |||
| März | M | D | M | D | F | S | S | M | D | M | D | F | S | S | M | D | M | D | F | S | S | M | D | M | D | F | S | S | M | D | M |
| April | D | F | S | S | M | D | M | D | F | S | S | M | D | M | D | F | S | S | M | D | M | D | F | S | S | M | D | M | D | F | |
| Mai | S | S | M | D | M | D | F | S | S | M | D | M | D | F | S | S | M | D | M | D | F | S | S | M | D | M | D | F | S | S | M |
| Juni | D | M | D | F | S | S | M | D | M | D | F | S | S | M | D | M | D | F | S | S | M | D | M | D | F | S | S | M | D | M | |
| Juli | D | F | S | S | M | D | M | D | F | S | S | M | D | M | D | F | S | S | M | D | M | D | F | S | S | M | D | M | D | F | S |
| August | S | M | D | M | D | F | S | S | M | D | M | D | F | S | S | M | D | M | D | F | S | S | M | D | M | D | F | S | S | M | D |
| September | M | D | F | S | S | M | D | M | D | F | S | S | M | D | M | D | F | S | S | M | D | M | D | F | S | S | M | D | M | D | |
| Oktober | F | S | S | M | D | M | D | F | S | S | M | D | M | D | F | S | S | M | D | M | D | F | S | S | M | D | M | D | F | S | S |
| November | M | D | M | D | F | S | S | M | D | M | D | F | S | S | M | D | M | D | F | S | S | M | D | M | D | F | S | S | M | D | |
| Dezember | M | D | F | S | S | M | D | M | D | F | S | S | M | D | M | D | F | S | S | M | D | M | D | F | S | S | M | D | M | D | F |
| 2028 | 1 | 2 | 3 | 4 | 5 | 6 | 7 | 8 | 9 | 10 | 11 | 12 | 13 | 14 | 15 | 16 | 17 | 18 | 19 | 20 | 21 | 22 | 23 | 24 | 25 | 26 | 27 | 28 | 29 | 30 | 31 |
| Januar | S | S | M | D | M | D | F | S | S | M | D | M | D | F | S | S | M | D | M | D | F | S | S | M | D | M | D | F | S | S | M |
| Februar | D | M | D | F | S | S | M | D | M | D | F | S | S | M | D | M | D | F | S | S | M | D | M | D | F | S | S | M | D | ||
| März | M | D | F | S | S | M | D | M | D | F | S | S | M | D | M | D | F | S | S | M | D | M | D | F | S | S | M | D | M | D | F |
| April | S | S | M | D | M | D | F | S | S | M | D | M | D | F | S | S | M | D | M | D | F | S | S | M | D | M | D | F | S | S | |
| Mai | M | D | M | D | F | S | S | M | D | M | D | F | S | S | M | D | M | D | F | S | S | M | D | M | D | F | S | S | M | D | M |
| Juni | D | F | S | S | M | D | M | D | F | S | S | M | D | M | D | F | S | S | M | D | M | D | F | S | S | M | D | M | D | F | |
| Juli | S | S | M | D | M | D | F | S | S | M | D | M | D | F | S | S | M | D | M | D | F | S | S | M | D | M | D | F | S | S | M |
| August | D | M | D | F | S | S | M | D | M | D | F | S | S | M | D | M | D | F | S | S | M | D | M | D | F | S | S | M | D | M | D |
| September | F | S | S | M | D | M | D | F | S | S | M | D | M | D | F | S | S | M | D | M | D | F | S | S | M | D | M | D | F | S | |
| Oktober | S | M | D | M | D | F | S | S | M | D | M | D | F | S | S | M | D | M | D | F | S | S | M | D | M | D | F | S | S | M | D |
| November | M | D | F | S | S | M | D | M | D | F | S | S | M | D | M | D | F | S | S | M | D | M | D | F | S | S | M | D | M | D | |
| Dezember | F | S | S | M | D | M | D | F | S | S | M | D | M | D | F | S | S | M | D | M | D | F | S | S | M | D | M | D | F | S | S |
| 2029 | 1 | 2 | 3 | 4 | 5 | 6 | 7 | 8 | 9 | 10 | 11 | 12 | 13 | 14 | 15 | 16 | 17 | 18 | 19 | 20 | 21 | 22 | 23 | 24 | 25 | 26 | 27 | 28 | 29 | 30 | 31 |
| Januar | M | D | M | D | F | S | S | M | D | M | D | F | S | S | M | D | M | D | F | S | |||||||||||