Ferienhaus 50810 in Nordvej 11- 10, Vejers Strand
Nur einen Katzensprung von der brausenden Nordsee und dem lebhaften Ferienort Vejers entfernt, liegt diese gemütliche Ferienwohnung. Alle Bewohner, dieses 22 Wohnungen umfassenden Feriencenters haben freien Zugang zum Gemeinschaftspool. Also denkt auch in der kühleren Jahreszeit daran Eure Badesachen einzupacken.
Gemütliche Ferienwohnung mit freiem Zugang zu Gemeinschaftsaktivitäten
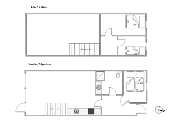
Die helle und gemütliche Ferienwohnung erstreckt sich über 2 Etagen, die durch eine im Wohnraum befindliche Treppe miteinander verbunden sind. Oben befinden sich 2 Schlafräume, das dritte Schlafzimmer ist unten, wo sich auch das Badezimmer und der Wohnraum befinden. Der gemütliche Wohnraum mit der integrierten Küchenzeile ist der Mittelpunkt der Ferienwohnung und lädt zu vielen schönen gemeinsamen Stunden ein. Die kleine Küchenzeile ist mit allem ausgestattet was Ihr zum Zubereiten leckerer Ferienmahlzeiten benötigt.
Vom Wohnraum aus habt Ihr Zugang zur schönen Sonnenterrasse die mit guten und bequemen Gartenmöbeln ausgestattet ist. Beim Sonnenbaden könnt Ihr die nahegelegene Nordsee rauschen hören und die schneeweissen Möwen am tiefblauen Himmel beobachten. Warme Sommertage könnt Ihr hier mit einem gemütlichen Grillabend ausklingen lassen.
Als Gäste des Feriencenters habt Ihr freien Zugang zu allen Gemeinschaftsaktivitäten wie Pool, Aktivitätsraum und Spielplatz. Also auch in der kühleren Jahreszeit solltet Ihr unbedingt Euer Badezeug einpacken. Bei den Kindern ist besonders der Spielplatz sehr beliebt, da hier schnell und unkompliziert neue Urlaubsbekannschaften geschlossen werden können.
Die Sauna sowie eine Waschmaschine kannst du gegen Zahlung einer Gebühr nutzen. Hier zählt das Prinzip – wer zuerst vor Ort ist.
Schöne strandnahe Lage in Vejers
Nach einem kurzen Spaziergang durch die Dünen erreicht Ihr den herrlichen weitläufigen Sandstrand. Ein Strandspaziergang ist zu jeder Jahreszeit und ungeachtet des Wetters ein faszinierendes Naturerlebnis für Gross und Klein. Im Sommer könnt Ihr baden, im Herbst weht der rauhe Westwind die Gischt bis hoch auf den Strand.
Nach einem schönen Strandspaziergang könnt Ihr im lebhaften Ferienort Vejers ein leckeres Softeis essen gehen. Die Geschäfte, die Restaurants und Gallerien laden zum Shoppen und Bummeln ein.
Keine Vermietung an Jugendgruppen!
Hausbilder
Ausstattung
Allgemeines
- Anzahl Haustiere maximal: 1
- Anzahl Personen: 5
- Baujahr: 1992
- Grundstücksfläche: 100 m²
- Haustiere erlaubt
- Nichtraucher
- Wohnfläche: 62 m²
Entfernungen
- Abstand Einkauf: 200 m
- Abstand Wasser: 100 m Nordsee
Wohnbereich
- Flachbildfernseher
Schlafbereich
- Anzahl Doppelbetten: 2
- Anzahl Einzelbetten: 1
- Anzahl Schlafzimmer: 3
Küche
- Geschirrspüler
- Herd mit Backofen
- Kühlschrank mit Gefrierfach
- Mikrowelle
Bad
- Anzahl Badezimmer: 1
Wellness
- Pool
Multimedia
- CD-Player
- Deutsches Fernsehen Dänische und Deutsche
- DVD-Player
- Internet
- Radio
Aussenbereich
- Gartenmöbel
- Grill
- Liegestuhl
- Sonnenschirm
- Terrasse: 1 abgeschirmt
Sonstiges
- Fußbodenheizung Bad
- Hauswechseltag Samstag
- Wärmepumpe
Neben- und Verbrauchskosten
Die aktuellen Verbrauchskosten finden Sie im nächsten Schritt im Buchungsformular.
Raumaufteilung
Lageplan
Ferienhaus 50810
Nordvej 11- 10
Vejers
6853 Vejers Strand
Belegungskalender
- Reisedauer auswählen
- Anzahl Reisende auswählen
- Anreisetag im Belegungskalender anklicken
- Sie bekommen Verfügbarkeit und Preis angezeigt
| 2026 | 1 | 2 | 3 | 4 | 5 | 6 | 7 | 8 | 9 | 10 | 11 | 12 | 13 | 14 | 15 | 16 | 17 | 18 | 19 | 20 | 21 | 22 | 23 | 24 | 25 | 26 | 27 | 28 | 29 | 30 | 31 |
| Mai | F | S | S | M | D | M | D | F | S | S | M | D | M | D | F | S | S | M | D | M | D | F | S | S | M | D | M | D | F | S | S |
| Juni | M | D | M | D | F | S | S | M | D | M | D | F | S | S | M | D | M | D | F | S | S | M | D | M | D | F | S | S | M | D | |
| Juli | M | D | F | S | S | M | D | M | D | F | S | S | M | D | M | D | F | S | S | M | D | M | D | F | S | S | M | D | M | D | F |
| August | S | S | M | D | M | D | F | S | S | M | D | M | D | F | S | S | M | D | M | D | F | S | S | M | D | M | D | F | S | S | M |
| September | D | M | D | F | S | S | M | D | M | D | F | S | S | M | D | M | D | F | S | S | M | D | M | D | F | S | S | M | D | M | |
| Oktober | D | F | S | S | M | D | M | D | F | S | S | M | D | M | D | F | S | S | M | D | M | D | F | S | S | M | D | M | D | F | S |
| November | S | M | D | M | D | F | S | S | M | D | M | D | F | S | S | M | D | M | D | F | S | S | M | D | M | D | F | S | S | M | |
| Dezember | D | M | D | F | S | S | M | D | M | D | F | S | S | M | D | M | D | F | S | S | M | D | M | D | F | S | S | M | D | M | D |
| 2027 | 1 | 2 | 3 | 4 | 5 | 6 | 7 | 8 | 9 | 10 | 11 | 12 | 13 | 14 | 15 | 16 | 17 | 18 | 19 | 20 | 21 | 22 | 23 | 24 | 25 | 26 | 27 | 28 | 29 | 30 | 31 |
| Januar | F | S | S | M | D | M | D | F | S | S | M | D | M | D | F | S | S | M | D | M | D | F | S | S | M | D | M | D | F | S | S |
| Februar | M | D | M | D | F | S | S | M | D | M | D | F | S | S | M | D | M | D | F | S | S | M | D | M | D | F | S | S | |||
| März | M | D | M | D | F | S | S | M | D | M | D | F | S | S | M | D | M | D | F | S | S | M | D | M | D | F | S | S | M | D | M |
| April | D | F | S | S | M | D | M | D | F | S | S | M | D | M | D | F | S | S | M | D | M | D | F | S | S | M | D | M | D | F | |
| Mai | S | S | M | D | M | D | F | S | S | M | D | M | D | F | S | S | M | D | M | D | F | S | S | M | D | M | D | F | S | S | M |
| Juni | D | M | D | F | S | S | M | D | M | D | F | S | S | M | D | M | D | F | S | S | M | D | M | D | F | S | S | M | D | M | |
| Juli | D | F | S | S | M | D | M | D | F | S | S | M | D | M | D | F | S | S | M | D | M | D | F | S | S | M | D | M | D | F | S |
| August | S | M | D | M | D | F | S | S | M | D | M | D | F | S | S | M | D | M | D | F | S | S | M | D | M | D | F | S | S | M | D |
| September | M | D | F | S | S | M | D | M | D | F | S | S | M | D | M | D | F | S | S | M | D | M | D | F | S | S | M | D | M | D | |
| Oktober | F | S | S | M | D | M | D | F | S | S | M | D | M | D | F | S | S | M | D | M | D | F | S | S | M | D | M | D | F | S | S |
| November | M | D | M | D | F | S | S | M | D | M | D | F | S | S | M | D | M | D | F | S | S | M | D | M | D | F | S | S | M | D | |
| Dezember | M | D | F | S | S | M | D | M | D | F | S | S | M | D | M | D | F | S | S | M | D | M | D | F | S | S | M | D | M | D | F |
| 2028 | 1 | 2 | 3 | 4 | 5 | 6 | 7 | 8 | 9 | 10 | 11 | 12 | 13 | 14 | 15 | 16 | 17 | 18 | 19 | 20 | 21 | 22 | 23 | 24 | 25 | 26 | 27 | 28 | 29 | 30 | 31 |
| Januar | S | S | M | D | M | D | F | S | S | M | D | M | D | F | S | S | M | D | M | D | F | S | S | M | D | M | D | F | S | S | M |
| Februar | D | M | D | F | S | S | M | D | M | D | F | S | S | M | D | M | D | F | S | S | M | D | M | D | F | S | S | M | D | ||
| März | M | D | F | S | S | M | D | M | D | F | S | S | M | D | M | D | F | S | S | M | D | M | D | F | S | S | M | D | M | D | F |
| April | S | S | M | D | M | D | F | S | S | M | D | M | D | F | S | S | M | D | M | D | F | S | S | M | D | M | D | F | S | S | |
| Mai | M | D | M | D | F | S | S | M | D | M | D | F | S | S | M | D | M | D | F | S | S | M | D | M | D | F | S | S | M | D | M |
| Juni | D | F | S | S | M | D | M | D | F | S | S | M | D | M | D | F | S | S | M | D | M | D | F | S | S | M | D | M | D | F | |
| Juli | S | S | M | D | M | D | F | S | S | M | D | M | D | F | S | S | M | D | M | D | F | S | S | M | D | M | D | F | S | S | M |
| August | D | M | D | F | S | S | M | D | M | D | F | S | S | M | D | M | D | F | S | S | M | D | M | D | F | S | S | M | D | M | D |
| September | F | S | S | M | D | M | D | F | S | S | M | D | M | D | F | S | S | M | D | M | D | F | S | S | M | D | M | D | F | S | |
| Oktober | S | M | D | M | D | F | S | S | M | D | M | D | F | S | S | M | D | M | D | F | S | S | M | D | M | D | F | S | S | M | D |
| November | M | D | F | S | S | M | D | M | D | F | S | S | M | D | M | D | F | S | S | M | D | M | D | F | S | S | M | D | M | D | |
| Dezember | F | S | S | M | D | M | D | F | S | S | M | D | M | D | F | S | S | M | D | M | D | F | S | S | M | D | M | D | F | S | S |
| 2029 | 1 | 2 | 3 | 4 | 5 | 6 | 7 | 8 | 9 | 10 | 11 | 12 | 13 | 14 | 15 | 16 | 17 | 18 | 19 | 20 | 21 | 22 | 23 | 24 | 25 | 26 | 27 | 28 | 29 | 30 | 31 |
| Januar | M | D | M | D | F | S | S | M | D | M | D | F | S | S | M | D | M | D | F | S | |||||||||||