Ferienhaus 60494 in Kollemarken 65, Blåvand Strand
Im Kollemarken 65 in Blåvand erwartet euch ein schönes, modernes Reetdach Haus mit Pool, Sauna, Whirlpool – und einer besonders gemütlichen, und modernen Einrichtung, in der man sich einfach nur Wohlfühlen kann. Auf 172 m² haben hier 12 Personen ausreichend Platz, um einen erholsamen Urlaub in Dänemark zu verbringen.
Wellnessprogramm für Regentage
Wenn am Himmel dicke Regenwolken aufziehen, könnt ihr euch im Ferienhaus im Kollemarken 65 auf ein ausgiebiges Wellnessprogramm freuen. Im 15 m² großem Pool können sich die Wasserratten so richtig vergnügen und Spaß haben, während im Whirlpool eher Entspannung angesagt ist. In der Sauna kommt ihr richtig ins Schwitzen, und könnt eurem Körper und euren Muskeln mal was richtig Gutes tun.
Wohnbereich im Hygge Stil
Der lichtdurchflutete Wohnbereich mit den hohen Dachschrägen, sorgt für das typisch, dänische Hygge Feeling. Hier könnt ihr es euch einfach nur gemütlich machen, das Ambiente vor dem Feuer im Kaminofen genießen, oder euch bei einem guten Film auf dem Sofa einkuscheln – ein Ort zum Entspannen.
Vom Wohnbereich geht es dann in die große, moderne Wohnküche. Hier kann ordentlich geschnibbelt, gekocht und gemeinsam gegessen werden. Die Küche hat eine moderne Ausstattung und eine lange Arbeitsfläche, bei der viele Hände bei den Vorbereitungen mithelfen dürfen.
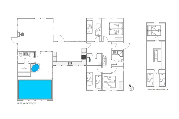
Die 6 Schlafzimmer verteilen sich auf Erdgeschoss und Obergeschoss. Drei Schlafzimmer sind jeweils mit Doppelbetten, und 3 Schlafzimmer mit je 2 Einzelbetten ausgestattet. Auch hier wurde bei der Einrichtung, auf Gemütlichkeit und Wohlfühlfaktor Wert gelegt. Morgens könnt ihr euch ganz entspannt auf die zwei modernisierten Badezimmer aufteilen, die beide eine Fußbodenheizung haben.
Nun noch ein paar praktische Dinge, die in diesem Ferienhaus auch noch erwähnt werden sollten. Neben Waschmaschine, Trockner und einer energiesparenden Wärmepumpe, verfügt das Haus auch über eine Wall Box zum Laden von E-Autos (typ 2 stecker). Außerdem gibt es im oberen Stockwerk eine kleine Spielzeug Ecke für unsere kleinen Gäste.
Außenbereich mit Terrasse, Trampolin und Platz zum Grillen
Wenn die Sonne sich am Himmel über Blåvand zeigt heißt es ab nach draußen. Auf der schönen Terrasse habt ihr ausreichend Platz, um die Sonnenstunden zu genießen. Liegestühle und Gartenmöbel sind ausreichend vorhanden. Die Kids haben neben einem in den Boden eingelassenen Trampolin, noch eine Schaukel, Sandkiste und zwei Fußball Tore zum Spaß haben zur Verfügung. Ein Grill darf natürlich auch nicht fehlen, damit so ein Sommertag mit einem leckeren Steak und einem Glas Wein dazu, genussvoll beendet werden kann.
Zentrale Lage – 500 Meter ins Zentrum
Das lebhafte, idyllische Zentrum von Blåvand ist nur 500 Meter von eurem Ferienhaus entfernt. Ein kleiner Einkaufsbummel, mit einem Softeis oder einem dänischen Hot Dog ist immer lohnenswert. Falls ihr mal keine Lust habt zu kochen, bietet Blåvand eine Auswahl an Restaurants und Cafés in denen ihr euch mal verwöhnen lassen könnt.
Hausbilder
Ausstattung
Allgemeines
- Anzahl Personen: 12
- Anzahl Personen: 12
- Baujahr: 1989
- Grundstücksfläche: 2.488 m²
- Inkl. Endreinigung
- Nichtraucher
- Renovierung: 2017
- Wohnfläche: 172 m²
Entfernungen
- Abstand Einkauf: 500 m
- Abstand Wasser: 800 m Nordsee
Wohnbereich
- Flachbildfernseher
- Kaminofen
Schlafbereich
- Anzahl Doppelbetten: 3
- Anzahl Einzelbetten: 6
- Anzahl Schlafzimmer: 6
Küche
- Geschirrspüler
- Herd Induktion mit Backofen
- Kühlschrank
- Mikrowelle
- Tiefkühler: 90 l
Bad
- Anzahl Badezimmer: 2
- Trockner
- Waschmaschine
Wellness
- Pool
- Poolgröße: 15 m²
- Sauna
Multimedia
- Deutsches Fernsehen Dänische und Deutsche
- Internet
Aussenbereich
- Gartenmöbel
- Grundstück Rasengrundstück
- Grill
- Liegestuhl
- Sandkiste
- Schaukel
- Terrasse: 1 offen
Sonstiges
- Besonderheiten iPod Dock
- Fußbodenheizung Bad
- Hauswechseltag Freitag
- Ladestation für Elektroautos
- Wärmepumpe
Neben- und Verbrauchskosten
Die aktuellen Verbrauchskosten finden Sie im nächsten Schritt im Buchungsformular.
Raumaufteilung
Lageplan
Ferienhaus 60494
Kollemarken 65
Blåvand
6857 Blåvand
Belegungskalender
- Reisedauer auswählen
- Anzahl Reisende auswählen
- Anreisetag im Belegungskalender anklicken
- Sie bekommen Verfügbarkeit und Preis angezeigt
| 2025 | 1 | 2 | 3 | 4 | 5 | 6 | 7 | 8 | 9 | 10 | 11 | 12 | 13 | 14 | 15 | 16 | 17 | 18 | 19 | 20 | 21 | 22 | 23 | 24 | 25 | 26 | 27 | 28 | 29 | 30 | 31 |
| Dezember | M | D | M | D | F | S | S | M | D | M | D | F | S | S | M | D | M | D | F | S | S | M | D | M | D | F | S | S | M | D | M |
| 2026 | 1 | 2 | 3 | 4 | 5 | 6 | 7 | 8 | 9 | 10 | 11 | 12 | 13 | 14 | 15 | 16 | 17 | 18 | 19 | 20 | 21 | 22 | 23 | 24 | 25 | 26 | 27 | 28 | 29 | 30 | 31 |
| Januar | D | F | S | S | M | D | M | D | F | S | S | M | D | M | D | F | S | S | M | D | M | D | F | S | S | M | D | M | D | F | S |
| Februar | S | M | D | M | D | F | S | S | M | D | M | D | F | S | S | M | D | M | D | F | S | S | M | D | M | D | F | S | |||
| März | S | M | D | M | D | F | S | S | M | D | M | D | F | S | S | M | D | M | D | F | S | S | M | D | M | D | F | S | S | M | D |
| April | M | D | F | S | S | M | D | M | D | F | S | S | M | D | M | D | F | S | S | M | D | M | D | F | S | S | M | D | M | D | |
| Mai | F | S | S | M | D | M | D | F | S | S | M | D | M | D | F | S | S | M | D | M | D | F | S | S | M | D | M | D | F | S | S |
| Juni | M | D | M | D | F | S | S | M | D | M | D | F | S | S | M | D | M | D | F | S | S | M | D | M | D | F | S | S | M | D | |
| Juli | M | D | F | S | S | M | D | M | D | F | S | S | M | D | M | D | F | S | S | M | D | M | D | F | S | S | M | D | M | D | F |
| August | S | S | M | D | M | D | F | S | S | M | D | M | D | F | S | S | M | D | M | D | F | S | S | M | D | M | D | F | S | S | M |
| September | D | M | D | F | S | S | M | D | M | D | F | S | S | M | D | M | D | F | S | S | M | D | M | D | F | S | S | M | D | M | |
| Oktober | D | F | S | S | M | D | M | D | F | S | S | M | D | M | D | F | S | S | M | D | M | D | F | S | S | M | D | M | D | F | S |
| November | S | M | D | M | D | F | S | S | M | D | M | D | F | S | S | M | D | M | D | F | S | S | M | D | M | D | F | S | S | M | |
| Dezember | D | M | D | F | S | S | M | D | M | D | F | S | S | M | D | M | D | F | S | S | M | D | M | D | F | S | S | M | D | M | D |
| 2027 | 1 | 2 | 3 | 4 | 5 | 6 | 7 | 8 | 9 | 10 | 11 | 12 | 13 | 14 | 15 | 16 | 17 | 18 | 19 | 20 | 21 | 22 | 23 | 24 | 25 | 26 | 27 | 28 | 29 | 30 | 31 |
| Januar | F | S | S | M | D | M | D | F | S | S | M | D | M | D | F | S | S | M | D | M | D | F | S | S | M | D | M | D | F | S | S |
| Februar | M | D | M | D | F | S | S | M | D | M | D | F | S | S | M | D | M | D | F | S | S | M | D | M | D | F | S | S | |||
| März | M | D | M | D | F | S | S | M | D | M | D | F | S | S | M | D | M | D | F | S | S | M | D | M | D | F | S | S | M | D | M |
| April | D | F | S | S | M | D | M | D | F | S | S | M | D | M | D | F | S | S | M | D | M | D | F | S | S | M | D | M | D | F | |
| Mai | S | S | M | D | M | D | F | S | S | M | D | M | D | F | S | S | M | D | M | D | F | S | S | M | D | M | D | F | S | S | M |
| Juni | D | M | D | F | S | S | M | D | M | D | F | S | S | M | D | M | D | F | S | S | M | D | M | D | F | S | S | M | D | M | |
| Juli | D | F | S | S | M | D | M | D | F | S | S | M | D | M | D | F | S | S | M | D | M | D | F | S | S | M | D | M | D | F | S |
| August | S | M | D | M | D | F | S | S | M | D | M | D | F | S | S | M | D | M | D | F | S | S | M | D | M | D | F | S | S | M | D |
| September | M | D | F | S | S | M | D | M | D | F | S | S | M | D | M | D | F | S | S | M | D | M | D | F | S | S | M | D | M | D | |
| Oktober | F | S | S | M | D | M | D | F | S | S | M | D | M | D | F | S | S | M | D | M | D | F | S | S | M | D | M | D | F | S | S |
| November | M | D | M | D | F | S | S | M | D | M | D | F | S | S | M | D | M | D | F | S | S | M | D | M | D | F | S | S | M | D | |
| Dezember | M | D | F | S | S | M | D | M | D | F | S | S | M | D | M | D | F | S | S | M | D | M | D | F | S | S | M | D | M | D | F |
| 2028 | 1 | 2 | 3 | 4 | 5 | 6 | 7 | 8 | 9 | 10 | 11 | 12 | 13 | 14 | 15 | 16 | 17 | 18 | 19 | 20 | 21 | 22 | 23 | 24 | 25 | 26 | 27 | 28 | 29 | 30 | 31 |
| Januar | S | S | M | D | M | D | F | S | S | M | D | M | D | F | S | S | M | D | M | D | F | S | S | M | D | M | D | F | S | S | M |
| Februar | D | M | D | F | S | S | M | D | M | D | F | S | S | M | D | M | D | F | S | S | M | D | M | D | F | S | S | M | D | ||
| März | M | D | F | S | S | M | D | M | D | F | S | S | M | D | M | D | F | S | S | M | D | M | D | F | S | S | M | D | M | D | F |
| April | S | S | M | D | M | D | F | S | S | M | D | M | D | F | S | S | M | D | M | D | F | S | S | M | D | M | D | F | S | S | |
| Mai | M | D | M | D | F | S | S | M | D | M | D | F | S | S | M | D | M | D | F | S | S | M | D | M | D | F | S | S | M | D | M |
| Juni | D | F | S | S | M | D | M | D | F | S | S | M | D | M | D | F | S | S | M | D | M | D | F | S | S | M | D | M | D | F | |
| Juli | S | S | M | D | M | D | F | S | S | M | D | M | D | F | S | S | M | D | M | D | F | S | S | M | D | M | D | F | S | S | M |
| August | D | M | D | F | S | S | M | D | M | D | F | S | S | M | D | M | D | F | S | S | M | D | M | D | F | S | S | M | D | M | D |
| September | F | S | S | M | D | M | D | F | S | S | M | D | M | D | F | S | S | M | D | M | D | F | S | S | M | D | M | D | F | S | |
| Oktober | S | M | D | M | D | F | S | S | M | D | M | D | F | S | S | M | D | M | D | F | S | S | M | D | M | D | F | S | S | M | D |
| November | M | D | F | S | S | M | D | M | D | F | S | S | M | D | M | D | F | S | S | M | D | M | D | F | S | S | M | D | M | D | |
| Dezember | F | S | S | M | D | M | D | F | S | S | M | D | M | D | F | S | S | M | D | M | D | F | S | S | M | D | M | D | F | S | S |
| 2029 | 1 | 2 | 3 | 4 | 5 | 6 | 7 | 8 | 9 | 10 | 11 | 12 | 13 | 14 | 15 | 16 | 17 | 18 | 19 | 20 | 21 | 22 | 23 | 24 | 25 | 26 | 27 | 28 | 29 | 30 | 31 |
| Januar | M | D | M | D | F | ||||||||||||||||||||||||||