 
                Ferienhaus 4180 in Granlunden 14, Jegum
Geräumiges und sehr gut eingerichtetes Ferienhaus für die große Familie, gelegen auf einem sehr großen Naturgrundstück im Ferienhausgebiet Jegum Ferieland im Granlunden 14 und nur wenige Gehminuten vom Aktivitätszentrum des Gebiets entfernt.
Das Haus ist mit einer sehr geräumigen Wohnküche mit Wärmepumpe mit großem Panoramafenster ausgestattet, das für ein schönes Licht sorgt. Von hier aus gibt es einen direkten Zugang zu mehreren guten und teilweise überdachten Terrassen.
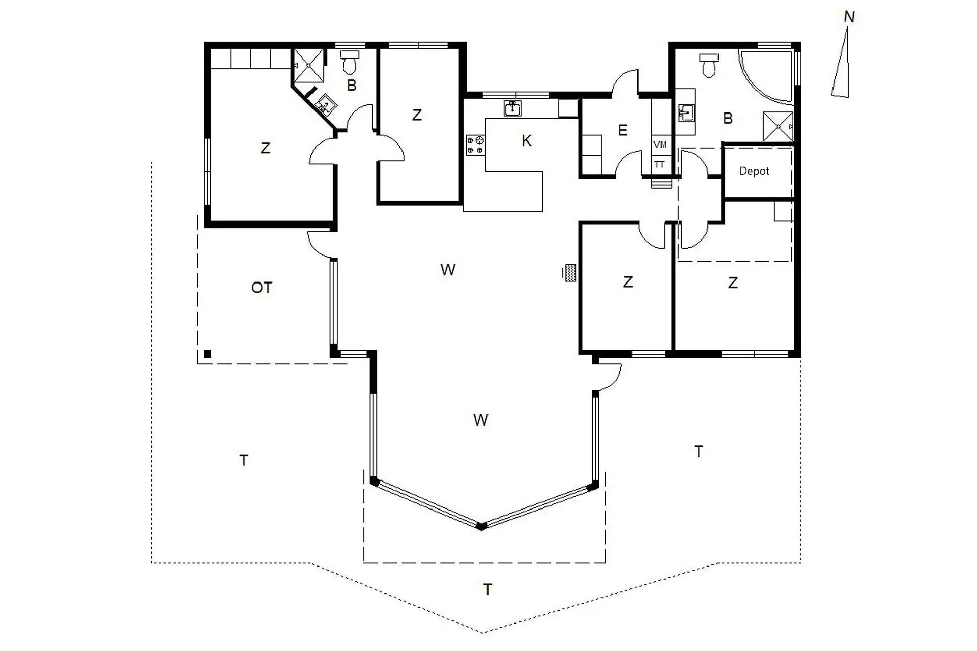
Das Ferienhaus verfügt über nicht weniger als 2 Badezimmer mit Fußbodenheizung, wobei das große Badezimmer über einen Whirlpool verfügt. 4 gute Schlafzimmer mit 2 Doppelbetten (180x200 cm.), Zimmer mit 2 Einzelbetten (90x200 cm.) Und extra Zimmer mit Etagenbett.
Jegum Ferieland ist ein sehr aktives Ferienhausgebiet mit Aktivitätszentrum mit guten Einkaufsmöglichkeiten, großem gemeinsamen und spannenden Spielplatz und gemeinsamen Grillhütten. Es gibt mehrere gute Wander- und Radwege in der Umgebung und denken Sie daran, Ihre Wanderschuhe oder Fahrräder mitzunehmen. Es gibt Radwege bis zu den Wellen von Blåvand ganz im Westen. Machen Sie z.B. einen Ausflug in das aufregende und neue Museum "Flugt", das sich in der Nachbarstadt Oksbøl befindet.
Hausbilder
Ausstattung
Allgemeines
- Anzahl Haustiere maximal: 2
- Anzahl Personen: 8
- Baujahr: 2009
- Grundstücksfläche: 1.647 m²
- Kinderfreundlich
- Nichtraucher
- Wohnfläche: 110 m²
Entfernungen
- Abstand Einkauf: 300 m
- Abstand Wasser: 11.000 m Meer
Wohnbereich
- Kaminofen
- Schlafboden
Schlafbereich
- Anzahl Doppelbetten: 2
- Anzahl Einzelbetten: 2
- Anzahl Etagenbetten : 2
- Anzahl Schlafzimmer: 4
Küche
- Geschirrspüler
- Herd Ceranfeld mit Backofen
- Kühlschrank mit kleinem Gefrierfach
- Mikrowelle
- Tiefkühler: 60 l
Bad
- Anzahl Extraduschen: 1
- Anzahl Extratoiletten: 1
- Duschnische
- Trockner
- Waschmaschine
Wellness
- Sauna
- Whirlpool
Multimedia
- Deutsches Fernsehen
- DVD-Player
- Internationales Fernsehen Dänisches Fernsehen
- Internet WLAN
Aussenbereich
- Gartenmöbel
- Sandkiste
- Schaukel
Sonstiges
- Bei diesem Haus inkl. Schwimmhalle Oksbøl
- Fußbodenheizung Bad
- Kinderbett
- Kinderhochstuhl
- Wärmepumpe
Neben- und Verbrauchskosten
Die aktuellen Verbrauchskosten finden Sie im nächsten Schritt im Buchungsformular.
Raumaufteilung
 
                    Lageplan
Ferienhaus 4180
Granlunden 14
6840 Oksbøl
Belegungskalender
- Reisedauer auswählen
- Anzahl Reisende auswählen
- Anreisetag im Belegungskalender anklicken
- Sie bekommen Verfügbarkeit und Preis angezeigt
| 2025 | 1 | 2 | 3 | 4 | 5 | 6 | 7 | 8 | 9 | 10 | 11 | 12 | 13 | 14 | 15 | 16 | 17 | 18 | 19 | 20 | 21 | 22 | 23 | 24 | 25 | 26 | 27 | 28 | 29 | 30 | 31 | 
| Oktober | M | D | F | S | S | M | D | M | D | F | S | S | M | D | M | D | F | S | S | M | D | M | D | F | S | S | M | D | M | D | F | 
| November | S | S | M | D | M | D | F | S | S | M | D | M | D | F | S | S | M | D | M | D | F | S | S | M | D | M | D | F | S | S | |
| Dezember | M | D | M | D | F | S | S | M | D | M | D | F | S | S | M | D | M | D | F | S | S | M | D | M | D | F | S | S | M | D | M | 
| 2026 | 1 | 2 | 3 | 4 | 5 | 6 | 7 | 8 | 9 | 10 | 11 | 12 | 13 | 14 | 15 | 16 | 17 | 18 | 19 | 20 | 21 | 22 | 23 | 24 | 25 | 26 | 27 | 28 | 29 | 30 | 31 | 
| Januar | D | F | S | S | M | D | M | D | F | S | S | M | D | M | D | F | S | S | M | D | M | D | F | S | S | M | D | M | D | F | S | 
| Februar | S | M | D | M | D | F | S | S | M | D | M | D | F | S | S | M | D | M | D | F | S | S | M | D | M | D | F | S | |||
| März | S | M | D | M | D | F | S | S | M | D | M | D | F | S | S | M | D | M | D | F | S | S | M | D | M | D | F | S | S | M | D | 
| April | M | D | F | S | S | M | D | M | D | F | S | S | M | D | M | D | F | S | S | M | D | M | D | F | S | S | M | D | M | D | |
| Mai | F | S | S | M | D | M | D | F | S | S | M | D | M | D | F | S | S | M | D | M | D | F | S | S | M | D | M | D | F | S | S | 
| Juni | M | D | M | D | F | S | S | M | D | M | D | F | S | S | M | D | M | D | F | S | S | M | D | M | D | F | S | S | M | D | |
| Juli | M | D | F | S | S | M | D | M | D | F | S | S | M | D | M | D | F | S | S | M | D | M | D | F | S | S | M | D | M | D | F | 
| August | S | S | M | D | M | D | F | S | S | M | D | M | D | F | S | S | M | D | M | D | F | S | S | M | D | M | D | F | S | S | M | 
| September | D | M | D | F | S | S | M | D | M | D | F | S | S | M | D | M | D | F | S | S | M | D | M | D | F | S | S | M | D | M | |
| Oktober | D | F | S | S | M | D | M | D | F | S | S | M | D | M | D | F | S | S | M | D | M | D | F | S | S | M | D | M | D | F | S | 
| November | S | M | D | M | D | F | S | S | M | D | M | D | F | S | S | M | D | M | D | F | S | S | M | D | M | D | F | S | S | M | |
| Dezember | D | M | D | F | S | S | M | D | M | D | F | S | S | M | D | M | D | F | S | S | M | D | M | D | F | S | S | M | D | M | D | 
| 2027 | 1 | 2 | 3 | 4 | 5 | 6 | 7 | 8 | 9 | 10 | 11 | 12 | 13 | 14 | 15 | 16 | 17 | 18 | 19 | 20 | 21 | 22 | 23 | 24 | 25 | 26 | 27 | 28 | 29 | 30 | 31 | 
| Januar | F | S | S | M | D | M | D | F | S | S | M | D | M | D | F | S | S | M | D | M | D | F | S | S | M | D | M | D | F | S | S | 
| Februar | M | D | M | D | F | S | S | M | D | M | D | F | S | S | M | D | M | D | F | S | S | M | D | M | D | F | S | S | |||
| März | M | D | M | D | F | S | S | M | D | M | D | F | S | S | M | D | M | D | F | S | S | M | D | M | D | F | S | S | M | D | M | 
| April | D | F | S | S | M | D | M | D | F | S | S | M | D | M | D | F | S | S | M | D | M | D | F | S | S | M | D | M | D | F | |
| Mai | S | S | M | D | M | D | F | S | S | M | D | M | D | F | S | S | M | D | M | D | F | S | S | M | D | M | D | F | S | S | M | 
| Juni | D | M | D | F | S | S | M | D | M | D | F | S | S | M | D | M | D | F | S | S | M | D | M | D | F | S | S | M | D | M | |
| Juli | D | F | S | S | M | D | M | D | F | S | S | M | D | M | D | F | S | S | M | D | M | D | F | S | S | M | D | M | D | F | S | 
| August | S | M | D | M | D | F | S | S | M | D | M | D | F | S | S | M | D | M | D | F | S | S | M | D | M | D | F | S | S | M | D | 
| September | M | D | F | S | S | M | D | M | D | F | S | S | M | D | M | D | F | S | S | M | D | M | D | F | S | S | M | D | M | D | |
| Oktober | F | S | S | M | D | M | D | F | S | S | M | D | M | D | F | S | S | M | D | M | D | F | S | S | M | D | M | D | F | S | S | 
| November | M | D | M | D | F | S | S | M | D | M | D | F | S | S | M | D | M | D | F | S | S | M | D | M | D | F | S | S | M | D | |
| Dezember | M | D | F | S | S | M | D | M | D | F | S | S | M | D | M | D | F | S | S | M | D | M | D | F | S | S | M | D | M | D | F | 
| 2028 | 1 | 2 | 3 | 4 | 5 | 6 | 7 | 8 | 9 | 10 | 11 | 12 | 13 | 14 | 15 | 16 | 17 | 18 | 19 | 20 | 21 | 22 | 23 | 24 | 25 | 26 | 27 | 28 | 29 | 30 | 31 | 
| Januar | S | S | M | D | M | D | F | S | S | M | D | M | D | F | S | S | M | D | M | D | F | S | S | M | D | M | D | F | S | S | M | 
| Februar | D | M | D | F | S | S | M | D | M | D | F | S | S | M | D | M | D | F | S | S | M | D | M | D | F | S | S | M | D | ||
| März | M | D | F | S | S | M | D | M | D | F | S | S | M | D | M | D | F | S | S | M | D | M | D | F | S | S | M | D | M | D | F | 
| April | S | S | M | D | M | D | F | S | S | M | D | M | D | F | S | S | M | D | M | D | F | S | S | M | D | M | D | F | S | S | |
| Mai | M | D | M | D | F | S | S | M | D | M | D | F | S | S | M | D | M | D | F | S | S | M | D | M | D | F | S | S | M | D | M | 
| Juni | D | F | S | S | M | D | M | D | F | S | S | M | D | M | D | F | S | S | M | D | M | D | F | S | S | M | D | M | D | F | |
| Juli | S | S | M | D | M | D | F | S | S | M | D | M | D | F | S | S | M | D | M | D | F | S | S | M | D | M | D | F | S | S | M | 
| August | D | M | D | F | S | S | M | D | M | D | F | S | S | M | D | M | D | F | S | S | M | D | M | D | F | S | S | M | D | M | D | 
| September | F | S | S | M | D | M | D | F | S | S | M | D | M | D | F | S | S | M | D | M | D | F | S | S | M | D | M | D | F | S | |
| Oktober | S | M | D | M | D | F | S | S | M | D | M | D | F | S | S | M | D | M | D | F | S | S | M | D | M | D | F | S | S | M | D | 
FAQ
Wie hoch sind die Nebenkosten?
Die Kosten für Strom, Wasser, (bei einigen Häusern Gas) werden nach tagesaktuellen Preisen abgerechnet und hängen von vielen verschiedenen Faktoren ab, wie zum Beispiel Anzahl Personen, Größe des Hauses oder Ausstattung. In der Regel lässt sich sagen, dass ein Standardhaus ohne Pool, Whirlpool und Sauna im Sommer ca. 5 kWh pro Person pro Tag verbraucht. Im Winter gerne bei 10 kWh und darüber. Bei Poolhäusern mit Whirlpool und Sauna liegt der Wert im Sommer bei ca. 20 kWh und im Winter ca. bei 40 kWh. Auch hier variieren die Preise stark von Größe des Pools, Ausstattung, Größe des Hauses, Modell des Whirlpools und individuellem Verbrauch im Haus. Der Wasserverbrauch variiert ebenfalls stark und kann bei ca. 0,1-0,2 m³ pro Person pro Tag in einem Standardhaus liegen und bei Poolhäusern bei ca. 0,4-0,5 m³. Wenn eine Kaution bei der Buchung angegeben ist, ist diese angepasst an den ungefähren Durchschnittsverbrauch an Nebenkosten im Haus. 
Alle Angaben ohne Gewähr und dienen lediglich als Richtwert und nicht als tatsächliche Prognose.
Kann ich das Ferienhaus unverbindlich reservieren?
Bei Købmand Hansen können keine unverbindlichen Reservierungen vorgenommen werden.
Wie bekomme ich den Schlüssel für das Ferienhaus?
Wenn nicht anders im Mietvertrag angegeben, erfolgt die Schlüsselübergabe im Büro von Købmand Hansen.
Ab wann ist das Haus bezugsbereit?
Das Ferienhaus ist ab spätestens 16 Uhr bezugsbereit.
Wie läuft die Bezahlung ab?
Die Zahlung bei Købmand Hansen erfolgt in zwei Raten. Die erste Rate beträgt 25 % des Mietpreises und wird bis 10 Tage nach der Buchung fällig. Die zweite Rate beträgt 75 % zzgl. eventueller gewählter Zusatzleistungen und wird bis 70 Tage vor Anreise fällig. Bei Buchungen mit weniger als 70 Tagen bis zur Anreise werden 100 % des Mietpreises 5 Tage nach Abschluss fällig. Bei Buchungen ab 14 Tagen bis zur Anreise werden 100 % des Mietpreises sofort fällig.
Wie sind die Umbuchungs- / Stornierungsbedingungen?
Umbuchungen sind bis 70 Tage vor Anreise möglich, gegen eine Gebühr von 70 € und müssen für eine Umbuchung im gleichen Kalenderjahr erfolgen. Bei einer Stornierung werden bis 70 Tage vor Anreise Stornierungsgebühren in Höhe von 25 % erhoben. 69 bis 1 Tag vor Anreise betragen die Stornierungsgebühren 80 % und ab dem Tag der Anreise 100 %.
Wann erhalte ich meine Nebenkostenabrechnung?
Die Nebenkostenabrechnung i. d. R. binnen 14 Tagen nach Abreise an Sie übermittelt.
Jugendgruppen unter 25 Jahren?
Zu Jugendgruppen macht der Anbieter keine genauen Angaben und müssen daher angefragt werden.
 
                             
                             
                             
                             
                             
                             
                             
                             
                             
                             
                             
                             
                             
                             
                             
                             
                             
                             
                             
                             
                             
                             
                             
                             
                             
                             
                             
                             
                             
                             
                             
                             
                             
                             
                             
                             
                             
                             
                             
                             
                             
                             
                             
                             
                             
                                     
                                     
                                     
                                     
                                     
                                     
                                     
                                     
                                     
                                     
                                     
                                     
                                     
                                     
                                     
                                     
                                     
                                     
                                     
                                     
                                     
                                     
                                     
                                     
                                     
                                     
                                     
                                     
                                     
                                     
                                     
                                     
                                     
                                     
                                     
                                     
                                     
                                     
                                     
                                     
                                     
                                     
                                     
                                     
                                     
                                     
                                     
                                 
                                 
                                 
                                 
                                 
                                 
                                 
                                 
                                 
                                 
                                 
                                 
                                 
                                 
                                 
                                 
                                 
                                 
                                 
                                 
                                 
                                 
                                 
                                 
                                 
                                 
                                 
                                 
                                 
                                 
                                 
                                 
                                 
                                 
                                 
                                 
                                 
                                 
                                 
                                 
                                 
                                 
                                 
                                 
                                 
                                