
Ferienhaus 40721 in Hjelmevej 15, 10 st, Henne Strand
Ganz nah am Strand der Nordsee erwartet euch diese schöne Ferienwohnung mit Panoramablick über Henne Strand! Perfekt für einen Urlaub mit bis zu 4 Personen; ein Paar oder für eine Auszeit mit der besten Freundin an der dänischen Westküste. Diese in 2021 charmant renovierte Ferienwohnung auf Hjelmevej 15, 10 st ist die ideale Wahl für diejenigen, die ganz in der Nähe der Nordsee Urlaub machen möchten. Hier habt ihr eine großartige Lage mit nur 300 Metern bis zum herrlichen Sandstrand und nur 200 Metern bis zum gemütlichen Zentrum von Henne Strand.
Gemütliches, helles Appartment mit Panoramablick
Direkt von der Wohnung aus könnt ihr auch einen wirklich schönen Panoramablick auf die Umgebung genießen. Die helle und gemütliche Einrichtung, wo ihr euch sicherlich sofort wohlfühlen werden, wird die Urlaubsstimmung ganz sicher unterstützen. Und während ihr es euch im stilvoll eingerichteten Wohnzimmer gemütlich macht, sorgt der Geschirrspüler für den Abwasch und verschafft euch eine Pause sowie Zeit, um zu entspannen. Eine energieeffiziente Wärmepumpe sorgt für ein gutes Raumklima mit angenehmen Temperaturen.
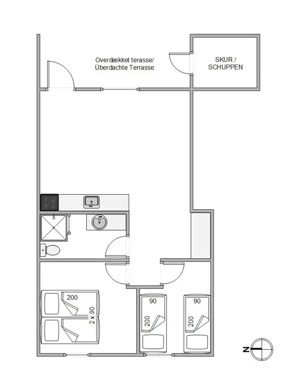
Die 61m² der Ferienwohung sind praktisch eingerichtet worden. Es gibt 2 Schlafzimmer, wobei eines mit einem Doppelbett ausgestattet und das andere mit 2 Einzelbetten versehen ist. Außerdem gibt es 1 Badezimmer, welches über eine Fußbodenheizung verfügt.
Kleine Sonnenterrasse mit tollem Ausblick!
Wenn das Wetter sich von seiner besten Seite zeigt und die Sonne hoch am Himmel steht, könnt Ihr einfach hinaus und die kleine abgeschirmte und teilweise überdachte Terrasse mit tollem Ausblick benutzen. Lehnt euch auf den Liegestühlen zurück und mit dem Rauschen der Brandung im Hintergrund, genießt ihr euren Urlaub in vollen Zügen.
Tolle, zentrale Lage - nur 300 Meter vom Strand entfernt
Weder vom Strand noch vom bunten Treiben im kleinen Badeort seid ihr weit entfernt - alles ist zu Fuß in wenigen Minuten erreicht. Nur 300 Meter sind es bis zur Nordsee und an den schönen, breiten Sandstrand! Unternehmt lange Strandspaziergänge oder nehmt ein erfrischendes Bad im Meer - und genießt die frische Luft und die herrliche Weite sowie die wunderschöne Natur.
Auch das Zentrum von Henne Strand liegt nur wenige Meter von der Urlaubsadresse am Hjelemvej 15 entfernt. Euch erwarten gute Shoppingmöglichkeiten in Form eines Supermarktes, verschiedenste Boutiquen sowie gemütliche Cafés und Restaurants. Abends noch schnell ein leckeres Softeis oder an einem warmen Sommertag gemütlich in einem Café sitzen, dem munteren Treiben zusehen und dabei lecker essen. Henne Strand hat seinen ganz eigenen Charme und auch die umliegende Natur verzaubert. Freut euch auf schöne Tage in diesem gemütlichen Appartment!
*Im Gemeinschaftsraum des Appartmentkomplexes stehen eine Waschmaschine und ein Wäschetrockner zur Verfügung.
Hausbilder
Ausstattung
Allgemeines
- Anzahl Personen: 4
- Anzahl Personen: 4
- Baujahr: 1962
- Nichtraucher
- Renovierung: 2021
- Tolle Aussicht Panoramablick
- Wohnfläche: 61 m²
Entfernungen
- Abstand Einkauf: 200 m
- Abstand Wasser: 300 m Nordsee
Wohnbereich
- Flachbildfernseher
Schlafbereich
- Anzahl Doppelbetten: 1
- Anzahl Einzelbetten: 2
- Anzahl Schlafzimmer: 2
Küche
- Geschirrspüler
- Herd Induktion mit Backofen
- Kühlschrank mit Gefrierfach
Bad
- Anzahl Badezimmer: 1
- Trockner
- Waschmaschine
Multimedia
- Deutsches Fernsehen Dänische und Deutsche
- Internet
- Radio
Aussenbereich
- Gartenmöbel
-
Grundstück Dünengrundstück
Naturgrundstück - Grill
-
Terrasse: 1 abgeschirmt
offen - Terrasse, überdacht
Sonstiges
- Besonderheiten Abstellraum
-
Fußbodenheizung Bad
Schlafzimmer - Hauswechseltag Samstag
- Wärmepumpe
Neben- und Verbrauchskosten
Die aktuellen Verbrauchskosten finden Sie im nächsten Schritt im Buchungsformular.
Raumaufteilung

Lageplan
Ferienhaus 40721
Hjelmevej 15, 10 st
Henne Strand
6854 Henne
Belegungskalender
- Reisedauer auswählen
- Anzahl Reisende auswählen
- Anreisetag im Belegungskalender anklicken
- Sie bekommen Verfügbarkeit und Preis angezeigt
2025 | 1 | 2 | 3 | 4 | 5 | 6 | 7 | 8 | 9 | 10 | 11 | 12 | 13 | 14 | 15 | 16 | 17 | 18 | 19 | 20 | 21 | 22 | 23 | 24 | 25 | 26 | 27 | 28 | 29 | 30 | 31 |
Oktober | M | D | F | S | S | M | D | M | D | F | S | S | M | D | M | D | F | S | S | M | D | M | D | F | S | S | M | D | M | D | F |
November | S | S | M | D | M | D | F | S | S | M | D | M | D | F | S | S | M | D | M | D | F | S | S | M | D | M | D | F | S | S | |
Dezember | M | D | M | D | F | S | S | M | D | M | D | F | S | S | M | D | M | D | F | S | S | M | D | M | D | F | S | S | M | D | M |
2026 | 1 | 2 | 3 | 4 | 5 | 6 | 7 | 8 | 9 | 10 | 11 | 12 | 13 | 14 | 15 | 16 | 17 | 18 | 19 | 20 | 21 | 22 | 23 | 24 | 25 | 26 | 27 | 28 | 29 | 30 | 31 |
Januar | D | F | S | S | M | D | M | D | F | S | S | M | D | M | D | F | S | S | M | D | M | D | F | S | S | M | D | M | D | F | S |
Februar | S | M | D | M | D | F | S | S | M | D | M | D | F | S | S | M | D | M | D | F | S | S | M | D | M | D | F | S | |||
März | S | M | D | M | D | F | S | S | M | D | M | D | F | S | S | M | D | M | D | F | S | S | M | D | M | D | F | S | S | M | D |
April | M | D | F | S | S | M | D | M | D | F | S | S | M | D | M | D | F | S | S | M | D | M | D | F | S | S | M | D | M | D | |
Mai | F | S | S | M | D | M | D | F | S | S | M | D | M | D | F | S | S | M | D | M | D | F | S | S | M | D | M | D | F | S | S |
Juni | M | D | M | D | F | S | S | M | D | M | D | F | S | S | M | D | M | D | F | S | S | M | D | M | D | F | S | S | M | D | |
Juli | M | D | F | S | S | M | D | M | D | F | S | S | M | D | M | D | F | S | S | M | D | M | D | F | S | S | M | D | M | D | F |
August | S | S | M | D | M | D | F | S | S | M | D | M | D | F | S | S | M | D | M | D | F | S | S | M | D | M | D | F | S | S | M |
September | D | M | D | F | S | S | M | D | M | D | F | S | S | M | D | M | D | F | S | S | M | D | M | D | F | S | S | M | D | M | |
Oktober | D | F | S | S | M | D | M | D | F | S | S | M | D | M | D | F | S | S | M | D | M | D | F | S | S | M | D | M | D | F | S |
November | S | M | D | M | D | F | S | S | M | D | M | D | F | S | S | M | D | M | D | F | S | S | M | D | M | D | F | S | S | M | |
Dezember | D | M | D | F | S | S | M | D | M | D | F | S | S | M | D | M | D | F | S | S | M | D | M | D | F | S | S | M | D | M | D |
2027 | 1 | 2 | 3 | 4 | 5 | 6 | 7 | 8 | 9 | 10 | 11 | 12 | 13 | 14 | 15 | 16 | 17 | 18 | 19 | 20 | 21 | 22 | 23 | 24 | 25 | 26 | 27 | 28 | 29 | 30 | 31 |
Januar | F | S | S | M | D | M | D | F | S | S | M | D | M | D | F | S | S | M | D | M | D | F | S | S | M | D | M | D | F | S | S |
Februar | M | D | M | D | F | S | S | M | D | M | D | F | S | S | M | D | M | D | F | S | S | M | D | M | D | F | S | S | |||
März | M | D | M | D | F | S | S | M | D | M | D | F | S | S | M | D | M | D | F | S | S | M | D | M | D | F | S | S | M | D | M |
April | D | F | S | S | M | D | M | D | F | S | S | M | D | M | D | F | S | S | M | D | M | D | F | S | S | M | D | M | D | F | |
Mai | S | S | M | D | M | D | F | S | S | M | D | M | D | F | S | S | M | D | M | D | F | S | S | M | D | M | D | F | S | S | M |
Juni | D | M | D | F | S | S | M | D | M | D | F | S | S | M | D | M | D | F | S | S | M | D | M | D | F | S | S | M | D | M | |
Juli | D | F | S | S | M | D | M | D | F | S | S | M | D | M | D | F | S | S | M | D | M | D | F | S | S | M | D | M | D | F | S |
August | S | M | D | M | D | F | S | S | M | D | M | D | F | S | S | M | D | M | D | F | S | S | M | D | M | D | F | S | S | M | D |
September | M | D | F | S | S | M | D | M | D | F | S | S | M | D | M | D | F | S | S | M | D | M | D | F | S | S | M | D | M | D | |
Oktober | F | S | S | M | D | M | D | F | S | S | M | D | M | D | F | S | S | M | D | M | D | F | S | S | M | D | M | D | F | S | S |
November | M | D | M | D | F | S | S | M | D | M | D | F | S | S | M | D | M | D | F | S | S | M | D | M | D | F | S | S | M | D | |
Dezember | M | D | F | S | S | M | D | M | D | F | S | S | M | D | M | D | F | S | S | M | D | M | D | F | S | S | M | D | M | D | F |
2028 | 1 | 2 | 3 | 4 | 5 | 6 | 7 | 8 | 9 | 10 | 11 | 12 | 13 | 14 | 15 | 16 | 17 | 18 | 19 | 20 | 21 | 22 | 23 | 24 | 25 | 26 | 27 | 28 | 29 | 30 | 31 |
Januar | S | S | M | D | M | D | F | S | S | M | D | M | D | F | S | S | M | D | M | D | F | S | S | M | D | M | D | F | S | S | M |
Februar | D | M | D | F | S | S | M | D | M | D | F | S | S | M | D | M | D | F | S | S | M | D | M | D | F | S | S | M | D | ||
März | M | D | F | S | S | M | D | M | D | F | S | S | M | D | M | D | F | S | S | M | D | M | D | F | S | S | M | D | M | D | F |
April | S | S | M | D | M | D | F | S | S | M | D | M | D | F | S | S | M | D | M | D | F | S | S | M | D | M | D | F | S | S | |
Mai | M | D | M | D | F | S | S | M | D | M | D | F | S | S | M | D | M | D | F | S | S | M | D | M | D | F | S | S | M | D | M |
Juni | D | F | S | S | M | D | M | D | F | S | S | M | D | M | D | F | S | S | M | D | M | D | F | S | S | M | D | M | D | F | |
Juli | S | S | M | D | M | D | F | S | S | M | D | M | D | F | S | S | M | D | M | D | F | S | S | M | D | M | D | F | S | S | M |
August | D | M | D | F | S | S | M | D | M | D | F | S | S | M | D | M | D | F | S | S | M | D | M | D | F | S | S | M | D | M | D |
September | F | S | S | M | D | M | D | F | S | S | M | D | M | D | F | S | S | M | D | M | D | F | S | S | M | D | M | D | F | S | |
Oktober | S | M | D | M | D | F | S | S | M | D | M | D | F | S | S | M | D | M | D |