Ferienhaus 1335 in Brynet 1, Henneby
An einem kleinen Weg mit nur zwei Häusern liegt dieses gepflegte Ferienhaus. Das Haus befindet sich auf einem Naturgrund mit Platz für Ballspiele. Die Einrichtung ist durch den Besitzer geprägt und vom ansprechend möblierten Wohnraum hat man direkten Zugang zur schönen, teilweise überdachten und geschützten Holzterrasse. Neuere Küche
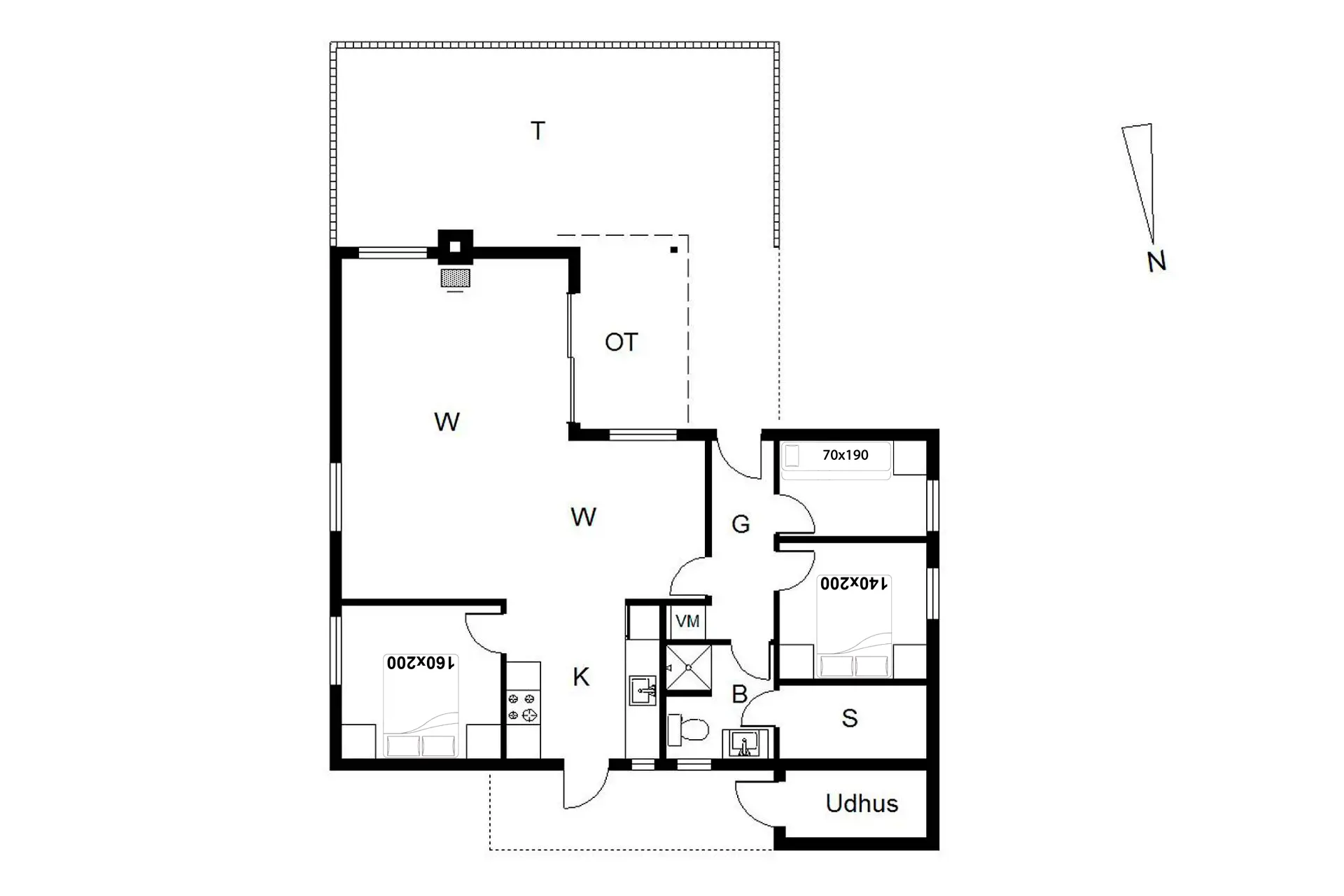
Bettengrösse: 1 Doppelbett 160 x 200 cm + 1 Doppelbett 140 x 200 cm + 1 Etagenbett 70 x 190 cm.
Hausbilder
Ausstattung
Allgemeines
- Anzahl Personen: 6
- Baujahr: 1978
- Grundstücksfläche: 1.200 m²
- Nichtraucher
- Renovierung: 2018
- Wohnfläche: 81 m²
Entfernungen
- Abstand Einkauf: 2.000 m
- Abstand Wasser: 2.500 m Meer
Wohnbereich
- Kaminofen
Schlafbereich
- Anzahl Doppelbetten: 2
- Anzahl Etagenbetten : 2
- Anzahl Schlafzimmer: 3
Küche
- Geschirrspüler
- Herd mit Backofen
- Kühlschrank mit kleinem Gefrierfach
- Mikrowelle
Bad
- Duschnische
- Waschmaschine
Wellness
- Sauna
Multimedia
- CD-Player
- Deutsches Fernsehen
- DVD-Player
- Internationales Fernsehen Dänisches Fernsehen
- Internet WLAN
- Internet WLAN
- Radio
Aussenbereich
- Gartenmöbel
- Sandkiste
- Schaukel
Sonstiges
- Fußbodenheizung Bad
- Kinderhochstuhl
- Wärmepumpe
Neben- und Verbrauchskosten
Die aktuellen Verbrauchskosten finden Sie im nächsten Schritt im Buchungsformular.
Raumaufteilung
Lageplan
Ferienhaus 1335
Brynet 1
6854 Henne Strand
Belegungskalender
- Reisedauer auswählen
- Anzahl Reisende auswählen
- Anreisetag im Belegungskalender anklicken
- Sie bekommen Verfügbarkeit und Preis angezeigt
| 2025 | 1 | 2 | 3 | 4 | 5 | 6 | 7 | 8 | 9 | 10 | 11 | 12 | 13 | 14 | 15 | 16 | 17 | 18 | 19 | 20 | 21 | 22 | 23 | 24 | 25 | 26 | 27 | 28 | 29 | 30 | 31 |
| Oktober | M | D | F | S | S | M | D | M | D | F | S | S | M | D | M | D | F | S | S | M | D | M | D | F | S | S | M | D | M | D | F |
| November | S | S | M | D | M | D | F | S | S | M | D | M | D | F | S | S | M | D | M | D | F | S | S | M | D | M | D | F | S | S | |
| Dezember | M | D | M | D | F | S | S | M | D | M | D | F | S | S | M | D | M | D | F | S | S | M | D | M | D | F | S | S | M | D | M |
| 2026 | 1 | 2 | 3 | 4 | 5 | 6 | 7 | 8 | 9 | 10 | 11 | 12 | 13 | 14 | 15 | 16 | 17 | 18 | 19 | 20 | 21 | 22 | 23 | 24 | 25 | 26 | 27 | 28 | 29 | 30 | 31 |
| Januar | D | F | S | S | M | D | M | D | F | S | S | M | D | M | D | F | S | S | M | D | M | D | F | S | S | M | D | M | D | F | S |
| Februar | S | M | D | M | D | F | S | S | M | D | M | D | F | S | S | M | D | M | D | F | S | S | M | D | M | D | F | S | |||
| März | S | M | D | M | D | F | S | S | M | D | M | D | F | S | S | M | D | M | D | F | S | S | M | D | M | D | F | S | S | M | D |
| April | M | D | F | S | S | M | D | M | D | F | S | S | M | D | M | D | F | S | S | M | D | M | D | F | S | S | M | D | M | D | |
| Mai | F | S | S | M | D | M | D | F | S | S | M | D | M | D | F | S | S | M | D | M | D | F | S | S | M | D | M | D | F | S | S |
| Juni | M | D | M | D | F | S | S | M | D | M | D | F | S | S | M | D | M | D | F | S | S | M | D | M | D | F | S | S | M | D | |
| Juli | M | D | F | S | S | M | D | M | D | F | S | S | M | D | M | D | F | S | S | M | D | M | D | F | S | S | M | D | M | D | F |
| August | S | S | M | D | M | D | F | S | S | M | D | M | D | F | S | S | M | D | M | D | F | S | S | M | D | M | D | F | S | S | M |
| September | D | M | D | F | S | S | M | D | M | D | F | S | S | M | D | M | D | F | S | S | M | D | M | D | F | S | S | M | D | M | |
| Oktober | D | F | S | S | M | D | M | D | F | S | S | M | D | M | D | F | S | S | M | D | M | D | F | S | S | M | D | M | D | F | S |
| November | S | M | D | M | D | F | S | S | M | D | M | D | F | S | S | M | D | M | D | F | S | S | M | D | M | D | F | S | S | M | |
| Dezember | D | M | D | F | S | S | M | D | M | D | F | S | S | M | D | M | D | F | S | S | M | D | M | D | F | S | S | M | D | M | D |
| 2027 | 1 | 2 | 3 | 4 | 5 | 6 | 7 | 8 | 9 | 10 | 11 | 12 | 13 | 14 | 15 | 16 | 17 | 18 | 19 | 20 | 21 | 22 | 23 | 24 | 25 | 26 | 27 | 28 | 29 | 30 | 31 |
| Januar | F | S | S | M | D | M | D | F | S | S | M | D | M | D | F | S | S | M | D | M | D | F | S | S | M | D | M | D | F | S | S |
| Februar | M | D | M | D | F | S | S | M | D | M | D | F | S | S | M | D | M | D | F | S | S | M | D | M | D | F | S | S | |||
| März | M | D | M | D | F | S | S | M | D | M | D | F | S | S | M | D | M | D | F | S | S | M | D | M | D | F | S | S | M | D | M |
| April | D | F | S | S | M | D | M | D | F | S | S | M | D | M | D | F | S | S | M | D | M | D | F | S | S | M | D | M | D | F | |
| Mai | S | S | M | D | M | D | F | S | S | M | D | M | D | F | S | S | M | D | M | D | F | S | S | M | D | M | D | F | S | S | M |
| Juni | D | M | D | F | S | S | M | D | M | D | F | S | S | M | D | M | D | F | S | S | M | D | M | D | F | S | S | M | D | M | |
| Juli | D | F | S | S | M | D | M | D | F | S | S | M | D | M | D | F | S | S | M | D | M | D | F | S | S | M | D | M | D | F | S |
| August | S | M | D | M | D | F | S | S | M | D | M | D | F | S | S | M | D | M | D | F | S | S | M | D | M | D | F | S | S | M | D |
| September | M | D | F | S | S | M | D | M | D | F | S | S | M | D | M | D | F | S | S | M | D | M | D | F | S | S | M | D | M | D | |
| Oktober | F | S | S | M | D | M | D | F | S | S | M | D | M | D | F | S | S | M | D | M | D | F | S | S | M | D | M | D | F | S | S |
| November | M | D | M | D | F | S | S | M | D | M | D | F | S | S | M | D | M | D | F | S | S | M | D | M | D | F | S | S | M | D | |
| Dezember | M | D | F | S | S | M | D | M | D | F | S | S | M | D | M | D | F | S | S | M | D | M | D | F | S | S | M | D | M | D | F |
| 2028 | 1 | 2 | 3 | 4 | 5 | 6 | 7 | 8 | 9 | 10 | 11 | 12 | 13 | 14 | 15 | 16 | 17 | 18 | 19 | 20 | 21 | 22 | 23 | 24 | 25 | 26 | 27 | 28 | 29 | 30 | 31 |
| Januar | S | S | M | D | M | D | F | S | S | M | D | M | D | F | S | S | M | D | M | D | F | S | S | M | D | M | D | F | S | S | M |
| Februar | D | M | D | F | S | S | M | D | M | D | F | S | S | M | D | M | D | F | S | S | M | D | M | D | F | S | S | M | D | ||
| März | M | D | F | S | S | M | D | M | D | F | S | S | M | D | M | D | F | S | S | M | D | M | D | F | S | S | M | D | M | D | F |
| April | S | S | M | D | M | D | F | S | S | M | D | M | D | F | S | S | M | D | M | D | F | S | S | M | D | M | D | F | S | S | |
| Mai | M | D | M | D | F | S | S | M | D | M | D | F | S | S | M | D | M | D | F | S | S | M | D | M | D | F | S | S | M | D | M |
| Juni | D | F | S | S | M | D | M | D | F | S | S | M | D | M | D | F | S | S | M | D | M | D | F | S | S | M | D | M | D | F | |
| Juli | S | S | M | D | M | D | F | S | S | M | D | M | D | F | S | S | M | D | M | D | F | S | S | M | D | M | D | F | S | S | M |
| August | D | M | D | F | S | S | M | D | M | D | F | S | S | M | D | M | D | F | S | S | M | D | M | D | F | S | S | M | D | M | D |
| September | F | S | S | M | D | M | D | F | S | S | M | D | M | D | F | S | S | M | D | M | D | F | S | S | M | D | M | D | F | S | |
| Oktober | S | M | D | M | D | F | S | S | M | D | M | D | F | S | S | M | D | M | D | F | S | S | M | D | M | D | F | S | S | M | D |
| November | M | ||||||||||||||||||||||||||||||
FAQ
Wie hoch sind die Nebenkosten?
Die Kosten für Strom, Wasser, (bei einigen Häusern Gas) werden nach tagesaktuellen Preisen abgerechnet und hängen von vielen verschiedenen Faktoren ab, wie zum Beispiel Anzahl Personen, Größe des Hauses oder Ausstattung. In der Regel lässt sich sagen, dass ein Standardhaus ohne Pool, Whirlpool und Sauna im Sommer ca. 5 kWh pro Person pro Tag verbraucht. Im Winter gerne bei 10 kWh und darüber. Bei Poolhäusern mit Whirlpool und Sauna liegt der Wert im Sommer bei ca. 20 kWh und im Winter ca. bei 40 kWh. Auch hier variieren die Preise stark von Größe des Pools, Ausstattung, Größe des Hauses, Modell des Whirlpools und individuellem Verbrauch im Haus. Der Wasserverbrauch variiert ebenfalls stark und kann bei ca. 0,1-0,2 m³ pro Person pro Tag in einem Standardhaus liegen und bei Poolhäusern bei ca. 0,4-0,5 m³. Wenn eine Kaution bei der Buchung angegeben ist, ist diese angepasst an den ungefähren Durchschnittsverbrauch an Nebenkosten im Haus.
Alle Angaben ohne Gewähr und dienen lediglich als Richtwert und nicht als tatsächliche Prognose.
Kann ich das Ferienhaus unverbindlich reservieren?
Bei Købmand Hansen können keine unverbindlichen Reservierungen vorgenommen werden.
Wie bekomme ich den Schlüssel für das Ferienhaus?
Wenn nicht anders im Mietvertrag angegeben, erfolgt die Schlüsselübergabe im Büro von Købmand Hansen.
Ab wann ist das Haus bezugsbereit?
Das Ferienhaus ist ab spätestens 16 Uhr bezugsbereit.
Wie läuft die Bezahlung ab?
Die Zahlung bei Købmand Hansen erfolgt in zwei Raten. Die erste Rate beträgt 25 % des Mietpreises und wird bis 10 Tage nach der Buchung fällig. Die zweite Rate beträgt 75 % zzgl. eventueller gewählter Zusatzleistungen und wird bis 70 Tage vor Anreise fällig. Bei Buchungen mit weniger als 70 Tagen bis zur Anreise werden 100 % des Mietpreises 5 Tage nach Abschluss fällig. Bei Buchungen ab 14 Tagen bis zur Anreise werden 100 % des Mietpreises sofort fällig.
Wie sind die Umbuchungs- / Stornierungsbedingungen?
Umbuchungen sind bis 70 Tage vor Anreise möglich, gegen eine Gebühr von 70 € und müssen für eine Umbuchung im gleichen Kalenderjahr erfolgen. Bei einer Stornierung werden bis 70 Tage vor Anreise Stornierungsgebühren in Höhe von 25 % erhoben. 69 bis 1 Tag vor Anreise betragen die Stornierungsgebühren 80 % und ab dem Tag der Anreise 100 %.
Wann erhalte ich meine Nebenkostenabrechnung?
Die Nebenkostenabrechnung i. d. R. binnen 14 Tagen nach Abreise an Sie übermittelt.
Jugendgruppen unter 25 Jahren?
Zu Jugendgruppen macht der Anbieter keine genauen Angaben und müssen daher angefragt werden.