Ferienhaus 30066 in Høgevænget 13, Mariendal Strand
Einrichtung
Dieses stimmungsvolle und zugleich funktionelle Ferienhaus lädt zu einem tollen Urlaub ein. Das im Jahr 1945 erbaute Mietobjekt wurde im Jahr 2019 einer Renovierung unterzogen bei der glücklicherweise der historische Charme erhalten wurde. Die Einrichtung ist stilrein, die Wohnatmosphäre hell und einladend. Die gute Möblierung besteht aus modernen und klassischen Elementen und bietet ein Maximum an Funktionalität.
Vom Flur des Hauses betreten Sie das Badezimmer, einen Schlafraum und die über eine paar Stufen erreichbare, höhergelegene Küche. Das Badezimmer verfügt über eine Fußbodenheizung, eine Dusche und eine Waschmaschine und wird durch helle Schränke und große Fliesen geprägt. Das vom Eingangsbereich aus zugängliche Schlafzimmer bietet zwei gute Einzelbetten und ein großes Fenster mit Blick auf den Wintergarten und den grünen Garten.
Die Küche ist offen mit dem Wohnraum verbunden. Sie verfügt über eine Kücheninsel und bietet Platz für angeregte Gespräche und gemütliche Momente. Viel Arbeitsfläche und gute Küchengroßgeräte, wie beispielsweise ein Backofen, ein Kühlschrank mit Gefriermöglichkeit und ein Geschirrspüler, machen die Zubereitung der Mahlzeiten zum Vergnügen. Im angrenzenden Vorbau ist der Esstisch platziert, an dem alle Mitreisenden Platz finden. Beim Essplatz treffen Sie auf große Glaspartien, die einen attraktiven Tageslichteinfall gewähren und einen direkten Zugang zum Garten ermöglichen. Von hier aus gelangen Sie zudem in den stimmungsvollen Wintergarten, der sich sehr schön für kühlere Tage und Abende anbietet. Der Wintergarten empfängt Sie mit komfortablen Möbeln, Grünpflanzen und großen Fenstern. Hier können Sie in aller Ruhe beisammensitzen oder hinaus in den Garten treten.
In Verlängerung der Küche befindet sich der Wohnraum, in dem ein großes Sofa und ein an der Wand hängender Fernseher mit dänischen, nordischen, englischen und deutschen Sendern zu erholsamen Stunden einladen. Der Fernseher ist mit einer Streamingmöglichkeit ausgestattet, die es Ihnen ermöglicht, Ihre privaten Streamingdienste zu nutzen. WiFi ist vorhanden. Der Kaminofen untermalt Ihre gemütlichen Momenten auf dem Sofa mit angenehmer Wärme und echter Ferienhausatmosphäre.
Die beiden anderen Schlafzimmer des Urlaubsdomizils beinhalten jeweils ein Doppelbett, sodass insgesamt sechs Personen im Haus übernachten können. Die Schlafräume sind hell eingerichtet. Einer der Räume verwöhnt mit einem eigenen Zugang zum Garten auf der Ostseite des Hauses. Das Nebengebäude im Garten bietet im Sommer zwei zusätzliche Schlafplätze. Das Nebengebäude ist wie das Haus selber hell und gemütlich eingerichtet.
Außenbereich
Der grüne Garten mit kleinen Wegen, einer Grasfläche und Blumenbeeten ist sehr gepflegt. Er ist von dichten, gut abschirmenden Bäumen und Hecken umgeben und wirkt wie eine private Oase. Sie halten sich im Freien gänzlich ungestört auf. Kinder und Hunde sind hier ebenfalls sehr gut aufgehoben. Mehrere Terrassen und zahlreiche gemütliche Eckchen mit Gartenmöbeln und Liegestühlen stehen für Sie bereit. Vom Wintergarten treten Sie hinaus auf eine schöne Terrasse mit einem Essplatz, von dem Sie über das schön angelegte Grundstück blicken. Vor dem gemütlichen Nebengebäude, das in den Sommermonaten zwei Schlafplätze bietet, erstreckt sich mitten im Garten eine kleine Terrasse mit einem Tisch und Bänken.
Auf dem Grundstück treffen Sie darüber hinaus auf einen Schuppen, der unter anderem einen Wäschetrockner und einen zusätzlichen Tiefkühltruhe beinhaltet.
Lage
Das Ferienhaus befindet sich am Mariendal Strand, in unmittelbarer Verlängerung des Ajstrup Strands und ein kleines Stück südlich der Wälder von Marselisborg. Sie wohnen in einem ruhigen Ferienhausgebiet und erreichen nach 150 Metern den schönen Badestrand. Die nahegelegenen Wälder von Moesgaard laden zu wunderschönen Wanderungen und Fahrradtouren ein. Innerhalb von zehn Minuten erreichen Sie per Pkw die Ortschaften Beder und Malling mit Einkaufsmöglichkeiten. Rund 3,5 Kilometer südlich des Hauses freut sich der idyllische Hafenort Norsminde an der Mündung des hübschen Norsminde Fjords auf Ihren Besuch. In Norsminde können Sie sich unter anderem im renommierten Landgasthof Norsminde Kro kulinarisch verwöhnen lassen.
Lediglich 20 Minuten Fahrzeit trennen Mariendal Strand von Jütlands Hauptstadt Aarhus, die mit vielen Sehenswürdigkeiten, Aktivitätsmöglichkeiten, Restaurants und dergleichen zu begeistern weiß. Besuchen Sie beispielsweise das faszinierende Freilichtmuseum Den Gamle By, den Tivoli Friheden, das Kunstmuseum ARoS und das bekannte Moesgaard Museum. Alternativ können Sie selbstverständlich auch einen ausgedehnten Shoppingbummel unternehmen und sich in einem der gemütlichen Cafés und Restaurants niederlassen.
Hausbilder
Ausstattung
Allgemeines
- Anzahl Haustiere maximal: 2
- Anzahl Personen: 6
- Baujahr: 1945
- Grundstücksfläche: 800 m² Garten
- Haustiere: Nur Hunde erlaubt
- Hundefreundlich
- Inkl. Endreinigung
- Nichtraucher
- Renovierung: 2018
- Wohnfläche: 88 m²
Entfernungen
- Abstand Bus: 500 m
- Abstand Einkauf: 400 m Nur im Sommer geöffnet
- Abstand Flughafen: 90 km
- Abstand Golfplatz: 7.000 m
- Abstand Restaurant: 3.000 m
- Abstand Schwimmhalle: 13.000 m
- Abstand Strand: 150 m Sandstrand
- Abstand Küste: 150 m
- Abstand Wasser: 150 m Meer
Wohnbereich
- Kaminofen
Schlafbereich
-
Anzahl Doppelbetten: 1 160 x 200 cm
180 x 200 -
Anzahl Doppelbetten: 1 160 x 200 cm
180 x 200 -
Anzahl Einzelbetten: 4 80 x 200
90 x 200
Küche
- Dunstabzug
- Extra Backofen
- Geschirrspüler
- Kaffeemaschine
- Kochplatten: 1 elektrische
- Wasserkocher
Bad
- Anzahl Duschen: 1
- Anzahl Toiletten: 1
- Trockner
- Waschmaschine
Multimedia
- Deutsches Fernsehen Min. ZDF, ARD
- Internationales Fernsehen
- Internationales Fernsehen Englisches Fernsehen, Mindestens zwei englische Kanäle
-
Internationales Fernsehen Dänisches Fernsehen, Min. kostenlose DR-Sender, TV2
norwegische Programme, Min. NRK1
Schwedisches Fernsehen, Min. SVT1 - Internet Kostenloses Wi-Fi - Mehr als 100 Mbit
- Radio
Aussenbereich
- Gartenmöbel
- Grundstück m² eingezäunte Fläche
- Grill Gasgrill
- Liegestuhl
- Terrasse: 1 m² Offene Terrasse
Sonstiges
- Besonderheiten Anbau können nur im Sommer verwendet werden
- Bügelbrett
- Bügeleisen
- Kinderbett
- Kinderhochstuhl
- Das Aufladen von Elektroautos ist nicht erlaubt
- Wärmepumpe Mit Kühlfunktion
Neben- und Verbrauchskosten
Die aktuellen Verbrauchskosten finden Sie im nächsten Schritt im Buchungsformular.
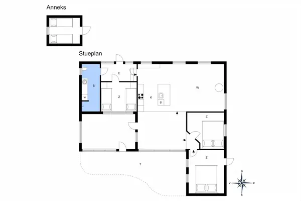
Raumaufteilung
Lageplan
Ferienhaus 30066
Høgevænget 13
Mariendal Strand
8330 Beder
Belegungskalender
- Reisedauer auswählen
- Anzahl Reisende auswählen
- Anreisetag im Belegungskalender anklicken
- Sie bekommen Verfügbarkeit und Preis angezeigt
| 2025 | 1 | 2 | 3 | 4 | 5 | 6 | 7 | 8 | 9 | 10 | 11 | 12 | 13 | 14 | 15 | 16 | 17 | 18 | 19 | 20 | 21 | 22 | 23 | 24 | 25 | 26 | 27 | 28 | 29 | 30 | 31 |
| Oktober | M | D | F | S | S | M | D | M | D | F | S | S | M | D | M | D | F | S | S | M | D | M | D | F | S | S | M | D | M | D | F |
| November | S | S | M | D | M | D | F | S | S | M | D | M | D | F | S | S | M | D | M | D | F | S | S | M | D | M | D | F | S | S | |
| Dezember | M | D | M | D | F | S | S | M | D | M | D | F | S | S | M | D | M | D | F | S | S | M | D | M | D | F | S | S | M | D | M |
| 2026 | 1 | 2 | 3 | 4 | 5 | 6 | 7 | 8 | 9 | 10 | 11 | 12 | 13 | 14 | 15 | 16 | 17 | 18 | 19 | 20 | 21 | 22 | 23 | 24 | 25 | 26 | 27 | 28 | 29 | 30 | 31 |
| Januar | D | F | S | S | M | D | M | D | F | S | S | M | D | M | D | F | S | S | M | D | M | D | F | S | S | M | D | M | D | F | S |
| Februar | S | M | D | M | D | F | S | S | M | D | M | D | F | S | S | M | D | M | D | F | S | S | M | D | M | D | F | S | |||
| März | S | M | D | M | D | F | S | S | M | D | M | D | F | S | S | M | D | M | D | F | S | S | M | D | M | D | F | S | S | M | D |
| April | M | D | F | S | S | M | D | M | D | F | S | S | M | D | M | D | F | S | S | M | D | M | D | F | S | S | M | D | M | D | |
| Mai | F | S | S | M | D | M | D | F | S | S | M | D | M | D | F | S | S | M | D | M | D | F | S | S | M | D | M | D | F | S | S |
| Juni | M | D | M | D | F | S | S | M | D | M | D | F | S | S | M | D | M | D | F | S | S | M | D | M | D | F | S | S | M | D | |
| Juli | M | D | F | S | S | M | D | M | D | F | S | S | M | D | M | D | F | S | S | M | D | M | D | F | S | S | M | D | M | D | F |
| August | S | S | M | D | M | D | F | S | S | M | D | M | D | F | S | S | M | D | M | D | F | S | S | M | D | M | D | F | S | S | M |
| September | D | M | D | F | S | S | M | D | M | D | F | S | S | M | D | M | D | F | S | S | M | D | M | D | F | S | S | M | D | M | |
| Oktober | D | F | S | S | M | D | M | D | F | S | S | M | D | M | D | F | S | S | M | D | M | D | F | S | S | M | D | M | D | F | S |
| November | S | M | D | M | D | F | S | S | M | D | M | D | F | S | S | M | D | M | D | F | S | S | M | D | M | D | F | S | S | M | |
| Dezember | D | M | D | F | S | S | M | D | M | D | F | S | S | M | D | M | D | F | S | S | M | D | M | D | F | S | S | M | D | M | D |
| 2027 | 1 | 2 | 3 | 4 | 5 | 6 | 7 | 8 | 9 | 10 | 11 | 12 | 13 | 14 | 15 | 16 | 17 | 18 | 19 | 20 | 21 | 22 | 23 | 24 | 25 | 26 | 27 | 28 | 29 | 30 | 31 |
| Januar | F | S | S | M | D | M | D | F | |||||||||||||||||||||||
FAQ
Wie hoch sind die Nebenkosten?
Die Kosten für Strom, Wasser, (bei einigen Häusern Gas) werden nach tagesaktuellen Preisen abgerechnet und hängen von vielen verschiedenen Faktoren ab, wie zum Beispiel Anzahl Personen, Größe des Hauses oder Ausstattung. In der Regel lässt sich sagen, dass ein Standardhaus ohne Pool, Whirlpool und Sauna im Sommer ca. 5 kWh pro Person pro Tag verbraucht. Im Winter gerne bei 10 kWh und darüber. Bei Poolhäusern mit Whirlpool und Sauna liegt der Wert im Sommer bei ca. 20 kWh und im Winter ca. bei 40 kWh. Auch hier variieren die Preise stark von Größe des Pools, Ausstattung, Größe des Hauses, Modell des Whirlpools und individuellem Verbrauch im Haus. Der Wasserverbrauch variiert ebenfalls stark und kann bei ca. 0,1-0,2 m³ pro Person pro Tag in einem Standardhaus liegen und bei Poolhäusern bei ca. 0,4-0,5 m³. Wenn eine Kaution bei der Buchung angegeben ist, ist diese angepasst an den ungefähren Durchschnittsverbrauch an Nebenkosten im Haus.
Alle Angaben ohne Gewähr und dienen lediglich als Richtwert und nicht als tatsächliche Prognose.
Kann ich das Haus reservieren?
Reservierungen sind in der Regel nicht möglich. In einigen Fällen ist es uns jedoch möglich, Reservierungen zu erstellen. Fragen Sie gerne direkt bei uns an, ob für dieses Haus eine Reservierung möglich ist.
Wie bekomme ich den Schlüssel für das Ferienhaus?
Mittlerweile sind bei fast allen Feriepartner Ferienhäusern Schlüsselboxen an den Häusern angebracht. Über den “Mein Feriepartner”- Link in der Buchungsbestätigung erhalten Sie Zugang zu Ihrer Buchung und können im Fenster der Schlüsselübergabe 48 Stunden vor Anreise einen Zugangscode einsehen, über welchen Sie den Schlüssel am Haus erhalten.
Ab wann ist das Haus bezugsbereit?
Die Ferienhäuser werden zwischen 10 Uhr und 16 Uhr gereinigt und sind spätestens ab 16 Uhr bezugsbereit. Wann Ihr Ferienhaus am Anreisetag gereinigt wird, entscheidet das Büro vor Ort kurz vorher, in Absprache mit dem Servicepersonal und der effektivsten Route für die Servicekräfte. Sobald Ihr Ferienhaus bezugsbereit ist, erhalten Sie, sofern Ihre Mobilnummer korrekt angegeben ist, eine SMS von Feriepartner mit dem Bescheid und allen wichtigen Informationen zum Beziehen Ihres Ferienhauses.
Wie läuft die Bezahlung ab?
Nach Aufgabe der Buchung und Bestätigung seitens Feriepartner wird die erste Rate in Höhe von 25 % des Mietpreises auf Ihrem Mietvertrag sofort fällig. Sie können die Raten und Beträge im Mietvertrag oder über “Mein Feriepartner” einsehen. Bis 70 Tage vor Anreise ist die Frist für den noch offenen Restbetrag Ihrer Buchung. Sind weniger als 70 Tage bis zur Anreise, wird der gesamte Betrag in einer Rate fällig.
Wie sind die Umbuchungs- / Stornierungsbedingungen?
Bei Feriepartner ist eine Reiserücktrittsversicherung immer im Mietpreis inklusive enthalten. Sie erhalten Informationen zu den Bedingungen nach Abschluss der Buchung oder bei der Versicherungsgesellschaft Tryg A/S. Bei Stornierungen ohne den Gebrauch der Reiserücktrittsversicherung werden bis 70 Tage vor Anreise 25 % des Mietpreises fällig. Dies entspricht der ersten Rate. Ab 70 Tagen vor Anreise bis zum Anreisetag werden 80 % fällig, ab dem Anreisetag 100 %. Umbuchungen können bei Feriepartner gegen eine Gebühr von 70 € bis 70 Tage vor Anreise vorgenommen werden, allerdings nur im gleichen Kalenderjahr.
Wann erhalte ich meine Nebenkostenabrechnung?
Die Abrechnung geschieht, sofern Feriepartner alle Informationen korrekt vorliegen, innerhalb von 14 Tagen nach Abreise. Denken Sie daran Ihre IBAN und BIC bei Feriepartner zu hinterlegen, sofern Sie per Banküberweisung gezahlt haben, damit Feriepartner einen eventuellen Restbetrag auf Ihr Konto zurück überweisen kann.
Jugendgruppen unter 25 Jahren?
Bei Feriepartner gilt eine Jugendgruppe ab 3 Personen und bis 25 Jahre der einzelnen Mitreisenden. Zwei Personen unter 25 Jahre gelten i. d. R. nicht als Jugendgruppe. In speziellen Fällen können wir individuell für Sie anfragen.