Ferienhaus 86071 in P Mærsk Møllers Vej 4, Havneby
Wenn Ihr auf der Suche nach einem gemütlichen, kleinen Ferienhaus auf Rømø für 4 Personen seid, dann solltet ihr euch dieses schöne Ferienhaus mit Holzofen näher ansehen. Das Ferienhaus liegt am P Mærsk Møllers Vej 4 beim Küstenort Havneby und ist nur 140 Meter vom UNESCO Weltnaturerbe Wattenmeer entfernt, einem einzigartigen Gebiet mit vielen Tierarten und Aktivitätsmöglichkeiten.
Hygge auf 42 qm und Platz für 4 Personen
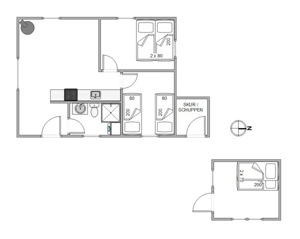
Das gemütliche Ferienhaus bietet Platz für 4 Personen in 2 gemütlichen Schlafzimmern. Beide Zimmer sind mit 2 bequemen Einzelbetten ausgestattet, die zusammengeschoben werden können. Das Badezimmer des Ferienhauses ist mit einer Fußbodenheizung ausgestattet und es gibt auch eine Waschmaschine, sodass ihr bei Bedarf Wäsche waschen können.
Die Küche, der Essbereich und das Wohnzimmer des Ferienhauses sind offen miteinander verbunden. Hier findet ihr auch den Kamin, der sowohl Wärme als auch eine besonders gemütliche Urlaubsatmosphäre verbreitet. Auf dem bequemen Sofa könnt ihr gemeinsam fernsehen oder in der Küche zusammen leckere Mahlzeiten zubereiten. Die praktische Spülmaschine kümmert sich danach um den Abwasch.
Idyllischer Außenbereich mit schöner Terrasse
Im Außenbereich des Ferienhauses findet ihr die schöne, teils überdachte Terrasse, die an warmen Sommertagen sicherlich einer eurer Lieblingsplätze im Ferienhaus sein wird. Hier könnt ihr das schöne Wetter mit einem kühlen Glas Wein oder einem frisch gebackenen Kuchen zum Nachmittagskaffee genießen. Dank der Büsche und Bäume, die das 2800 qm große Naturgrundstück umgeben, habt ihr hier keine Zaungäste.
Am Abend können ihr ein leckeres Steak oder Fisch auf den Grill legen und das Essen auf der Terrasse genießen.
Abwechslungsreiche Erlebnisse auf Rømø
Auf Rømø gibt es Aktivitäten und Erlebnisse für jeden Geschmack und jedes Alter - wir empfehlen einen Besuch im Einkaufszentrum Lakolks, im Rømø Spiel- und Labyrinthpark, auf dem Spidsbjerg oder im Kommandørgården. Und dann ist da natürlich noch der wunderbare, breite Sandstrand, an dem man sich entspannen, baden, verschiedene Strandfahrzeuge ausprobieren oder einen Drachen steigen lassen kann. Die Möglichkeiten sind hier endlos.
Hausbilder
Ausstattung
Allgemeines
- Anbau
- Anzahl Personen: 4
- Anzahl Personen: 4
- Baujahr: 1962
- Grundstücksfläche: 2.800 m²
- Nichtraucher
- Renovierung: 2010
- Wohnfläche: 42 m²
Entfernungen
- Abstand Einkauf: 1.000 m
- Abstand Wasser: 140 m Nordsee
Wohnbereich
- Flachbildfernseher
- Kaminofen
Schlafbereich
- Anzahl Einzelbetten: 4
- Anzahl Schlafzimmer: 2
Küche
- Geschirrspüler
- Herd mit Backofen
- Kühlschrank mit Gefrierfach
Bad
- Anzahl Badezimmer: 1
- Waschmaschine
Multimedia
- Deutsches Fernsehen Dänische und Deutsche
- Internet
- Radio
Aussenbereich
- Gartenmöbel
- Grundstück Naturgrundstück
- Grill
- Liegestuhl
- Terrasse: 1 offen
- Terrasse, überdacht
Sonstiges
-
Fußbodenheizung Bad
Schlafzimmer - Hauswechseltag Samstag
- Kinderhochstuhl
Neben- und Verbrauchskosten
Die aktuellen Verbrauchskosten finden Sie im nächsten Schritt im Buchungsformular.
Raumaufteilung
Lageplan
Ferienhaus 86071
P Mærsk Møllers Vej 4
Havneby, Rømø
6792 Rømø
Belegungskalender
- Reisedauer auswählen
- Anzahl Reisende auswählen
- Anreisetag im Belegungskalender anklicken
- Sie bekommen Verfügbarkeit und Preis angezeigt
| 2026 | 1 | 2 | 3 | 4 | 5 | 6 | 7 | 8 | 9 | 10 | 11 | 12 | 13 | 14 | 15 | 16 | 17 | 18 | 19 | 20 | 21 | 22 | 23 | 24 | 25 | 26 | 27 | 28 | 29 | 30 | 31 |
| Mai | F | S | S | M | D | M | D | F | S | S | M | D | M | D | F | S | S | M | D | M | D | F | S | S | M | D | M | D | F | S | S |
| Juni | M | D | M | D | F | S | S | M | D | M | D | F | S | S | M | D | M | D | F | S | S | M | D | M | D | F | S | S | M | D | |
| Juli | M | D | F | S | S | M | D | M | D | F | S | S | M | D | M | D | F | S | S | M | D | M | D | F | S | S | M | D | M | D | F |
| August | S | S | M | D | M | D | F | S | S | M | D | M | D | F | S | S | M | D | M | D | F | S | S | M | D | M | D | F | S | S | M |
| September | D | M | D | F | S | S | M | D | M | D | F | S | S | M | D | M | D | F | S | S | M | D | M | D | F | S | S | M | D | M | |
| Oktober | D | F | S | S | M | D | M | D | F | S | S | M | D | M | D | F | S | S | M | D | M | D | F | S | S | M | D | M | D | F | S |
| November | S | M | D | M | D | F | S | S | M | D | M | D | F | S | S | M | D | M | D | F | S | S | M | D | M | D | F | S | S | M | |
| Dezember | D | M | D | F | S | S | M | D | M | D | F | S | S | M | D | M | D | F | S | S | M | D | M | D | F | S | S | M | D | M | D |
| 2027 | 1 | 2 | 3 | 4 | 5 | 6 | 7 | 8 | 9 | 10 | 11 | 12 | 13 | 14 | 15 | 16 | 17 | 18 | 19 | 20 | 21 | 22 | 23 | 24 | 25 | 26 | 27 | 28 | 29 | 30 | 31 |
| Januar | F | S | S | M | D | M | D | F | S | S | M | D | M | D | F | S | S | M | D | M | D | F | S | S | M | D | M | D | F | S | S |
| Februar | M | D | M | D | F | S | S | M | D | M | D | F | S | S | M | D | M | D | F | S | S | M | D | M | D | F | S | S | |||
| März | M | D | M | D | F | S | S | M | D | M | D | F | S | S | M | D | M | D | F | S | S | M | D | M | D | F | S | S | M | D | M |
| April | D | F | S | S | M | D | M | D | F | S | S | M | D | M | D | F | S | S | M | D | M | D | F | S | S | M | D | M | D | F | |
| Mai | S | S | M | D | M | D | F | S | S | M | D | M | D | F | S | S | M | D | M | D | F | S | S | M | D | M | D | F | S | S | M |
| Juni | D | M | D | F | S | S | M | D | M | D | F | S | S | M | D | M | D | F | S | S | M | D | M | D | F | S | S | M | D | M | |
| Juli | D | F | S | S | M | D | M | D | F | S | S | M | D | M | D | F | S | S | M | D | M | D | F | S | S | M | D | M | D | F | S |
| August | S | M | D | M | D | F | S | S | M | D | M | D | F | S | S | M | D | M | D | F | S | S | M | D | M | D | F | S | S | M | D |
| September | M | D | F | S | S | M | D | M | D | F | S | S | M | D | M | D | F | S | S | M | D | M | D | F | S | S | M | D | M | D | |
| Oktober | F | S | S | M | D | M | D | F | S | S | M | D | M | D | F | S | S | M | D | M | D | F | S | S | M | D | M | D | F | S | S |
| November | M | D | M | D | F | S | S | M | D | M | D | F | S | S | M | D | M | D | F | S | S | M | D | M | D | F | S | S | M | D | |
| Dezember | M | D | F | S | S | M | D | M | D | F | S | S | M | D | M | D | F | S | S | M | D | M | D | F | S | S | M | D | M | D | F |
| 2028 | 1 | 2 | 3 | 4 | 5 | 6 | 7 | 8 | 9 | 10 | 11 | 12 | 13 | 14 | 15 | 16 | 17 | 18 | 19 | 20 | 21 | 22 | 23 | 24 | 25 | 26 | 27 | 28 | 29 | 30 | 31 |
| Januar | S | S | M | D | M | D | F | S | S | M | D | M | D | F | S | S | M | D | M | D | F | S | S | M | D | M | D | F | S | S | M |
| Februar | D | M | D | F | S | S | M | D | M | D | F | S | S | M | D | M | D | F | S | S | M | D | M | D | F | S | S | M | D | ||
| März | M | D | F | S | S | M | D | M | D | F | S | S | M | D | M | D | F | S | S | M | D | M | D | F | S | S | M | D | M | D | F |
| April | S | S | M | D | M | D | F | S | S | M | D | M | D | F | S | S | M | D | M | D | F | S | S | M | D | M | D | F | S | S | |
| Mai | M | D | M | D | F | S | S | M | D | M | D | F | S | S | M | D | M | D | F | S | S | M | D | M | D | F | S | S | M | D | M |
| Juni | D | F | S | S | M | D | M | D | F | S | S | M | D | M | D | F | S | S | M | D | M | D | F | S | S | M | D | M | D | F | |
| Juli | S | S | M | D | M | D | F | S | S | M | D | M | D | F | S | S | M | D | M | D | F | S | S | M | D | M | D | F | S | S | M |
| August | D | M | D | F | S | S | M | D | M | D | F | S | S | M | D | M | D | F | S | S | M | D | M | D | F | S | S | M | D | M | D |
| September | F | S | S | M | D | M | D | F | S | S | M | D | M | D | F | S | S | M | D | M | D | F | S | S | M | D | M | D | F | S | |
| Oktober | S | M | D | M | D | F | S | S | M | D | M | D | F | S | S | M | D | M | D | F | S | S | M | D | M | D | F | S | S | M | D |
| November | M | D | F | S | S | M | D | M | D | F | S | S | M | D | M | D | F | S | S | M | D | M | D | F | S | S | M | D | M | D | |
| Dezember | F | S | S | M | D | M | D | F | S | S | M | D | M | D | F | S | S | M | D | M | D | F | S | S | M | D | M | D | F | S | S |
| 2029 | 1 | 2 | 3 | 4 | 5 | 6 | 7 | 8 | 9 | 10 | 11 | 12 | 13 | 14 | 15 | 16 | 17 | 18 | 19 | 20 | 21 | 22 | 23 | 24 | 25 | 26 | 27 | 28 | 29 | 30 | 31 |
| Januar | M | D | M | D | F | S | S | M | D | M | D | F | S | S | M | D | M | D | F | S | |||||||||||