Ferienhaus 86152 in Nørre Frankel 59A, Havneby
Sucht ihr nach einem gemütlichen Ferienhaus in friedlichen Umgebungen und Aussicht auf den Wald? Im Nørre Frankel befindet sich ein schönes Holzferienhaus für 5 Urlauber – In Havneby auf Rømø, nicht weit von Einkaufsmöglichkeiten und nur 250 m zum Wattenmeer.
Urlaubsstimmung mit Kaminofen in ruhiger Umgebung
Sobald ihr das Auto geparkt habt, führt eine Treppe euch zum Ferienhaus, welches etwas oberhalb auf einen Hügel liegt. Von hier aus habt ihr eine sehr schöne Aussicht über die Naturumgebungen. Für das Ferienhaus wurden natürliche Materialen und hochwertiges Holz verwendet, welche sich auch im Innenbereich widerspiegeln und eine ruhige, angenehme Atmosphäre schaffen.
In der unteren Etage ist ein schönes, gepflegtes Badezimmer mit Waschmaschine, zwei geräumigen Schlafzimmer und ein gemütliches Wohnzimmer mit offener und funktioneller Küche. In dieser wird das Kochen zu einem Kinderspiel, vor allem weil die Geschirrspülmaschine den langweiligen Abwasch übernimmt. Macht es euch bequem auf der qualitativen Sofagarnitur, die direkt vor dem Kaminofen platziert wurde. Hier könnt ihr ein Spieleabend machen, einen guten Krimi lesen und den Gedanken freien lauf lassen. An kühleren tagen sorgt die Kosten und Energiesparende Wärmepumpe neben den Kaminofen für behagliche Temperaturen. Die Treppe im Wohnzimmer führt zum Schlafboden, indem ihr einen der 5 Schlafmöglichkeiten vorfindet und sogar eine zusätzliche kleine Stube mit dazugehörigem Balkon gibt es in der zweiten Etage zu entdecken.
Vollmundiger Kaffee am Morgen mit fantastischer Aussicht
Auf dem Balkon macht es besonders viel Freude den Kaffee am Morgen zu kosten, während Naturgeflüster und die aufgehende Sonne sich bemerkbar machen. Die ruhige Lage zwischen vielen unterschiedlichen Baumarten sorgt dafür, dass ich euch ungestört sonnen und ausgelassene gemeinsame Mahlzeiten/Grillabende im Freien verbringen könnt ohne, dass ihr gestört werdet. Um das Ferienhaus herum, gibt es selbstverständlich eine schöne Holzterrasse, sodass ihr in aller Ruhe und Entspannung in den Gartenmöbeln verweilen könnt. Die Lage ermöglicht es sogar oftmals die Waldbewohner, wie Rehe und Hirsche beobachten zu können.
Urlaub auf dem Naturreichen Rømø
Das Ferienhaus liegt ganz in der Nähe vom charmanten Havneby. Dort könnt ihr regionalen Fisch genießen, die Fähre nach Sylt nehmen und am Wasser entlang spazieren. Ihr habt es vom Ferienhaus nicht weit zum Sønderstrand, der Abstand beträgt nur 2,5 km und 250 m zum Wattenmeer, das auf der UNESCO Welterbe Liste aufgeführt ist. Je nach Jahreszeit werden Robben und Austernsafaris organisiert und sobald die Starenschwärme schwarze Sonne bilden, ist das ein spektakuläres Naturerlebnis, das seinesgleichen sucht.
Hausbilder
Ausstattung
Allgemeines
- Anzahl Personen: 5
- Anzahl Personen: 5
- Baujahr: 2002
- Grundstücksfläche: 1.800 m²
- Nichtraucher
- Renovierung: 2020
- Tolle Aussicht Panoramablick
- Wohnfläche: 69 m²
Entfernungen
- Abstand Einkauf: 400 m
- Abstand Wasser: 250 m Nordsee
Wohnbereich
- Flachbildfernseher
- Kaminofen
Schlafbereich
- Anzahl Doppelbetten: 2
- Anzahl Einzelbetten: 1
- Anzahl Schlafzimmer: 2
Küche
- Geschirrspüler
- Herd mit Backofen
- Kühlschrank mit Gefrierfach
- Mikrowelle
- Tiefkühler: 70 l
Bad
- Anzahl Badezimmer: 1
- Waschmaschine
Multimedia
- Deutsches Fernsehen
- Internet
Aussenbereich
- Gartenmöbel
- Grundstück Naturgrundstück
- Grill
- Liegestuhl
- Terrasse: 1 offen
- Terrasse, überdacht
Sonstiges
- Hauswechseltag Samstag
- Wärmepumpe
Neben- und Verbrauchskosten
Die aktuellen Verbrauchskosten finden Sie im nächsten Schritt im Buchungsformular.
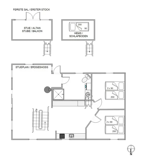
Raumaufteilung
Lageplan
Ferienhaus 86152
Nørre Frankel 59A
Havneby, Rømø
6792 Rømø
Belegungskalender
- Reisedauer auswählen
- Anzahl Reisende auswählen
- Anreisetag im Belegungskalender anklicken
- Sie bekommen Verfügbarkeit und Preis angezeigt
| 2026 | 1 | 2 | 3 | 4 | 5 | 6 | 7 | 8 | 9 | 10 | 11 | 12 | 13 | 14 | 15 | 16 | 17 | 18 | 19 | 20 | 21 | 22 | 23 | 24 | 25 | 26 | 27 | 28 | 29 | 30 | 31 |
| Mai | F | S | S | M | D | M | D | F | S | S | M | D | M | D | F | S | S | M | D | M | D | F | S | S | M | D | M | D | F | S | S |
| Juni | M | D | M | D | F | S | S | M | D | M | D | F | S | S | M | D | M | D | F | S | S | M | D | M | D | F | S | S | M | D | |
| Juli | M | D | F | S | S | M | D | M | D | F | S | S | M | D | M | D | F | S | S | M | D | M | D | F | S | S | M | D | M | D | F |
| August | S | S | M | D | M | D | F | S | S | M | D | M | D | F | S | S | M | D | M | D | F | S | S | M | D | M | D | F | S | S | M |
| September | D | M | D | F | S | S | M | D | M | D | F | S | S | M | D | M | D | F | S | S | M | D | M | D | F | S | S | M | D | M | |
| Oktober | D | F | S | S | M | D | M | D | F | S | S | M | D | M | D | F | S | S | M | D | M | D | F | S | S | M | D | M | D | F | S |
| November | S | M | D | M | D | F | S | S | M | D | M | D | F | S | S | M | D | M | D | F | S | S | M | D | M | D | F | S | S | M | |
| Dezember | D | M | D | F | S | S | M | D | M | D | F | S | S | M | D | M | D | F | S | S | M | D | M | D | F | S | S | M | D | M | D |
| 2027 | 1 | 2 | 3 | 4 | 5 | 6 | 7 | 8 | 9 | 10 | 11 | 12 | 13 | 14 | 15 | 16 | 17 | 18 | 19 | 20 | 21 | 22 | 23 | 24 | 25 | 26 | 27 | 28 | 29 | 30 | 31 |
| Januar | F | S | S | M | D | M | D | F | S | S | M | D | M | D | F | S | S | M | D | M | D | F | S | S | M | D | M | D | F | S | S |
| Februar | M | D | M | D | F | S | S | M | D | M | D | F | S | S | M | D | M | D | F | S | S | M | D | M | D | F | S | S | |||
| März | M | D | M | D | F | S | S | M | D | M | D | F | S | S | M | D | M | D | F | S | S | M | D | M | D | F | S | S | M | D | M |
| April | D | F | S | S | M | D | M | D | F | S | S | M | D | M | D | F | S | S | M | D | M | D | F | S | S | M | D | M | D | F | |
| Mai | S | S | M | D | M | D | F | S | S | M | D | M | D | F | S | S | M | D | M | D | F | S | S | M | D | M | D | F | S | S | M |
| Juni | D | M | D | F | S | S | M | D | M | D | F | S | S | M | D | M | D | F | S | S | M | D | M | D | F | S | S | M | D | M | |
| Juli | D | F | S | S | M | D | M | D | F | S | S | M | D | M | D | F | S | S | M | D | M | D | F | S | S | M | D | M | D | F | S |
| August | S | M | D | M | D | F | S | S | M | D | M | D | F | S | S | M | D | M | D | F | S | S | M | D | M | D | F | S | S | M | D |
| September | M | D | F | S | S | M | D | M | D | F | S | S | M | D | M | D | F | S | S | M | D | M | D | F | S | S | M | D | M | D | |
| Oktober | F | S | S | M | D | M | D | F | S | S | M | D | M | D | F | S | S | M | D | M | D | F | S | S | M | D | M | D | F | S | S |
| November | M | D | M | D | F | S | S | M | D | M | D | F | S | S | M | D | M | D | F | S | S | M | D | M | D | F | S | S | M | D | |
| Dezember | M | D | F | S | S | M | D | M | D | F | S | S | M | D | M | D | F | S | S | M | D | M | D | F | S | S | M | D | M | D | F |
| 2028 | 1 | 2 | 3 | 4 | 5 | 6 | 7 | 8 | 9 | 10 | 11 | 12 | 13 | 14 | 15 | 16 | 17 | 18 | 19 | 20 | 21 | 22 | 23 | 24 | 25 | 26 | 27 | 28 | 29 | 30 | 31 |
| Januar | S | S | M | D | M | D | F | S | S | M | D | M | D | F | S | S | M | D | M | D | F | S | S | M | D | M | D | F | S | S | M |
| Februar | D | M | D | F | S | S | M | D | M | D | F | S | S | M | D | M | D | F | S | S | M | D | M | D | F | S | S | M | D | ||
| März | M | D | F | S | S | M | D | M | D | F | S | S | M | D | M | D | F | S | S | M | D | M | D | F | S | S | M | D | M | D | F |
| April | S | S | M | D | M | D | F | S | S | M | D | M | D | F | S | S | M | D | M | D | F | S | S | M | D | M | D | F | S | S | |
| Mai | M | D | M | D | F | S | S | M | D | M | D | F | S | S | M | D | M | D | F | S | S | M | D | M | D | F | S | S | M | D | M |
| Juni | D | F | S | S | M | D | M | D | F | S | S | M | D | M | D | F | S | S | M | D | M | D | F | S | S | M | D | M | D | F | |
| Juli | S | S | M | D | M | D | F | S | S | M | D | M | D | F | S | S | M | D | M | D | F | S | S | M | D | M | D | F | S | S | M |
| August | D | M | D | F | S | S | M | D | M | D | F | S | S | M | D | M | D | F | S | S | M | D | M | D | F | S | S | M | D | M | D |
| September | F | S | S | M | D | M | D | F | S | S | M | D | M | D | F | S | S | M | D | M | D | F | S | S | M | D | M | D | F | S | |
| Oktober | S | M | D | M | D | F | S | S | M | D | M | D | F | S | S | M | D | M | D | F | S | S | M | D | M | D | F | S | S | M | D |
| November | M | D | F | S | S | M | D | M | D | F | S | S | M | D | M | D | F | S | S | M | D | M | D | F | S | S | M | D | M | D | |
| Dezember | F | S | S | M | D | M | D | F | S | S | M | D | M | D | F | S | S | M | D | M | D | F | S | S | M | D | M | D | F | S | S |
| 2029 | 1 | 2 | 3 | 4 | 5 | 6 | 7 | 8 | 9 | 10 | 11 | 12 | 13 | 14 | 15 | 16 | 17 | 18 | 19 | 20 | 21 | 22 | 23 | 24 | 25 | 26 | 27 | 28 | 29 | 30 | 31 |
| Januar | M | D | M | D | F | S | S | M | D | M | D | F | S | S | M | D | M | D | F | S | |||||||||||