Ferienhaus 0503 in Lyngvejen 7 Enhed 3, Havneby
Das Bootsmannshaus auf Rømø ist die perfekte Wahl, wenn du nach einem Ferienhaus suchst, in dem ihr zusammen sein könnt, aber gleichzeitig die Möglichkeit habt, euch zurückzuziehen. Es ist auch eine ausgezeichnete Wahl, wenn ihr euren Urlaub in der Nähe des Wattenmeeres verbringen und einfachen Zugang zu Einkaufsmöglichkeiten, Restaurants und Naturaktivitäten haben möchtet.
Willkommen in deinem Ferienhaus
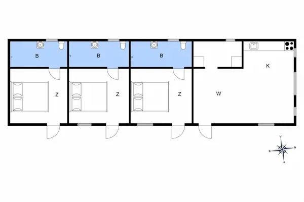
Das reetgedeckte, rote Ferienhaus, das 2024 gerade renoviert wurde, gehört zum Poppelgården-Anwesen. Das große Anwesen war ursprünglich ein Kommandantenhof und diente später sowohl als Bed & Breakfast als auch als Jugendherberge, was den speziellen Grundriss dieses Hauses erklärt. Im Bootsmannshaus findest du drei Schlafzimmer, die jeweils über ein eigenes Badezimmer und einen eigenen Eingang verfügen - hier habt ihr also eure Privatsphäre. Wenn du frühstücken, einen Kaffee trinken oder einfach nur mit dem Rest deiner Gruppe plaudern möchtest, befindet sich der Aufenthaltsraum am östlichen Ende des Hauses. Hier gibt es ein Sofa und einen Esstisch sowie eine schöne Küche. Außerdem gibt es an der Wand einen Flachbildfernseher, wenn du die Nachrichten verfolgen oder abends einen Film ansehen möchtest.
Genieße das Leben im Freien
Auf der Ostseite des Hauses kannst du die ersten Sonnenstrahlen des Tages genießen, und es gibt auch die Möglichkeit, das Leben im Freien nach Süden hin zu genießen. Darüber hinaus habt ihr und deine Lieben viel Platz zum Entspannen und Spielen auf dem großen Naturgrundstück, das ihr mit drei anderen Ferienhäusern teilt. Wenn ihr Fußball spielen oder Frisbee werfen möchtet, ist das problemlos möglich, und wenn du deinen Hund mit in den Urlaub bringst, wird er die ruhige und grüne Umgebung sicherlich genießen. Autos müssen auf dem Parkplatz stehen, und dort gibt es auch eine Ladestation für Elektroautos, falls erforderlich.
Entdecke deine Umgebung
Wenn du deine Lieben mit frisch gebackenen Brötchen zum Frühstück verwöhnen möchtest, dauert es nur einen Moment, um zur Rømø Bageriet am Havnebyvej zu gehen. Es gibt auch einen Lebensmittelladen, einen Minigolfplatz und ein Isländerzentrum in unmittelbarer Nähe. Darüber hinaus liegt das Haus sehr nah an Rømøs Ostküste, die zum Wattenmeer und zum Festland hinzeigt. Die Strände der Insel an der Westküste sind das Ziel, wenn du in der Nordsee baden möchtest, und du hast auch einen einfachen Zugang zur Vråby Plantage, wo du spazieren gehen und deinen Hund im Hundeauslauf frei herumlaufen lassen kannst. Den Stadtkern von Havneby erreichst du in wenigen Minuten mit dem Auto oder dem Fahrrad, zum Beispiel wenn du in einem Restaurant essen gehen oder den Hafen genauer erkunden möchtest.
Hausbilder
Ausstattung
Allgemeines
- Anzahl Haustiere maximal: 2
- Anzahl Personen: 6
- Baujahr: 1950
- Grundstücksfläche: 250 m² Gemeinsamer Grundstück
- Haustiere: Nur Hunde erlaubt
- Inkl. Endreinigung
- Nichtraucher
- Renovierung: 2024
- Verbrauch inklusive
- Wohnfläche: 60 m²
Entfernungen
- Abstand Einkauf: 150 m Ganzjährig geöffnet
- Abstand Golfplatz: 1.400 m
- Abstand Restaurant: 1.200 m
- Abstand Strand: 2.500 m Sandstrand
- Abstand Wasser: 150 m Wattenmeer
Schlafbereich
- Anzahl Doppelbetten: 3 180 x 200
Küche
- Dunstabzug
- Extra Backofen
- Kaffeemaschine
- Kochplatten: 1 elektrische
- Kühlschrank l
- Tiefkühler: 71 l
- Wasserkocher
Bad
- Anzahl Duschen: 3
- Anzahl Toiletten: 3
Multimedia
- Deutsches Fernsehen
- Internationales Fernsehen Dänisches Fernsehen
- Internet Kostenloses Wi-Fi - Mehr als 20 Mbit
Aussenbereich
- Grill Gasgrill
- Terrasse: 1 m²
Sonstiges
-
Bei diesem Haus inkl. Strom
Wasser - Besonderheiten Bitte beachten Sie dass das Haus mit Pilletofen beheizt wird wofür der Servicetekniker zuständig ist.
- Das Aufladen von Elektroautos ist nicht erlaubt
- Sonstiges Chromecast
Neben- und Verbrauchskosten
Die aktuellen Verbrauchskosten finden Sie im nächsten Schritt im Buchungsformular.
Raumaufteilung
Lageplan
Ferienhaus 0503
Lyngvejen 7 Enhed 3
Bådmandens hus.
6792 Rømø
Belegungskalender
- Reisedauer auswählen
- Anzahl Reisende auswählen
- Anreisetag im Belegungskalender anklicken
- Sie bekommen Verfügbarkeit und Preis angezeigt
| 2026 | 1 | 2 | 3 | 4 | 5 | 6 | 7 | 8 | 9 | 10 | 11 | 12 | 13 | 14 | 15 | 16 | 17 | 18 | 19 | 20 | 21 | 22 | 23 | 24 | 25 | 26 | 27 | 28 | 29 | 30 | 31 |
| Mai | F | S | S | M | D | M | D | F | S | S | M | D | M | D | F | S | S | M | D | M | D | F | S | S | M | D | M | D | F | S | S |
| Juni | M | D | M | D | F | S | S | M | D | M | D | F | S | S | M | D | M | D | F | S | S | M | D | M | D | F | S | S | M | D | |
| Juli | M | D | F | S | S | M | D | M | D | F | S | S | M | D | M | D | F | S | S | M | D | M | D | F | S | S | M | D | M | D | F |
| August | S | S | M | D | M | D | F | S | S | M | D | M | D | F | S | S | M | D | M | D | F | S | S | M | D | M | D | F | S | S | M |
| September | D | M | D | F | S | S | M | D | M | D | F | S | S | M | D | M | D | F | S | S | M | D | M | D | F | S | S | M | D | M | |
| Oktober | D | F | S | S | M | D | M | D | F | S | S | M | D | M | D | F | S | S | M | D | M | D | F | S | S | M | D | M | D | F | S |
| November | S | M | D | M | D | F | S | S | M | D | M | D | F | S | S | M | D | M | D | F | S | S | M | D | M | D | F | S | S | M | |
| Dezember | D | M | D | F | S | S | M | D | M | D | F | S | S | M | D | M | D | F | S | S | M | D | M | D | F | S | S | M | D | M | D |
| 2027 | 1 | 2 | 3 | 4 | 5 | 6 | 7 | 8 | 9 | 10 | 11 | 12 | 13 | 14 | 15 | 16 | 17 | 18 | 19 | 20 | 21 | 22 | 23 | 24 | 25 | 26 | 27 | 28 | 29 | 30 | 31 |
| Januar | F | S | S | M | D | M | D | F | S | S | M | D | M | D | F | S | S | M | D | M | D | F | S | S | M | D | M | D | F | S | S |
| Februar | M | D | M | D | F | S | S | M | D | M | D | F | S | S | M | D | M | D | F | S | S | M | D | M | D | F | S | S | |||
| März | M | D | M | D | F | S | S | M | D | M | D | F | S | S | M | D | M | D | F | S | S | M | D | M | D | F | S | S | M | D | M |
| April | D | F | S | S | M | D | M | D | F | S | S | M | D | M | D | F | S | S | M | D | M | D | F | S | S | M | D | M | D | F | |
| Mai | S | S | M | D | M | D | F | S | S | M | D | M | D | F | S | S | M | D | M | D | F | S | S | M | D | M | D | F | S | S | M |
| Juni | D | M | D | F | S | S | M | D | M | D | F | S | S | M | D | M | D | F | S | S | M | D | M | D | F | S | S | M | D | M | |
| Juli | D | F | S | S | M | D | M | D | F | S | S | M | D | M | D | F | S | S | M | D | M | D | F | S | S | M | D | M | D | F | S |
| August | S | M | D | M | D | F | S | S | M | D | M | D | F | S | S | M | D | M | D | F | S | S | M | D | M | D | F | S | S | M | D |
| September | M | D | F | S | S | M | D | M | D | F | S | S | M | D | M | D | F | S | S | M | D | M | D | F | S | S | M | D | M | D | |
| Oktober | F | S | S | M | D | M | D | F | S | S | M | D | M | D | F | S | S | M | D | M | D | F | S | S | M | D | M | D | F | S | S |
| November | M | D | M | D | F | S | S | M | D | M | D | F | S | S | M | D | M | D | F | S | S | M | D | M | D | F | S | S | M | D | |
| Dezember | M | D | F | S | S | M | D | M | D | F | S | S | M | D | M | D | F | S | S | M | D | M | D | F | S | S | M | D | M | D | F |
| 2028 | 1 | 2 | 3 | 4 | 5 | 6 | 7 | 8 | 9 | 10 | 11 | 12 | 13 | 14 | 15 | 16 | 17 | 18 | 19 | 20 | 21 | 22 | 23 | 24 | 25 | 26 | 27 | 28 | 29 | 30 | 31 |
| Januar | S | S | M | D | M | D | F | S | S | M | D | M | |||||||||||||||||||
FAQ
Wie hoch sind die Nebenkosten?
Die Kosten für Strom, Wasser, (bei einigen Häusern Gas) werden nach tagesaktuellen Preisen abgerechnet und hängen von vielen verschiedenen Faktoren ab, wie zum Beispiel Anzahl Personen, Größe des Hauses oder Ausstattung. In der Regel lässt sich sagen, dass ein Standardhaus ohne Pool, Whirlpool und Sauna im Sommer ca. 5 kWh pro Person pro Tag verbraucht. Im Winter gerne bei 10 kWh und darüber. Bei Poolhäusern mit Whirlpool und Sauna liegt der Wert im Sommer bei ca. 20 kWh und im Winter ca. bei 40 kWh. Auch hier variieren die Preise stark von Größe des Pools, Ausstattung, Größe des Hauses, Modell des Whirlpools und individuellem Verbrauch im Haus. Der Wasserverbrauch variiert ebenfalls stark und kann bei ca. 0,1-0,2 m³ pro Person pro Tag in einem Standardhaus liegen und bei Poolhäusern bei ca. 0,4-0,5 m³. Wenn eine Kaution bei der Buchung angegeben ist, ist diese angepasst an den ungefähren Durchschnittsverbrauch an Nebenkosten im Haus.
Alle Angaben ohne Gewähr und dienen lediglich als Richtwert und nicht als tatsächliche Prognose.
Kann ich das Haus reservieren?
Reservierungen sind in der Regel nicht möglich. In einigen Fällen ist es uns jedoch möglich, Reservierungen zu erstellen. Fragen Sie gerne direkt bei uns an, ob für dieses Haus eine Reservierung möglich ist.
Wie bekomme ich den Schlüssel für das Ferienhaus?
Mittlerweile sind bei fast allen Feriepartner Ferienhäusern Schlüsselboxen an den Häusern angebracht. Über den “Mein Feriepartner”- Link in der Buchungsbestätigung erhalten Sie Zugang zu Ihrer Buchung und können im Fenster der Schlüsselübergabe 48 Stunden vor Anreise einen Zugangscode einsehen, über welchen Sie den Schlüssel am Haus erhalten.
Ab wann ist das Haus bezugsbereit?
Die Ferienhäuser werden zwischen 10 Uhr und 16 Uhr gereinigt und sind spätestens ab 16 Uhr bezugsbereit. Wann Ihr Ferienhaus am Anreisetag gereinigt wird, entscheidet das Büro vor Ort kurz vorher, in Absprache mit dem Servicepersonal und der effektivsten Route für die Servicekräfte. Sobald Ihr Ferienhaus bezugsbereit ist, erhalten Sie, sofern Ihre Mobilnummer korrekt angegeben ist, eine SMS von Feriepartner mit dem Bescheid und allen wichtigen Informationen zum Beziehen Ihres Ferienhauses.
Wie läuft die Bezahlung ab?
Nach Aufgabe der Buchung und Bestätigung seitens Feriepartner wird die erste Rate in Höhe von 25 % des Mietpreises auf Ihrem Mietvertrag sofort fällig. Sie können die Raten und Beträge im Mietvertrag oder über “Mein Feriepartner” einsehen. Bis 70 Tage vor Anreise ist die Frist für den noch offenen Restbetrag Ihrer Buchung. Sind weniger als 70 Tage bis zur Anreise, wird der gesamte Betrag in einer Rate fällig.
Wie sind die Umbuchungs- / Stornierungsbedingungen?
Bei Feriepartner ist eine Reiserücktrittsversicherung immer im Mietpreis inklusive enthalten. Sie erhalten Informationen zu den Bedingungen nach Abschluss der Buchung oder bei der Versicherungsgesellschaft Tryg A/S. Bei Stornierungen ohne den Gebrauch der Reiserücktrittsversicherung werden bis 70 Tage vor Anreise 25 % des Mietpreises fällig. Dies entspricht der ersten Rate. Ab 70 Tagen vor Anreise bis zum Anreisetag werden 80 % fällig, ab dem Anreisetag 100 %. Umbuchungen können bei Feriepartner gegen eine Gebühr von 70 € bis 70 Tage vor Anreise vorgenommen werden, allerdings nur im gleichen Kalenderjahr.
Wann erhalte ich meine Nebenkostenabrechnung?
Die Abrechnung geschieht, sofern Feriepartner alle Informationen korrekt vorliegen, innerhalb von 14 Tagen nach Abreise. Denken Sie daran Ihre IBAN und BIC bei Feriepartner zu hinterlegen, sofern Sie per Banküberweisung gezahlt haben, damit Feriepartner einen eventuellen Restbetrag auf Ihr Konto zurück überweisen kann.
Jugendgruppen unter 25 Jahren?
Bei Feriepartner gilt eine Jugendgruppe ab 3 Personen und bis 25 Jahre der einzelnen Mitreisenden. Zwei Personen unter 25 Jahre gelten i. d. R. nicht als Jugendgruppe. In speziellen Fällen können wir individuell für Sie anfragen.