Ferienwohnung 2806 in Nordre Havnevej 26, Havneby
Erlebe das Vergnügen, in dieser charmanten Wohnung in der Nordre Havnevej 26 zu wohnen, die perfekt für zwei Personen ist, die einen entspannten Urlaub in der gemütlichen kleinen Stadt Havneby genießen möchten. Hier hast du die Möglichkeit, dich vom Alltagsstress zurückzuziehen und Ruhe zu finden in einer stilvollen und praktischen Einrichtung, die eine angenehme Atmosphäre schafft. Die Wohnung ist gut gepflegt und bietet angenehme Details, die es leicht machen, sich wie zu Hause zu fühlen.
Willkommen in deinem Ferienhaus
Wenn du die Wohnung betrittst, empfängt dich ein heller und einladender Raum, in dem die stilvolle Einrichtung sofort eine warme und einladende Atmosphäre schafft. Die großen Fenster sorgen nicht nur für einen angenehmen Lichteinfall, sondern bieten auch einen schönen Blick über die Stadt und den Platz in Havneby – perfekt für eine Tasse Kaffee am Morgen oder ein Glas Wein am Abend. Die Wohnung bietet eine harmonische Verbindung zwischen Wohn- und Schlafbereich, was eine gute Funktionalität und ein offenes Design gewährleistet. Du kannst dich im bequemen Sofa entspannen, eine Mahlzeit am Esstisch genießen oder einfach die Aussicht bewundern. Die gemütlichen Details wie Liegestühle und schöne Kunstwerke verleihen dem Raum eine persönliche Note, und die praktische Einrichtung sorgt dafür, dass dein Aufenthalt komfortabel und unkompliziert verläuft.
Genieße das Leben im Freien
Die Wohnung hat eine fantastische Lage, wenn es darum geht, das Leben im Freien zu genießen. Havneby ist eine malerische Stadt mit Restaurants, Fischgeschäft und verschiedenen Geschäften, die es leicht machen, alles zu bekommen, was du während deines Aufenthalts benötigst. Mach einen Spaziergang durch die kleine Stadt oder besuche die Fahrradvermietung, um Römøs malerische Landschaften auf zwei Rädern zu erkunden. Der breite Sandstrand von Sønderstrand, nur eine kurze Autofahrt entfernt, bietet fantastische Möglichkeiten für einen Tag voller Spiel, Entspannung oder ein Bad im klaren, frischen Wasser. Hier kannst du auch lange Spaziergänge am Meer entlang machen, Muscheln sammeln oder den Sonnenuntergang beobachten, der den Himmel in schönen Orange- und Violetttönen malt.
Entdecke deine Umgebung
Rømø ist bekannt für seine einzigartigen Naturerlebnisse, und als Gast in Havneby hast du den perfekten Ausgangspunkt, um alles zu erkunden, was die Insel zu bieten hat. Besuche die Naturschutzgebiete, die sich über das beeindruckende Wattenmeer erstrecken, das auf der UNESCO-Welterbeliste steht. Hier kannst du an geführten Ausflügen teilnehmen, einschließlich Austernsafaris, oder einfach die frische Luft und die reiche Tierwelt genießen. Wenn du an Aktivitäten interessiert bist, kannst du auch eine Runde auf dem beliebten Golfplatz von Rømø spielen, wo du in malerischer Umgebung spielen und einen schönen Tag mit Sport und Geselligkeit genießen kannst. Der Golfplatz bietet Herausforderungen für Anfänger und erfahrene Spieler, und die fantastische Natur rund um die Plätze schafft ein einzigartiges Golferlebnis. Nach einem erlebnisreichen Tag kannst du den Abend mit einer köstlichen Mahlzeit in einem der lokalen Restaurants ausklingen lassen, wo du frische Fischgerichte und andere Spezialitäten aus der Region genießen kannst. Egal, ob du ein entspanntes Wochenende oder einen aktiven Urlaub in der Natur wünschst, diese Wohnung in der Nordre Havnevej ist der perfekte Ausgangspunkt für dein nächstes Urlaubserlebnis auf Rømø.
Hausbilder
Ausstattung
Allgemeines
- Anzahl Personen: 2
- Baujahr: 2009
- Fernwärme
- Grundstücksfläche: 62 m² Gemeinsamer Grundstück
- Inkl. Endreinigung
- Nichtraucher
- Wohnfläche: 62 m²
Entfernungen
- Abstand Einkauf: 20 m Ganzjährig geöffnet
- Abstand Golfplatz: 800 m
- Abstand Restaurant: 50 m
- Abstand Strand: 2.000 m Sandstrand
- Abstand Wasser: 50 m Wattenmeer
Schlafbereich
- Anzahl Doppelbetten: 1 180 x 200
Küche
- Dunstabzug
- Extra Backofen
- Geschirrspüler
- Kochplatten: 1 elektrische
- Kühlschrank l
- Mikrowelle
- Tiefkühler: 92 l
- Wasserkocher
Bad
- Anzahl Duschen: 1
- Anzahl Toiletten: 1
- Trockner
- Waschmaschine
Multimedia
- Deutsches Fernsehen
- Internationales Fernsehen Dänisches Fernsehen
- Internet Kostenloses Wi-Fi - Mehr als 20 Mbit
Aussenbereich
- Gartenmöbel
- Grill Gasgrill
- Liegestuhl
Sonstiges
- Balkon: 1 m²
- Bügelbrett
- Bügeleisen
- Das Aufladen von Elektroautos ist nicht erlaubt
Neben- und Verbrauchskosten
Die aktuellen Verbrauchskosten finden Sie im nächsten Schritt im Buchungsformular.
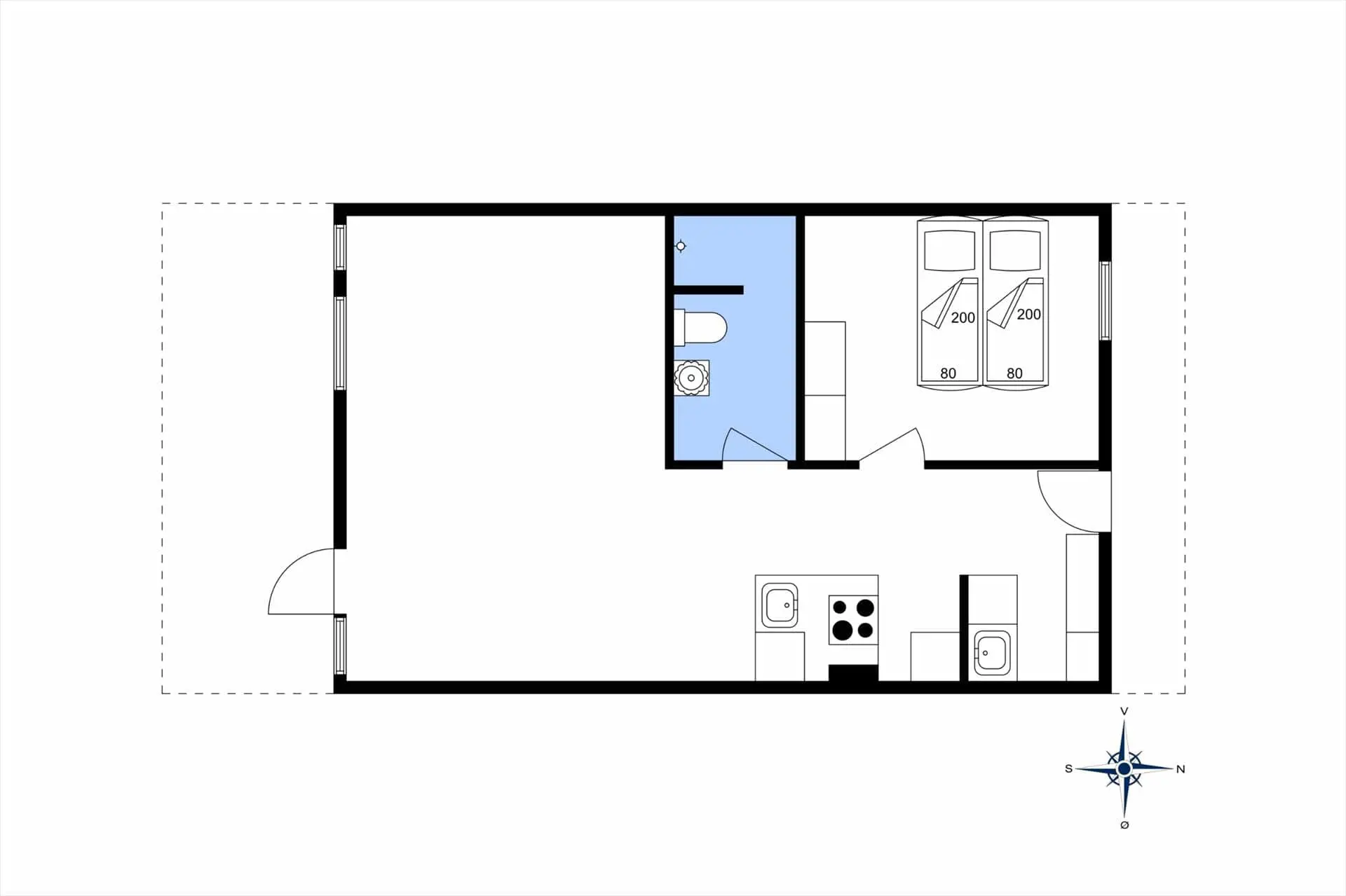
Raumaufteilung
Lageplan
Ferienwohnung 2806
Nordre Havnevej 26
6792 Rømø
Belegungskalender
- Reisedauer auswählen
- Anzahl Reisende auswählen
- Anreisetag im Belegungskalender anklicken
- Sie bekommen Verfügbarkeit und Preis angezeigt
| 2026 | 1 | 2 | 3 | 4 | 5 | 6 | 7 | 8 | 9 | 10 | 11 | 12 | 13 | 14 | 15 | 16 | 17 | 18 | 19 | 20 | 21 | 22 | 23 | 24 | 25 | 26 | 27 | 28 | 29 | 30 | 31 |
| Mai | F | S | S | M | D | M | D | F | S | S | M | D | M | D | F | S | S | M | D | M | D | F | S | S | M | D | M | D | F | S | S |
| Juni | M | D | M | D | F | S | S | M | D | M | D | F | S | S | M | D | M | D | F | S | S | M | D | M | D | F | S | S | M | D | |
| Juli | M | D | F | S | S | M | D | M | D | F | S | S | M | D | M | D | F | S | S | M | D | M | D | F | S | S | M | D | M | D | F |
| August | S | S | M | D | M | D | F | S | S | M | D | M | D | F | S | S | M | D | M | D | F | S | S | M | D | M | D | F | S | S | M |
| September | D | M | D | F | S | S | M | D | M | D | F | S | S | M | D | M | D | F | S | S | M | D | M | D | F | S | S | M | D | M | |
| Oktober | D | F | S | S | M | D | M | D | F | S | S | M | D | M | D | F | S | S | M | D | M | D | F | S | S | M | D | M | D | F | S |
| November | S | M | D | M | D | F | S | S | M | D | M | D | F | S | S | M | D | M | D | F | S | S | M | D | M | D | F | S | S | M | |
| Dezember | D | M | D | F | S | S | M | D | M | D | F | S | S | M | D | M | D | F | S | S | M | D | M | D | F | S | S | M | D | M | D |
| 2027 | 1 | 2 | 3 | 4 | 5 | 6 | 7 | 8 | 9 | 10 | 11 | 12 | 13 | 14 | 15 | 16 | 17 | 18 | 19 | 20 | 21 | 22 | 23 | 24 | 25 | 26 | 27 | 28 | 29 | 30 | 31 |
| Januar | F | S | S | M | D | M | D | F | S | S | M | D | M | D | F | S | S | M | D | M | D | F | S | S | M | D | M | D | F | S | S |
| Februar | M | D | M | D | F | S | S | M | D | M | D | F | S | S | M | D | M | D | F | S | S | M | D | M | D | F | S | S | |||
| März | M | D | M | D | F | S | S | M | D | M | D | F | S | S | M | D | M | D | F | S | S | M | D | M | D | F | S | S | M | D | M |
| April | D | F | S | S | M | D | M | D | F | S | S | M | D | M | D | F | S | S | M | D | M | D | F | S | S | M | D | M | D | F | |
| Mai | S | S | M | D | M | D | F | S | S | M | D | M | D | F | S | S | M | D | M | D | F | S | S | M | D | M | D | F | S | S | M |
| Juni | D | M | D | F | S | S | M | D | M | D | F | S | S | M | D | M | D | F | S | S | M | D | M | D | F | S | S | M | D | M | |
| Juli | D | F | S | S | M | D | M | D | F | S | S | M | D | M | D | F | S | S | M | D | M | D | F | S | S | M | D | M | D | F | S |
| August | S | M | D | M | D | F | S | S | M | D | M | D | F | S | S | M | D | M | D | F | S | S | M | D | M | D | F | S | S | M | D |
| September | M | D | F | S | S | M | D | M | D | F | S | S | M | D | M | D | F | S | S | M | D | M | D | F | S | S | M | D | M | D | |
| Oktober | F | S | S | M | D | M | D | F | S | S | M | D | M | D | F | S | S | M | D | M | D | F | S | S | M | D | M | D | F | S | S |
| November | M | D | M | D | F | S | S | M | D | M | D | F | S | S | M | D | M | D | F | S | S | M | D | M | D | F | S | S | M | D | |
| Dezember | M | D | F | S | S | M | D | M | D | F | S | S | M | D | M | D | F | S | S | M | D | M | D | F | S | S | M | D | M | D | F |
| 2028 | 1 | 2 | 3 | 4 | 5 | 6 | 7 | 8 | 9 | 10 | 11 | 12 | 13 | 14 | 15 | 16 | 17 | 18 | 19 | 20 | 21 | 22 | 23 | 24 | 25 | 26 | 27 | 28 | 29 | 30 | 31 |
| Januar | S | S | M | D | M | D | F | S | S | M | D | M | |||||||||||||||||||
FAQ
Wie hoch sind die Nebenkosten?
Die Kosten für Strom, Wasser, (bei einigen Häusern Gas) werden nach tagesaktuellen Preisen abgerechnet und hängen von vielen verschiedenen Faktoren ab, wie zum Beispiel Anzahl Personen, Größe des Hauses oder Ausstattung. In der Regel lässt sich sagen, dass ein Standardhaus ohne Pool, Whirlpool und Sauna im Sommer ca. 5 kWh pro Person pro Tag verbraucht. Im Winter gerne bei 10 kWh und darüber. Bei Poolhäusern mit Whirlpool und Sauna liegt der Wert im Sommer bei ca. 20 kWh und im Winter ca. bei 40 kWh. Auch hier variieren die Preise stark von Größe des Pools, Ausstattung, Größe des Hauses, Modell des Whirlpools und individuellem Verbrauch im Haus. Der Wasserverbrauch variiert ebenfalls stark und kann bei ca. 0,1-0,2 m³ pro Person pro Tag in einem Standardhaus liegen und bei Poolhäusern bei ca. 0,4-0,5 m³. Wenn eine Kaution bei der Buchung angegeben ist, ist diese angepasst an den ungefähren Durchschnittsverbrauch an Nebenkosten im Haus.
Alle Angaben ohne Gewähr und dienen lediglich als Richtwert und nicht als tatsächliche Prognose.
Kann ich das Haus reservieren?
Reservierungen sind in der Regel nicht möglich. In einigen Fällen ist es uns jedoch möglich, Reservierungen zu erstellen. Fragen Sie gerne direkt bei uns an, ob für dieses Haus eine Reservierung möglich ist.
Wie bekomme ich den Schlüssel für das Ferienhaus?
Mittlerweile sind bei fast allen Feriepartner Ferienhäusern Schlüsselboxen an den Häusern angebracht. Über den “Mein Feriepartner”- Link in der Buchungsbestätigung erhalten Sie Zugang zu Ihrer Buchung und können im Fenster der Schlüsselübergabe 48 Stunden vor Anreise einen Zugangscode einsehen, über welchen Sie den Schlüssel am Haus erhalten.
Ab wann ist das Haus bezugsbereit?
Die Ferienhäuser werden zwischen 10 Uhr und 16 Uhr gereinigt und sind spätestens ab 16 Uhr bezugsbereit. Wann Ihr Ferienhaus am Anreisetag gereinigt wird, entscheidet das Büro vor Ort kurz vorher, in Absprache mit dem Servicepersonal und der effektivsten Route für die Servicekräfte. Sobald Ihr Ferienhaus bezugsbereit ist, erhalten Sie, sofern Ihre Mobilnummer korrekt angegeben ist, eine SMS von Feriepartner mit dem Bescheid und allen wichtigen Informationen zum Beziehen Ihres Ferienhauses.
Wie läuft die Bezahlung ab?
Nach Aufgabe der Buchung und Bestätigung seitens Feriepartner wird die erste Rate in Höhe von 25 % des Mietpreises auf Ihrem Mietvertrag sofort fällig. Sie können die Raten und Beträge im Mietvertrag oder über “Mein Feriepartner” einsehen. Bis 70 Tage vor Anreise ist die Frist für den noch offenen Restbetrag Ihrer Buchung. Sind weniger als 70 Tage bis zur Anreise, wird der gesamte Betrag in einer Rate fällig.
Wie sind die Umbuchungs- / Stornierungsbedingungen?
Bei Feriepartner ist eine Reiserücktrittsversicherung immer im Mietpreis inklusive enthalten. Sie erhalten Informationen zu den Bedingungen nach Abschluss der Buchung oder bei der Versicherungsgesellschaft Tryg A/S. Bei Stornierungen ohne den Gebrauch der Reiserücktrittsversicherung werden bis 70 Tage vor Anreise 25 % des Mietpreises fällig. Dies entspricht der ersten Rate. Ab 70 Tagen vor Anreise bis zum Anreisetag werden 80 % fällig, ab dem Anreisetag 100 %. Umbuchungen können bei Feriepartner gegen eine Gebühr von 70 € bis 70 Tage vor Anreise vorgenommen werden, allerdings nur im gleichen Kalenderjahr.
Wann erhalte ich meine Nebenkostenabrechnung?
Die Abrechnung geschieht, sofern Feriepartner alle Informationen korrekt vorliegen, innerhalb von 14 Tagen nach Abreise. Denken Sie daran Ihre IBAN und BIC bei Feriepartner zu hinterlegen, sofern Sie per Banküberweisung gezahlt haben, damit Feriepartner einen eventuellen Restbetrag auf Ihr Konto zurück überweisen kann.
Jugendgruppen unter 25 Jahren?
Bei Feriepartner gilt eine Jugendgruppe ab 3 Personen und bis 25 Jahre der einzelnen Mitreisenden. Zwei Personen unter 25 Jahre gelten i. d. R. nicht als Jugendgruppe. In speziellen Fällen können wir individuell für Sie anfragen.