Ferienhaus 82137 in Ejnar Mikkelsensvej 20, Kongsmark
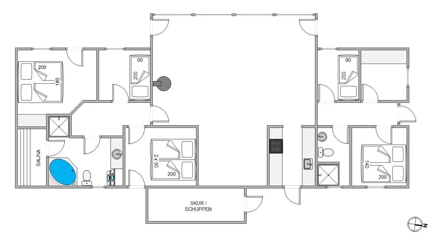
Im Ejnar Mikkelsensvej 20, auf der idyllischen Nordseeinsel Rømø, findet ihr dieses moderne Ferienhaus, welches über eine praktische Aufteilung verfügt. Praktisch deswegen, weil es in der Mitte einen zentralen Wohnraum, mit Küche gibt und links und rechts davon, die beiden Bäder mit den Schlafzimmern angeordnet wurden. So könnt ihr hier perfekt mit zwei Parteien Urlaub machen.
Weitere Pluspunkte sind die Sauna, der Whirlpool, die energiesparende Wärmepumpe und das schön angelegte Grundstück.
Moderne Einrichtung und praktisch Aufteilung
Bis zu acht Personen und auch eure beiden Familienhunde können hier ein zu Hause auf Zeit finden. Im gesamten Ferienhaus gibt es helle Wände und Decken und es wurde viel Holz verarbeitet. Die Einrichtung strahlt den typisch skandinavischen Charme aus und ist dabei modern, aber dennoch gemütlich kombiniert.
Der großzügige Wohnraum bietet Platz für alle. So können die einen am Esstisch Brettspiele spielen, während die anderen vorm knisternden Kaminfeuer ein Buch lesen oder fernsehen. Die offene Küche lädt zum Zubereiten leckerer Mahlzeiten ein. Probiert doch auch mal einen dänischen Themenabend aus. Der Geschirrspüler kümmert sich danach um den Abwasch.
So habt ihr Zeit den Whirlpool und die Sauna auszuprobieren. Genießt einen ausgiebigen Saunagang oder ein Bad im warmen Wasser und lasst den Alltagsstress hinter euch. Die anderen können derweil das kleinere Bad nutzen, damit ihr ganz eure Ruhe habt. Beide Bäder sind natürlich mit einer Dusche und einer Fußbodenheizung ausgestattet.
Wenn sich der Urlaubstag dem Ende neigt, könnt ihr euch auf insgesamt fünf gemütliche Schlafzimmer aufteilen. Zwei sind mit Doppelbetten, eines mit zwei Einzelbetten und weitere zwei mit je einem Einzelbett ausgestattet. So könnt ihr euch gut aufteilen.
Entspannung und Aktivitäten auf umwachsenen Grundstück
Das schöne Ferienhaus liegt auf einem 2500 qm großen Naturgrundstück, welches von Büschen und Bäumen umwachsen ist. Dadurch seid ihr vor Wind und fremden Blicken geschützt und könnt euch an der frischen Meeresluft entspannen. Hierfür stehen euch bequeme Gartenmöbel und Sonnenliegen, auf der teils überdachten Terrasse zur Verfügung.
Während ihr euch sonnt oder ein kühles Getränk genießt, können eure Kinder sich im Sandkasten, auf der Schaukel oder dem Trampolin austoben. Wenn es Abend wird, könnt ihr den Tag mit einem Grillfest abschließen. Hierfür steht euch der hauseigene Gasgrill zur Verfügung.
Abwechslungsreicher Urlaub auf Rømø
Die einzigartige Heide- und Dünenlandschaft von Rømø heißt euch zu einem ruhigen und friedlichen Urlaub mit eurer Familie willkommen. Hier auf Rømø ist alles leicht mit dem Fahrrad oder zu Fuß zu erreichen. Ob ihr nun Europas breitestem Sandstrand in Lakolk einen Besuch abstatten, einkaufen, ein Restaurant oder Café besuchen oder das Wattenmeer erkunden wollt.
Auf der Nordseeinsel Rømø könnt ihr mit etwas Glück zu jeder Jahreszeit Wild, Robben und Zugvögel beobachten. Es gibt immer etwas zu erleben und für jeden Geschmack ist etwas dabei.
Hausbilder
Ausstattung
Allgemeines
- Anzahl Haustiere maximal: 2
- Anzahl Personen: 8
- Anzahl Personen: 8
- Baujahr: 1971
- Grundstücksfläche: 2.500 m²
- Haustiere erlaubt
- Nichtraucher
- Renovierung: 2005
- Wohnfläche: 136 m²
Entfernungen
- Abstand Einkauf: 5.000 m
- Abstand Wasser: 1.700 m Nordsee
Wohnbereich
- Flachbildfernseher
- Kaminofen
Schlafbereich
- Anzahl Doppelbetten: 2
- Anzahl Einzelbetten: 4
- Anzahl Schlafzimmer: 5
Küche
- Geschirrspüler
- Herd mit Backofen
- Kühlschrank mit Gefrierfach
- Mikrowelle
Bad
- Anzahl Badezimmer: 2
- Waschmaschine
Wellness
- Poolgröße: 2 Anzahl Personen Whirlpool
- Sauna
Multimedia
- Deutsches Fernsehen
- Internet
Aussenbereich
- Gartenmöbel
- Grundstück Naturgrundstück
- Grill Gasgrill
- Liegestuhl
- Sandkiste
- Schaukel
- Terrasse: 1 offen
- Terrasse, überdacht
Sonstiges
- Fußbodenheizung Bad
- Hauswechseltag Freitag
- Kinderbett
- Wärmepumpe
Neben- und Verbrauchskosten
Die aktuellen Verbrauchskosten finden Sie im nächsten Schritt im Buchungsformular.
Raumaufteilung
Lageplan
Ferienhaus 82137
Ejnar Mikkelsensvej 20
Kongsmark, Rømø
6792 Rømø
Belegungskalender
- Reisedauer auswählen
- Anzahl Reisende auswählen
- Anreisetag im Belegungskalender anklicken
- Sie bekommen Verfügbarkeit und Preis angezeigt
| 2026 | 1 | 2 | 3 | 4 | 5 | 6 | 7 | 8 | 9 | 10 | 11 | 12 | 13 | 14 | 15 | 16 | 17 | 18 | 19 | 20 | 21 | 22 | 23 | 24 | 25 | 26 | 27 | 28 | 29 | 30 | 31 |
| Mai | F | S | S | M | D | M | D | F | S | S | M | D | M | D | F | S | S | M | D | M | D | F | S | S | M | D | M | D | F | S | S |
| Juni | M | D | M | D | F | S | S | M | D | M | D | F | S | S | M | D | M | D | F | S | S | M | D | M | D | F | S | S | M | D | |
| Juli | M | D | F | S | S | M | D | M | D | F | S | S | M | D | M | D | F | S | S | M | D | M | D | F | S | S | M | D | M | D | F |
| August | S | S | M | D | M | D | F | S | S | M | D | M | D | F | S | S | M | D | M | D | F | S | S | M | D | M | D | F | S | S | M |
| September | D | M | D | F | S | S | M | D | M | D | F | S | S | M | D | M | D | F | S | S | M | D | M | D | F | S | S | M | D | M | |
| Oktober | D | F | S | S | M | D | M | D | F | S | S | M | D | M | D | F | S | S | M | D | M | D | F | S | S | M | D | M | D | F | S |
| November | S | M | D | M | D | F | S | S | M | D | M | D | F | S | S | M | D | M | D | F | S | S | M | D | M | D | F | S | S | M | |
| Dezember | D | M | D | F | S | S | M | D | M | D | F | S | S | M | D | M | D | F | S | S | M | D | M | D | F | S | S | M | D | M | D |
| 2027 | 1 | 2 | 3 | 4 | 5 | 6 | 7 | 8 | 9 | 10 | 11 | 12 | 13 | 14 | 15 | 16 | 17 | 18 | 19 | 20 | 21 | 22 | 23 | 24 | 25 | 26 | 27 | 28 | 29 | 30 | 31 |
| Januar | F | S | S | M | D | M | D | F | S | S | M | D | M | D | F | S | S | M | D | M | D | F | S | S | M | D | M | D | F | S | S |
| Februar | M | D | M | D | F | S | S | M | D | M | D | F | S | S | M | D | M | D | F | S | S | M | D | M | D | F | S | S | |||
| März | M | D | M | D | F | S | S | M | D | M | D | F | S | S | M | D | M | D | F | S | S | M | D | M | D | F | S | S | M | D | M |
| April | D | F | S | S | M | D | M | D | F | S | S | M | D | M | D | F | S | S | M | D | M | D | F | S | S | M | D | M | D | F | |
| Mai | S | S | M | D | M | D | F | S | S | M | D | M | D | F | S | S | M | D | M | D | F | S | S | M | D | M | D | F | S | S | M |
| Juni | D | M | D | F | S | S | M | D | M | D | F | S | S | M | D | M | D | F | S | S | M | D | M | D | F | S | S | M | D | M | |
| Juli | D | F | S | S | M | D | M | D | F | S | S | M | D | M | D | F | S | S | M | D | M | D | F | S | S | M | D | M | D | F | S |
| August | S | M | D | M | D | F | S | S | M | D | M | D | F | S | S | M | D | M | D | F | S | S | M | D | M | D | F | S | S | M | D |
| September | M | D | F | S | S | M | D | M | D | F | S | S | M | D | M | D | F | S | S | M | D | M | D | F | S | S | M | D | M | D | |
| Oktober | F | S | S | M | D | M | D | F | S | S | M | D | M | D | F | S | S | M | D | M | D | F | S | S | M | D | M | D | F | S | S |
| November | M | D | M | D | F | S | S | M | D | M | D | F | S | S | M | D | M | D | F | S | S | M | D | M | D | F | S | S | M | D | |
| Dezember | M | D | F | S | S | M | D | M | D | F | S | S | M | D | M | D | F | S | S | M | D | M | D | F | S | S | M | D | M | D | F |
| 2028 | 1 | 2 | 3 | 4 | 5 | 6 | 7 | 8 | 9 | 10 | 11 | 12 | 13 | 14 | 15 | 16 | 17 | 18 | 19 | 20 | 21 | 22 | 23 | 24 | 25 | 26 | 27 | 28 | 29 | 30 | 31 |
| Januar | S | S | M | D | M | D | F | S | S | M | D | M | D | F | S | S | M | D | M | D | F | S | S | M | D | M | D | F | S | S | M |
| Februar | D | M | D | F | S | S | M | D | M | D | F | S | S | M | D | M | D | F | S | S | M | D | M | D | F | S | S | M | D | ||
| März | M | D | F | S | S | M | D | M | D | F | S | S | M | D | M | D | F | S | S | M | D | M | D | F | S | S | M | D | M | D | F |
| April | S | S | M | D | M | D | F | S | S | M | D | M | D | F | S | S | M | D | M | D | F | S | S | M | D | M | D | F | S | S | |
| Mai | M | D | M | D | F | S | S | M | D | M | D | F | S | S | M | D | M | D | F | S | S | M | D | M | D | F | S | S | M | D | M |
| Juni | D | F | S | S | M | D | M | D | F | S | S | M | D | M | D | F | S | S | M | D | M | D | F | S | S | M | D | M | D | F | |
| Juli | S | S | M | D | M | D | F | S | S | M | D | M | D | F | S | S | M | D | M | D | F | S | S | M | D | M | D | F | S | S | M |
| August | D | M | D | F | S | S | M | D | M | D | F | S | S | M | D | M | D | F | S | S | M | D | M | D | F | S | S | M | D | M | D |
| September | F | S | S | M | D | M | D | F | S | S | M | D | M | D | F | S | S | M | D | M | D | F | S | S | M | D | M | D | F | S | |
| Oktober | S | M | D | M | D | F | S | S | M | D | M | D | F | S | S | M | D | M | D | F | S | S | M | D | M | D | F | S | S | M | D |
| November | M | D | F | S | S | M | D | M | D | F | S | S | M | D | M | D | F | S | S | M | D | M | D | F | S | S | M | D | M | D | |
| Dezember | F | S | S | M | D | M | D | F | S | S | M | D | M | D | F | S | S | M | D | M | D | F | S | S | M | D | M | D | F | S | S |
| 2029 | 1 | 2 | 3 | 4 | 5 | 6 | 7 | 8 | 9 | 10 | 11 | 12 | 13 | 14 | 15 | 16 | 17 | 18 | 19 | 20 | 21 | 22 | 23 | 24 | 25 | 26 | 27 | 28 | 29 | 30 | 31 |
| Januar | M | D | M | D | F | S | S | M | D | M | D | F | S | S | M | D | M | D | F | S | |||||||||||