Ferienhaus B2576 in Kirksvej 7, Bjerregard
Dieses lichtdurchflutete Sommerhaus wurde im Jahr 2022 renoviert und hat einiges zu bieten. Hier findest du immer ein schönes Plätzchen zum Entspannen, egal bei welchem Wetter. Ob auf der südlichen, teilweise überdachten Terrasse oder in dem schönen Wintergarten, hier findet jeder seinen Lieblingsplatz.
Abends könnt ihr euch bequem vor den Kamin kuscheln oder die Sauna zum Ausspannen nutzen. In den 3 Schlafräumen finden 6 Personen Platz und auch 1 Hund ist in diesem Ferienhaus herzlich Willkommen. Zwischen Fjord und Meer gelegen, seid ihr hier mitten in der Natur und habt es trotzdem nicht weit bis zum nächsten Kaufmann.
Helles und gemütliches Ferienhaus mit Kamin und großzügigem Wintergarten
Dieses typisch skandinavische Sommerhaus überzeugt durch seine gemütliche Einrichtung und den schönen Wintergarten, bei dem du bei jedem Wetter eine hyggelige Atmosphäre genießen kannst. Das schöne Rasengrundstück lädt zum Fußballspielen oder Wikingerschach ein. Hier kann man sich herrlich austoben.
Das klassische Ferienhaus im Kirksvej 7 bietet viele tolle Annehmlichkeiten, die zu einem gelungenen Urlaub beitragen. Der große und helle Wohnbereich mit offener Küche und Essecke bietet viel Platz für einen schönen Abend vor dem Kamin oder für einen Spieleabend mit der Familie. In der Küche findest du natürlich einen Geschirrspüler und auch eine Waschmaschine sowie ein Trockner sind in dem Ferienhaus vorhanden.
Mit der stromsparenden Wärmepumpe bringst du wohlige Wärme in das gemütliche Sommerhaus. Das Badezimmer ist außerdem mit einer Fußbodenheizung ausgestattet. In der Sauna kannst du dich zusätzlich nach einem schönen Tag an der dänischen Westküste entspannen.
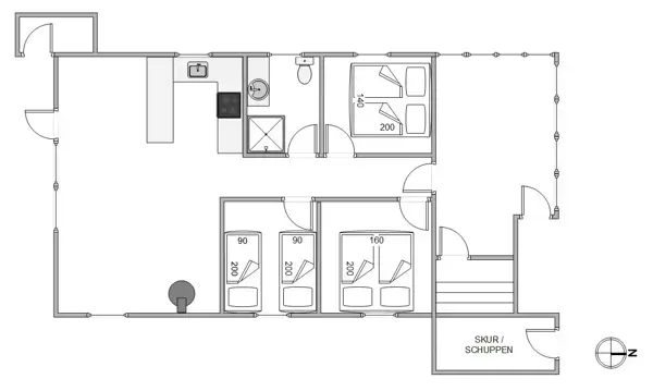
Hier findest du genug Platz und Schlafmöglichkeiten für 6 Personen. Dazu stehen euch 2 Schlafzimmer mit einem Doppelbett, sowie ein Schlafzimmer mit 2 Einzelbetten zur Verfügung. In den bequemen Betten könnt ihr euch gut erholen und neue Kraft für den nächsten Tag tanken.
Rund um das typisch dänische Ferienhaus findest du, für jedes Wetter passend, eine schöne Ecke zum Entspannen. Sei es die teilweise überdachte, geschlossene Südterrasse, der Wintergarten oder eine der kleinen Sitzecken. Hier kannst du deinen Kindern beim Spielen im Sandkasten oder Schaukeln zuschauen oder einfach nur die Seele baumeln lassen. Für schöne Stunden draußen, sorgen gemütliche Gartenmöbel und auch ein Grill darf natürlich nicht fehlen.
Mitten in der Natur und trotzdem alles was man braucht
Wenn du einen Ort der Entspannung, mitten in der Natur suchst, bist du hier genau richtig. Dieses schöne Ferienhaus liegt am südlichen Ende des Ringkøbingfjords und auch zum Meer der dänischen Westküste ist es nicht weit. Die Umgebung lädt zu ausgedehnten Spaziergängen und Radtouren in den Dünen oder in der Heide ein.
Die nächste Einkaufsmöglichkeit, für die frischen Brötchen am Morgen, befindet sich gerade einmal 50 m entfernt, so dass man sich perfekt mit allem nötigen versorgen kann. Auch die nächstgrößeren Städte Hvide Sande und Nørre Nebel haben zahlreiches zu bieten. Hier findest du Restaurants und Cafés und auch einige schöne Geschäfte. Auch für Wassersport- und Angelbegeisterte bieten sich hier viele Möglichkeiten in der näheren Umgebung.
Hausbilder
Ausstattung
Allgemeines
- Anzahl Haustiere maximal: 1
- Anzahl Personen: 6
- Anzahl Personen: 6
- Baujahr: 1975
- Grundstücksfläche: 1.360 m²
- Haustiere erlaubt
- Nichtraucher
- Renovierung: 2022
- Wohnfläche: 75 m²
Entfernungen
- Abstand Einkauf: 50 m
- Abstand Wasser: 1.200 m Nordsee
Wohnbereich
- Flachbildfernseher
- Kaminofen
Schlafbereich
- Anzahl Doppelbetten: 2
- Anzahl Einzelbetten: 2
- Anzahl Schlafzimmer: 3
Küche
- Geschirrspüler
- Herd Induktion mit Backofen
- Kühlschrank
- Mikrowelle
- Tiefkühler: 60 l
Bad
- Anzahl Badezimmer: 1
- Trockner
- Waschmaschine
Wellness
- Sauna
Multimedia
- CD-Player
- Deutsches Fernsehen
- Internationales Fernsehen
- Internet
- Radio
Aussenbereich
- Gartenmöbel
- Grundstück Rasengrundstück
- Grill
- Liegestuhl
- Sandkiste
- Schaukel
- Sonnenschirm
- Terrasse, geschlossen
- Terrasse, überdacht
Sonstiges
-
Besonderheiten Abstellraum
iPod Dock - Fußbodenheizung Bad
- Hauswechseltag Sonntag
- Wärmepumpe
- Wintergarten
Neben- und Verbrauchskosten
Die aktuellen Verbrauchskosten finden Sie im nächsten Schritt im Buchungsformular.
Raumaufteilung
Lageplan
Ferienhaus B2576
Kirksvej 7
Bjerregård
6960 Hvide Sande
Belegungskalender
- Reisedauer auswählen
- Anzahl Reisende auswählen
- Anreisetag im Belegungskalender anklicken
- Sie bekommen Verfügbarkeit und Preis angezeigt
| 2026 | 1 | 2 | 3 | 4 | 5 | 6 | 7 | 8 | 9 | 10 | 11 | 12 | 13 | 14 | 15 | 16 | 17 | 18 | 19 | 20 | 21 | 22 | 23 | 24 | 25 | 26 | 27 | 28 | 29 | 30 | 31 |
| April | M | D | F | S | S | M | D | M | D | F | S | S | M | D | M | D | F | S | S | M | D | M | D | F | S | S | M | D | M | D | |
| Mai | F | S | S | M | D | M | D | F | S | S | M | D | M | D | F | S | S | M | D | M | D | F | S | S | M | D | M | D | F | S | S |
| Juni | M | D | M | D | F | S | S | M | D | M | D | F | S | S | M | D | M | D | F | S | S | M | D | M | D | F | S | S | M | D | |
| Juli | M | D | F | S | S | M | D | M | D | F | S | S | M | D | M | D | F | S | S | M | D | M | D | F | S | S | M | D | M | D | F |
| August | S | S | M | D | M | D | F | S | S | M | D | M | D | F | S | S | M | D | M | D | F | S | S | M | D | M | D | F | S | S | M |
| September | D | M | D | F | S | S | M | D | M | D | F | S | S | M | D | M | D | F | S | S | M | D | M | D | F | S | S | M | D | M | |
| Oktober | D | F | S | S | M | D | M | D | F | S | S | M | D | M | D | F | S | S | M | D | M | D | F | S | S | M | D | M | D | F | S |
| November | S | M | D | M | D | F | S | S | M | D | M | D | F | S | S | M | D | M | D | F | S | S | M | D | M | D | F | S | S | M | |
| Dezember | D | M | D | F | S | S | M | D | M | D | F | S | S | M | D | M | D | F | S | S | M | D | M | D | F | S | S | M | D | M | D |
| 2027 | 1 | 2 | 3 | 4 | 5 | 6 | 7 | 8 | 9 | 10 | 11 | 12 | 13 | 14 | 15 | 16 | 17 | 18 | 19 | 20 | 21 | 22 | 23 | 24 | 25 | 26 | 27 | 28 | 29 | 30 | 31 |
| Januar | F | S | S | M | D | M | D | F | S | S | M | D | M | D | F | S | S | M | D | M | D | F | S | S | M | D | M | D | F | S | S |
| Februar | M | D | M | D | F | S | S | M | D | M | D | F | S | S | M | D | M | D | F | S | S | M | D | M | D | F | S | S | |||
| März | M | D | M | D | F | S | S | M | D | M | D | F | S | S | M | D | M | D | F | S | S | M | D | M | D | F | S | S | M | D | M |
| April | D | F | S | S | M | D | M | D | F | S | S | M | D | M | D | F | S | S | M | D | M | D | F | S | S | M | D | M | D | F | |
| Mai | S | S | M | D | M | D | F | S | S | M | D | M | D | F | S | S | M | D | M | D | F | S | S | M | D | M | D | F | S | S | M |
| Juni | D | M | D | F | S | S | M | D | M | D | F | S | S | M | D | M | D | F | S | S | M | D | M | D | F | S | S | M | D | M | |
| Juli | D | F | S | S | M | D | M | D | F | S | S | M | D | M | D | F | S | S | M | D | M | D | F | S | S | M | D | M | D | F | S |
| August | S | M | D | M | D | F | S | S | M | D | M | D | F | S | S | M | D | M | D | F | S | S | M | D | M | D | F | S | S | M | D |
| September | M | D | F | S | S | M | D | M | D | F | S | S | M | D | M | D | F | S | S | M | D | M | D | F | S | S | M | D | M | D | |
| Oktober | F | S | S | M | D | M | D | F | S | S | M | D | M | D | F | S | S | M | D | M | D | F | S | S | M | D | M | D | F | S | S |
| November | M | D | M | D | F | S | S | M | D | M | D | F | S | S | M | D | M | D | F | S | S | M | D | M | D | F | S | S | M | D | |
| Dezember | M | D | F | S | S | M | D | M | D | F | S | S | M | D | M | D | F | S | S | M | D | M | D | F | S | S | M | D | M | D | F |
| 2028 | 1 | 2 | 3 | 4 | 5 | 6 | 7 | 8 | 9 | 10 | 11 | 12 | 13 | 14 | 15 | 16 | 17 | 18 | 19 | 20 | 21 | 22 | 23 | 24 | 25 | 26 | 27 | 28 | 29 | 30 | 31 |
| Januar | S | S | M | D | M | D | F | S | S | M | D | M | D | F | S | S | M | D | M | D | F | S | S | M | D | M | D | F | S | S | M |
| Februar | D | M | D | F | S | S | M | D | M | D | F | S | S | M | D | M | D | F | S | S | M | D | M | D | F | S | S | M | D | ||
| März | M | D | F | S | S | M | D | M | D | F | S | S | M | D | M | D | F | S | S | M | D | M | D | F | S | S | M | D | M | D | F |
| April | S | S | M | D | M | D | F | S | S | M | D | M | D | F | S | S | M | D | M | D | F | S | S | M | D | M | D | F | S | S | |
| Mai | M | D | M | D | F | S | S | M | D | M | D | F | S | S | M | D | M | D | F | S | S | M | D | M | D | F | S | S | M | D | M |
| Juni | D | F | S | S | M | D | M | D | F | S | S | M | D | M | D | F | S | S | M | D | M | D | F | S | S | M | D | M | D | F | |
| Juli | S | S | M | D | M | D | F | S | S | M | D | M | D | F | S | S | M | D | M | D | F | S | S | M | D | M | D | F | S | S | M |
| August | D | M | D | F | S | S | M | D | M | D | F | S | S | M | D | M | D | F | S | S | M | D | M | D | F | S | S | M | D | M | D |
| September | F | S | S | M | D | M | D | F | S | S | M | D | M | D | F | S | S | M | D | M | D | F | S | S | M | D | M | D | F | S | |
| Oktober | S | M | D | M | D | F | S | S | M | D | M | D | F | S | S | M | D | M | D | F | S | S | M | D | M | D | F | S | S | M | D |
| November | M | D | F | S | S | M | D | M | D | F | S | S | M | D | M | D | F | S | S | M | D | M | D | F | S | S | M | D | M | D | |
| Dezember | F | S | S | M | D | M | D | F | S | S | M | D | M | D | F | S | S | M | D | M | D | F | S | S | M | D | M | D | F | S | S |
| 2029 | 1 | 2 | 3 | 4 | 5 | 6 | 7 | 8 | 9 | 10 | 11 | 12 | 13 | 14 | 15 | 16 | 17 | 18 | 19 | 20 | 21 | 22 | 23 | 24 | 25 | 26 | 27 | 28 | 29 | 30 | 31 |
| Januar | M | D | M | D | F | S | S | M | D | M | D | F | S | S | M | D | M | D | F | S | |||||||||||