
Ferienhaus iW1220 in Lodbergsvej 205, Søndervig
Am Lodbergsvej 205 in Søndervig findet ihr dieses schöne Ferienhaus in der ersten Dünenreihe, nur 100 Meter von der Nordsee entfernt. Das Haus liegt auf einem schönen Naturgrundstück nur wenige Gehminuten vom Zentrum von Søndervig entfernt, sodass ihr euren Urlaub wirklich inmitten von Strand und Stadt verbringen können. Das Haus bietet Platz für bis zu 6 Personen und ist der ideale Rahmen für die Urlaubspläne einer kleinen Familie oder einem Pärchenurlaub.
Heller Innenraum mit Platz für Gemütlichkeit
Am Ende einer ruhigen Sackgasse liegt dieses schöne Ferienhaus, das mit seiner einzigartigen Lage die Nordsee als Nachbarn hat. Das Haus ist hell und einladend mit einem Wohn- und Essbereich, der offen mit der Küche verbunden ist. Die Küche ist gut ausgestattet, sodass ihr hier eure leckeren Köstlichkeiten zubereiten könnt.Der große Wohnbereich wirkt freundlich und geräumig, was auch an der hohen Decke und den hellen Decken und Wänden liegt, die eine schöne Atmosphäre schaffen. Der Holzofen befindet sich zentral im Wohnzimmer und sorgt für zusätzliche Gemütlichkeit in den dunklen Abendstunden. Hier könnt ihr es euch mit einem guten Buch gemütlich machen und entspannen.
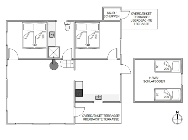
Das Ferienhaus hat 2 geräumige Schlafzimmer, die beide mit bequemen Doppelbetten (140x200) ausgestattet sind. Darüber hinaus gibt es einen Dachboden mit 2 weiteren Betten. Diese Betten sind bei den jüngsten Familienmitgliedern garantiert sehr beliebt. Das Badezimmer ist mit einer Fußbodenheizung ausgestattet, da ist ein Start in den Tag mit warmen Füßen garantiert. Eine energiesparende Luft-zu-Luft Wärmepumpe sorgt für ein konstantes angenehmes Raumklima.
Schöne, teils überdachte Terrasse im Lodbergsvej 205 in Søndervig
Die Terrasse selbst ist mit Gartenmöbeln und einem Grill ausgestattet, sodass ihr den Sommer draußen mit Grillen und Sonnenbaden genießen könnt. Die Terrasse ist teilweise überdacht, sodass ihr euch keine Sorgen machen müsst, dass das unbeständige dänische Wetter eure Essenspläne durcheinanderbringt.
In der ersten Dünenreihe gelegen, nur 100 Meter vom Wasser entfernt
Die einzigartige Lage ist einer der größten Pluspunkte dieses Ferienhauses. Mit nur ca. 100 m bis zur Nordsee ist es ein Paradies für Wasserratten, Sonnenanbeter und Muschel- oder Bernsteinsucher. Am Abend die immer wieder wunderschönen Sonnenuntergänge zu bewundern oder oben auf der Düne den endlosen Sternenhimmel zu genießen, das ist Urlaubsfeeling pur. Die ca. 500 m zum Einkaufen oder zu den verschiedenen Restaurants, eignen sich wunderbar, um dem Auto auch einen Urlaub zu gönnen.
Hausbilder
Ausstattung
Allgemeines
- Allergikerfreundlich
- Anzahl Personen: 6
- Baujahr: 1995
- Grundstücksfläche: 530 m²
- Nichtraucher
- Renovierung: 2015
- Wohnfläche: 53 m²
Entfernungen
- Abstand Einkauf: 500 m
- Abstand Wasser: 100 m Nordsee
Wohnbereich
- Flachbildfernseher
- Kaminofen
Schlafbereich
- Anzahl Doppelbetten: 2
- Anzahl Schlafzimmer: 2
Küche
- Geschirrspüler
- Herd mit Backofen
- Kühlschrank mit Gefrierfach
- Mikrowelle
Bad
- Anzahl Badezimmer: 1
- Waschmaschine
Multimedia
- CD-Player
- Deutsches Fernsehen Dänische und Deutsche
- Internationales Fernsehen
- Internet
- Radio
Aussenbereich
- Gartenmöbel
- Grundstück Naturgrundstück
- Grill
- Liegestuhl
- Sandkiste
- Terrasse, überdacht
Sonstiges
- Fußbodenheizung Bad
- Hauswechseltag Samstag
- Kinderbett
- Kinderhochstuhl
- Wärmepumpe
Neben- und Verbrauchskosten
Die aktuellen Verbrauchskosten finden Sie im nächsten Schritt im Buchungsformular.
Raumaufteilung

Lageplan
Ferienhaus iW1220
Lodbergsvej 205
Søndervig
6950 Ringkøbing
Belegungskalender
- Reisedauer auswählen
- Anzahl Reisende auswählen
- Anreisetag im Belegungskalender anklicken
- Sie bekommen Verfügbarkeit und Preis angezeigt
2025 | 1 | 2 | 3 | 4 | 5 | 6 | 7 | 8 | 9 | 10 | 11 | 12 | 13 | 14 | 15 | 16 | 17 | 18 | 19 | 20 | 21 | 22 | 23 | 24 | 25 | 26 | 27 | 28 | 29 | 30 | 31 |
Oktober | M | D | F | S | S | M | D | M | D | F | S | S | M | D | M | D | F | S | S | M | D | M | D | F | S | S | M | D | M | D | F |
November | S | S | M | D | M | D | F | S | S | M | D | M | D | F | S | S | M | D | M | D | F | S | S | M | D | M | D | F | S | S | |
Dezember | M | D | M | D | F | S | S | M | D | M | D | F | S | S | M | D | M | D | F | S | S | M | D | M | D | F | S | S | M | D | M |
2026 | 1 | 2 | 3 | 4 | 5 | 6 | 7 | 8 | 9 | 10 | 11 | 12 | 13 | 14 | 15 | 16 | 17 | 18 | 19 | 20 | 21 | 22 | 23 | 24 | 25 | 26 | 27 | 28 | 29 | 30 | 31 |
Januar | D | F | S | S | M | D | M | D | F | S | S | M | D | M | D | F | S | S | M | D | M | D | F | S | S | M | D | M | D | F | S |
Februar | S | M | D | M | D | F | S | S | M | D | M | D | F | S | S | M | D | M | D | F | S | S | M | D | M | D | F | S | |||
März | S | M | D | M | D | F | S | S | M | D | M | D | F | S | S | M | D | M | D | F | S | S | M | D | M | D | F | S | S | M | D |
April | M | D | F | S | S | M | D | M | D | F | S | S | M | D | M | D | F | S | S | M | D | M | D | F | S | S | M | D | M | D | |
Mai | F | S | S | M | D | M | D | F | S | S | M | D | M | D | F | S | S | M | D | M | D | F | S | S | M | D | M | D | F | S | S |
Juni | M | D | M | D | F | S | S | M | D | M | D | F | S | S | M | D | M | D | F | S | S | M | D | M | D | F | S | S | M | D | |
Juli | M | D | F | S | S | M | D | M | D | F | S | S | M | D | M | D | F | S | S | M | D | M | D | F | S | S | M | D | M | D | F |
August | S | S | M | D | M | D | F | S | S | M | D | M | D | F | S | S | M | D | M | D | F | S | S | M | D | M | D | F | S | S | M |
September | D | M | D | F | S | S | M | D | M | D | F | S | S | M | D | M | D | F | S | S | M | D | M | D | F | S | S | M | D | M | |
Oktober | D | F | S | S | M | D | M | D | F | S | S | M | D | M | D | F | S | S | M | D | M | D | F | S | S | M | D | M | D | F | S |
November | S | M | D | M | D | F | S | S | M | D | M | D | F | S | S | M | D | M | D | F | S | S | M | D | M | D | F | S | S | M | |
Dezember | D | M | D | F | S | S | M | D | M | D | F | S | S | M | D | M | D | F | S | S | M | D | M | D | F | S | S | M | D | M | D |
2027 | 1 | 2 | 3 | 4 | 5 | 6 | 7 | 8 | 9 | 10 | 11 | 12 | 13 | 14 | 15 | 16 | 17 | 18 | 19 | 20 | 21 | 22 | 23 | 24 | 25 | 26 | 27 | 28 | 29 | 30 | 31 |
Januar | F | S | S | M | D | M | D | F | S | S | M | D | M | D | F | S | S | M | D | M | D | F | S | S | M | D | M | D | F | S | S |
Februar | M | D | M | D | F | S | S | M | D | M | D | F | S | S | M | D | M | D | F | S | S | M | D | M | D | F | S | S | |||
März | M | D | M | D | F | S | S | M | D | M | D | F | S | S | M | D | M | D | F | S | S | M | D | M | D | F | S | S | M | D | M |
April | D | F | S | S | M | D | M | D | F | S | S | M | D | M | D | F | S | S | M | D | M | D | F | S | S | M | D | M | D | F | |
Mai | S | S | M | D | M | D | F | S | S | M | D | M | D | F | S | S | M | D | M | D | F | S | S | M | D | M | D | F | S | S | M |
Juni | D | M | D | F | S | S | M | D | M | D | F | S | S | M | D | M | D | F | S | S | M | D | M | D | F | S | S | M | D | M | |
Juli | D | F | S | S | M | D | M | D | F | S | S | M | D | M | D | F | S | S | M | D | M | D | F | S | S | M | D | M | D | F | S |
August | S | M | D | M | D | F | S | S | M | D | M | D | F | S | S | M | D | M | D | F | S | S | M | D | M | D | F | S | S | M | D |
September | M | D | F | S | S | M | D | M | D | F | S | S | M | D | M | D | F | S | S | M | D | M | D | F | S | S | M | D | M | D | |
Oktober | F | S | S | M | D | M | D | F | S | S | M | D | M | D | F | S | S | M | D | M | D | F | S | S | M | D | M | D | F | S | S |
November | M | D | M | D | F | S | S | M | D | M | D | F | S | S | M | D | M | D | F | S | S | M | D | M | D | F | S | S | M | D | |
Dezember | M | D | F | S | S | M | D | M | D | F | S | S | M | D | M | D | F | S | S | M | D | M | D | F | S | S | M | D | M | D | F |
2028 | 1 | 2 | 3 | 4 | 5 | 6 | 7 | 8 | 9 | 10 | 11 | 12 | 13 | 14 | 15 | 16 | 17 | 18 | 19 | 20 | 21 | 22 | 23 | 24 | 25 | 26 | 27 | 28 | 29 | 30 | 31 |
Januar | S | S | M | D | M | D | F | S | S | M | D | M | D | F | S | S | M | D | M | D | F | S | S | M | D | M | D | F | S | S | M |
Februar | D | M | D | F | S | S | M | D | M | D | F | S | S | M | D | M | D | F | S | S | M | D | M | D | F | S | S | M | D | ||
März | M | D | F | S | S | M | D | M | D | F | S | S | M | D | M | D | F | S | S | M | D | M | D | F | S | S | M | D | M | D | F |
April | S | S | M | D | M | D | F | S | S | M | D | M | D | F | S | S | M | D | M | D | F | S | S | M | D | M | D | F | S | S | |
Mai | M | D | M | D | F | S | S | M | D | M | D | F | S | S | M | D | M | D | F | S | S | M | D | M | D | F | S | S | M | D | M |
Juni | D | F | S | S | M | D | M | D | F | S | S | M | D | M | D | F | S | S | M | D | M | D | F | S | S | M | D | M | D | F | |
Juli | S | S | M | D | M | D | F | S | S | M | D | M | D | F | S | S | M | D | M | D | F | S | S | M | D | M | D | F | S | S | M |
August | D | M | D | F | S | S | M | D | M | D | F | S | S | M | D | M | D | F | S | S | M | D | M | D | F | S | S | M | D | M | D |
September | F | S | S | M | D | M | D | F | S | S | M | D | M | D | F | S | S | M | D | M | D | F | S | S | M | D | M | D | F | S | |
Oktober | S | M | D | M | D | F | S | S | M | D | M | D | F | S | S | M | D | M | D |