Ferienhaus 163 in Søndervig / Holmsland Klit
Ferienhaus 163 in Søndervig / Holmsland Klit
pro Woche ab
623 €
8 Personen
keine Haustiere
4 Schlafzimmer
500 m zum Wasser
Standort Ferienhaus 163 in Søndervig / Holmsland Klit, Karte

Ferienhaus 163 in Nordlysvej 9, Søndervig

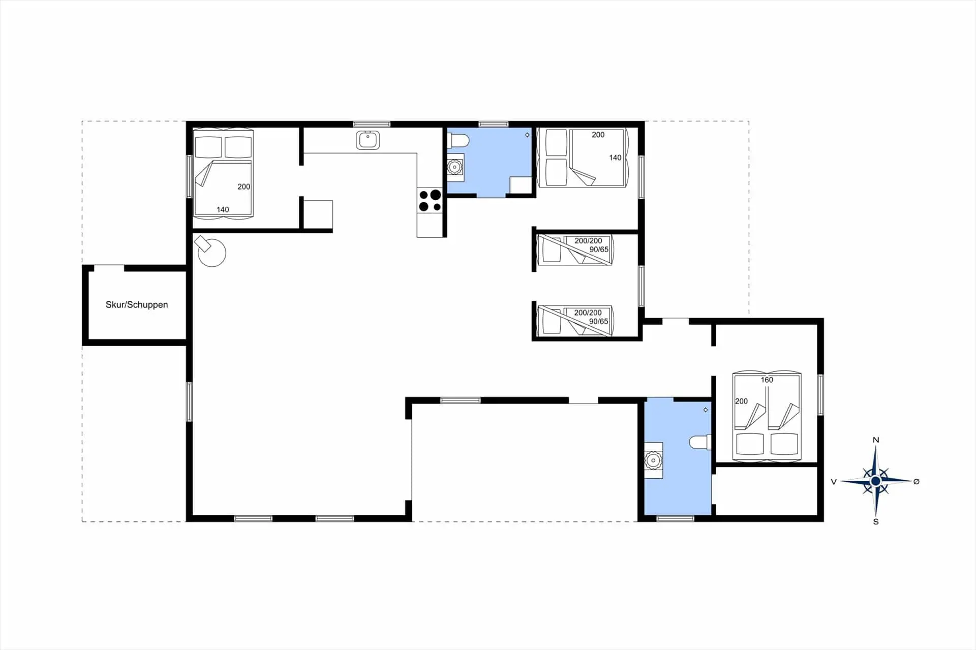
Mit vier Schlafzimmern, zwei Badezimmern und einem großen Wohnzimmer bietet dieses große, gut ausgestattete Ferienhaus in einem beliebten Ferienhausgebiet südlich von Søndervig Platz für bis zu acht Personen. Draußen gibt es viel Platz zum Spielen und Entspannen auf dem Naturgrundstück, und die Nordsee ist nur 500 m entfernt.

Einrichtung
Das 113 m² große Ferienhaus ist gemütlich und funktionell eingerichtet und präsentiert sich nun nach der letzten Renovierung im Jahr 2021 hell und einladend. Die Küche verfügt über einen Geschirrspüler und alles, was man für die Zubereitung leckerer Mahlzeiten braucht. Dank der offenen Verbindung zum Wohnzimmer kann man beim Kartoffelschälen gemütlich mit der Familie plaudern. Neben der Küche steht ein langer Tisch, an dem acht Personen Platz finden, während die Sitzecke mit Sofas und Sesseln für Gemütlichkeit sorgt. Im Wohnzimmer gibt es einen Flachbildfernseher und einen Holzofen, und in einem der Bäder steht Ihnen einen Sauna zur Verfügung. Mit vier Schlafzimmern ist das Haus ideal für zwei Familien mit Kindern oder einen Urlaub mit den Großeltern. Als Neuheit im Jahr 2024 wurde ein Depotraum mit einem zusätzlichen Gefrierschrank sowie 3 Steckdosen eingerichtet, die das Laden von Elektrofahrrädern in einem verschlossenen Raum ermöglichen.

Außenbereich
Rund um das Ferienhaus gibt es einen Sandkasten, eine Schaukel und mehrere Terrassenbereiche, darunter eine gemütliche Ecke nach Süden, die gut geschützt zwischen den Hausflügeln liegt. Auf der Ostseite gibt es eine überdachte Terrasse und auch auf der Westseite kann man sitzen und die Sonne langsam hinter den Dünen untergehen sehen. Gartenmöbel, Liegestühle und ein Grill stehen zur Verfügung. Das Naturgrundstück und die umliegende Heidelandschaft bilden einen schönen Rahmen für Ihren Urlaub.

Lage
Nordlysvej liegt in einem attraktiven Ferienhausgebiet auf Holmsland Klit, südlich von Søndervig. Das gemütliche Stadtzentrum ist leicht zu erreichen, wo man gut essen gehen oder mit einem Eis in der Hand von Geschäft zu Geschäft bummeln kann - oder wie wäre es mit einer Partie Minigolf oder einem Besuch im Badeland? Sie können auch den ganzen Tag am Søndervig Strand verbringen, einem der schönsten Strände der Westküste. Vom Ferienhaus aus sind es nur fünf Minuten zu Fuß bis zur Nordsee, und wenn Sie Lust auf einen Spaziergang zum Put-and-Take-See haben oder den Ringkøbing Fjord über Bagges Dæmning überqueren möchten, ist auch das kein Problem. Der Leuchtturm von Lyngvig bietet den besten Panoramablick über Holmsland Klit, und in der Fischerstadt Hvide Sande kann man in den Räuchereien einkaufen oder Surfen und andere Wassersportarten ausprobieren.

GRATIS! Kostenloser Verleih von Kinderreisebetten und Hochstühlen. Sie können ebenfalls Hundebetten ausleihen, allerdings nur dann, wenn auch in Ihrem Mietobjekt ein Hund erlaubt ist. Die Abholung und Rückgabe aller Gegenstände erfolgt bei Feriepartner Hvide Sande.

Lademöglichkeit für E-Autos: An diesem Haus gibt es eine Steckdose für Elektroauto, an denen Sie Ihr Elektroauto aufladen können, wenn Sie ein Kabel in Form eines CEE-Steckers mitbringen.


Hausbilder

Bild 1 von 48 Bild 2 von 48 Bild 3 von 48 Bild 4 von 48 Bild 5 von 48 Bild 6 von 48 Bild 7 von 48 Bild 8 von 48 Bild 9 von 48 Bild 10 von 48 Bild 11 von 48 Bild 12 von 48 Bild 13 von 48 Bild 14 von 48 Bild 15 von 48 Bild 16 von 48 Bild 17 von 48 Bild 18 von 48 Bild 19 von 48 Bild 20 von 48 Bild 21 von 48 Bild 22 von 48 Bild 23 von 48 Bild 24 von 48 Bild 25 von 48 Bild 26 von 48 Bild 27 von 48 Bild 28 von 48 Bild 29 von 48 Bild 30 von 48 Bild 31 von 48 Bild 32 von 48 Bild 33 von 48 Bild 34 von 48 Bild 35 von 48 Bild 36 von 48 Bild 37 von 48 Bild 38 von 48 Bild 39 von 48 Bild 40 von 48 Bild 41 von 48 Bild 42 von 48 Bild 43 von 48 Bild 44 von 48 Bild 45 von 48 Bild 46 von 48 Bild 47 von 48 Bild 48 von 48

Ausstattung

Allgemeines

  • Anzahl Personen: 8
  • Baujahr: 1978
  • Energiesparhaus
  • Grundstücksfläche: 3.200 m² Naturgrundstück
  • Inkl. Endreinigung
  • Kinderfreundlich
  • Nichtraucher
  • Renovierung: 2021
  • Wohnfläche: 113 m²

Entfernungen

  • Abstand Einkauf: 1.900 m Ganzjährig geöffnet
  • Abstand Golfplatz: 3.400 m
  • Abstand Restaurant: 1.900 m
  • Abstand Schwimmhalle: 2.500 m
  • Abstand Strand: 500 m Sand-/Steinstrand
  • Abstand Küste: 500 m
  • Abstand Fjord: 1.700 m

Wohnbereich

  • Kaminofen

Schlafbereich

  • Anzahl Doppelbetten: 1 200 x 140 cm
    200 x 160 cm
  • Anzahl Doppelbetten: 2 200 x 140 cm
    200 x 160 cm
  • Anzahl Etagenbetten : 1 80 x 200 cm. & 65 x 200
  • Anzahl Etagenbetten : 1 80 x 200 cm. & 65 x 200

Küche

  • Dunstabzug
  • Extra Backofen Airfryer
  • Geschirrspüler
  • Kaffeemaschine
  • Kochplatten: 1 elektrische
  • Kühlschrank l mit Gefrierfach, 60 ltr. frost
  • Kühlschrank l mit Gefrierfach, zusätzlicher 60-Liter-Gefrierschrank
  • Mikrowelle
  • Wasserkocher

Bad

  • Anzahl Duschen: 1
  • Anzahl Duschen: 1
  • Anzahl Toiletten: 1
  • Anzahl Toiletten: 1
  • Trockner
  • Waschmaschine

Wellness

  • Sauna

Multimedia

  • Deutsches Fernsehen
  • DVD-Player
  • Internationales Fernsehen
  • Internationales Fernsehen norwegische Programme
    Schwedisches Fernsehen
  • Internationales Fernsehen Dänisches Fernsehen, You See stor TV pakke
  • Internet Kostenloses Wi-Fi - Mehr als 100 Mbit
  • Radio

Aussenbereich

  • Gartenmöbel
  • Grill
  • Liegestuhl
  • Sandkiste
  • Schaukel
  • Terrasse: 40 m² Offene Terrasse
    Überdachte Terrasse

Sonstiges

  • Bei diesem Haus inkl. Wasser
  • Bügelbrett
  • Bügeleisen
  • Kinderbett
  • Kinderhochstuhl
  • Ladestation für Elektroautos CEE-Stecker mit 16 Ampere vorhanden, Kabel mitbringen
  • Wärmepumpe Ohne Kühlfunktion
  • Sonstiges Chromecast

Neben- und Verbrauchskosten

Die aktuellen Verbrauchskosten finden Sie im nächsten Schritt im Buchungsformular.

Raumaufteilung

Grundriss

Lageplan

Adresse
Ferienhaus 163
Nordlysvej 9
Søndervig
6950 Ringkøbing

Die Inhalte sind aufgrund Ihrer Cookie-Einstellungen nicht verfügbar. Um diese Inhalte zu nutzen, stimmen Sie bitte der Verwendung von "Präferenz"-Cookies zu.

Präferenz-Cookies erlauben Einstellungen

Belegungskalender

  1. Reisedauer auswählen
  2. Anzahl Reisende auswählen
  3. Anreisetag im Belegungskalender anklicken
  4. Sie bekommen Verfügbarkeit und Preis angezeigt
Bitte beachten Sie, dass sich bei Änderungen des Reisezeitraumes auch Änderungen bei der Hausbeschreibung und/oder der Ausstattung ergeben können.
frei
belegt
gewählter Zeitraum
2026 1 2 3 4 5 6 7 8 9 10 11 12 13 14 15 16 17 18 19 20 21 22 23 24 25 26 27 28 29 30 31
Mai
F
S
S
M
D
M
D
F
S
S
M
D
M
D
F
S
S
M
D
M
D
F
S
S
M
D
M
D
F
S
S
Juni
M
D
M
D
F
S
S
M
D
M
D
F
S
S
M
D
M
D
F
S
S
M
D
M
D
F
S
S
M
D
 
Juli
M
D
F
S
S
M
D
M
D
F
S
S
M
D
M
D
F
S
S
M
D
M
D
F
S
S
M
D
M
D
F
August
S
S
M
D
M
D
F
S
S
M
D
M
D
F
S
S
M
D
M
D
F
S
S
M
D
M
D
F
S
S
M
September
D
M
D
F
S
S
M
D
M
D
F
S
S
M
D
M
D
F
S
S
M
D
M
D
F
S
S
M
D
M
 
Oktober
D
F
S
S
M
D
M
D
F
S
S
M
D
M
D
F
S
S
M
D
M
D
F
S
S
M
D
M
D
F
S
November
S
M
D
M
D
F
S
S
M
D
M
D
F
S
S
M
D
M
D
F
S
S
M
D
M
D
F
S
S
M
 
Dezember
D
M
D
F
S
S
M
D
M
D
F
S
S
M
D
M
D
F
S
S
M
D
M
D
F
S
S
M
D
M
D
2027 1 2 3 4 5 6 7 8 9 10 11 12 13 14 15 16 17 18 19 20 21 22 23 24 25 26 27 28 29 30 31
Januar
F
S
S
M
D
M
D
F
S
S
M
D
M
D
F
S
S
M
D
M
D
F
S
S
M
D
M
D
F
S
S
Februar
M
D
M
D
F
S
S
M
D
M
D
F
S
S
M
D
M
D
F
S
S
M
D
M
D
F
S
S
 
März
M
D
M
D
F
S
S
M
D
M
D
F
S
S
M
D
M
D
F
S
S
M
D
M
D
F
S
S
M
D
M
April
D
F
S
S
M
D
M
D
F
S
S
M
D
M
D
F
S
S
M
D
M
D
F
S
S
M
D
M
D
F
 
Mai
S
S
M
D
M
D
F
S
S
M
D
M
D
F
S
S
M
D
M
D
F
S
S
M
D
M
D
F
S
S
M
Juni
D
M
D
F
S
S
M
D
M
D
F
S
S
M
D
M
D
F
S
S
M
D
M
D
F
S
S
M
D
M
 
Juli
D
F
S
S
M
D
M
D
F
S
S
M
D
M
D
F
S
S
M
D
M
D
F
S
S
M
D
M
D
F
S
August
S
M
D
M
D
F
S
S
M
D
M
D
F
S
S
M
D
M
D
F
S
S
M
D
M
D
F
S
S
M
D
September
M
D
F
S
S
M
D
M
D
F
S
S
M
D
M
D
F
S
S
M
D
M
D
F
S
S
M
D
M
D
 
Oktober
F
S
S
M
D
M
D
F
S
S
M
D
M
D
F
S
S
M
D
M
D
F
S
S
M
D
M
D
F
S
S
November
M
D
M
D
F
S
S
M
D
M
D
F
S
S
M
D
M
D
F
S
S
M
D
M
D
F
S
S
M
D
 
Dezember
M
D
F
S
S
M
D
M
D
F
S
S
M
D
M
D
F
S
S
M
D
M
D
F
S
S
M
D
M
D
F
2028 1 2 3 4 5 6 7 8 9 10 11 12 13 14 15 16 17 18 19 20 21 22 23 24 25 26 27 28 29 30 31
Januar
S
S
M
D
M
D
F
S
S
M
D
frei
belegt
gewählter Zeitraum

FAQ

Häufig gestellte Fragen zu Ferienhäusern unseres Partners Feriepartner Danmark.

Die Kosten für Strom, Wasser, (bei einigen Häusern Gas) werden nach tagesaktuellen Preisen abgerechnet und hängen von vielen verschiedenen Faktoren ab, wie zum Beispiel Anzahl Personen, Größe des Hauses oder Ausstattung. In der Regel lässt sich sagen, dass ein Standardhaus ohne Pool, Whirlpool und Sauna im Sommer ca. 5 kWh pro Person pro Tag verbraucht. Im Winter gerne bei 10 kWh und darüber. Bei Poolhäusern mit Whirlpool und Sauna liegt der Wert im Sommer bei ca. 20 kWh und im Winter ca. bei 40 kWh. Auch hier variieren die Preise stark von Größe des Pools, Ausstattung, Größe des Hauses, Modell des Whirlpools und individuellem Verbrauch im Haus. Der Wasserverbrauch variiert ebenfalls stark und kann bei ca. 0,1-0,2 m³ pro Person pro Tag in einem Standardhaus liegen und bei Poolhäusern bei ca. 0,4-0,5 m³. Wenn eine Kaution bei der Buchung angegeben ist, ist diese angepasst an den ungefähren Durchschnittsverbrauch an Nebenkosten im Haus. 
Alle Angaben ohne Gewähr und dienen lediglich als Richtwert und nicht als tatsächliche Prognose.

Reservierungen sind in der Regel nicht möglich. In einigen Fällen ist es uns jedoch möglich, Reservierungen zu erstellen. Fragen Sie gerne direkt bei uns an, ob für dieses Haus eine Reservierung möglich ist.

Mittlerweile sind bei fast allen Feriepartner Ferienhäusern Schlüsselboxen an den Häusern angebracht. Über den “Mein Feriepartner”- Link in der Buchungsbestätigung erhalten Sie Zugang zu Ihrer Buchung und können im Fenster der Schlüsselübergabe 48 Stunden vor Anreise einen Zugangscode einsehen, über welchen Sie den Schlüssel am Haus erhalten.

Die Ferienhäuser werden zwischen 10 Uhr und 16 Uhr gereinigt und sind spätestens ab 16 Uhr bezugsbereit. Wann Ihr Ferienhaus am Anreisetag gereinigt wird, entscheidet das Büro vor Ort kurz vorher, in Absprache mit dem Servicepersonal und der effektivsten Route für die Servicekräfte. Sobald Ihr Ferienhaus bezugsbereit ist, erhalten Sie, sofern Ihre Mobilnummer korrekt angegeben ist, eine SMS von Feriepartner mit dem Bescheid und allen wichtigen Informationen zum Beziehen Ihres Ferienhauses.

Nach Aufgabe der Buchung und Bestätigung seitens Feriepartner wird die erste Rate in Höhe von 25 % des Mietpreises auf Ihrem Mietvertrag sofort fällig. Sie können die Raten und Beträge im Mietvertrag oder über “Mein Feriepartner” einsehen. Bis 70 Tage vor Anreise ist die Frist für den noch offenen Restbetrag Ihrer Buchung. Sind weniger als 70 Tage bis zur Anreise, wird der gesamte Betrag in einer Rate fällig.

Bei Feriepartner ist eine Reiserücktrittsversicherung immer im Mietpreis inklusive enthalten. Sie erhalten Informationen zu den Bedingungen nach Abschluss der Buchung oder bei der Versicherungsgesellschaft Tryg A/S. Bei Stornierungen ohne den Gebrauch der Reiserücktrittsversicherung werden bis 70 Tage vor Anreise 25 % des Mietpreises fällig. Dies entspricht der ersten Rate. Ab 70 Tagen vor Anreise bis zum Anreisetag werden 80 % fällig, ab dem Anreisetag 100 %. Umbuchungen können bei Feriepartner gegen eine Gebühr von 70 € bis 70 Tage vor Anreise vorgenommen werden, allerdings nur im gleichen Kalenderjahr.

Die Abrechnung geschieht, sofern Feriepartner alle Informationen korrekt vorliegen, innerhalb von 14 Tagen nach Abreise. Denken Sie daran Ihre IBAN und BIC bei Feriepartner zu hinterlegen, sofern Sie per Banküberweisung gezahlt haben, damit Feriepartner einen eventuellen Restbetrag auf Ihr Konto zurück überweisen kann.

Bei Feriepartner gilt eine Jugendgruppe ab 3 Personen und bis 25 Jahre der einzelnen Mitreisenden. Zwei Personen unter 25 Jahre gelten i. d. R. nicht als Jugendgruppe. In speziellen Fällen können wir individuell für Sie anfragen. 

Ferienhäuser in der Umgebung

Die Inhalte sind aufgrund Ihrer Cookie-Einstellungen nicht verfügbar. Um diese Inhalte zu nutzen, stimmen Sie bitte der Verwendung von "Präferenz"-Cookies zu.

Präferenz-Cookies erlauben Einstellungen