Ferienhaus 5651 in Svanebakken 10, Svaneke
Willkommen in deinem Ferienhaus
In diesem charmanten Ferienhaus in der Svanebakken wirst du von Licht, Ruhe und einem echten Feriengefühl empfangen, sobald du die Tür öffnest. Das helle und gemütliche Wohnzimmer ist der natürliche Treffpunkt des Hauses – hier kannst du an kühleren Abenden den Kamin anzünden, die Wärme genießen und die Flammen leise knistern hören, während du den Tag Revue passieren lässt. Das Wohnzimmer ist offen mit der funktionalen Küche verbunden, sodass du auch beim Kochen Teil der Gespräche bleibst – sei es beim Zubereiten des Morgenkaffees oder eines leckeren Abendessens mit lokalen Zutaten. Im Obergeschoss findest du ein weiteres Wohnzimmer – einen wunderbaren Rückzugsort mit direktem Blick auf das Meer, ideal zum Lesen, Entspannen oder einfach zum Träumen beim Blick über den Horizont. Das Ferienhaus verfügt über drei gemütliche Schlafzimmer, die nach einem erlebnisreichen Tag zum Ausruhen einladen, sowie über zwei helle Badezimmer mit Dusche – perfekt für Familien oder Freunde, die gemeinsam Urlaub machen.
Genieße das Leben im Freien
Draußen erwarten dich mehrere schöne Terrassen, auf denen du von morgens bis abends die Sonne genießen kannst. Suche dir deinen Lieblingsplatz in den bequemen Gartenmöbeln, genieße ein Glas Wein in der Abendsonne oder entspanne dich auf einer Liege mit Blick auf das Meer, während du dem Rauschen der Wellen und dem Zwitschern der Vögel lauschst. Hier gibt es viel Platz für gemeinsame Stunden oder ruhige Momente. Wenn der Abend kommt, kannst du den Grill anfeuern und den Duft von Sommer und gegrillten Spezialitäten in der Luft genießen. Die Terrassen liegen von grüner Natur umgeben und bieten sowohl Sonne als auch Windschutz – so findest du immer den richtigen Platz, passend zur Stimmung des Tages. Der kurze Weg zum Strand lädt zu einem schnellen Sprung ins Meer oder zu einem morgendlichen Spaziergang entlang der Küste ein, während die Sonne über der Ostsee aufgeht.
Entdecke deine Umgebung
Das Ferienhaus liegt in einer der beliebtesten Gegenden Bornholms – in Svaneke, der vielleicht charmantesten und künstlerischsten Stadt der Insel. Vom Haus aus erreichst du in wenigen Minuten den Strand, wo du schwimmen, die Sonne genießen und die besondere Atmosphäre spüren kannst, für die Bornholm so bekannt ist. Im Ort erwarten dich kleine Boutiquen, Galerien und viele kulinarische Erlebnisse – von der berühmten Svaneke Bolcher Bonbonmanufaktur über das Brauhaus bis hin zum traditionellen Räucherei am Hafen. Ein Spaziergang durch die kopfsteingepflasterten Gassen vermittelt das echte, authentische Bornholmer Lebensgefühl. Du kannst auch dem Küstenpfad in Richtung Listed oder Gudhjem folgen und die raue, beeindruckende Natur der Insel hautnah erleben. Die Svanebakken ist der ideale Ausgangspunkt für einen Urlaub voller Ruhe, Genuss und unvergesslicher Erlebnisse auf der Sonneninsel Bornholm.
Hausbilder
Ausstattung
Allgemeines
- Anzahl Personen: 6
- Baujahr: 2001
- Grundstücksfläche: 736 m² Garten
- Inkl. Endreinigung
- Nichtraucher
- Tolle Aussicht Meerblick
- Wohnfläche: 118 m²
Entfernungen
- Abstand Einkauf: 800 m Ganzjährig geöffnet
- Abstand Golfplatz: 17.000 m
- Abstand Restaurant: 800 m
- Abstand Schwimmhalle: 14.000 m
- Abstand Strand: 600 m Sandstrand
- Abstand Küste: 400 m
Wohnbereich
- Kaminofen
Schlafbereich
- Anzahl Doppelbetten: 2
- Anzahl Einzelbetten: 2
Küche
- Dunstabzug
- Extra Backofen
- Geschirrspüler
- Kaffeemaschine
- Kochplatten: 1 elektrische
- Kühlschrank l mit Gefrierfach
- Mikrowelle
- Offene Küche
- Wasserkocher
Bad
- Anzahl Duschen: 2
- Anzahl Toiletten: 2
- Trockner
- Waschmaschine
Multimedia
- Deutsches Fernsehen
-
Internationales Fernsehen Dänisches Fernsehen
norwegische Programme
Schwedisches Fernsehen - Internet Kostenloses Wi-Fi - Mehr als 20 Mbit
Aussenbereich
- Gartenmöbel
- Grill
- Liegestuhl
- Sonnenschirm
Sonstiges
- Anzahl Etagen: 2
- Bei diesem Haus inkl. Wasser
- Ladestation für Elektroautos CEE-Stecker mit 16 Ampere vorhanden, Kabel mitbringen
- Wärmepumpe
- Sonstiges Apple TV
Neben- und Verbrauchskosten
Die aktuellen Verbrauchskosten finden Sie im nächsten Schritt im Buchungsformular.
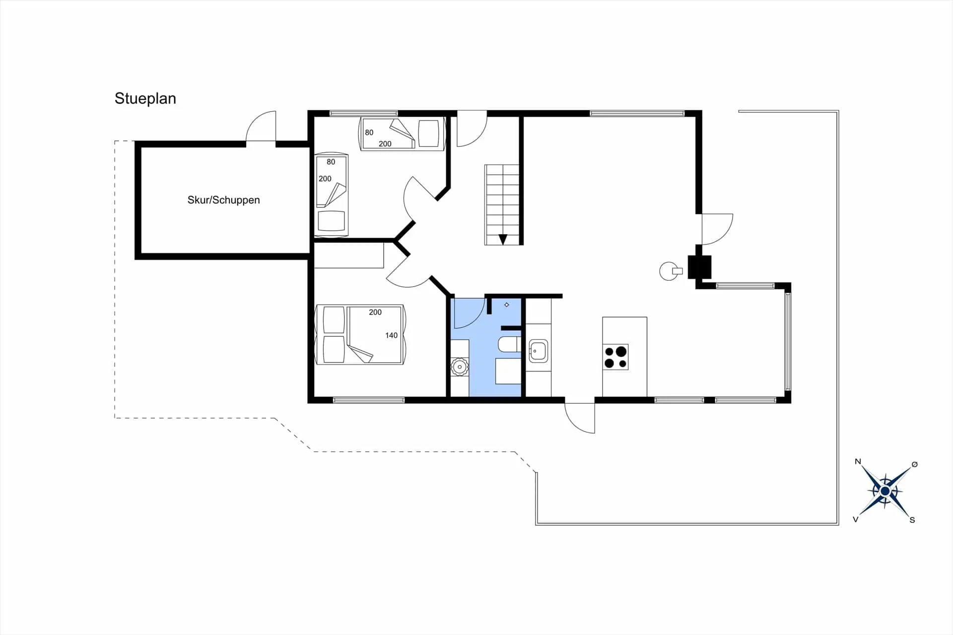
Raumaufteilung
Lageplan
Ferienhaus 5651
Svanebakken 10
3740 Svaneke
Belegungskalender
- Reisedauer auswählen
- Anzahl Reisende auswählen
- Anreisetag im Belegungskalender anklicken
- Sie bekommen Verfügbarkeit und Preis angezeigt
| 2026 | 1 | 2 | 3 | 4 | 5 | 6 | 7 | 8 | 9 | 10 | 11 | 12 | 13 | 14 | 15 | 16 | 17 | 18 | 19 | 20 | 21 | 22 | 23 | 24 | 25 | 26 | 27 | 28 | 29 | 30 | 31 |
| Mai | F | S | S | M | D | M | D | F | S | S | M | D | M | D | F | S | S | M | D | M | D | F | S | S | M | D | M | D | F | S | S |
| Juni | M | D | M | D | F | S | S | M | D | M | D | F | S | S | M | D | M | D | F | S | S | M | D | M | D | F | S | S | M | D | |
| Juli | M | D | F | S | S | M | D | M | D | F | S | S | M | D | M | D | F | S | S | M | D | M | D | F | S | S | M | D | M | D | F |
| August | S | S | M | D | M | D | F | S | S | M | D | M | D | F | S | S | M | D | M | D | F | S | S | M | D | M | D | F | S | S | M |
| September | D | M | D | F | S | S | M | D | M | D | F | S | S | M | D | M | D | F | S | S | M | D | M | D | F | S | S | M | D | M | |
| Oktober | D | F | S | S | M | D | M | D | F | S | S | M | D | M | D | F | S | S | M | D | M | D | F | S | S | M | D | M | D | F | S |
| November | S | M | D | M | D | F | S | S | M | D | M | D | F | S | S | M | D | M | D | F | S | S | M | D | M | D | F | S | S | M | |
| Dezember | D | M | D | F | S | S | M | D | M | D | F | S | S | M | D | M | D | F | S | S | M | D | M | D | F | S | S | M | D | M | D |
| 2027 | 1 | 2 | 3 | 4 | 5 | 6 | 7 | 8 | 9 | 10 | 11 | 12 | 13 | 14 | 15 | 16 | 17 | 18 | 19 | 20 | 21 | 22 | 23 | 24 | 25 | 26 | 27 | 28 | 29 | 30 | 31 |
| Januar | F | S | S | M | D | M | D | F | S | S | M | D | M | D | F | S | S | M | D | M | D | F | S | S | M | D | M | D | F | S | S |
| Februar | M | D | M | D | F | S | S | M | D | M | D | F | S | S | M | D | M | D | F | S | S | M | D | M | D | F | S | S | |||
| März | M | D | M | D | F | S | S | M | D | M | D | F | S | S | M | D | M | D | F | S | S | M | D | M | D | F | S | S | M | D | M |
| April | D | F | S | S | M | D | M | D | F | S | S | M | D | M | D | F | S | S | M | D | M | D | F | S | S | M | D | M | D | F | |
| Mai | S | S | M | D | M | D | F | S | S | M | D | M | D | F | S | S | M | D | M | D | F | S | S | M | D | M | D | F | S | S | M |
| Juni | D | M | D | F | S | S | M | D | M | D | F | S | S | M | D | M | D | F | S | S | M | D | M | D | F | S | S | M | D | M | |
| Juli | D | F | S | S | M | D | M | D | F | S | S | M | D | M | D | F | S | S | M | D | M | D | F | S | S | M | D | M | D | F | S |
| August | S | M | D | M | D | F | S | S | M | D | M | D | F | S | S | M | D | M | D | F | S | S | M | D | M | D | F | S | S | M | D |
| September | M | D | F | S | S | M | D | M | D | F | S | S | M | D | M | D | F | S | S | M | D | M | D | F | S | S | M | D | M | D | |
| Oktober | F | S | S | M | D | M | D | F | S | S | M | D | M | D | F | S | S | M | D | M | D | F | S | S | M | D | M | D | F | S | S |
| November | M | D | M | D | F | S | S | M | D | M | D | F | S | S | M | D | M | D | F | S | S | M | D | M | D | F | S | S | M | D | |
| Dezember | M | D | F | S | S | M | D | M | D | F | S | S | M | D | M | D | F | S | S | M | D | M | D | F | S | S | M | D | M | D | F |
| 2028 | 1 | 2 | 3 | 4 | 5 | 6 | 7 | 8 | 9 | 10 | 11 | 12 | 13 | 14 | 15 | 16 | 17 | 18 | 19 | 20 | 21 | 22 | 23 | 24 | 25 | 26 | 27 | 28 | 29 | 30 | 31 |
| Januar | S | S | M | D | M | D | F | S | S | ||||||||||||||||||||||
FAQ
Wie hoch sind die Nebenkosten?
Die Kosten für Strom, Wasser, (bei einigen Häusern Gas) werden nach tagesaktuellen Preisen abgerechnet und hängen von vielen verschiedenen Faktoren ab, wie zum Beispiel Anzahl Personen, Größe des Hauses oder Ausstattung. In der Regel lässt sich sagen, dass ein Standardhaus ohne Pool, Whirlpool und Sauna im Sommer ca. 5 kWh pro Person pro Tag verbraucht. Im Winter gerne bei 10 kWh und darüber. Bei Poolhäusern mit Whirlpool und Sauna liegt der Wert im Sommer bei ca. 20 kWh und im Winter ca. bei 40 kWh. Auch hier variieren die Preise stark von Größe des Pools, Ausstattung, Größe des Hauses, Modell des Whirlpools und individuellem Verbrauch im Haus. Der Wasserverbrauch variiert ebenfalls stark und kann bei ca. 0,1-0,2 m³ pro Person pro Tag in einem Standardhaus liegen und bei Poolhäusern bei ca. 0,4-0,5 m³. Wenn eine Kaution bei der Buchung angegeben ist, ist diese angepasst an den ungefähren Durchschnittsverbrauch an Nebenkosten im Haus.
Alle Angaben ohne Gewähr und dienen lediglich als Richtwert und nicht als tatsächliche Prognose.
Kann ich das Haus reservieren?
Reservierungen sind in der Regel nicht möglich. In einigen Fällen ist es uns jedoch möglich, Reservierungen zu erstellen. Fragen Sie gerne direkt bei uns an, ob für dieses Haus eine Reservierung möglich ist.
Wie bekomme ich den Schlüssel für das Ferienhaus?
Mittlerweile sind bei fast allen Feriepartner Ferienhäusern Schlüsselboxen an den Häusern angebracht. Über den “Mein Feriepartner”- Link in der Buchungsbestätigung erhalten Sie Zugang zu Ihrer Buchung und können im Fenster der Schlüsselübergabe 48 Stunden vor Anreise einen Zugangscode einsehen, über welchen Sie den Schlüssel am Haus erhalten.
Ab wann ist das Haus bezugsbereit?
Die Ferienhäuser werden zwischen 10 Uhr und 16 Uhr gereinigt und sind spätestens ab 16 Uhr bezugsbereit. Wann Ihr Ferienhaus am Anreisetag gereinigt wird, entscheidet das Büro vor Ort kurz vorher, in Absprache mit dem Servicepersonal und der effektivsten Route für die Servicekräfte. Sobald Ihr Ferienhaus bezugsbereit ist, erhalten Sie, sofern Ihre Mobilnummer korrekt angegeben ist, eine SMS von Feriepartner mit dem Bescheid und allen wichtigen Informationen zum Beziehen Ihres Ferienhauses.
Wie läuft die Bezahlung ab?
Nach Aufgabe der Buchung und Bestätigung seitens Feriepartner wird die erste Rate in Höhe von 25 % des Mietpreises auf Ihrem Mietvertrag sofort fällig. Sie können die Raten und Beträge im Mietvertrag oder über “Mein Feriepartner” einsehen. Bis 70 Tage vor Anreise ist die Frist für den noch offenen Restbetrag Ihrer Buchung. Sind weniger als 70 Tage bis zur Anreise, wird der gesamte Betrag in einer Rate fällig.
Wie sind die Umbuchungs- / Stornierungsbedingungen?
Bei Feriepartner ist eine Reiserücktrittsversicherung immer im Mietpreis inklusive enthalten. Sie erhalten Informationen zu den Bedingungen nach Abschluss der Buchung oder bei der Versicherungsgesellschaft Tryg A/S. Bei Stornierungen ohne den Gebrauch der Reiserücktrittsversicherung werden bis 70 Tage vor Anreise 25 % des Mietpreises fällig. Dies entspricht der ersten Rate. Ab 70 Tagen vor Anreise bis zum Anreisetag werden 80 % fällig, ab dem Anreisetag 100 %. Umbuchungen können bei Feriepartner gegen eine Gebühr von 70 € bis 70 Tage vor Anreise vorgenommen werden, allerdings nur im gleichen Kalenderjahr.
Wann erhalte ich meine Nebenkostenabrechnung?
Die Abrechnung geschieht, sofern Feriepartner alle Informationen korrekt vorliegen, innerhalb von 14 Tagen nach Abreise. Denken Sie daran Ihre IBAN und BIC bei Feriepartner zu hinterlegen, sofern Sie per Banküberweisung gezahlt haben, damit Feriepartner einen eventuellen Restbetrag auf Ihr Konto zurück überweisen kann.
Jugendgruppen unter 25 Jahren?
Bei Feriepartner gilt eine Jugendgruppe ab 3 Personen und bis 25 Jahre der einzelnen Mitreisenden. Zwei Personen unter 25 Jahre gelten i. d. R. nicht als Jugendgruppe. In speziellen Fällen können wir individuell für Sie anfragen.