Ferienhaus 20123 in Maarup Havn 7 A, Mårup Havn
Es ist uns ein Vergnügen, dir dieses schöne Ferienhaus am Hafen von Maarup im nördlichen Teil Samsøs vorstellen zu dürfen. Lediglich 60 Meter trennen das Urlaubsdomizil vom besten Badestrand der Insel. Von deiner Terrasse kannst du in aller Ruhe das Leben im Hafen verfolgen.
Willkommen in deinem Ferienhaus
Das Ferienhaus "Fiskerhytten" befindet sich am Hafen Maarups, an einer Stelle, an der früher ein Lagerhaus stand. Die Fiskerhytten wurde im Jahr 2015 komplett neu errichtet und begeistert mit einer sehr guten Ausstattung und schönster Ferienhausatmosphäre.
Vom kleinen Eingangsbereich führt eine Treppe hinauf in den ersten Stock, in dem dich Wohnraum und Küche in Form eines stimmungsvollen Aufenthaltsraums empfangen. In der angenehm großen, gut ausgestatteten Küche wird die Zubereitung der täglichen Mahlzeiten zum reinen Vergnügen. Das fertige Essen genießt ihr zusammen am schönen Esstisch oder draußen auf der Terrasse, die mit einem wunderschönen Blick über den Hafen und das Meer verwöhnt. Falls sich das Wetter nicht von seiner schönsten Seite zeigt, bewundert ihr den Ausblick vom Wohnraum aus. Eine große Terrassentür mit Fenstern ermöglicht euch zu jeder Zeit, den Hafen und die Bucht von Sælvig im Hintergrund zu bewundern. Die Terrassentür kann an sommerlichen Tagen komplett geöffnet werden, wodurch die Terrasse wie eine natürliche Verlängerung des Wohnraums wirkt. In der gemütlichen Polstersitzgruppe könnt ihr es euch so richtig gemütlich machen, das maritime Wohnambiente und die Aussicht auf das Meer genießen, unterhaltsame Kartenspiele spielen und den Fernseher nutzen. Der Küchen-, Wohn- und Essbereich besticht mit seinen hellen Holzfußböden, den hellen Holzwänden und Holzdecken. Zusammen mit diversen reizenden Details schafft das viele Holz eine urgemütliche, wunderbar maritime Wohnatmosphäre, die dich laufend daran erinnert, dass du deinen Urlaub direkt am Meer verbringst. Zahlreiche schöne Stunden im Kreise deiner Lieben sind dir in diesem tollen Aufenthaltsraum garantiert.
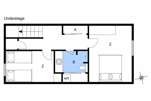
Im Erdgeschoss deines Ferienhauses sind die beiden Schlafräume und das Badezimmer untergebracht. Ebenso wie im oberen Stockwerk erwarten dich hier durchgängig helle Holzwände und Holzdecken. Einer der Schlafräume beinhaltet ein komfortables Doppelbett, einen Schreibtisch und Stauraum. Der Schlafraum verwöhnt mit Aussicht auf den Hafen und dennoch zugleich mit viel Ruhe. Hier wirst du wunderbar schlafen!
Im anderen Schlafraum stehen zwei Einzelbetten bereit, die bei Bedarf zu einem Doppelbett zusammengeschoben werden können. Stauraum ist ebenfalls vorhanden und das Fenster geht zum Hinterhof. Neben den Schlafräumen befindet sich das helle Badezimmer, in dem unter anderem ein Wäscheturm zur Verfügung steht. Die "Fiskerhytten" ist dein absolutes Traumferienhaus, sofern du von einem bezaubernden, gemütlichen Mietobjekt in ganz besonderer Lage an einem der idyllischen Häfen Samsøs und in unmittelbarer Nähe zur hübschen Natur der Nordinsel träumst.
Genieße das Leben im Freien
Das äußere Erscheinungsbild dieses Ferienhauses ist von den alten, schwarzen, mit Schindeln versehenen Fischerhütten inspiriert. Die Außenbereiche der "Fiskerhytten" sind überschaubar. Deinen Pkw parkst du auf dem öffentlichen Parkplatz, der sich an der Einfahrt zum Maarup Havn befindet. Über den Schotterweg hinter dem Haus ist das Ferienhaus leicht erreichbar. Vor der Eingangstür erwartet dich ein kleiner Hinterhof.
Maarup Havn ist ein kleiner Hafenort, der insbesondere in den Sommermonaten gern von Seglern angelaufen wird. Im Restaurant, das sich gegenüber deines Ferienhauses befindet, geht es im Sommer lebendig und stimmungsvoll zu. Generell ist die Atmosphäre im Hafen jedoch ruhig und idyllisch. Du kannst es dir mit deinen Lieben wunderbar auf der Terrasse des Hauses gemütlich machen und dabei die Sonne und den Panoramaausblick über Meer und Hafen in vollen Zügen genießen.
Entdecke deine Umgebung
Unweit von Maarup Havn erwarten dich große Naturerlebnisse. Hinter dem Ferienhaus führt dich ein Pfad direkt hinauf in die hügelige Landschaft, wo dich eine fantastische Aussicht und eine schöne Wanderroute durch Natur und Felder begrüßen. Ausgesprochen schön und stimmungsvoll ist zudem ein Spaziergang am Strand. Lediglich 60 Meter trennen dich vom schönen Badestrand, an dem du wann immer du willst, in die wogenden Ostseewellen hüpfen kannst. Beim Baden mit kleinen Kindern ist allerdings zu bedenken, dass das Wasser schnell tief wird. Nach rund 1,5 Kilometern erreichst du die Ortschaft Mårup, in der du unter anderem deine täglichen Einkäufe erledigen und bei Bedarf Fahrräder mieten kannst. Östlich und westlich deines reizenden Ferienhauses bieten sich gute Angelmöglichkeiten.
Auf Samsøs Nordinsel freuen sich viele hübsche Fleckchen auf deinen Besuch. Versäume es nicht, dem Ballebjerg - Samsøs höchstem Punkt - einen Besuch abzustatten. Auch Issehoved, der nördlichste Punkt Samsøs, ist definitiv einen Abstecher wert. Ausgesprochen schön und stimmungsvoll präsentiert sich das alte, sehr gut erhaltene Dorf Nordby mit seinen hübschen Häusern, einem Dorfteich und einem ikonischen Glockenturm. In Nordby kannst du dich sehr gut mit einem Mittagessen und einem köstlichen Eis verwöhnen lassen. Wenn du gen Süden fährst, kommst du durch mehrere Dörfer mit kleinen Geschäften und idyllischen Cafés. Langør ist ein beschaulicher Hafenort auf Samsø, der mit seiner ganz besonderen Lage besticht. Im Sommer kannst du in Langør essen gehen und anschließend die wunderschöne Landschaft am Stavns Fjord bewundern. Tranebjerg und Ballen überzeugen mit guten Einkaufsmöglichkeiten und verschiedenen Lokalitäten.
Samsø bietet etwas für jeden Urlaubsgast - ganz gleich, ob Kultur und Natur oder pure Erholung und Entspannung im Mittelpunkt stehen sollen.
Hausbilder
Ausstattung
Allgemeines
- Anzahl Haustiere maximal: 1
- Anzahl Personen: 4
- Baujahr: 2015
- Fahrradfreundlich
- Grundstücksfläche: 91 m²
- Haustiere: Nur Hunde erlaubt
- Inkl. Endreinigung
- Nichtraucher
-
Tolle Aussicht Meerblick
Panorama - Wohnfläche: 91 m²
Entfernungen
- Abstand Einkauf: 1.000 m Ganzjährig geöffnet
- Abstand Golfplatz: 14.500 m
- Abstand Restaurant: 20 m
- Abstand Strand: 50 m Sandstrand
- Abstand Wasser: 50 m Meer
Schlafbereich
- Anzahl Doppelbetten: 1 180 x 200 cm
- Anzahl Einzelbetten: 2 80 x 200 cm
Küche
- Dunstabzug
- Extra Backofen
- Geschirrspüler
- Kochplatten: 1 elektrische
Bad
- Trockner
- Waschmaschine
Multimedia
- Deutsches Fernsehen
-
Internationales Fernsehen Dänisches Fernsehen
norwegische Programme
Schwedisches Fernsehen - Internet Kostenloses Wi-Fi - Mehr als 100 Mbit
Aussenbereich
- Terrasse: 1 m² Überdachte Terrasse
Sonstiges
- Anzahl Etagen: 2
- Besonderheiten Gute Angelmöglichkeiten
- Das Aufladen von Elektroautos ist nicht erlaubt
- Wärmepumpe
Neben- und Verbrauchskosten
Die aktuellen Verbrauchskosten finden Sie im nächsten Schritt im Buchungsformular.
Raumaufteilung
Lageplan
Ferienhaus 20123
Maarup Havn 7 A
Maarup
8305 Samsø
Belegungskalender
- Reisedauer auswählen
- Anzahl Reisende auswählen
- Anreisetag im Belegungskalender anklicken
- Sie bekommen Verfügbarkeit und Preis angezeigt
| 2025 | 1 | 2 | 3 | 4 | 5 | 6 | 7 | 8 | 9 | 10 | 11 | 12 | 13 | 14 | 15 | 16 | 17 | 18 | 19 | 20 | 21 | 22 | 23 | 24 | 25 | 26 | 27 | 28 | 29 | 30 | 31 |
| Oktober | M | D | F | S | S | M | D | M | D | F | S | S | M | D | M | D | F | S | S | M | D | M | D | F | S | S | M | D | M | D | F |
| November | S | S | M | D | M | D | F | S | S | M | D | M | D | F | S | S | M | D | M | D | F | S | S | M | D | M | D | F | S | S | |
| Dezember | M | D | M | D | F | S | S | M | D | M | D | F | S | S | M | D | M | D | F | S | S | M | D | M | D | F | S | S | M | D | M |
| 2026 | 1 | 2 | 3 | 4 | 5 | 6 | 7 | 8 | 9 | 10 | 11 | 12 | 13 | 14 | 15 | 16 | 17 | 18 | 19 | 20 | 21 | 22 | 23 | 24 | 25 | 26 | 27 | 28 | 29 | 30 | 31 |
| Januar | D | F | S | S | M | D | M | D | F | M | D | M | D | F | S | S | M | D | M | D | F | S | S | M | D | M | D | F | S | ||
| Februar | S | M | D | M | D | F | S | S | M | D | M | D | F | S | S | M | D | M | D | F | S | S | M | D | M | D | F | S | |||
| März | S | M | D | M | D | F | S | S | M | D | M | D | F | S | S | M | D | M | D | F | S | S | M | D | M | D | F | S | S | M | D |
| April | M | D | F | S | S | M | D | M | D | F | S | S | M | D | M | D | F | S | S | M | D | M | D | F | S | S | M | D | M | D | |
| Mai | F | S | S | M | D | M | D | F | S | S | M | D | M | D | F | S | S | M | D | M | D | F | S | S | M | D | M | D | F | S | S |
| Juni | M | D | M | D | F | S | S | M | D | M | D | F | S | S | M | D | M | D | F | S | S | M | D | M | D | F | S | S | M | D | |
| Juli | M | D | F | S | S | M | D | M | D | F | S | S | M | D | M | D | F | S | S | M | D | M | D | F | S | S | M | D | M | D | F |
| August | S | S | M | D | M | D | F | S | S | M | D | M | D | F | S | S | M | D | M | D | F | S | S | M | D | M | D | F | S | S | M |
| September | D | M | D | F | S | S | M | D | M | D | F | S | S | M | D | M | D | F | S | S | M | D | M | D | F | S | S | M | D | M | |
| Oktober | D | F | S | S | M | D | M | D | F | S | S | M | D | M | D | F | S | S | M | D | M | D | F | S | S | M | D | M | D | F | S |
| November | S | M | D | M | D | F | S | S | M | D | M | D | F | S | S | M | D | M | D | F | S | S | M | D | M | D | F | S | S | M | |
| Dezember | D | M | D | F | S | S | M | D | M | D | F | S | S | M | D | M | D | F | S | S | M | D | M | D | F | S | S | M | D | M | D |
| 2027 | 1 | 2 | 3 | 4 | 5 | 6 | 7 | 8 | 9 | 10 | 11 | 12 | 13 | 14 | 15 | 16 | 17 | 18 | 19 | 20 | 21 | 22 | 23 | 24 | 25 | 26 | 27 | 28 | 29 | 30 | 31 |
| Januar | F | S | S | M | D | M | D | F | |||||||||||||||||||||||
FAQ
Wie hoch sind die Nebenkosten?
Die Kosten für Strom, Wasser, (bei einigen Häusern Gas) werden nach tagesaktuellen Preisen abgerechnet und hängen von vielen verschiedenen Faktoren ab, wie zum Beispiel Anzahl Personen, Größe des Hauses oder Ausstattung. In der Regel lässt sich sagen, dass ein Standardhaus ohne Pool, Whirlpool und Sauna im Sommer ca. 5 kWh pro Person pro Tag verbraucht. Im Winter gerne bei 10 kWh und darüber. Bei Poolhäusern mit Whirlpool und Sauna liegt der Wert im Sommer bei ca. 20 kWh und im Winter ca. bei 40 kWh. Auch hier variieren die Preise stark von Größe des Pools, Ausstattung, Größe des Hauses, Modell des Whirlpools und individuellem Verbrauch im Haus. Der Wasserverbrauch variiert ebenfalls stark und kann bei ca. 0,1-0,2 m³ pro Person pro Tag in einem Standardhaus liegen und bei Poolhäusern bei ca. 0,4-0,5 m³. Wenn eine Kaution bei der Buchung angegeben ist, ist diese angepasst an den ungefähren Durchschnittsverbrauch an Nebenkosten im Haus.
Alle Angaben ohne Gewähr und dienen lediglich als Richtwert und nicht als tatsächliche Prognose.
Kann ich das Haus reservieren?
Reservierungen sind in der Regel nicht möglich. In einigen Fällen ist es uns jedoch möglich, Reservierungen zu erstellen. Fragen Sie gerne direkt bei uns an, ob für dieses Haus eine Reservierung möglich ist.
Wie bekomme ich den Schlüssel für das Ferienhaus?
Mittlerweile sind bei fast allen Feriepartner Ferienhäusern Schlüsselboxen an den Häusern angebracht. Über den “Mein Feriepartner”- Link in der Buchungsbestätigung erhalten Sie Zugang zu Ihrer Buchung und können im Fenster der Schlüsselübergabe 48 Stunden vor Anreise einen Zugangscode einsehen, über welchen Sie den Schlüssel am Haus erhalten.
Ab wann ist das Haus bezugsbereit?
Die Ferienhäuser werden zwischen 10 Uhr und 16 Uhr gereinigt und sind spätestens ab 16 Uhr bezugsbereit. Wann Ihr Ferienhaus am Anreisetag gereinigt wird, entscheidet das Büro vor Ort kurz vorher, in Absprache mit dem Servicepersonal und der effektivsten Route für die Servicekräfte. Sobald Ihr Ferienhaus bezugsbereit ist, erhalten Sie, sofern Ihre Mobilnummer korrekt angegeben ist, eine SMS von Feriepartner mit dem Bescheid und allen wichtigen Informationen zum Beziehen Ihres Ferienhauses.
Wie läuft die Bezahlung ab?
Nach Aufgabe der Buchung und Bestätigung seitens Feriepartner wird die erste Rate in Höhe von 25 % des Mietpreises auf Ihrem Mietvertrag sofort fällig. Sie können die Raten und Beträge im Mietvertrag oder über “Mein Feriepartner” einsehen. Bis 70 Tage vor Anreise ist die Frist für den noch offenen Restbetrag Ihrer Buchung. Sind weniger als 70 Tage bis zur Anreise, wird der gesamte Betrag in einer Rate fällig.
Wie sind die Umbuchungs- / Stornierungsbedingungen?
Bei Feriepartner ist eine Reiserücktrittsversicherung immer im Mietpreis inklusive enthalten. Sie erhalten Informationen zu den Bedingungen nach Abschluss der Buchung oder bei der Versicherungsgesellschaft Tryg A/S. Bei Stornierungen ohne den Gebrauch der Reiserücktrittsversicherung werden bis 70 Tage vor Anreise 25 % des Mietpreises fällig. Dies entspricht der ersten Rate. Ab 70 Tagen vor Anreise bis zum Anreisetag werden 80 % fällig, ab dem Anreisetag 100 %. Umbuchungen können bei Feriepartner gegen eine Gebühr von 70 € bis 70 Tage vor Anreise vorgenommen werden, allerdings nur im gleichen Kalenderjahr.
Wann erhalte ich meine Nebenkostenabrechnung?
Die Abrechnung geschieht, sofern Feriepartner alle Informationen korrekt vorliegen, innerhalb von 14 Tagen nach Abreise. Denken Sie daran Ihre IBAN und BIC bei Feriepartner zu hinterlegen, sofern Sie per Banküberweisung gezahlt haben, damit Feriepartner einen eventuellen Restbetrag auf Ihr Konto zurück überweisen kann.
Jugendgruppen unter 25 Jahren?
Bei Feriepartner gilt eine Jugendgruppe ab 3 Personen und bis 25 Jahre der einzelnen Mitreisenden. Zwei Personen unter 25 Jahre gelten i. d. R. nicht als Jugendgruppe. In speziellen Fällen können wir individuell für Sie anfragen.