Ferienhaus 88046 in Midtparken 36, Arrild
Das Ferienhaus Midtparken 36 liegt in Südjütliand in der Nähe des Ferienorts Arrild. Ein Gebiet, das viele Urlauber wegen der idyllischen Landschaft anzieht, in der man sich richtig entspannen kann. Außerdem gibt es viele Restaurants, Cafés und gute Einkaufsmöglichkeiten.
Das Sommerhaus bietet Platz für 8 Personen und euer Hund ist ebenfalls willkommen. Das Ferienhaus ist besonders für Familien mit Kindern geeignet. Es gibt einen Spielplatz zum Toben sowie einen Unterstand und eine Feuerstelle, die zum Verweilen einladen.
Dorfidylle mit herrlicher Natur und vielen Erlebnissen
Dieses einladende Ferienhaus wurde im Jahr 2020 in einem hellen und einladenden, modernen Einrichtungsstil renoviert, in dem Komfort und Gemütlichkeit Hand in Hand gehen. Licht durchflutet das gesamte Domizil, in dem der Blick auf die Holzsparren im Dach fällt, welches den Raum besonders gemütlich macht. Der Wintergarten ist eine natürliche Fortsetzung des Wohnzimmers und der Küche.
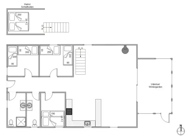
Tankt eure Batterien über Nacht in einem der 3 hellem Schlafzimmer auf, von denen 1 mit einem Doppelbett, 1 mit Etagenbett und 2 mit Einzelbetten ausgestattet sind. Das gemütliche Loft bietet auch 2 Schlafplätze. Ein Badezimmer und eine Gästetoilette sorgen für guten Komfort. Außerdem gibt es einen Holzofen, einen Geschirrspüler, eine Waschmaschine, einen 60l Gefrierschrank und eine Wärmepumpe. Auf dem Fernseher sind deutsche Sender verfügbar.
Auf dem Spielplatz gibt es sowohl Rutschen als auch mehrere Schaukeln. Lasst die Kinder Toben, während ihr es euch auf den Gartenmöbeln mit einer frischen Tasse Kaffee gemütlich macht oder ein Abendessen im überdachten und umzäunten Anbau genießt.
Ein Raum für viele Aktivitäten
Liebt ihr die Natur, ist ein Spaziergang oder eine Fahrradtour in den Gebieten Hønning Plantage und Linet Forest sehr zu empfehlen. In diesen beliebten Gebieten könnt ihr die Artenvielfalt mit einer rechen Tier- und Pflanzenwelt erleben. Das Gebiet umfasst 900 ha und ist teilweise geschützt. Historisch gesehen gibt es in der Umgebung von Arrild sowohl Grabhügel als auch Höhlen, die bis in die Steinzeit zurückreichen.
Der wunderschöne Badestrand in Lakolk auf Rømø liegt 29.3 km entfernt zum Ferienhaus.
Möchtet ihr einen Ausflug zum Strand machen, findet ihr einige der besten Strände Dänemarks auf Römö, eine halbe Autostunde von Arrild entfernt. In Arrild gibt es auch ein gutes Schwimmbad mit Wellness- und Saunabereich. Die Gäste des Hauses haben freien Eintritt in die Schwimmhalle in Arrild mit der Jahreskarte, die im Haus liegt. In der Nachbarstadt Toftlund gibt es einen hügeligen Goldplatz mit Kursen für alle Spielstärken, für Kinder und Erwachsene.
Hausbilder
Ausstattung
Allgemeines
- Anzahl Haustiere maximal: 1
- Anzahl Personen: 9
- Baujahr: 1977
- Grundstücksfläche: 850 m²
- Haustiere erlaubt
- Nichtraucher
- Renovierung: 2020
- Wohnfläche: 102 m²
Entfernungen
- Abstand Einkauf: 600 m
- Abstand Wasser: 17.600 m Nordsee
Wohnbereich
- Flachbildfernseher
- Kaminofen
- Schlafboden
Schlafbereich
- Anzahl Doppelbetten: 2
- Anzahl Einzelbetten: 3
- Anzahl Etagenbetten : 1
- Anzahl Schlafzimmer: 3
Küche
- Geschirrspüler
- Herd mit Backofen
- Kühlschrank
- Mikrowelle
- Tiefkühler: 60 l
Bad
- Anzahl Badezimmer: 1
- Waschmaschine
Multimedia
- Deutsches Fernsehen
- Internet
- Radio
Aussenbereich
- Gartenmöbel
- Grundstück Naturgrundstück
- Grill
- Liegestuhl
- Schaukel
- Terrasse: 1 offen
- Terrasse, geschlossen
- Terrasse, überdacht
Sonstiges
- Fußbodenheizung Schlafzimmer
- Hauswechseltag Samstag
- Kinderbett
- Kinderhochstuhl
- Wärmepumpe
Neben- und Verbrauchskosten
Die aktuellen Verbrauchskosten finden Sie im nächsten Schritt im Buchungsformular.
Raumaufteilung
Lageplan
Ferienhaus 88046
Midtparken 36
Arrild
6520 Toftlund
Belegungskalender
- Reisedauer auswählen
- Anzahl Reisende auswählen
- Anreisetag im Belegungskalender anklicken
- Sie bekommen Verfügbarkeit und Preis angezeigt
| 2026 | 1 | 2 | 3 | 4 | 5 | 6 | 7 | 8 | 9 | 10 | 11 | 12 | 13 | 14 | 15 | 16 | 17 | 18 | 19 | 20 | 21 | 22 | 23 | 24 | 25 | 26 | 27 | 28 | 29 | 30 | 31 |
| Mai | F | S | S | M | D | M | D | F | S | S | M | D | M | D | F | S | S | M | D | M | D | F | S | S | M | D | M | D | F | S | S |
| Juni | M | D | M | D | F | S | S | M | D | M | D | F | S | S | M | D | M | D | F | S | S | M | D | M | D | F | S | S | M | D | |
| Juli | M | D | F | S | S | M | D | M | D | F | S | S | M | D | M | D | F | S | S | M | D | M | D | F | S | S | M | D | M | D | F |
| August | S | S | M | D | M | D | F | S | S | M | D | M | D | F | S | S | M | D | M | D | F | S | S | M | D | M | D | F | S | S | M |
| September | D | M | D | F | S | S | M | D | M | D | F | S | S | M | D | M | D | F | S | S | M | D | M | D | F | S | S | M | D | M | |
| Oktober | D | F | S | S | M | D | M | D | F | S | S | M | D | M | D | F | S | S | M | D | M | D | F | S | S | M | D | M | D | F | S |
| November | S | M | D | M | D | F | S | S | M | D | M | D | F | S | S | M | D | M | D | F | S | S | M | D | M | D | F | S | S | M | |
| Dezember | D | M | D | F | S | S | M | D | M | D | F | S | S | M | D | M | D | F | S | S | M | D | M | D | F | S | S | M | D | M | D |
| 2027 | 1 | 2 | 3 | 4 | 5 | 6 | 7 | 8 | 9 | 10 | 11 | 12 | 13 | 14 | 15 | 16 | 17 | 18 | 19 | 20 | 21 | 22 | 23 | 24 | 25 | 26 | 27 | 28 | 29 | 30 | 31 |
| Januar | F | S | S | M | D | M | D | F | S | S | M | D | M | D | F | S | S | M | D | M | D | F | S | S | M | D | M | D | F | S | S |
| Februar | M | D | M | D | F | S | S | M | D | M | D | F | S | S | M | D | M | D | F | S | S | M | D | M | D | F | S | S | |||
| März | M | D | M | D | F | S | S | M | D | M | D | F | S | S | M | D | M | D | F | S | S | M | D | M | D | F | S | S | M | D | M |
| April | D | F | S | S | M | D | M | D | F | S | S | M | D | M | D | F | S | S | M | D | M | D | F | S | S | M | D | M | D | F | |
| Mai | S | S | M | D | M | D | F | S | S | M | D | M | D | F | S | S | M | D | M | D | F | S | S | M | D | M | D | F | S | S | M |
| Juni | D | M | D | F | S | S | M | D | M | D | F | S | S | M | D | M | D | F | S | S | M | D | M | D | F | S | S | M | D | M | |
| Juli | D | F | S | S | M | D | M | D | F | S | S | M | D | M | D | F | S | S | M | D | M | D | F | S | S | M | D | M | D | F | S |
| August | S | M | D | M | D | F | S | S | M | D | M | D | F | S | S | M | D | M | D | F | S | S | M | D | M | D | F | S | S | M | D |
| September | M | D | F | S | S | M | D | M | D | F | S | S | M | D | M | D | F | S | S | M | D | M | D | F | S | S | M | D | M | D | |
| Oktober | F | S | S | M | D | M | D | F | S | S | M | D | M | D | F | S | S | M | D | M | D | F | S | S | M | D | M | D | F | S | S |
| November | M | D | M | D | F | S | S | M | D | M | D | F | S | S | M | D | M | D | F | S | S | M | D | M | D | F | S | S | M | D | |
| Dezember | M | D | F | S | S | M | D | M | D | F | S | S | M | D | M | D | F | S | S | M | D | M | D | F | S | S | M | D | M | D | F |
| 2028 | 1 | 2 | 3 | 4 | 5 | 6 | 7 | 8 | 9 | 10 | 11 | 12 | 13 | 14 | 15 | 16 | 17 | 18 | 19 | 20 | 21 | 22 | 23 | 24 | 25 | 26 | 27 | 28 | 29 | 30 | 31 |
| Januar | S | S | M | D | M | D | F | S | S | M | D | M | D | F | S | S | M | D | M | D | F | S | S | M | D | M | D | F | S | S | M |
| Februar | D | M | D | F | S | S | M | D | M | D | F | S | S | M | D | M | D | F | S | S | M | D | M | D | F | S | S | M | D | ||
| März | M | D | F | S | S | M | D | M | D | F | S | S | M | D | M | D | F | S | S | M | D | M | D | F | S | S | M | D | M | D | F |
| April | S | S | M | D | M | D | F | S | S | M | D | M | D | F | S | S | M | D | M | D | F | S | S | M | D | M | D | F | S | S | |
| Mai | M | D | M | D | F | S | S | M | D | M | D | F | S | S | M | D | M | D | F | S | S | M | D | M | D | F | S | S | M | D | M |
| Juni | D | F | S | S | M | D | M | D | F | S | S | M | D | M | D | F | S | S | M | D | M | D | F | S | S | M | D | M | D | F | |
| Juli | S | S | M | D | M | D | F | S | S | M | D | M | D | F | S | S | M | D | M | D | F | S | S | M | D | M | D | F | S | S | M |
| August | D | M | D | F | S | S | M | D | M | D | F | S | S | M | D | M | D | F | S | S | M | D | M | D | F | S | S | M | D | M | D |
| September | F | S | S | M | D | M | D | F | S | S | M | D | M | D | F | S | S | M | D | M | D | F | S | S | M | D | M | D | F | S | |
| Oktober | S | M | D | M | D | F | S | S | M | D | M | D | F | S | S | M | D | M | D | F | S | S | M | D | M | D | F | S | S | M | D |
| November | M | D | F | S | S | M | D | M | D | F | S | S | M | D | M | D | F | S | S | M | D | M | D | F | S | S | M | D | M | D | |
| Dezember | F | S | S | M | D | M | D | F | S | S | M | D | M | D | F | S | S | M | D | M | D | F | S | S | M | D | M | D | F | S | S |
| 2029 | 1 | 2 | 3 | 4 | 5 | 6 | 7 | 8 | 9 | 10 | 11 | 12 | 13 | 14 | 15 | 16 | 17 | 18 | 19 | 20 | 21 | 22 | 23 | 24 | 25 | 26 | 27 | 28 | 29 | 30 | 31 |
| Januar | M | D | M | D | F | S | S | M | D | M | D | F | S | S | M | D | M | D | F | S | |||||||||||