Ferienhaus 88301 in Randerup 50B, Ballum
Dieses große und gut ausgestattete Ferienhaus in Randerup 50B liegt in ruhiger, ländlicher Umgebung nahe Bredebro und ist die ideale Wahl für alle, die viel Platz, Komfort und gute Einrichtungen wünschen. Hier erlebt Ihr die authentische dänische Landschaft mit weiten Feldern und landwirtschaftlichen Betrieben in der näheren Umgebung.
Bitte beachtet, dass sich das Ferienhaus in unmittelbarer Nähe eines aktiven landwirtschaftlichen Betriebs mit Rindern befindet. Je nach Wetter- und Windverhältnissen können landwirtschaftliche Gerüche auftreten, was ein natürlicher Bestandteil der Umgebung ist.
Viel Platz und moderner Komfort
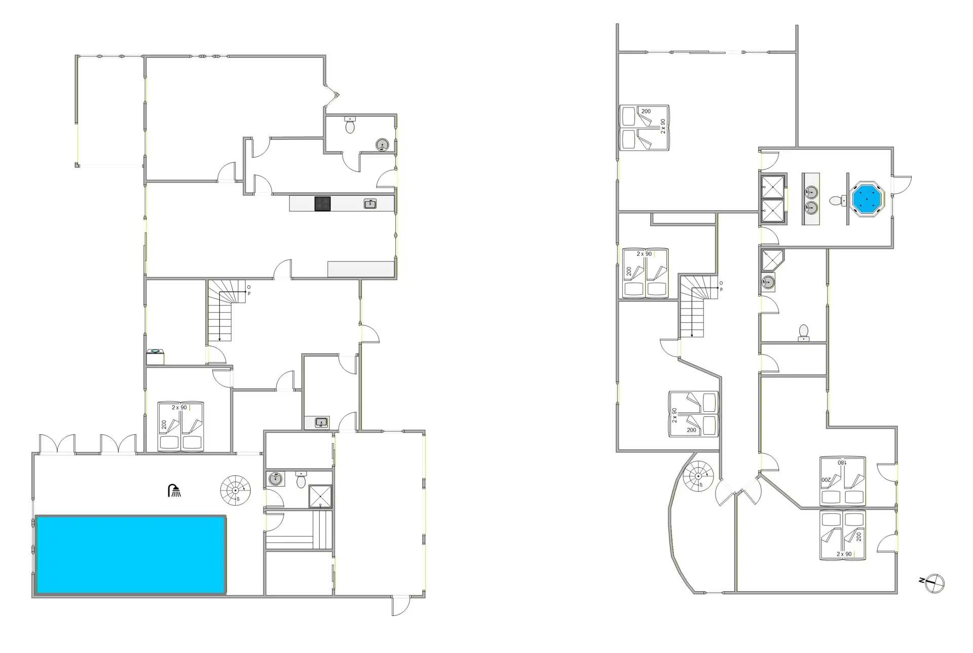
Das Ferienhaus bietet großzügige 505 m² Wohnfläche und Platz für bis zu 12 Personen, verteilt auf 6 geräumige Schlafzimmer, alle mit Doppelbetten ausgestattet. Eines der Schlafzimmer verfügt zudem über einen begehbaren Kleiderschrank, der zusätzlichen Komfort und Stauraum bietet. Das Haus ist ideal für große Familien, mehrere Generationen oder Gruppen von Freunden.
Es stehen 4 moderne Badezimmer mit Fußbodenheizung zur Verfügung, die auch bei voller Belegung hohen Komfort gewährleisten.
Fantastische Ausstattung
Der große, 50 m² große Innenpool lädt zu vielen Stunden Spiel und Entspannung für Kinder und Erwachsene ein – zu jeder Jahreszeit. Zusätzlich könnt Ihr der Hauseigenen Sauna entspannen.
Die gut ausgestattete Küche verfügt unter anderem über eine Spülmaschine, 2 Kühlschränke sowie einen separaten 500-Liter-Gefrierschrank, sodass die Verpflegung für den gesamten Aufenthalt problemlos gelagert werden kann. Außerdem stehen eine Waschmaschine und ein Trockner zur freien Nutzung zur Verfügung.
Außenbereich und Naturerlebnisse
Auf dem 2.000 m² großen Grundstück gibt es viel Platz für Outdoor-Aktivitäten, Spiel und Erholung. Die offene sowie überdachte Terrasse liegt idyllisch an einem kleinen Gartenteich, der zur ruhigen und gemütlichen Atmosphäre beiträgt. Die Terrasse eignet sich hervorragend für Grillabende, und die Gartenmöbel bieten den perfekten Rahmen, um Sonne und Ruhe zu genießen.
Das Meer ist ca. 5,5 km entfernt, Einkaufsmöglichkeiten erreicht Ihr nach etwa 4 km – Natur und Alltagsbedarf sind somit bequem erreichbar.
Hunde willkommen
Hunde sind im Ferienhaus erlaubt, sodass die ganze Familie – einschließlich des vierbeinigen Mitglieds – den Urlaub gemeinsam genießen kann.
Dieses Ferienhaus ist die perfekte Wahl für alle, die Wert auf viel Platz, gute Ausstattung und ländliche Ruhe legen und sich an einer authentischen Umgebung mit dänischer Landwirtschaft nicht stören. Bucht euren Aufenthalt und genießt einen komfortablen Urlaub mit vielen gemeinsamen Erlebnissen.
Hausbilder
Ausstattung
Allgemeines
- Anzahl Haustiere maximal: 2
- Anzahl Personen: 12
- Anzahl Personen: 12
- Baujahr: 1960
- Grundstücksfläche: 2.000 m²
- Haustiere erlaubt
- Inkl. Endreinigung
- Nichtraucher
- Renovierung: 2008
- Wohnfläche: 505 m²
Entfernungen
- Abstand Einkauf: 4.000 m
- Abstand Wasser: 5.500 m Nordsee
Wohnbereich
- Flachbildfernseher
Schlafbereich
- Anzahl Doppelbetten: 6
- Anzahl Schlafzimmer: 6
Küche
- Geschirrspüler
- Herd mit Backofen
- Kühlschrank mit Gefrierfach
- Mikrowelle
- Tiefkühler: 500 l
Bad
- Anzahl Badezimmer: 4
- Trockner
- Waschmaschine
Wellness
- Pool
- Poolgröße: 5 Anzahl Personen Standwasserwhirlpool
- Poolgröße: 50 m² Anzahl Personen Standwasserwhirlpool
- Sauna
Multimedia
- Deutsches Fernsehen
- Internet
Aussenbereich
- Gartenmöbel
- Grundstück Rasengrundstück
- Grill
- Liegestuhl
- Terrasse: 1 offen
- Terrasse, überdacht
Sonstiges
-
Fußbodenheizung Bad
Schlafzimmer
Wohnbereich - Hauswechseltag Freitag
- Kinderbett
- Kinderhochstuhl
Neben- und Verbrauchskosten
Die aktuellen Verbrauchskosten finden Sie im nächsten Schritt im Buchungsformular.
Raumaufteilung
Lageplan
Ferienhaus 88301
Randerup 50B
Bredebro
6261 Bredebro
Belegungskalender
- Reisedauer auswählen
- Anzahl Reisende auswählen
- Anreisetag im Belegungskalender anklicken
- Sie bekommen Verfügbarkeit und Preis angezeigt
| 2026 | 1 | 2 | 3 | 4 | 5 | 6 | 7 | 8 | 9 | 10 | 11 | 12 | 13 | 14 | 15 | 16 | 17 | 18 | 19 | 20 | 21 | 22 | 23 | 24 | 25 | 26 | 27 | 28 | 29 | 30 | 31 |
| Mai | F | S | S | M | D | M | D | F | S | S | M | D | M | D | F | S | S | M | D | M | D | F | S | S | M | D | M | D | F | S | S |
| Juni | M | D | M | D | F | S | S | M | D | M | D | F | S | S | M | D | M | D | F | S | S | M | D | M | D | F | S | S | M | D | |
| Juli | M | D | F | S | S | M | D | M | D | F | S | S | M | D | M | D | F | S | S | M | D | M | D | F | S | S | M | D | M | D | F |
| August | S | S | M | D | M | D | F | S | S | M | D | M | D | F | S | S | M | D | M | D | F | S | S | M | D | M | D | F | S | S | M |
| September | D | M | D | F | S | S | M | D | M | D | F | S | S | M | D | M | D | F | S | S | M | D | M | D | F | S | S | M | D | M | |
| Oktober | D | F | S | S | M | D | M | D | F | S | S | M | D | M | D | F | S | S | M | D | M | D | F | S | S | M | D | M | D | F | S |
| November | S | M | D | M | D | F | S | S | M | D | M | D | F | S | S | M | D | M | D | F | S | S | M | D | M | D | F | S | S | M | |
| Dezember | D | M | D | F | S | S | M | D | M | D | F | S | S | M | D | M | D | F | S | S | M | D | M | D | F | S | S | M | D | M | D |
| 2027 | 1 | 2 | 3 | 4 | 5 | 6 | 7 | 8 | 9 | 10 | 11 | 12 | 13 | 14 | 15 | 16 | 17 | 18 | 19 | 20 | 21 | 22 | 23 | 24 | 25 | 26 | 27 | 28 | 29 | 30 | 31 |
| Januar | F | S | S | M | D | M | D | F | S | S | M | D | M | D | F | S | S | M | D | M | D | F | S | S | M | D | M | D | F | S | S |
| Februar | M | D | M | D | F | S | S | M | D | M | D | F | S | S | M | D | M | D | F | S | S | M | D | M | D | F | S | S | |||
| März | M | D | M | D | F | S | S | M | D | M | D | F | S | S | M | D | M | D | F | S | S | M | D | M | D | F | S | S | M | D | M |
| April | D | F | S | S | M | D | M | D | F | S | S | M | D | M | D | F | S | S | M | D | M | D | F | S | S | M | D | M | D | F | |
| Mai | S | S | M | D | M | D | F | S | S | M | D | M | D | F | S | S | M | D | M | D | F | S | S | M | D | M | D | F | S | S | M |
| Juni | D | M | D | F | S | S | M | D | M | D | F | S | S | M | D | M | D | F | S | S | M | D | M | D | F | S | S | M | D | M | |
| Juli | D | F | S | S | M | D | M | D | F | S | S | M | D | M | D | F | S | S | M | D | M | D | F | S | S | M | D | M | D | F | S |
| August | S | M | D | M | D | F | S | S | M | D | M | D | F | S | S | M | D | M | D | F | S | S | M | D | M | D | F | S | S | M | D |
| September | M | D | F | S | S | M | D | M | D | F | S | S | M | D | M | D | F | S | S | M | D | M | D | F | S | S | M | D | M | D | |
| Oktober | F | S | S | M | D | M | D | F | S | S | M | D | M | D | F | S | S | M | D | M | D | F | S | S | M | D | M | D | F | S | S |
| November | M | D | M | D | F | S | S | M | D | M | D | F | S | S | M | D | M | D | F | S | S | M | D | M | D | F | S | S | M | D | |
| Dezember | M | D | F | S | S | M | D | M | D | F | S | S | M | D | M | D | F | S | S | M | D | M | D | F | S | S | M | D | M | D | F |
| 2028 | 1 | 2 | 3 | 4 | 5 | 6 | 7 | 8 | 9 | 10 | 11 | 12 | 13 | 14 | 15 | 16 | 17 | 18 | 19 | 20 | 21 | 22 | 23 | 24 | 25 | 26 | 27 | 28 | 29 | 30 | 31 |
| Januar | S | S | M | D | M | D | F | S | S | M | D | M | D | F | S | S | M | D | M | D | F | S | S | M | D | M | D | F | S | S | M |
| Februar | D | M | D | F | S | S | M | D | M | D | F | S | S | M | D | M | D | F | S | S | M | D | M | D | F | S | S | M | D | ||
| März | M | D | F | S | S | M | D | M | D | F | S | S | M | D | M | D | F | S | S | M | D | M | D | F | S | S | M | D | M | D | F |
| April | S | S | M | D | M | D | F | S | S | M | D | M | D | F | S | S | M | D | M | D | F | S | S | M | D | M | D | F | S | S | |
| Mai | M | D | M | D | F | S | S | M | D | M | D | F | S | S | M | D | M | D | F | S | S | M | D | M | D | F | S | S | M | D | M |
| Juni | D | F | S | S | M | D | M | D | F | S | S | M | D | M | D | F | S | S | M | D | M | D | F | S | S | M | D | M | D | F | |
| Juli | S | S | M | D | M | D | F | S | S | M | D | M | D | F | S | S | M | D | M | D | F | S | S | M | D | M | D | F | S | S | M |
| August | D | M | D | F | S | S | M | D | M | D | F | S | S | M | D | M | D | F | S | S | M | D | M | D | F | S | S | M | D | M | D |
| September | F | S | S | M | D | M | D | F | S | S | M | D | M | D | F | S | S | M | D | M | D | F | S | S | M | D | M | D | F | S | |
| Oktober | S | M | D | M | D | F | S | S | M | D | M | D | F | S | S | M | D | M | D | F | S | S | M | D | M | D | F | S | S | M | D |
| November | M | D | F | S | S | M | D | M | D | F | S | S | M | D | M | D | F | S | S | M | D | M | D | F | S | S | M | D | M | D | |
| Dezember | F | S | S | M | D | M | D | F | S | S | M | D | M | D | F | S | S | M | D | M | D | F | S | S | M | D | M | D | F | S | S |
| 2029 | 1 | 2 | 3 | 4 | 5 | 6 | 7 | 8 | 9 | 10 | 11 | 12 | 13 | 14 | 15 | 16 | 17 | 18 | 19 | 20 | 21 | 22 | 23 | 24 | 25 | 26 | 27 | 28 | 29 | 30 | 31 |
| Januar | M | D | M | D | F | S | S | M | D | M | D | F | S | S | M | D | M | D | F | S | |||||||||||