Ferienhaus F50341 Lykkesgård in Skibelundvej 15, Binderup Strand
In Sdr. Stenderup außerhalb von Kolding befindet sich das Herrenhaus Lykkesgård aus dem Jahr 1856. Der Eigentümer hat ein Ende des Hauptgebäudes zu einem Ferienhaus umgebaut. Der Eigentümer wohnt am anderen Ende des Gebäudes mit eigenem Eingang. Lykkesgård liegt in einer landschaftlich reizvollen Gegend mit weitem Weg zum nächsten Nachbarn. Das Grundstück verfügt über einen abgegrenzten Bereich mit einem kleinen See für Ihre Gäste, wo Sie sitzen, essen oder Ball spielen können. Über Wege erreichen Sie Skibelund Strand in einer guten halben Stunde zu Fuß, falls Sie einen Strandausflug machen möchten.
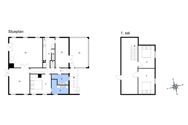
Das zweistöckige Haus verfügt im Erdgeschoss über eine moderne Küche, drei Wohnzimmer, ein Badezimmer und ein Hauptschlafzimmer mit eigenem Bad. Im 1. Stock befinden sich die beiden weiteren Räume des Hauses – die ehemaligen Gemächer der Hofbediensteten –, eines heißt „Die blaue Mädchenkammer“ und das andere „Die grüne Mädchenkammer“. Wir möchten Sie darauf hinweisen, dass die Treppe zum 1. Stock sehr steil ist und schmale Stufen hat.
Alle Zimmer wirken modern, vermitteln aber dennoch den Eindruck des ehemaligen Adelssitzes. Während Ihres Aufenthalts steht Ihnen im Keller ein Waschraum mit Waschmaschine zur Verfügung.
Die Umgebung:
Vom Haus aus erreichen Sie den Strand von Skibelund in ca. 30 Minuten zu Fuß. Die nächstgelegene Stadt ist Kolding, bekannt für ihre vielen interessanten Geschäfte, ihr Straßenbild und ihre kleinen, gemütlichen Restaurants. Koldings Wahrzeichen Koldinghus und das Kunstmuseum Trapholt ziehen jedes Jahr viele Touristen in die Stadt. Kolding ist von wunderschöner, hügeliger Natur umgeben, die zahlreiche Möglichkeiten für Outdoor-Aktivitäten bietet. Besuchen Sie die anspruchsvollen Kletterparcours im Funky Monkey Park in Hylkedalen oder gehen Sie mit Ihren Kindern in den Legeparken. Ein großflächiger Spielplatz in Stadtnähe mit Rutschen, Mooncars, Tretbooten und vielem mehr. Kolding verfügt über mehrere Wegenetze, auf denen Sie die Natur zu Fuß oder mit dem Fahrrad genießen können. Machen Sie einen entspannten Angelausflug auf dem Fjord, am Fluss oder an einem der vielen Put & Take-Seen. Und wenn Sie Golf lieben, hat Kolding zwei Golfplätze. Die nahegelegenen Strände bieten frisches Meerwasser mit guten Badebedingungen, und wenn das Wetter nicht mitspielt, kann die ganze Familie im großen Wasserpark „SlotssøBadet“ im Zentrum der Stadt jede Menge Wasserspaß haben. Kolding bietet eine einzigartige Gelegenheit, die Welt unter Wasser zu erleben. Zwei der größten Attraktionen der Region, LEGOLAND® und LEGO®House, sind von Sdr. Stenderup aus innerhalb einer Autostunde zu erreichen.
Hausbilder
Ausstattung
Allgemeines
- Baujahr: 1856
- Renovierung: 2019
-
Verbrauch inklusive Strom inkl.
Wasser inkl.
Entfernungen
- Abstand Einkauf: 5.000 m
- Abstand Golfplatz: 13.000 m
- Abstand Restaurant: 6.000 m
- Abstand Strand: 1.500 m
Wohnbereich
- Kaminofen Brennofen
Schlafbereich
- Anzahl Schlafzimmer: 3
Küche
- Dunstabzug
- Geschirrspüler
- Herd Induktionsherd
- Kaffeemaschine Kaffeemaschine mit Filter
- Kühlschrank Kühlschrank mit Gefrierfach
- Mikrowelle Mikrowellenofen
- Wasserkocher
Bad
- Anzahl Badezimmer: 2
- Dusche
- Waschmaschine
Multimedia
- CD-Player
- Internet
- Streaming
Aussenbereich
- Garage
- Gartenmöbel
- Grundstück
- Grill Holzkohlegrill
- Terrasse: 1
Sonstiges
- Anzahl Etagen: 2
- Bügelbrett
- Bügeleisen
- Endreinigung auf Wunsch Endreinigung inkl.
- Kinderbett
- Kinderhochstuhl
- Wärmepumpe
Neben- und Verbrauchskosten
Die aktuellen Verbrauchskosten finden Sie im nächsten Schritt im Buchungsformular.
Raumaufteilung
Lageplan
Ferienhaus F50341 Lykkesgård
Skibelundvej 15
6092 Sønder Stenderup
Belegungskalender
- Reisedauer auswählen
- Anzahl Reisende auswählen
- Anreisetag im Belegungskalender anklicken
- Sie bekommen Verfügbarkeit und Preis angezeigt
| 2026 | 1 | 2 | 3 | 4 | 5 | 6 | 7 | 8 | 9 | 10 | 11 | 12 | 13 | 14 | 15 | 16 | 17 | 18 | 19 | 20 | 21 | 22 | 23 | 24 | 25 | 26 | 27 | 28 | 29 | 30 | 31 |
| Mai | F | S | S | M | D | M | D | F | S | S | M | D | M | D | F | S | S | M | D | M | D | F | S | S | M | D | M | D | F | S | S |
| Juni | M | D | M | D | F | S | S | M | D | M | D | F | S | S | M | D | M | D | F | S | S | M | D | M | D | F | S | S | M | D | |
| Juli | M | D | F | S | S | M | D | M | D | F | S | S | M | D | M | D | F | S | S | M | D | M | D | F | S | S | M | D | M | D | F |
| August | S | S | M | D | M | D | F | S | S | M | D | M | D | F | S | S | M | D | M | D | F | S | S | M | D | M | D | F | S | S | M |
| September | D | M | D | F | S | S | M | D | M | D | F | S | S | M | D | M | D | F | S | S | M | D | M | D | F | S | S | M | D | M | |
| Oktober | D | F | S | S | M | D | M | D | F | S | S | M | D | M | D | F | S | S | M | D | M | D | F | S | S | M | D | M | D | F | S |
| November | S | M | D | M | D | F | S | S | M | D | M | D | F | S | S | M | D | M | D | F | S | S | M | D | M | D | F | S | S | M | |
| Dezember | D | M | D | F | S | S | M | D | M | D | F | S | S | M | D | M | D | F | S | S | M | D | M | D | F | S | S | M | D | M | D |
| 2027 | 1 | 2 | 3 | 4 | 5 | 6 | 7 | 8 | 9 | 10 | 11 | 12 | 13 | 14 | 15 | 16 | 17 | 18 | 19 | 20 | 21 | 22 | 23 | 24 | 25 | 26 | 27 | 28 | 29 | 30 | 31 |
| Januar | F | S | S | M | D | M | D | F | S | S | M | D | M | D | F | S | S | M | D | M | D | F | S | S | M | D | M | D | F | S | S |
| Februar | M | D | M | D | F | S | S | M | D | M | D | F | S | S | M | D | M | D | F | S | S | M | D | M | D | F | S | S | |||
| März | M | D | M | D | F | S | S | M | D | M | D | F | S | S | M | D | M | D | F | S | S | M | D | M | D | F | S | S | M | D | M |
| April | D | F | S | S | M | D | M | D | F | S | S | M | D | M | D | F | S | S | M | D | M | D | F | S | S | M | D | M | D | F | |
| Mai | S | S | M | D | M | D | F | S | S | M | D | M | D | F | S | S | M | D | M | D | F | S | S | M | D | M | D | F | S | S | M |
| Juni | D | M | D | F | S | S | M | D | M | D | F | S | S | M | D | M | D | F | S | S | M | D | M | D | F | S | S | M | D | M | |
| Juli | D | F | S | S | M | D | M | D | F | S | S | M | D | M | D | F | S | S | M | D | M | D | F | S | S | M | D | M | D | F | S |
| August | S | M | D | M | D | F | S | S | M | D | M | D | F | S | S | M | D | M | D | F | S | S | M | D | M | D | F | S | S | M | D |
| September | M | D | F | S | S | M | D | M | D | F | S | S | M | D | M | D | F | S | S | M | D | M | D | F | S | S | M | D | M | D | |
| Oktober | F | S | S | M | D | M | D | F | S | S | M | D | M | D | F | S | S | M | D | M | D | F | S | S | M | D | M | D | F | S | S |
| November | M | D | M | D | F | S | S | M | D | M | D | F | S | S | M | D | M | D | F | S | S | M | D | M | D | F | S | S | M | D | |
| Dezember | M | D | F | S | S | M | D | M | D | F | S | S | M | D | M | D | F | S | S | M | D | M | D | F | S | S | M | D | M | D | F |
| 2028 | 1 | 2 | 3 | 4 | 5 | 6 | 7 | 8 | 9 | 10 | 11 | 12 | 13 | 14 | 15 | 16 | 17 | 18 | 19 | 20 | 21 | 22 | 23 | 24 | 25 | 26 | 27 | 28 | 29 | 30 | 31 |
| Januar | S | S | M | D | M | D | F | S | S | M | D | M | D | F | S | S | M | D | M | D | F | S | S | M | D | M | D | F | S | S | M |
| Februar | D | M | D | F | S | S | M | D | M | D | F | S | S | M | D | M | D | F | S | S | M | D | M | D | F | S | S | M | D | ||
| März | M | D | F | S | S | M | D | M | D | F | S | S | M | D | M | D | F | S | S | M | D | M | D | F | S | S | M | D | M | D | F |
| April | S | S | M | D | M | D | F | S | S | M | D | M | D | F | S | S | M | D | M | D | F | S | S | M | D | M | D | F | S | S | |
| Mai | M | D | M | D | F | S | S | M | D | M | D | F | S | S | M | D | M | D | F | S | S | M | D | M | D | F | S | S | M | D | M |
| Juni | D | F | S | S | M | D | M | D | F | S | S | M | D | M | D | F | S | S | M | D | M | D | F | S | S | M | D | M | D | F | |
| Juli | S | S | M | D | M | D | F | S | S | M | D | M | D | F | S | S | M | D | M | D | F | S | S | M | D | M | D | F | S | S | M |
| August | D | M | D | F | S | S | M | D | M | D | F | S | S | M | D | M | D | F | S | S | M | D | M | D | F | S | S | M | D | M | D |
| September | F | S | S | M | D | M | D | F | S | S | M | D | M | D | F | S | S | M | D | M | D | F | S | S | M | D | M | D | F | S | |
| Oktober | S | M | D | M | D | F | S | S | M | D | M | D | F | S | S | M | D | M | D | F | S | S | M | D | M | D | F | S | S | M | D |
| November | M | D | F | S | S | M | D | M | D | F | S | S | M | D | M | D | F | S | S | M | D | M | D | F | S | S | M | D | M | D | |
| Dezember | F | S | S | M | D | M | D | F | S | S | M | D | M | D | F | S | S | M | D | M | D | F | S | S | M | D | M | D | F | S | S |
| 2029 | 1 | 2 | 3 | 4 | 5 | 6 | 7 | 8 | 9 | 10 | 11 | 12 | 13 | 14 | 15 | 16 | 17 | 18 | 19 | 20 | 21 | 22 | 23 | 24 | 25 | 26 | 27 | 28 | 29 | 30 | 31 |
| Januar | M | D | M | D | F | S | S | M | D | M | D | F | S | S | M | D | M | D | F | S | S | M | D | M | D | F | S | S | M | D | M |
| Februar | D | F | S | S | M | D | M | D | F | S | S | M | D | M | D | F | S | S | M | D | M | D | F | S | S | M | D | M | |||
| März | D | F | S | S | M | D | M | D | F | S | S | M | D | M | D | F | S | S | M | D | M | D | F | S | S | M | D | M | D | F | S |
| April | S | M | D | M | D | F | S | S | M | D | M | D | F | S | S | M | D | M | D | F | S | S | M | D | M | D | F | S | S | M | |
| Mai | D | M | D | F | S | S | M | D | M | D | F | S | S | M | D | M | D | F | S | S | M | D | |||||||||