
Ferienhaus 73122 in Præstemarken 11, Sønderho
In diesem gemütlichen Ferienhaus laden wir euch herzlich zu Wellness mit Schwimmbad, Whirlpool und Sauna in einer absolut schönen Lage in Præstemarken 11, im Feriengebiet Sønderho auf Fanø ein. Das Ferienhaus befindet sich in Sønderho im südlichen Teil von der wunderschönen Insel Fanø. Der Poolraum mit dem 18 Quadratmeter großen Pool beinhaltet außerdem noch einen Whirlpool und die hauseigene Sauna.
Ferienhaus mit Pool, Whirlpool und Sauna
Einer der Höhepunkte des Ferienhauses wird der Poolraum sein. Hier könnt ihr im Pool schwimmen und anschließend im Whirlpool und in der Sauna entspannen. Es gibt viele Möglichkeiten für Spiel und Spaß, aber auch für Entspannung und Wohlbefinden.
Nachdem die Betten in den vier zur Verfügung stehenden Schlafzimmern verteilt worden sind, könnt ihr entspannt das restliche Ferienhaus, die geschlossene Terrasse und das Grundstück erkunden.
In dem großen Wohnzimmer mit Kaminofen ist viel Platz, sodass ihr gemeinsam schöne Urlaubstage verbringen könnt. Am langen Esstisch könnt ihr, während das Feuer im Holzofen knistert, eure selbstgekochten Mahlzeiten essen und danach Karten oder Brettspiele spielen. Das Sofa lädt dazu ein, mal wieder ein gutes Buch zu lesen oder einen schönen Film zu schauen.
Für die kühleren Abende könnt ihr die energiesparende Wärmepumpe benutzen. Die ist nicht nur energiesparend, sondern sorgt auch noch für ein gutes Raumklima.
In der offenen Küche findet ihr alles, was ihr braucht, um euch gegenseitig mit köstlichen Mahlzeiten zu verwöhnen. Die Küchenausstattung bietet eine Mikrowelle, Kühlschrank mit Gefrierfach, Herd mit Ofen und natürlich einen Geschirrspüler, damit ihr die gemeinsamen Abende zusammen genießen könnt.
Die Badezimmer wurden mit Fußbodenheizung und Dusche ausgestattet. Da erfahrungsgemäß immer viele Handtücher gebraucht werden, wenn ein Ferienhaus einen Pool hat, sorgt die hauseigene Waschmaschine dafür, dass ihr täglich frische Handtücher zur Verfügung haben könnt.
Geschlossene Terrasse mit Sandkasten
Das Ferienhaus verfügt über eine schöne, umzäunte Terrasse, auf der die Kinder frei herumlaufen können, ohne dass ihr Angst haben müsst, dass sie abhanden kommen. Auf der Terrasse befindet sich auch ein Sandkasten und das Ferienhaus liegt auf einem großen kombinierten Natur- und Dünengrundstück mit viel Platz zum Spielen. Während die Kinder spielen, könnt ihr eine Tasse Kaffee genießen, oder euch in den Liegestühlen sonnen. Ein langer Tag kann idealerweise mit einem BBQ abgeschlossen werden.
Ferienhaus in Sønderho auf Fanø
Das Ferienhaus liegt im südlichen Teil der Ferieninsel Fanø. Sønderho ist ein kleines, gemütliches Städchen mit alten typischen Fanøhäusern. Hier kann man gemütlich durch die kleinen Gässchen schlendern, ein Softeis essen und es sich einfach gut gehen lassen. Das Sommerhaus liegt nur gut einen Kilometer vom schönsten Sandstrand entfernt. Besucht die große Robbenkolonie, sucht das Gold des Meeres – Bernstein – oder genießt einfach den endlos weiten Strand. Fanø ist Erholung pur.
Hausbilder
Ausstattung
Allgemeines
- Anzahl Personen: 10
- Anzahl Personen: 8
- Baujahr: 1992
- Grundstücksfläche: 2.906 m²
- Inkl. Endreinigung
- Nichtraucher
- Wohnfläche: 191 m²
Entfernungen
- Abstand Einkauf: 1.500 m
- Abstand Wasser: 1.000 m Nordsee
Wohnbereich
- Flachbildfernseher
- Kaminofen
Schlafbereich
- Anzahl Doppelbetten: 3
- Anzahl Etagenbetten : 1
- Anzahl Schlafzimmer: 4
Küche
- Geschirrspüler
- Herd Induktion mit Backofen
- Kühlschrank mit Gefrierfach
- Mikrowelle
Bad
- Anzahl Badezimmer: 2
- Waschmaschine
Wellness
- Pool
- Poolgröße: 18 m²
- Sauna
Multimedia
- Deutsches Fernsehen Dänische und Deutsche
- Internet
- Radio
Aussenbereich
- Gartenmöbel
-
Grundstück Dünengrundstück
Naturgrundstück - Grill
- Liegestuhl
- Sandkiste
- Sonnenschirm
- Terrasse: 1 offen
- Terrasse, geschlossen
Sonstiges
- Besonderheiten Abstellraum
-
Fußbodenheizung Bad
Schlafzimmer
Wohnbereich -
Fußbodenheizung Bad
Schlafzimmer
Wohnbereich - Hauswechseltag Freitag
- Kinderbett
- Kinderhochstuhl
- Wärmepumpe
Neben- und Verbrauchskosten
Die aktuellen Verbrauchskosten finden Sie im nächsten Schritt im Buchungsformular.
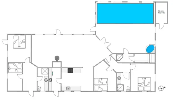
Raumaufteilung

Lageplan
Ferienhaus 73122
Præstemarken 11
Sønderho
6720 Fanø
Belegungskalender
- Reisedauer auswählen
- Anzahl Reisende auswählen
- Anreisetag im Belegungskalender anklicken
- Sie bekommen Verfügbarkeit und Preis angezeigt
2025 | 1 | 2 | 3 | 4 | 5 | 6 | 7 | 8 | 9 | 10 | 11 | 12 | 13 | 14 | 15 | 16 | 17 | 18 | 19 | 20 | 21 | 22 | 23 | 24 | 25 | 26 | 27 | 28 | 29 | 30 | 31 |
Oktober | M | D | F | S | S | M | D | M | D | F | S | S | M | D | M | D | F | S | S | M | D | M | D | F | S | S | M | D | M | D | F |
November | S | S | M | D | M | D | F | S | S | M | D | M | D | F | S | S | M | D | M | D | F | S | S | M | D | M | D | F | S | S | |
Dezember | M | D | M | D | F | S | S | M | D | M | D | F | S | S | M | D | M | D | F | S | S | M | D | M | D | F | S | S | M | D | M |
2026 | 1 | 2 | 3 | 4 | 5 | 6 | 7 | 8 | 9 | 10 | 11 | 12 | 13 | 14 | 15 | 16 | 17 | 18 | 19 | 20 | 21 | 22 | 23 | 24 | 25 | 26 | 27 | 28 | 29 | 30 | 31 |
Januar | D | F | S | S | M | D | M | D | F | S | S | M | D | M | D | F | S | S | M | D | M | D | F | S | S | M | D | M | D | F | S |
Februar | S | M | D | M | D | F | S | S | M | D | M | D | F | S | S | M | D | M | D | F | S | S | M | D | M | D | F | S | |||
März | S | M | D | M | D | F | S | S | M | D | M | D | F | S | S | M | D | M | D | F | S | S | M | D | M | D | F | S | S | M | D |
April | M | D | F | S | S | M | D | M | D | F | S | S | M | D | M | D | F | S | S | M | D | M | D | F | S | S | M | D | M | D | |
Mai | F | S | S | M | D | M | D | F | S | S | M | D | M | D | F | S | S | M | D | M | D | F | S | S | M | D | M | D | F | S | S |
Juni | M | D | M | D | F | S | S | M | D | M | D | F | S | S | M | D | M | D | F | S | S | M | D | M | D | F | S | S | M | D | |
Juli | M | D | F | S | S | M | D | M | D | F | S | S | M | D | M | D | F | S | S | M | D | M | D | F | S | S | M | D | M | D | F |
August | S | S | M | D | M | D | F | S | S | M | D | M | D | F | S | S | M | D | M | D | F | S | S | M | D | M | D | F | S | S | M |
September | D | M | D | F | S | S | M | D | M | D | F | S | S | M | D | M | D | F | S | S | M | D | M | D | F | S | S | M | D | M | |
Oktober | D | F | S | S | M | D | M | D | F | S | S | M | D | M | D | F | S | S | M | D | M | D | F | S | S | M | D | M | D | F | S |
November | S | M | D | M | D | F | S | S | M | D | M | D | F | S | S | M | D | M | D | F | S | S | M | D | M | D | F | S | S | M | |
Dezember | D | M | D | F | S | S | M | D | M | D | F | S | S | M | D | M | D | F | S | S | M | D | M | D | F | S | S | M | D | M | D |
2027 | 1 | 2 | 3 | 4 | 5 | 6 | 7 | 8 | 9 | 10 | 11 | 12 | 13 | 14 | 15 | 16 | 17 | 18 | 19 | 20 | 21 | 22 | 23 | 24 | 25 | 26 | 27 | 28 | 29 | 30 | 31 |
Januar | F | S | S | M | D | M | D | F | S | S | M | D | M | D | F | S | S | M | D | M | D | F | S | S | M | D | M | D | F | S | S |
Februar | M | D | M | D | F | S | S | M | D | M | D | F | S | S | M | D | M | D | F | S | S | M | D | M | D | F | S | S | |||
März | M | D | M | D | F | S | S | M | D | M | D | F | S | S | M | D | M | D | F | S | S | M | D | M | D | F | S | S | M | D | M |
April | D | F | S | S | M | D | M | D | F | S | S | M | D | M | D | F | S | S | M | D | M | D | F | S | S | M | D | M | D | F | |
Mai | S | S | M | D | M | D | F | S | S | M | D | M | D | F | S | S | M | D | M | D | F | S | S | M | D | M | D | F | S | S | M |
Juni | D | M | D | F | S | S | M | D | M | D | F | S | S | M | D | M | D | F | S | S | M | D | M | D | F | S | S | M | D | M | |
Juli | D | F | S | S | M | D | M | D | F | S | S | M | D | M | D | F | S | S | M | D | M | D | F | S | S | M | D | M | D | F | S |
August | S | M | D | M | D | F | S | S | M | D | M | D | F | S | S | M | D | M | D | F | S | S | M | D | M | D | F | S | S | M | D |
September | M | D | F | S | S | M | D | M | D | F | S | S | M | D | M | D | F | S | S | M | D | M | D | F | S | S | M | D | M | D | |
Oktober | F | S | S | M | D | M | D | F | S | S | M | D | M | D | F | S | S | M | D | M | D | F | S | S | M | D | M | D | F | S | S |
November | M | D | M | D | F | S | S | M | D | M | D | F | S | S | M | D | M | D | F | S | S | M | D | M | D | F | S | S | M | D | |
Dezember | M | D | F | S | S | M | D | M | D | F | S | S | M | D | M | D | F | S | S | M | D | M | D | F | S | S | M | D | M | D | F |
2028 | 1 | 2 | 3 | 4 | 5 | 6 | 7 | 8 | 9 | 10 | 11 | 12 | 13 | 14 | 15 | 16 | 17 | 18 | 19 | 20 | 21 | 22 | 23 | 24 | 25 | 26 | 27 | 28 | 29 | 30 | 31 |
Januar | S | S | M | D | M | D | F | S | S | M | D | M | D | F | S | S | M | D | M | D | F | S | S | M | D | M | D | F | S | S | M |
Februar | D | M | D | F | S | S | M | D | M | D | F | S | S | M | D | M | D | F | S | S | M | D | M | D | F | S | S | M | D | ||
März | M | D | F | S | S | M | D | M | D | F | S | S | M | D | M | D | F | S | S | M | D | M | D | F | S | S | M | D | M | D | F |
April | S | S | M | D | M | D | F | S | S | M | D | M | D | F | S | S | M | D | M | D | F | S | S | M | D | M | D | F | S | S | |
Mai | M | D | M | D | F | S | S | M | D | M | D | F | S | S | M | D | M | D | F | S | S | M | D | M | D | F | S | S | M | D | M |
Juni | D | F | S | S | M | D | M | D | F | S | S | M | D | M | D | F | S | S | M | D | M | D | F | S | S | M | D | M | D | F | |
Juli | S | S | M | D | M | D | F | S | S | M | D | M | D | F | S | S | M | D | M | D | F | S | S | M | D | M | D | F | S | S | M |
August | D | M | D | F | S | S | M | D | M | D | F | S | S | M | D | M | D | F | S | S | M | D | M | D | F | S | S | M | D | M | D |
September | F | S | S | M | D | M | D | F | S | S | M | D | M | D | F | S | S | M | D | M | D | F | S | S | M | D | M | D | F | S | |
Oktober | S | M | D | M | D | F | S | S | M | D | M | D | F | S | S |