Ferienhaus A1114 in Arvidvej 37, Bjerregard
Im Arvidvej 37 erwartet euch ein geräumiges und gemütlich eingerichtetes Ferienhaus in angenehmer Nachbarschaft anderer Ferienhäuser, welches in 2025 renoviert wurde. Lauscht dem Meeresrauschen und genießt die frische Luft auf der überdachten Terrasse oder in einem Liegestuhl auf der Südterrasse. Mit bis zu 8 Personen könnt ihr in diesem wunderschönen Ferienhaus entspannte Ferientage verbringen.
Vier Schlafzimmer und Wohnraum mit Kamin und Wärmepumpe
Der Schlafbereich des Ferienhauses besteht aus vier einzelnen Schlafzimmern, wobei zwei mit Doppelbetten und zwei mit jeweils zwei Einzelbetten ausgestattet sind. Das Badezimmer verfügt über Fußbodenheizung.
Eine energiesparende Wärmepumpe sorgt während eurem Aufenthalt für eine angenehme Temperatur im Wohnbereich. Macht es euch nun am wärmenden Kamin gemütlich und genießt einen Filmabend in der großen Sofaecke mit der ganzen Familie.
In der offenen, gut ausgestatteten Küche könnt ihr euch auf moderne Annehmlichkeiten freuen. Der Geschirrspüler übernimmt den Abwasch nach dem Essen, während ihr am Induktionskochfeld eure Lieblingsgerichte zubereitet. Helle Fronten und durchdachte Details machen den Raum zu einem angenehmen Ort für gemeinsames Kochen.
Das Badezimmer ist freundlich und lichtdurchflutet gestaltet. Besonders entspannend ist die Badewanne – perfekt für ein ausgedehntes Schaumbad nach einem langen Tag am Strand oder einem Spaziergang in der Natur.
Natürlich abgeschirmte Terrasse für viel Privatspäre an der frischen Luft
Nach Süden könnt ihr das Naturgeschehen von der teilweise überdachten Terrasse aus genießen. Hier stehen euch Gartenmöbel, Liegestühle und ein Grill zur Verfügung. Obwohl das Ferienhaus in einer Nachbarschaft mit anderen Ferienhäusern liegt, wird die Privatsphäre nicht gestört.
Urlaub in Bjerregård an der dänischen Westküste
Zwischen Fjord und Nordsee kann man es sich gutgehen lassen. Hier erwarten euch eine Vielzahl an Möglichkeiten für Wassersport und Angelausflüge sowie die pure Natur der dänischen Westküste für Fahrradtouren und ausgiebige Spaziergänge.
Für ein Picknick im grünen gibt es in Bjerregård einen lokalen Kaufmann, wo ihr auch frischen Fisch und leckere Backwaren erhalten könnt. Für größere Einkäufe lohnt sich ein Besuch in Nørre Nebel und in Hvide Sande.
Hausbilder
Ausstattung
Allgemeines
- Anzahl Personen: 8
- Anzahl Personen: 8
- Baujahr: 1985
- Grundstücksfläche: 1.200 m²
- Inkl. Endreinigung
- Nichtraucher
- Renovierung: 2025
- Wohnfläche: 111 m²
Entfernungen
- Abstand Einkauf: 1.900 m
- Abstand Wasser: 200 m Nordsee
Wohnbereich
- Flachbildfernseher
- Kaminofen
Schlafbereich
- Anzahl Doppelbetten: 2
- Anzahl Einzelbetten: 4
- Anzahl Schlafzimmer: 4
Küche
- Geschirrspüler
- Herd Induktion mit Backofen
- Kühlschrank mit Gefrierfach
- Kühlschrank mit Gefrierfach
- Mikrowelle
Bad
- Anzahl Badezimmer: 1
- Waschmaschine
Multimedia
- CD-Player
- Deutsches Fernsehen
- DVD-Player
- Internationales Fernsehen
- Internet
- Radio
Aussenbereich
- Gartenmöbel
- Grundstück Naturgrundstück
- Grill
- Liegestuhl
- Sonnenschirm
- Terrasse: 1 offen
- Terrasse, überdacht
Sonstiges
- Besonderheiten Abstellraum
-
Fußbodenheizung Bad
Schlafzimmer - Hauswechseltag Freitag
- Kinderbett
- Kinderhochstuhl
- Wärmepumpe
Neben- und Verbrauchskosten
Die aktuellen Verbrauchskosten finden Sie im nächsten Schritt im Buchungsformular.
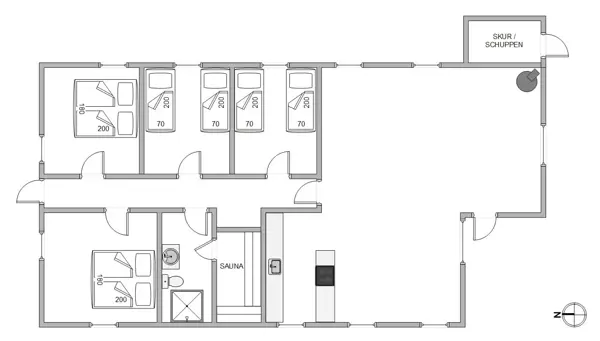
Raumaufteilung
Lageplan
Ferienhaus A1114
Arvidvej 37
Bjerregård
6960 Hvide Sande
Belegungskalender
- Reisedauer auswählen
- Anzahl Reisende auswählen
- Anreisetag im Belegungskalender anklicken
- Sie bekommen Verfügbarkeit und Preis angezeigt
| 2026 | 1 | 2 | 3 | 4 | 5 | 6 | 7 | 8 | 9 | 10 | 11 | 12 | 13 | 14 | 15 | 16 | 17 | 18 | 19 | 20 | 21 | 22 | 23 | 24 | 25 | 26 | 27 | 28 | 29 | 30 | 31 |
| Mai | F | S | S | M | D | M | D | F | S | S | M | D | M | D | F | S | S | M | D | M | D | F | S | S | M | D | M | D | F | S | S |
| Juni | M | D | M | D | F | S | S | M | D | M | D | F | S | S | M | D | M | D | F | S | S | M | D | M | D | F | S | S | M | D | |
| Juli | M | D | F | S | S | M | D | M | D | F | S | S | M | D | M | D | F | S | S | M | D | M | D | F | S | S | M | D | M | D | F |
| August | S | S | M | D | M | D | F | S | S | M | D | M | D | F | S | S | M | D | M | D | F | S | S | M | D | M | D | F | S | S | M |
| September | D | M | D | F | S | S | M | D | M | D | F | S | S | M | D | M | D | F | S | S | M | D | M | D | F | S | S | M | D | M | |
| Oktober | D | F | S | S | M | D | M | D | F | S | S | M | D | M | D | F | S | S | M | D | M | D | F | S | S | M | D | M | D | F | S |
| November | S | M | D | M | D | F | S | S | M | D | M | D | F | S | S | M | D | M | D | F | S | S | M | D | M | D | F | S | S | M | |
| Dezember | D | M | D | F | S | S | M | D | M | D | F | S | S | M | D | M | D | F | S | S | M | D | M | D | F | S | S | M | D | M | D |
| 2027 | 1 | 2 | 3 | 4 | 5 | 6 | 7 | 8 | 9 | 10 | 11 | 12 | 13 | 14 | 15 | 16 | 17 | 18 | 19 | 20 | 21 | 22 | 23 | 24 | 25 | 26 | 27 | 28 | 29 | 30 | 31 |
| Januar | F | S | S | M | D | M | D | F | S | S | M | D | M | D | F | S | S | M | D | M | D | F | S | S | M | D | M | D | F | S | S |
| Februar | M | D | M | D | F | S | S | M | D | M | D | F | S | S | M | D | M | D | F | S | S | M | D | M | D | F | S | S | |||
| März | M | D | M | D | F | S | S | M | D | M | D | F | S | S | M | D | M | D | F | S | S | M | D | M | D | F | S | S | M | D | M |
| April | D | F | S | S | M | D | M | D | F | S | S | M | D | M | D | F | S | S | M | D | M | D | F | S | S | M | D | M | D | F | |
| Mai | S | S | M | D | M | D | F | S | S | M | D | M | D | F | S | S | M | D | M | D | F | S | S | M | D | M | D | F | S | S | M |
| Juni | D | M | D | F | S | S | M | D | M | D | F | S | S | M | D | M | D | F | S | S | M | D | M | D | F | S | S | M | D | M | |
| Juli | D | F | S | S | M | D | M | D | F | S | S | M | D | M | D | F | S | S | M | D | M | D | F | S | S | M | D | M | D | F | S |
| August | S | M | D | M | D | F | S | S | M | D | M | D | F | S | S | M | D | M | D | F | S | S | M | D | M | D | F | S | S | M | D |
| September | M | D | F | S | S | M | D | M | D | F | S | S | M | D | M | D | F | S | S | M | D | M | D | F | S | S | M | D | M | D | |
| Oktober | F | S | S | M | D | M | D | F | S | S | M | D | M | D | F | S | S | M | D | M | D | F | S | S | M | D | M | D | F | S | S |
| November | M | D | M | D | F | S | S | M | D | M | D | F | S | S | M | D | M | D | F | S | S | M | D | M | D | F | S | S | M | D | |
| Dezember | M | D | F | S | S | M | D | M | D | F | S | S | M | D | M | D | F | S | S | M | D | M | D | F | S | S | M | D | M | D | F |
| 2028 | 1 | 2 | 3 | 4 | 5 | 6 | 7 | 8 | 9 | 10 | 11 | 12 | 13 | 14 | 15 | 16 | 17 | 18 | 19 | 20 | 21 | 22 | 23 | 24 | 25 | 26 | 27 | 28 | 29 | 30 | 31 |
| Januar | S | S | M | D | M | D | F | S | S | M | D | M | D | F | S | S | M | D | M | D | F | S | S | M | D | M | D | F | S | S | M |
| Februar | D | M | D | F | S | S | M | D | M | D | F | S | S | M | D | M | D | F | S | S | M | D | M | D | F | S | S | M | D | ||
| März | M | D | F | S | S | M | D | M | D | F | S | S | M | D | M | D | F | S | S | M | D | M | D | F | S | S | M | D | M | D | F |
| April | S | S | M | D | M | D | F | S | S | M | D | M | D | F | S | S | M | D | M | D | F | S | S | M | D | M | D | F | S | S | |
| Mai | M | D | M | D | F | S | S | M | D | M | D | F | S | S | M | D | M | D | F | S | S | M | D | M | D | F | S | S | M | D | M |
| Juni | D | F | S | S | M | D | M | D | F | S | S | M | D | M | D | F | S | S | M | D | M | D | F | S | S | M | D | M | D | F | |
| Juli | S | S | M | D | M | D | F | S | S | M | D | M | D | F | S | S | M | D | M | D | F | S | S | M | D | M | D | F | S | S | M |
| August | D | M | D | F | S | S | M | D | M | D | F | S | S | M | D | M | D | F | S | S | M | D | M | D | F | S | S | M | D | M | D |
| September | F | S | S | M | D | M | D | F | S | S | M | D | M | D | F | S | S | M | D | M | D | F | S | S | M | D | M | D | F | S | |
| Oktober | S | M | D | M | D | F | S | S | M | D | M | D | F | S | S | M | D | M | D | F | S | S | M | D | M | D | F | S | S | M | D |
| November | M | D | F | S | S | M | D | M | D | F | S | S | M | D | M | D | F | S | S | M | D | M | D | F | S | S | M | D | M | D | |
| Dezember | F | S | S | M | D | M | D | F | S | S | M | D | M | D | F | S | S | M | D | M | D | F | S | S | M | D | M | D | F | S | S |
| 2029 | 1 | 2 | 3 | 4 | 5 | 6 | 7 | 8 | 9 | 10 | 11 | 12 | 13 | 14 | 15 | 16 | 17 | 18 | 19 | 20 | 21 | 22 | 23 | 24 | 25 | 26 | 27 | 28 | 29 | 30 | 31 |
| Januar | M | D | M | D | F | S | S | M | D | M | D | F | S | S | M | D | M | D | F | S | |||||||||||