Ferienhaus A1118 in P Chr Dahls Vej 6, Bjerregard
Dieses liebevoll eingerichtete, gemütliche Ferienhaus für 4 Personen befindet sich auf P. Chr. Dahlsvej 6 in ruhiger, naturnaher Lage. Auf 65 m² Wohnfläche bietet es alles, was ihr für eine entspannte Auszeit an der dänischen Westküste braucht – ideal für Paare oder eine kleine Familie. Die 2 Doppelbetten mit den Maßen 140x200 sorgen für erholsame Nächte, während der gemütliche Wohnbereich zum Abschalten einlädt. Eine umfangreiche Renovierung ist für das Jahr 2026 geplant, sodass euch künftig noch mehr Komfort erwartet.
Offener Wohnbereich, Wintergarten und praktische Ausstattung
Das Ferienhaus empfängt euch mit einer freundlichen Atmosphäre und ist funktional und gleichzeitig gemütlich eingerichtet. Besonders der Wintergarten bietet einen herrlichen Platz zum Lesen, Entspannen oder einfach, um die Natur auch bei nordischem Wetter zu genießen. Der Holzofen im Wohnbereich sorgt an Herbst- oder Winterabenden für wohlige Wärme und schafft eine hyggelige Stimmung, in der ihr einfach zur Ruhe kommen könnt.
In der gut ausgestatteten Küche findet ihr unter anderem einen modernen Induktionsherd. Für zusätzlichen Komfort steht euch ein Waschtrockner zur Verfügung – besonders praktisch für längere Aufenthalte. Das kleine, aber feine Badezimmer verfügt über Fußbodenheizung, die besonders an kühleren Tagen für ein angenehmes Raumklima sorgt.
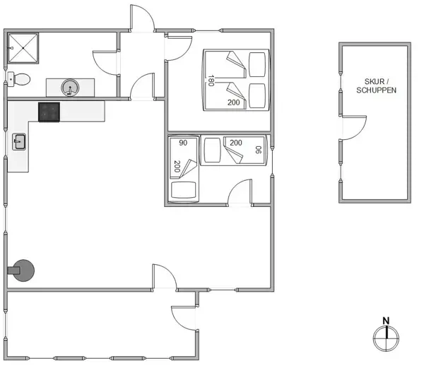
Außerdem gibt es ein gemütliches Nebengebäude mit einem Bett von 140 x 200 cm.
Sonnige Terrasse mit Gasgrill und Naturgefühl
Draußen erwartet euch eine offene Terrasse, auf der ihr die frische Luft in vollen Zügen genießen könnt. Ob beim Frühstück im Freien, einem Buch in der Nachmittagssonne oder beim gemeinsamen Abendessen – der Gasgrill steht bereit für gesellige Stunden unter freiem Himmel.
Bis zur Nordsee sind es nur etwa 650 Meter, sodass ihr den Strand bequem zu Fuß erreicht. Der nächste Kaufmann liegt rund 1800 Meter entfernt und versorgt euch mit allem, was ihr für den Urlaub braucht – von frischen Brötchen bis zum Eis am Nachmittag.
Die ruhige Umgebung macht den Aufenthalt besonders erholsam, während Vögel zwitschern und der Wind durch das Dünengras weht.
P. Chr. Dahls Vej – Ferienidylle zwischen Dünen, Nordsee und Fjord
Der P. Chr. Dahls Vej liegt im südlichen Teil von Bjerregård, einem der beliebtesten Feriengebiete an der dänischen Westküste. Eingebettet zwischen der rauen Nordsee und dem ruhigen Ringkøbing Fjord, bietet diese Lage eine perfekte Kombination aus Natur, Ruhe und Nähe zum Wasser. Die Umgebung ist geprägt von weiten Dünenlandschaften, geschützten Heideflächen und einem endlosen Sandstrand, der nur wenige Gehminuten entfernt ist.
Natur pur und erholsame Ruhe
Die Ferienhäuser entlang des P. Chr. Dahls Vej befinden sich auf großzügigen Naturgrundstücken, oft am Ende kleiner Stichwege. Diese ruhige Lage ermöglicht es euch, die Stille der Natur zu genießen und gleichzeitig schnell den Strand zu erreichen – ideal für Spaziergänge, Sonnenbäder oder ein erfrischendes Bad in der Nordsee. Die Nähe zu geschützten Heidegebieten und der abwechslungsreichen Dünenlandschaft macht das Gebiet besonders attraktiv.
Hausbilder
Ausstattung
Allgemeines
- Anbau
- Anzahl Haustiere maximal: 1
- Anzahl Personen: 4
- Anzahl Personen: 6
- Baujahr: 1949
- Grundstücksfläche: 1.050 m²
- Haustiere erlaubt
- Nichtraucher
- Renovierung: 2026
- Wohnfläche: 65 m²
Entfernungen
- Abstand Einkauf: 1.800 m
- Abstand Wasser: 650 m Nordsee
Wohnbereich
- Flachbildfernseher
- Kaminofen
Schlafbereich
- Anzahl Doppelbetten: 3
- Anzahl Schlafzimmer: 2
Küche
- Geschirrspüler
- Herd Induktion mit Backofen
- Kühlschrank
- Mikrowelle
- Tiefkühler: 45 l
Bad
- Anzahl Badezimmer: 1
- Trockner
- Waschmaschine
Multimedia
- Internationales Fernsehen
- Internet
Aussenbereich
- Gartenmöbel
-
Grundstück Dünengrundstück
Naturgrundstück - Grill Gasgrill
- Liegestuhl
- Sonnenschirm
- Terrasse: 1 offen
Sonstiges
-
Besonderheiten Abstellraum
iPod Dock - Fußbodenheizung Bad
- Hauswechseltag Sonntag
- Wärmepumpe
- Wintergarten
Neben- und Verbrauchskosten
Die aktuellen Verbrauchskosten finden Sie im nächsten Schritt im Buchungsformular.
Raumaufteilung
Lageplan
Ferienhaus A1118
P Chr Dahls Vej 6
Bjerregård
6960 Hvide Sande
Belegungskalender
- Reisedauer auswählen
- Anzahl Reisende auswählen
- Anreisetag im Belegungskalender anklicken
- Sie bekommen Verfügbarkeit und Preis angezeigt
| 2026 | 1 | 2 | 3 | 4 | 5 | 6 | 7 | 8 | 9 | 10 | 11 | 12 | 13 | 14 | 15 | 16 | 17 | 18 | 19 | 20 | 21 | 22 | 23 | 24 | 25 | 26 | 27 | 28 | 29 | 30 | 31 |
| Mai | F | S | S | M | D | M | D | F | S | S | M | D | M | D | F | S | S | M | D | M | D | F | S | S | M | D | M | D | F | S | S |
| Juni | M | D | M | D | F | S | S | M | D | M | D | F | S | S | M | D | M | D | F | S | S | M | D | M | D | F | S | S | M | D | |
| Juli | M | D | F | S | S | M | D | M | D | F | S | S | M | D | M | D | F | S | S | M | D | M | D | F | S | S | M | D | M | D | F |
| August | S | S | M | D | M | D | F | S | S | M | D | M | D | F | S | S | M | D | M | D | F | S | S | M | D | M | D | F | S | S | M |
| September | D | M | D | F | S | S | M | D | M | D | F | S | S | M | D | M | D | F | S | S | M | D | M | D | F | S | S | M | D | M | |
| Oktober | D | F | S | S | M | D | M | D | F | S | S | M | D | M | D | F | S | S | M | D | M | D | F | S | S | M | D | M | D | F | S |
| November | S | M | D | M | D | F | S | S | M | D | M | D | F | S | S | M | D | M | D | F | S | S | M | D | M | D | F | S | S | M | |
| Dezember | D | M | D | F | S | S | M | D | M | D | F | S | S | M | D | M | D | F | S | S | M | D | M | D | F | S | S | M | D | M | D |
| 2027 | 1 | 2 | 3 | 4 | 5 | 6 | 7 | 8 | 9 | 10 | 11 | 12 | 13 | 14 | 15 | 16 | 17 | 18 | 19 | 20 | 21 | 22 | 23 | 24 | 25 | 26 | 27 | 28 | 29 | 30 | 31 |
| Januar | F | S | S | M | D | M | D | F | S | S | M | D | M | D | F | S | S | M | D | M | D | F | S | S | M | D | M | D | F | S | S |
| Februar | M | D | M | D | F | S | S | M | D | M | D | F | S | S | M | D | M | D | F | S | S | M | D | M | D | F | S | S | |||
| März | M | D | M | D | F | S | S | M | D | M | D | F | S | S | M | D | M | D | F | S | S | M | D | M | D | F | S | S | M | D | M |
| April | D | F | S | S | M | D | M | D | F | S | S | M | D | M | D | F | S | S | M | D | M | D | F | S | S | M | D | M | D | F | |
| Mai | S | S | M | D | M | D | F | S | S | M | D | M | D | F | S | S | M | D | M | D | F | S | S | M | D | M | D | F | S | S | M |
| Juni | D | M | D | F | S | S | M | D | M | D | F | S | S | M | D | M | D | F | S | S | M | D | M | D | F | S | S | M | D | M | |
| Juli | D | F | S | S | M | D | M | D | F | S | S | M | D | M | D | F | S | S | M | D | M | D | F | S | S | M | D | M | D | F | S |
| August | S | M | D | M | D | F | S | S | M | D | M | D | F | S | S | M | D | M | D | F | S | S | M | D | M | D | F | S | S | M | D |
| September | M | D | F | S | S | M | D | M | D | F | S | S | M | D | M | D | F | S | S | M | D | M | D | F | S | S | M | D | M | D | |
| Oktober | F | S | S | M | D | M | D | F | S | S | M | D | M | D | F | S | S | M | D | M | D | F | S | S | M | D | M | D | F | S | S |
| November | M | D | M | D | F | S | S | M | D | M | D | F | S | S | M | D | M | D | F | S | S | M | D | M | D | F | S | S | M | D | |
| Dezember | M | D | F | S | S | M | D | M | D | F | S | S | M | D | M | D | F | S | S | M | D | M | D | F | S | S | M | D | M | D | F |
| 2028 | 1 | 2 | 3 | 4 | 5 | 6 | 7 | 8 | 9 | 10 | 11 | 12 | 13 | 14 | 15 | 16 | 17 | 18 | 19 | 20 | 21 | 22 | 23 | 24 | 25 | 26 | 27 | 28 | 29 | 30 | 31 |
| Januar | S | S | M | D | M | D | F | S | S | M | D | M | D | F | S | S | M | D | M | D | F | S | S | M | D | M | D | F | S | S | M |
| Februar | D | M | D | F | S | S | M | D | M | D | F | S | S | M | D | M | D | F | S | S | M | D | M | D | F | S | S | M | D | ||
| März | M | D | F | S | S | M | D | M | D | F | S | S | M | D | M | D | F | S | S | M | D | M | D | F | S | S | M | D | M | D | F |
| April | S | S | M | D | M | D | F | S | S | M | D | M | D | F | S | S | M | D | M | D | F | S | S | M | D | M | D | F | S | S | |
| Mai | M | D | M | D | F | S | S | M | D | M | D | F | S | S | M | D | M | D | F | S | S | M | D | M | D | F | S | S | M | D | M |
| Juni | D | F | S | S | M | D | M | D | F | S | S | M | D | M | D | F | S | S | M | D | M | D | F | S | S | M | D | M | D | F | |
| Juli | S | S | M | D | M | D | F | S | S | M | D | M | D | F | S | S | M | D | M | D | F | S | S | M | D | M | D | F | S | S | M |
| August | D | M | D | F | S | S | M | D | M | D | F | S | S | M | D | M | D | F | S | S | M | D | M | D | F | S | S | M | D | M | D |
| September | F | S | S | M | D | M | D | F | S | S | M | D | M | D | F | S | S | M | D | M | D | F | S | S | M | D | M | D | F | S | |
| Oktober | S | M | D | M | D | F | S | S | M | D | M | D | F | S | S | M | D | M | D | F | S | S | M | D | M | D | F | S | S | M | D |
| November | M | D | F | S | S | M | D | M | D | F | S | S | M | D | M | D | F | S | S | M | D | M | D | F | S | S | M | D | M | D | |
| Dezember | F | S | S | M | D | M | D | F | S | S | M | D | M | D | F | S | S | M | D | M | D | F | S | S | M | D | M | D | F | S | S |
| 2029 | 1 | 2 | 3 | 4 | 5 | 6 | 7 | 8 | 9 | 10 | 11 | 12 | 13 | 14 | 15 | 16 | 17 | 18 | 19 | 20 | 21 | 22 | 23 | 24 | 25 | 26 | 27 | 28 | 29 | 30 | 31 |
| Januar | M | D | M | D | F | S | S | M | D | M | D | F | S | S | M | D | M | D | F | S | |||||||||||