Ferienhaus J6060 in Ternedalen 37, Houvig
Dieses Ferienhaus im Ternedalen 37 in Houvig für 6 Personen überzeugt nicht nur durch die Sauna, den Whirlpool oder den Kamin, es ist auch energetisch modern gebaut, mit Wärmepumpe und Solar auf dem Dach.
Das helle, offen gestaltete Ferienhaus besticht auch im Außenbereich durch eine tolle, geschützte Terrasse und ein wundervolles Dünengrundstück in Houvig. Wenn ihr mit dem E-Auto anreist, dann könnt ihr euer Auto direkt am Ferienhaus aufladen, da es eine Auflademöglichkeit am Ferienhaus gibt. Die passenden Ladekabel/Adapter bitte selbst mitbringen.
Lichtdurchflutete, offene Raumgestaltung mit Kamin
Das Ferienhaus bietet durch seine helle, offene Gestaltung ein ausgezeichnetes Wohngefühl. Das Zentrum des Ferienhauses ist der offene Wohn- und Essbereich, von dem du direkten Zugang zur offenen Küche hast. Gemeinsames Kochen und ein ausgiebiges Schlemmen eurer Köstlichkeiten wird hier zum angenehmen Genuss. Im Wohnbereich lässt es sich herrlich vor dem Kamin aushalten und im Essbereich kann der Spieleabend eingeläutet werden. Im Größerem der zwei Badezimmer befindet sich der Whirlpool und die Sauna, wo ihr euch richtig ausspannen und erholen könnt. Die Fußbodenheizung in den Badezimmern lässt es zusätzlich gemütlich werden.
Auf dem Fernseher im Haus stehen deutsche Programme zur Verfügung und eine Waschmaschine, sollte es mit der Bekleidung knapp werden.
Schöne überdachte Terrasse im Ternedalen 37
Das wundervolle 1460m2 Naturgrundstück liegt leicht erhöht strandnah in den Dünen von Houvig. Von hier habt ihr einen wundervollen Blick über die wunderschöne Landschaft von Houvig und könnt das Gefühl der Nordsee förmlich spüren. Egal wie stark der Nordseewind auch weht, auf der geschützten, überdachten Terrasse könnt ihr die Tage und Abende jederzeit genießen.
Erfreut euch an wundervollen Sonnenuntergängen, leckeren Grillabenden oder streckt eure Nase Richtung Sonne beim Sonnenbad. Die fantastische Lage wird euch überzeugen und zu eurer Entspannung beitragen. Auch die Kinder kommen durch die Sandkiste und das große Grundstück voll auf ihre Kosten.
Herrliche Ruhe in den Dünen in Zentrumnähe
Die Umgebung rund um Søndervig, bietet euch eine Vielzahl an Möglichkeiten. In der Natur könnt ihr eure Ruhe genießen und die Herrlichkeit der Nordsee bei langen Spaziergängen spüren. Macht euch mit dem Fahrrad auf dem Weg rund um den Fjord und lasst euch begeistern von der Vielseitigkeit der Landschaft. In Søndervig direkt erwarten euch dann viele Restaurants, Supermärkte, Cafes, Eisdielen, und diverse Geschäfte, die zum Shoppen einladen. Im Erlebnisbad Lalandia könnt ihr euch richtig austoben auf den Wasserrutschen oder im Indoorspielplatz
Hausbilder
Ausstattung
Allgemeines
- Anzahl Personen: 6
- Anzahl Personen: 6
- Baujahr: 2009
- Grundstücksfläche: 1.460 m²
- Inkl. Endreinigung
- Nichtraucher
- Wohnfläche: 110 m²
Entfernungen
- Abstand Einkauf: 250 m
- Abstand Wasser: 300 m Nordsee
Wohnbereich
- Flachbildfernseher
- Kaminofen
Schlafbereich
- Anzahl Doppelbetten: 2
- Anzahl Einzelbetten: 2
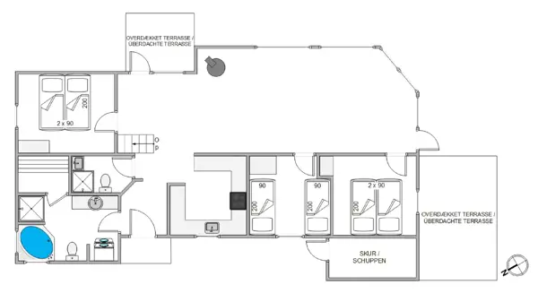
- Anzahl Schlafzimmer: 3
Küche
- Geschirrspüler
- Herd Induktion mit Backofen
- Kühlschrank
- Mikrowelle
- Tiefkühler: 100 l
Bad
- Anzahl Badezimmer: 2
- Trockner
- Waschmaschine
Wellness
- Sauna
Multimedia
- Deutsches Fernsehen Dänische und Deutsche
- Internationales Fernsehen
- Internet
Aussenbereich
- Gartenmöbel
-
Grundstück Dünengrundstück
Naturgrundstück - Grill Gasgrill
- Liegestuhl
- Sandkiste
- Sonnenschirm
- Terrasse: 1 abgeschirmt
- Terrasse, geschlossen
- Terrasse, überdacht
Sonstiges
- Besonderheiten Abstellraum
- Fußbodenheizung Bad
- Hauswechseltag Freitag
- Kinderbett
- Kinderhochstuhl
- Ladestation für Elektroautos
- Wärmepumpe
Neben- und Verbrauchskosten
Die aktuellen Verbrauchskosten finden Sie im nächsten Schritt im Buchungsformular.
Raumaufteilung
Lageplan
Ferienhaus J6060
Ternedalen 37
Houvig
6950 Ringkøbing
Belegungskalender
- Reisedauer auswählen
- Anzahl Reisende auswählen
- Anreisetag im Belegungskalender anklicken
- Sie bekommen Verfügbarkeit und Preis angezeigt
| 2025 | 1 | 2 | 3 | 4 | 5 | 6 | 7 | 8 | 9 | 10 | 11 | 12 | 13 | 14 | 15 | 16 | 17 | 18 | 19 | 20 | 21 | 22 | 23 | 24 | 25 | 26 | 27 | 28 | 29 | 30 | 31 |
| Dezember | M | D | M | D | F | S | S | M | D | M | D | F | S | S | M | D | M | D | F | S | S | M | D | M | D | F | S | S | M | D | M |
| 2026 | 1 | 2 | 3 | 4 | 5 | 6 | 7 | 8 | 9 | 10 | 11 | 12 | 13 | 14 | 15 | 16 | 17 | 18 | 19 | 20 | 21 | 22 | 23 | 24 | 25 | 26 | 27 | 28 | 29 | 30 | 31 |
| Januar | D | F | S | S | M | D | M | D | F | S | S | M | D | M | D | F | S | S | M | D | M | D | F | S | S | M | D | M | D | F | S |
| Februar | S | M | D | M | D | F | S | S | M | D | M | D | F | S | S | M | D | M | D | F | S | S | M | D | M | D | F | S | |||
| März | S | M | D | M | D | F | S | S | M | D | M | D | F | S | S | M | D | M | D | F | S | S | M | D | M | D | F | S | S | M | D |
| April | M | D | F | S | S | M | D | M | D | F | S | S | M | D | M | D | F | S | S | M | D | M | D | F | S | S | M | D | M | D | |
| Mai | F | S | S | M | D | M | D | F | S | S | M | D | M | D | F | S | S | M | D | M | D | F | S | S | M | D | M | D | F | S | S |
| Juni | M | D | M | D | F | S | S | M | D | M | D | F | S | S | M | D | M | D | F | S | S | M | D | M | D | F | S | S | M | D | |
| Juli | M | D | F | S | S | M | D | M | D | F | S | S | M | D | M | D | F | S | S | M | D | M | D | F | S | S | M | D | M | D | F |
| August | S | S | M | D | M | D | F | S | S | M | D | M | D | F | S | S | M | D | M | D | F | S | S | M | D | M | D | F | S | S | M |
| September | D | M | D | F | S | S | M | D | M | D | F | S | S | M | D | M | D | F | S | S | M | D | M | D | F | S | S | M | D | M | |
| Oktober | D | F | S | S | M | D | M | D | F | S | S | M | D | M | D | F | S | S | M | D | M | D | F | S | S | M | D | M | D | F | S |
| November | S | M | D | M | D | F | S | S | M | D | M | D | F | S | S | M | D | M | D | F | S | S | M | D | M | D | F | S | S | M | |
| Dezember | D | M | D | F | S | S | M | D | M | D | F | S | S | M | D | M | D | F | S | S | M | D | M | D | F | S | S | M | D | M | D |
| 2027 | 1 | 2 | 3 | 4 | 5 | 6 | 7 | 8 | 9 | 10 | 11 | 12 | 13 | 14 | 15 | 16 | 17 | 18 | 19 | 20 | 21 | 22 | 23 | 24 | 25 | 26 | 27 | 28 | 29 | 30 | 31 |
| Januar | F | S | S | M | D | M | D | F | S | S | M | D | M | D | F | S | S | M | D | M | D | F | S | S | M | D | M | D | F | S | S |
| Februar | M | D | M | D | F | S | S | M | D | M | D | F | S | S | M | D | M | D | F | S | S | M | D | M | D | F | S | S | |||
| März | M | D | M | D | F | S | S | M | D | M | D | F | S | S | M | D | M | D | F | S | S | M | D | M | D | F | S | S | M | D | M |
| April | D | F | S | S | M | D | M | D | F | S | S | M | D | M | D | F | S | S | M | D | M | D | F | S | S | M | D | M | D | F | |
| Mai | S | S | M | D | M | D | F | S | S | M | D | M | D | F | S | S | M | D | M | D | F | S | S | M | D | M | D | F | S | S | M |
| Juni | D | M | D | F | S | S | M | D | M | D | F | S | S | M | D | M | D | F | S | S | M | D | M | D | F | S | S | M | D | M | |
| Juli | D | F | S | S | M | D | M | D | F | S | S | M | D | M | D | F | S | S | M | D | M | D | F | S | S | M | D | M | D | F | S |
| August | S | M | D | M | D | F | S | S | M | D | M | D | F | S | S | M | D | M | D | F | S | S | M | D | M | D | F | S | S | M | D |
| September | M | D | F | S | S | M | D | M | D | F | S | S | M | D | M | D | F | S | S | M | D | M | D | F | S | S | M | D | M | D | |
| Oktober | F | S | S | M | D | M | D | F | S | S | M | D | M | D | F | S | S | M | D | M | D | F | S | S | M | D | M | D | F | S | S |
| November | M | D | M | D | F | S | S | M | D | M | D | F | S | S | M | D | M | D | F | S | S | M | D | M | D | F | S | S | M | D | |
| Dezember | M | D | F | S | S | M | D | M | D | F | S | S | M | D | M | D | F | S | S | M | D | M | D | F | S | S | M | D | M | D | F |
| 2028 | 1 | 2 | 3 | 4 | 5 | 6 | 7 | 8 | 9 | 10 | 11 | 12 | 13 | 14 | 15 | 16 | 17 | 18 | 19 | 20 | 21 | 22 | 23 | 24 | 25 | 26 | 27 | 28 | 29 | 30 | 31 |
| Januar | S | S | M | D | M | D | F | S | S | M | D | M | D | F | S | S | M | D | M | D | F | S | S | M | D | M | D | F | S | S | M |
| Februar | D | M | D | F | S | S | M | D | M | D | F | S | S | M | D | M | D | F | S | S | M | D | M | D | F | S | S | M | D | ||
| März | M | D | F | S | S | M | D | M | D | F | S | S | M | D | M | D | F | S | S | M | D | M | D | F | S | S | M | D | M | D | F |
| April | S | S | M | D | M | D | F | S | S | M | D | M | D | F | S | S | M | D | M | D | F | S | S | M | D | M | D | F | S | S | |
| Mai | M | D | M | D | F | S | S | M | D | M | D | F | S | S | M | D | M | D | F | S | S | M | D | M | D | F | S | S | M | D | M |
| Juni | D | F | S | S | M | D | M | D | F | S | S | M | D | M | D | F | S | S | M | D | M | D | F | S | S | M | D | M | D | F | |
| Juli | S | S | M | D | M | D | F | S | S | M | D | M | D | F | S | S | M | D | M | D | F | S | S | M | D | M | D | F | S | S | M |
| August | D | M | D | F | S | S | M | D | M | D | F | S | S | M | D | M | D | F | S | S | M | D | M | D | F | S | S | M | D | M | D |
| September | F | S | S | M | D | M | D | F | S | S | M | D | M | D | F | S | S | M | D | M | D | F | S | S | M | D | M | D | F | S | |
| Oktober | S | M | D | M | D | F | S | S | M | D | M | D | F | S | S | M | D | M | D | F | S | S | M | D | M | D | F | S | S | M | D |
| November | M | D | F | S | S | M | D | M | D | F | S | S | M | D | M | D | F | S | S | M | D | M | D | F | S | S | M | D | M | D | |
| Dezember | F | S | S | M | D | M | D | F | S | S | M | D | M | D | F | ||||||||||||||||